CHARLEROI (ROUX)

130
3
1
Faire offre à partir de
275 000 € HF*
Prix global
* Hors frais et hors TVA
Gros œuvre fermé
0 €

Descriptif

! PROJET PRET À CONSTRUIRE !
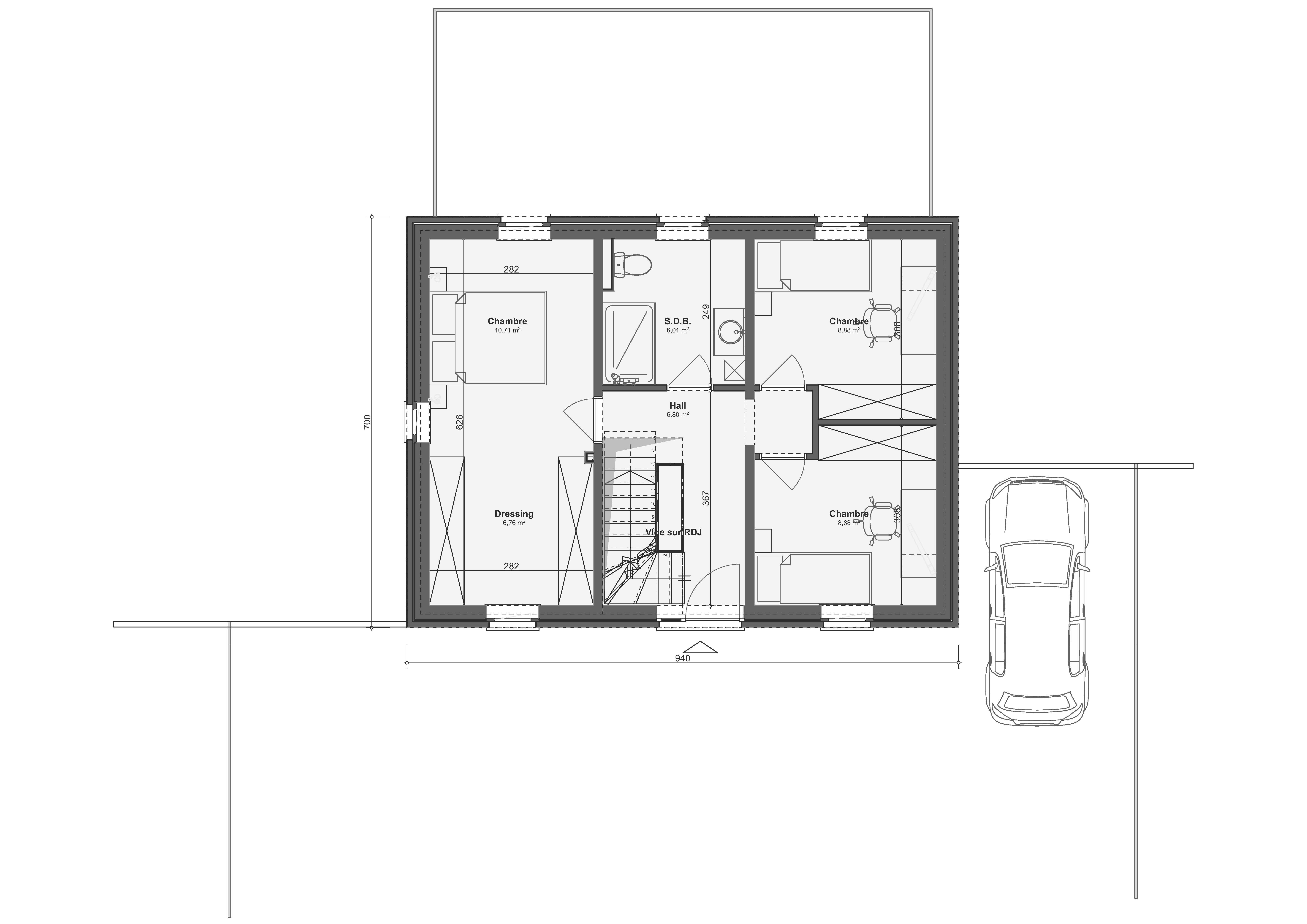
C’est à Roux (Charleroi) et de toutes les commodités que nous vous proposons cette maison 4 façades. La bâtisse en rez de chaussée se compose de 3 chambres dont une avec dressing et une salle de douches.
Au rez de jardin, un hall avec wc, cuisine, séjour ouvert sur le jardin, buanderie.
Une partie grenier est également prévue à l'étage de la maison.
Prix : 275 000€ HF.
Ce prix comprend le terrain et la maison (le gros oeuvre, les châssis, la toiture, le plafonnage, le carrelage, les portes intérieures et l'escalier, la salle de bains et wc, l'éléctricité, l'installation de panneaux photovoltaïques et le chauffage) et une garantie de 10 ans.
Si les commandes ne sont pas encore passées, vous pourrez même choisir les matériaux de finitions dans notre show-room.
La tva et frais de notaire sont estimés à 58 000€.
Pour plus d'information, vous pouvez nous contacter au 0476/77 47 24

Infos du terrain

Faire offre à partir de 275 000 € HF*
Adresse Rue Sous le Bois
Région ROUX (CHARLEROI)
Province Hainaut
Superficie du terrain 633 m²
Contactez Marie-Céline au 061/58.89.24
* Hors frais et hors TVA

Informations techniques

Type Prêt à construire
Façades 4 façades
Isolation des murs 10 cm de polyuréthane.
Isolation du sol 12 cm de polyuréthane.
Isolation toiture 22cm de laine minérale.
Superficie 130 m²
Orientation S
Type de chauffage Chauffage central gaz y compris pour la production d'eau chaude sanitaire.
Type de châssis Châssis en PVC, double vitrage super isolant.
Garantie Le bâtiment est garanti 10 ans.
Installation éléctrique L'installation de panneaux photovoltaïques

Composition du bien

Hall d'entrée Oui
Séjour Oui
Cuisine Oui
Salle à manger Oui
Buanderie Oui
Hall de nuit Oui
Nombre de chambres 3 chambres
Dressing Oui
Salle de douche Oui
Grenier Oui
Garage Non
Jardin Non

Discutons de votre projet

Vous avez une (ou plusieurs) question(s), vous souhaitez des renseignements complémentaires ou parler de votre futur projet ?
Nous sommes à votre écoute, sans engagement !

Fixer un rendez-vous

Maisons Baijot

Chez Maisons Baijot, nous aimons penser que nous ne construisons pas que des maisons clé sur porte. Nous bâtissons des lieux de vie, de ceux où les souvenirs se créent et se transmettent, où les moments se vivent et se partagent. Des maisons où des enfants grandissent, où des couples vieillissent, où l’on se dispute, où l’on se réconcilie, des maisons où l’on fête des anniversaires, des naissances, des mariages, des diplômes, des départs à la retraite…

 

Pour concrétiser votre projet de construction, nous vous offrons un large choix d’idées de plans pour trouver le style de maison qui conviendra parfaitement à vos envies et à votre budget. Toutes ces options sont bien entendu souples et personnalisables pour réaliser la construction d’une maison qui vous ressemble.

 

Bienvenue dans l’Univers Maisons Baijot.