CHIMAY (BOURLERS)

300
9
3
à partir de
563 500 € HF*
Prix global
* Hors frais et hors TVA
Gros œuvre fermé
0 €

Descriptif

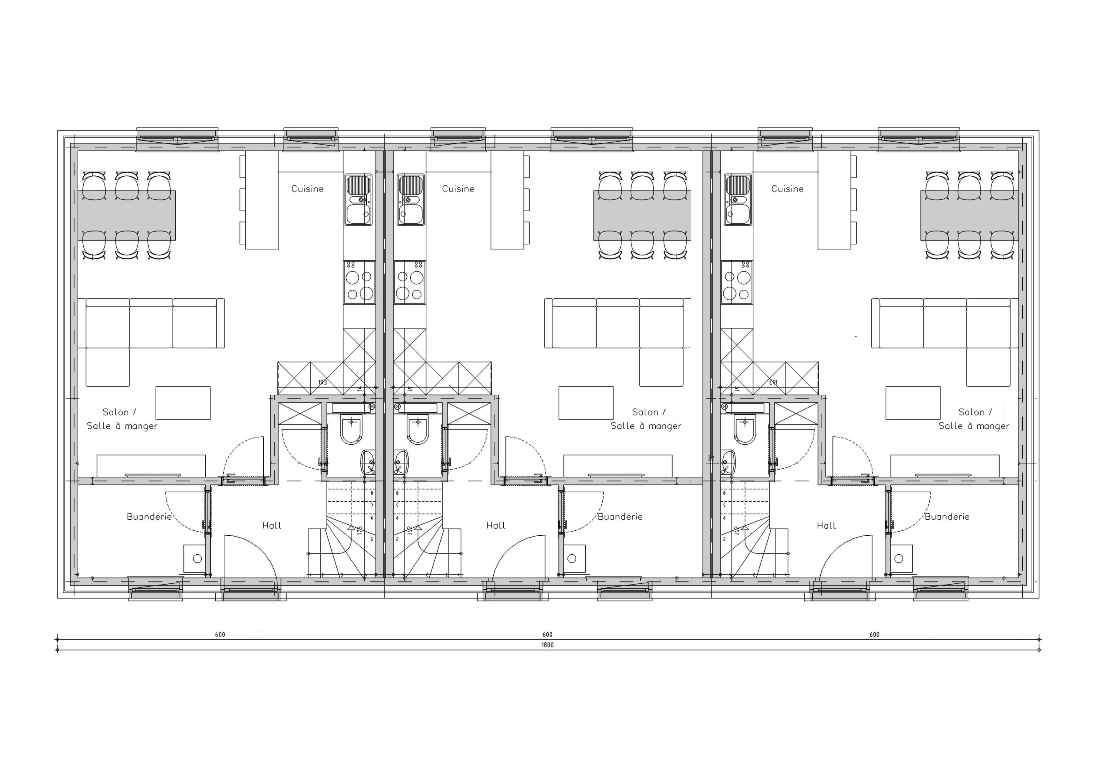
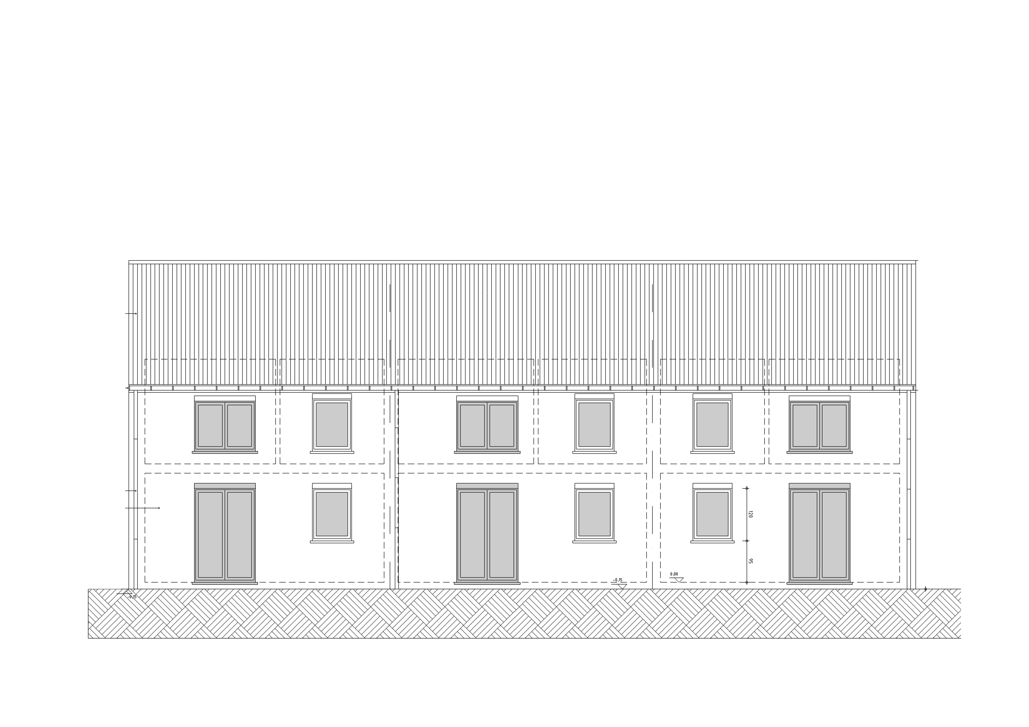
C’est à Bourlers, dans la commune de Chimay, proche de la frontière française et de toutes les commodités, que nous vous proposons ce bloc de 3 maisons mitoyennes prêt à construire.

Ce projet est idéal pour un investissement.

Chaque maison se compose au rez-de-chaussée d’un hall d’entrée, d’un WC séparé, d’un séjour avec espace cuisine ouvert et d’une buanderie.
A l’étage vous trouverez un hall de nuit donnant accès à 3 chambres et une salle de douche (douche, meuble vasque, WC).

Prix hors frais : 563 500€
La TVA et les frais de notaire sont estimés à 120 000€

Ce qui sera compris : le terrain et la maison (le gros-oeuvre, les châssis, la toiture, le plafonnage, le carrelage RDC, les portes intérieures et l'escalier, la salle d’eau et wc, l'électricité, l'installation de panneaux photovoltaïques et le chauffage) et une garantie de 10 ans.

Ce projet vous intéresse ? Contactez-nous vite au 061/22.81.93 ou j.cluentius@maisonsbaijot.com

Infos du terrain

à partir de 563 500 € HF*
Adresse RUE DES JUIFS
Région BOURLERS (CHIMAY)
Province Hainaut
Superficie du terrain 1282 m²
Contactez Jimmy au 0483/01.06.15
* Hors frais et hors TVA

Informations techniques

Type Prêt à construire
Façades 4 façades
Isolation des murs 10 cm de polyuréthane.
Isolation du sol 10 cm de polyuréthane.
Isolation toiture 22cm de laine minérale.
Superficie 300 m²
Type de chauffage Chauffage central gaz y compris pour la production d'eau chaude sanitaire.
Type de châssis Châssis en PVC, double vitrage super isolant.
Garantie Le bâtiment est garanti 10 ans.
Installation éléctrique L'installation électrique à un certificat de conformité valable 25 ans.

Composition du bien

Hall d'entrée 3 halls
Séjour 3 séjours
Cuisine 3 cuisines
Salle à manger 3 salles à manger
Buanderie 3 buanderies
WC 6 WC
Hall de nuit 3 halls
Nombre de chambres 9 chambres
Salle de douche 3 salles de douche
Garage Non

Discutons de votre projet

Vous avez une (ou plusieurs) question(s), vous souhaitez des renseignements complémentaires ou parler de votre futur projet ?
Nous sommes à votre écoute, sans engagement !

Fixer un rendez-vous

Maisons Baijot

Chez Maisons Baijot, nous aimons penser que nous ne construisons pas que des maisons clé sur porte. Nous bâtissons des lieux de vie, de ceux où les souvenirs se créent et se transmettent, où les moments se vivent et se partagent. Des maisons où des enfants grandissent, où des couples vieillissent, où l’on se dispute, où l’on se réconcilie, des maisons où l’on fête des anniversaires, des naissances, des mariages, des diplômes, des départs à la retraite…

 

Pour concrétiser votre projet de construction, nous vous offrons un large choix d’idées de plans pour trouver le style de maison qui conviendra parfaitement à vos envies et à votre budget. Toutes ces options sont bien entendu souples et personnalisables pour réaliser la construction d’une maison qui vous ressemble.

 

Bienvenue dans l’Univers Maisons Baijot.