CIERGNON 9

153
3
1
Faire offre à partir de
315 000 € HF*
Prix global
* Hors frais et hors TVA
Gros œuvre fermé
0 €

Descriptif

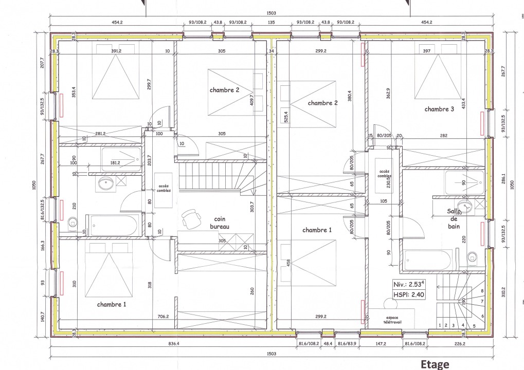
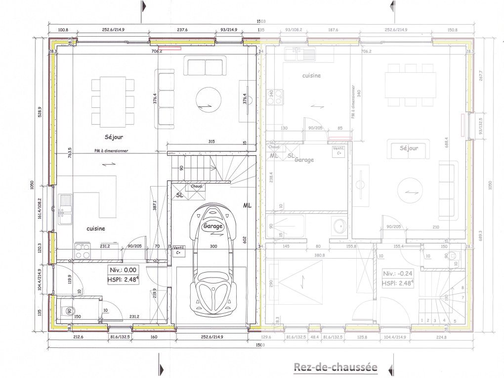
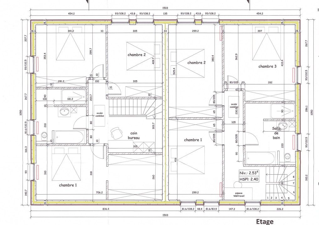
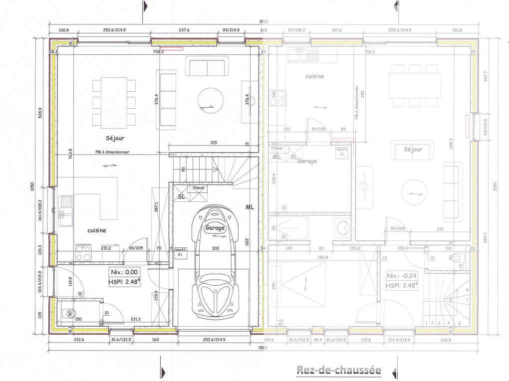
Bienvenue à Herock, un projet résidentiel moderne situé dans un environnement calme et ensoleillé, pensé pour offrir confort, qualité et durabilité. Ici, chaque maison allie architecture contemporaine, espaces lumineux et haute performance énergétique, dans un cadre parfaitement adapté à la vie de famille ou à un investissement sûr. Acheter dans le neuf, c’est faire le choix de la tranquillité. À Herock, tout est pensé pour votre confort : isolation performante, panneaux photovoltaïques, micro-station, citerne d’eau de pluie, et aucune rénovation à prévoir. Vous bénéficiez de garanties, de normes actuelles et de frais d’entretien réduits. Cette maison de 153 m², construite sur un terrain de 428 m², propose un séjour de 30 m², une cuisine de 9 m², trois chambres (11, 11 et 18 m²), une salle de bain avec baignoire et douche, ainsi qu’un garage de 15 m².

Infos du terrain

Faire offre à partir de 315 000 € HF*
Disponibilité A l'acte
Adresse Herock
Région CIERGNON (HOUYET)
Province Namur
Superficie du terrain 428 m²
PEB A
Contactez Yolaine au 0470103603
* Hors frais et hors TVA

Informations techniques

Type Prêt à construire
Façades 4 façades
Isolation des murs 10 cm de polyuréthane.
Isolation du sol 10 cm de polyuréthane.
Isolation toiture 20cm de laine minérale.
Superficie 153 m²
Orientation S
Type de chauffage Chauffage central gaz y compris pour la production d'eau chaude sanitaire.
Type de châssis Châssis en PVC, double vitrage super isolant, porte de garage sectionnelle isolée.
Garantie Le bâtiment est garanti 10 ans.
Installation éléctrique L'installation électrique à un certificat de conformité valable 25 ans.

Composition du bien

Hall d'entrée Non
Séjour Oui
Cuisine Non
Salle à manger Non
WC 2 WC
Hall de nuit Non
Nombre de chambres 3 chambres
Salles de bain Oui
Garage Non
Parking Oui
Jardin Oui
Terrasse Oui

Discutons de votre projet

Vous avez une (ou plusieurs) question(s), vous souhaitez des renseignements complémentaires ou parler de votre futur projet ?
Nous sommes à votre écoute, sans engagement !

Fixer un rendez-vous

Maisons Baijot

Chez Maisons Baijot, nous aimons penser que nous ne construisons pas que des maisons clé sur porte. Nous bâtissons des lieux de vie, de ceux où les souvenirs se créent et se transmettent, où les moments se vivent et se partagent. Des maisons où des enfants grandissent, où des couples vieillissent, où l’on se dispute, où l’on se réconcilie, des maisons où l’on fête des anniversaires, des naissances, des mariages, des diplômes, des départs à la retraite…

 

Pour concrétiser votre projet de construction, nous vous offrons un large choix d’idées de plans pour trouver le style de maison qui conviendra parfaitement à vos envies et à votre budget. Toutes ces options sont bien entendu souples et personnalisables pour réaliser la construction d’une maison qui vous ressemble.

 

Bienvenue dans l’Univers Maisons Baijot.