GEMBLOUX ( ERNAGE )

3
1
Faire offre à partir de
407 975 € HF*
Prix global
* Hors frais et hors TVA
Gros œuvre fermé
0 €

Descriptif

À vendre – Belle maison lumineuse à Ernage (Gembloux)

Située dans un quartier résidentiel paisible d’Ernage, au sein de la commune très recherchée de Gembloux, cette charmante maison offre un cadre de vie privilégié aux portes du Brabant Wallon.

Installée dans un lotissement soigné, elle bénéficie d’un environnement calme et familial, avec l’avantage non négligeable d’une procédure de permis simplifiée. Un vrai plus pour concrétiser rapidement votre projet !

Spacieuse, baignée de lumière naturelle et judicieusement agencée, cette maison allie confort moderne et sérénité. Son prix compétitif pour la région en fait une opportunité rare sur le marché.

Proche des grands axes, elle vous garantit une excellente accessibilité tout en restant à deux pas de tout ce qui compte.

Ne manquez pas cette opportunité de poser vos valises dans un cadre de vie idéal !

Infos du terrain

Faire offre à partir de 407 975 € HF*
Prix du terrain 175 000 € HF*
Frais de l'infrastructure 4 500 € HTVA
Prix de la construction 232 975 € HTVA
Adresse Rue Georges Balza
Région ERNAGE (GEMBLOUX)
Province Namur
Superficie du terrain 1070 m²
Contactez Juan au 00 32 496 23 53 82
* Hors frais et hors TVA

Informations techniques

Type Prêt à construire
Façades 4 façades
Isolation des murs 10 cm de polyuréthane.
Isolation du sol 12 cm de polyuréthane.
Isolation toiture 22cm de laine minérale.
Orientation NE
Type de chauffage Pompe à chaleur
Type de châssis Châssis en PVC, double vitrage super isolant.
Garantie Le bâtiment est garanti 10 ans.
Installation éléctrique L'installation électrique à un certificat de conformité valable 25 ans.

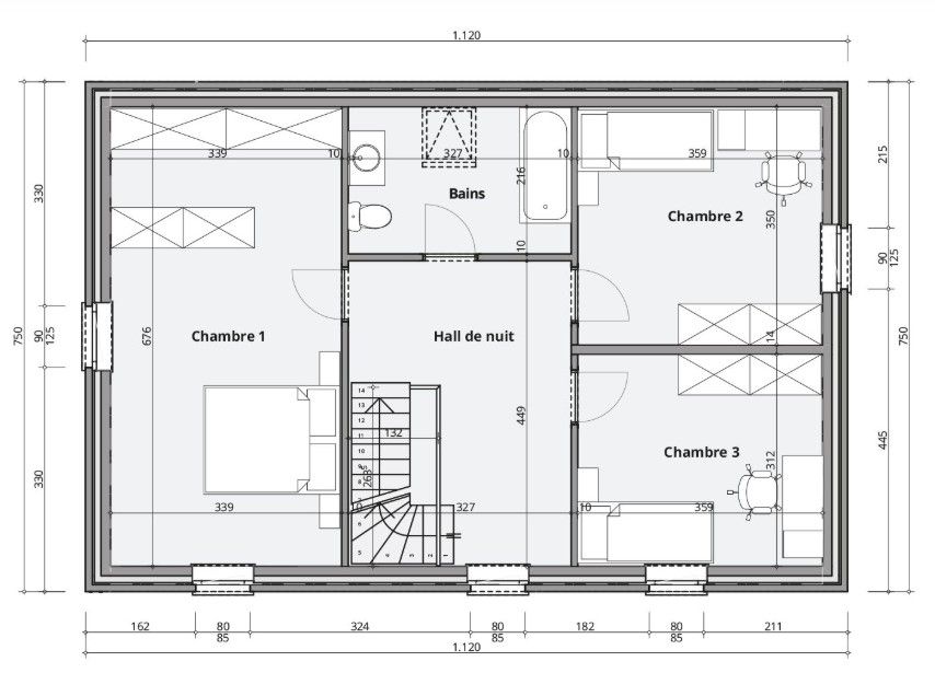
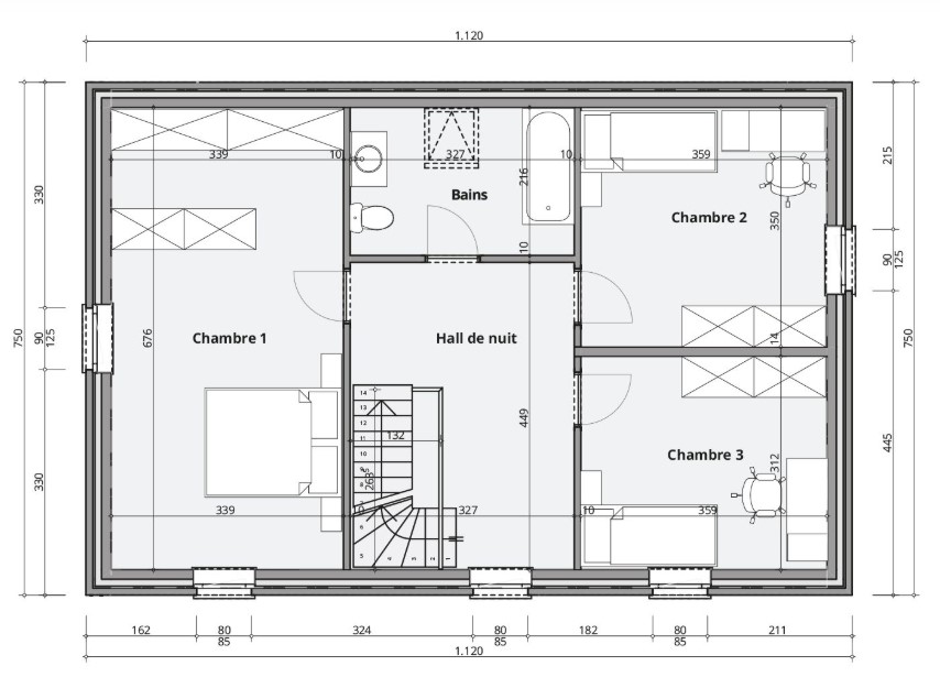
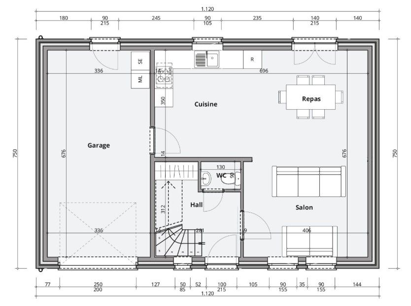
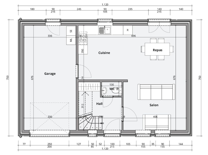
Composition du bien

Hall d'entrée Oui
Séjour Oui
Cuisine Oui
Salle à manger Oui
Buanderie Oui
WC Oui
Hall de nuit Oui
Nombre de chambres 3 chambres
Salles de bain Oui
Garage Non
Parking Oui
Jardin Oui
Terrasse Oui

Discutons de votre projet

Vous avez une (ou plusieurs) question(s), vous souhaitez des renseignements complémentaires ou parler de votre futur projet ?
Nous sommes à votre écoute, sans engagement !

Fixer un rendez-vous

Maisons Baijot

Chez Maisons Baijot, nous aimons penser que nous ne construisons pas que des maisons clé sur porte. Nous bâtissons des lieux de vie, de ceux où les souvenirs se créent et se transmettent, où les moments se vivent et se partagent. Des maisons où des enfants grandissent, où des couples vieillissent, où l’on se dispute, où l’on se réconcilie, des maisons où l’on fête des anniversaires, des naissances, des mariages, des diplômes, des départs à la retraite…

 

Pour concrétiser votre projet de construction, nous vous offrons un large choix d’idées de plans pour trouver le style de maison qui conviendra parfaitement à vos envies et à votre budget. Toutes ces options sont bien entendu souples et personnalisables pour réaliser la construction d’une maison qui vous ressemble.

 

Bienvenue dans l’Univers Maisons Baijot.