HEINSTERT 1

143
3
1
Faire offre à partir de
371 000 € HF*
Prix global
* Hors frais et hors TVA
Gros œuvre fermé
0 €

Descriptif

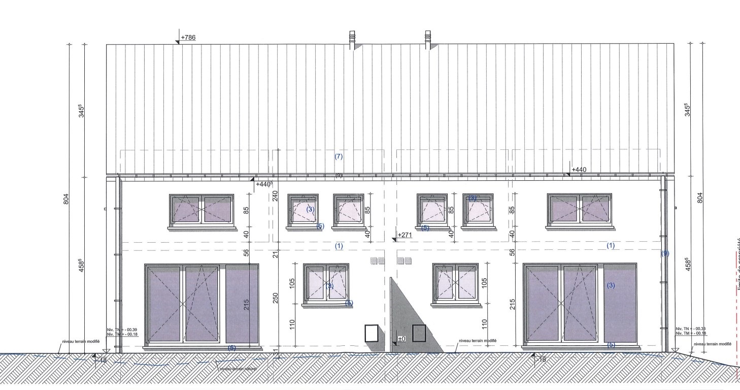
Implantée dans un environnement résidentiel de Heinstert, cette maison neuve bénéficie d’un cadre calme et soigné, au sein d’un village verdoyant apprécié pour sa qualité de vie. Le quartier offre une ambiance paisible tout en restant connecté aux pôles d’activités de la région. L’arrêt de bus le plus proche se trouve à +/- 450 mètres. La gare d’Arlon est accessible en +/- 15 minutes en voiture. Les axes routiers N4 et E411 sont joignables en moins de 10 minutes. Une école fondamentale est située à +/- 2 km, une crèche à +/- 5 minutes. Une pharmacie et un médecin généraliste se trouvent à +/- 2 km. Les commerces de proximité, boulangerie, banque et salle de sport sont accessibles dans un rayon de +/- 3 à 5 km, principalement vers Attert ou Arlon. Cette habitation trois façades développe une surface habitable de +/- 143 m² sur un terrain de +/- 3,61 ares. Elle dispose d’un garage de +/- 21 m² avec espace buanderie intégré. Une terrasse orientée nord-est permet une utilisation agréable aux heures plus tempérées de la journée. Le rez-de-chaussée comprend un hall d’entrée avec WC invités, un séjour lumineux de +/- 26 m² et une cuisine ouverte de +/- 10 m². À l’étage, le hall de nuit dessert une chambre parentale avec dressing de +/- 16 m², une seconde chambre de +/- 13 m², une troisième de +/- 11 m², ainsi qu’une salle de bain de +/- 7 m² équipée d’une baignoire et d’une douche. Le bien est équipé d’un chauffage central au gaz et de 6 panneaux photovoltaïques. La performance énergétique est classée A, garantissant un bon rendement thermique et une consommation optimisée

Infos du terrain

Faire offre à partir de 371 000 € HF*
Disponibilité A l'acte
Adresse Rue Burgknapp
Région HEINSTERT (ATTERT)
Province Luxembourg
Superficie du terrain 0 m²
Contactez Georges au 0487641789
* Hors frais et hors TVA

Informations techniques

Type Prêt à construire
Façades 4 façades
Isolation des murs 10 cm de polyuréthane.
Isolation du sol 12 cm de polyuréthane.
Isolation toiture 22cm de laine minérale.
Superficie 143 m²
Orientation S
Type de chauffage Chauffage central gaz y compris pour la production d'eau chaude sanitaire.
Type de châssis Châssis en PVC, double vitrage super isolant, porte de garage sectionnelle isolée.
Garantie Le bâtiment est garanti 10 ans.
Installation éléctrique L'installation électrique à un certificat de conformité valable 25 ans.

Composition du bien

Hall d'entrée Non
Séjour Non
Cuisine Oui
Salle à manger Non
Hall de nuit Non
Nombre de chambres 3 chambres
Salles de bain Oui
Garage Non
Jardin Non
Terrasse Oui

Discutons de votre projet

Vous avez une (ou plusieurs) question(s), vous souhaitez des renseignements complémentaires ou parler de votre futur projet ?
Nous sommes à votre écoute, sans engagement !

Fixer un rendez-vous

Maisons Baijot

Chez Maisons Baijot, nous aimons penser que nous ne construisons pas que des maisons clé sur porte. Nous bâtissons des lieux de vie, de ceux où les souvenirs se créent et se transmettent, où les moments se vivent et se partagent. Des maisons où des enfants grandissent, où des couples vieillissent, où l’on se dispute, où l’on se réconcilie, des maisons où l’on fête des anniversaires, des naissances, des mariages, des diplômes, des départs à la retraite…

 

Pour concrétiser votre projet de construction, nous vous offrons un large choix d’idées de plans pour trouver le style de maison qui conviendra parfaitement à vos envies et à votre budget. Toutes ces options sont bien entendu souples et personnalisables pour réaliser la construction d’une maison qui vous ressemble.

 

Bienvenue dans l’Univers Maisons Baijot.