JAMBES 1

214
4
2
Faire offre à partir de
525 000 € HF*
Prix global
* Hors frais et hors TVA
Gros œuvre fermé
0 €

Descriptif

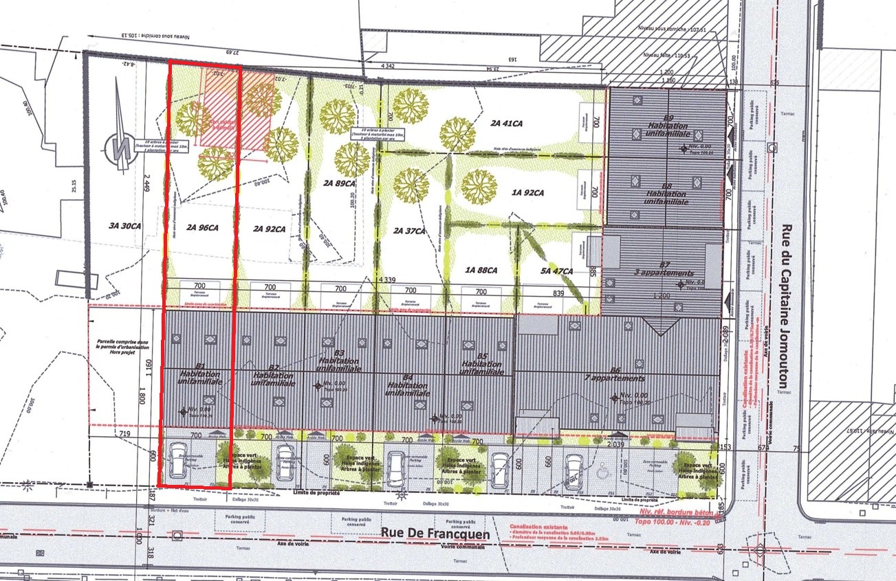
Située à Jambes, au cœur de la commune de Namur, cette maison bénéficie d’un emplacement privilégié, à deux pas de la Meuse. Elle offre un cadre de vie agréable et recherché, alliant la proximité du centre de Jambes à un environnement paisible, idéal pour profiter pleinement de la ville et de ses alentours. Le bien dispose d’un terrain d’environ 3 ares.

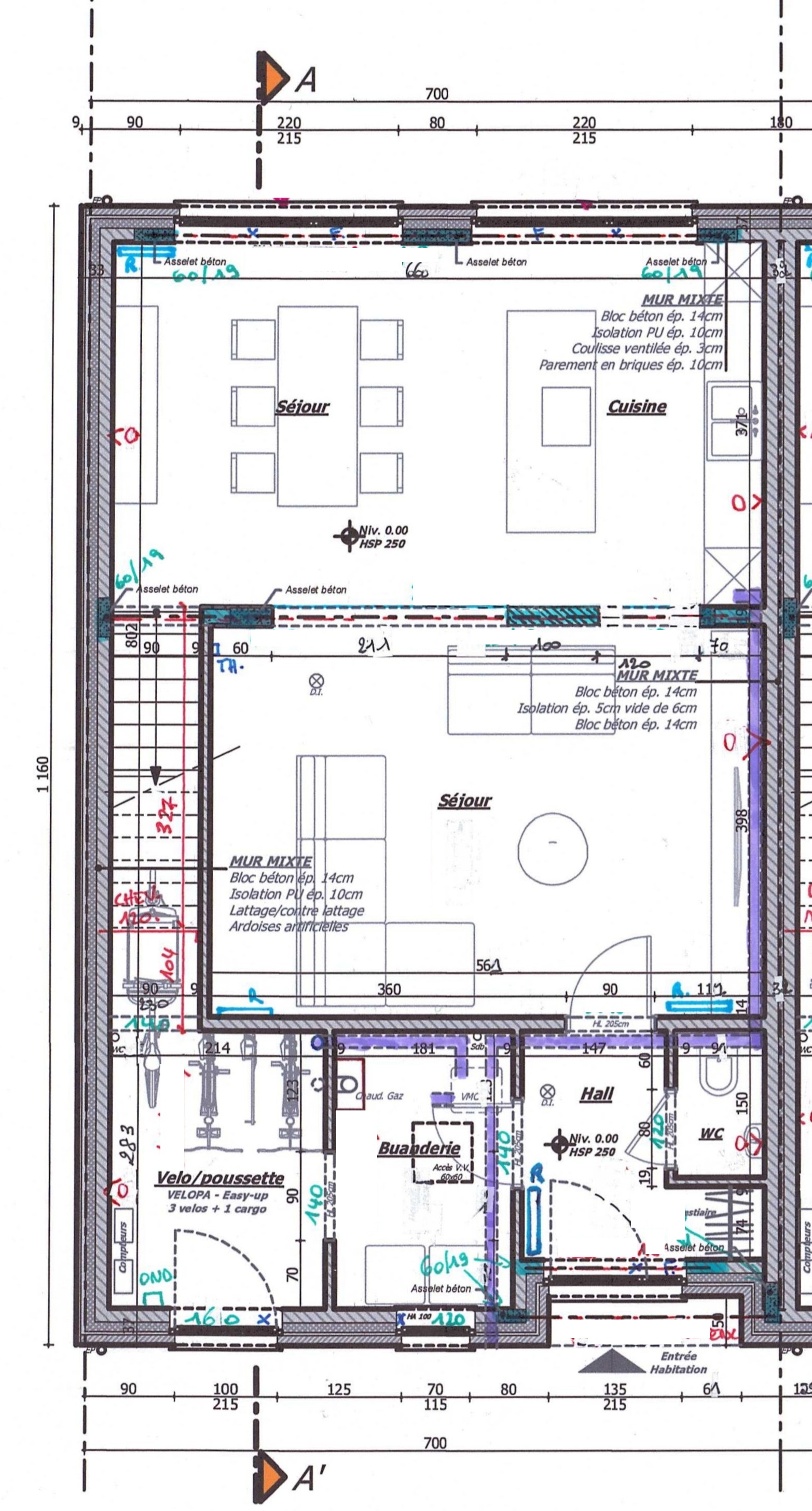
Cette maison se compose :

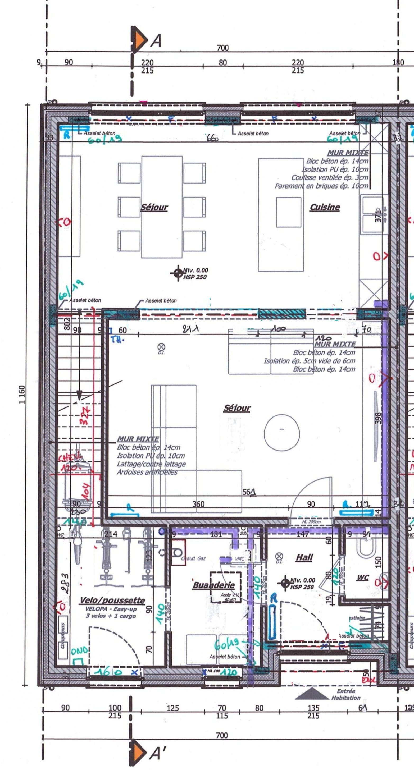
Au rez-de-chaussée :
• Hall d’entrée avec WC indépendant
• Séjour ouvert sur la cuisine
• Cuisine
• Buanderie
• Local de rangement
• Terrasse de 15m²
• Jardin   

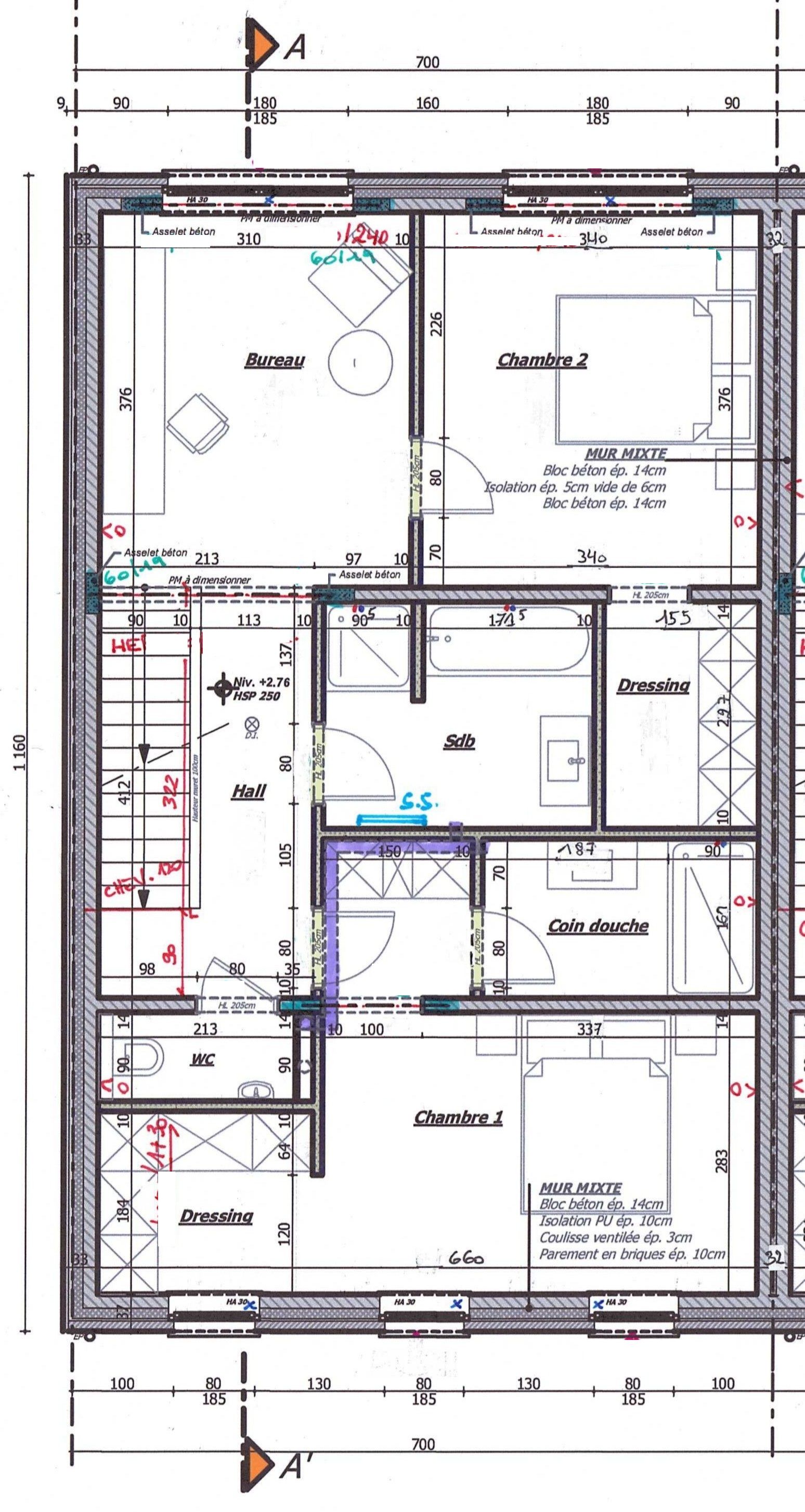
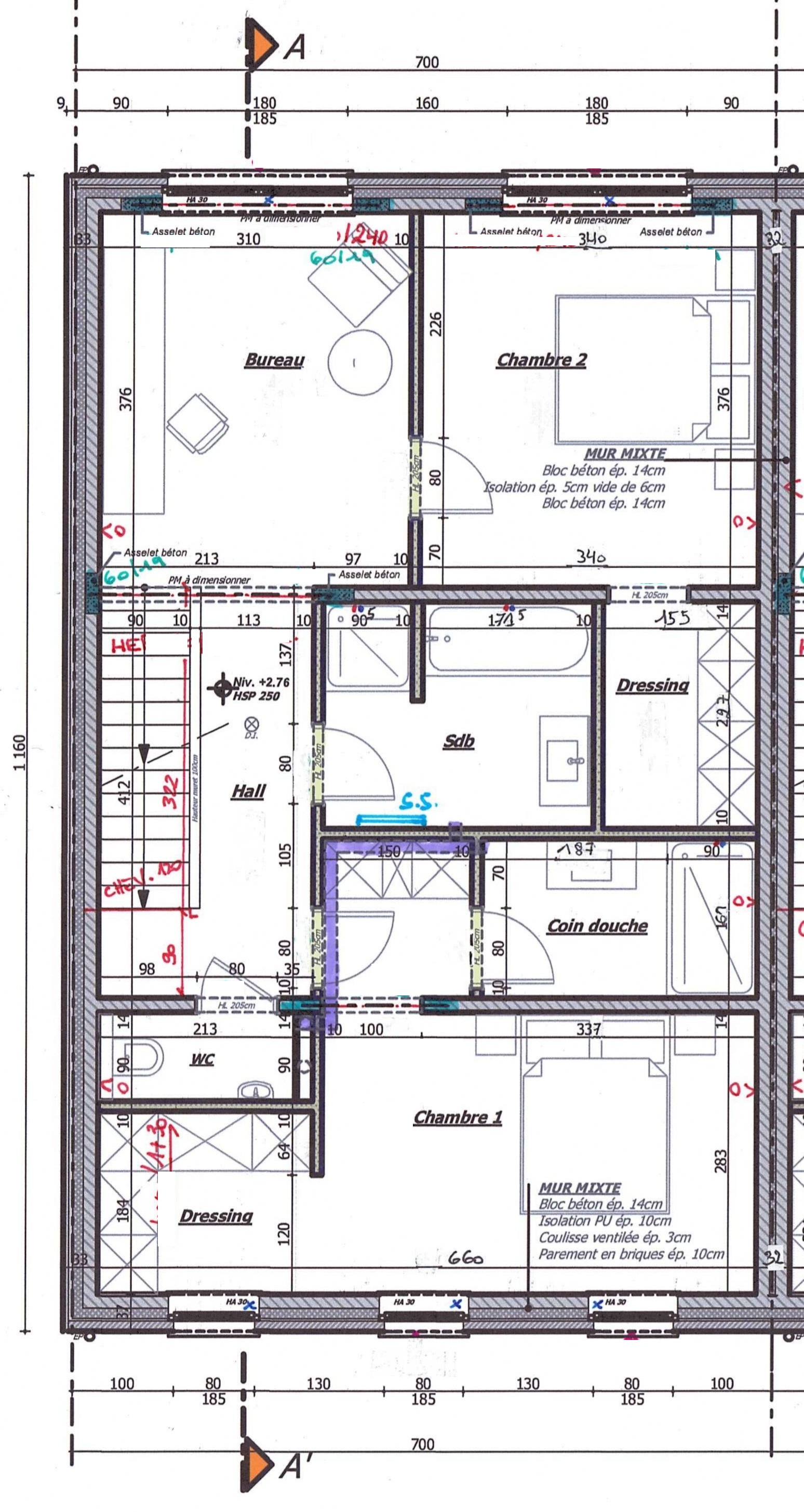
Au 1er étage :
• Dégagement, possibilité de mettre un bureau
• 1 chambre avec dressing
• 1 chambre avec dressing et coin douche
• 1 salle de bain avec bain, douche et lavabo
• 1 WC indépendant

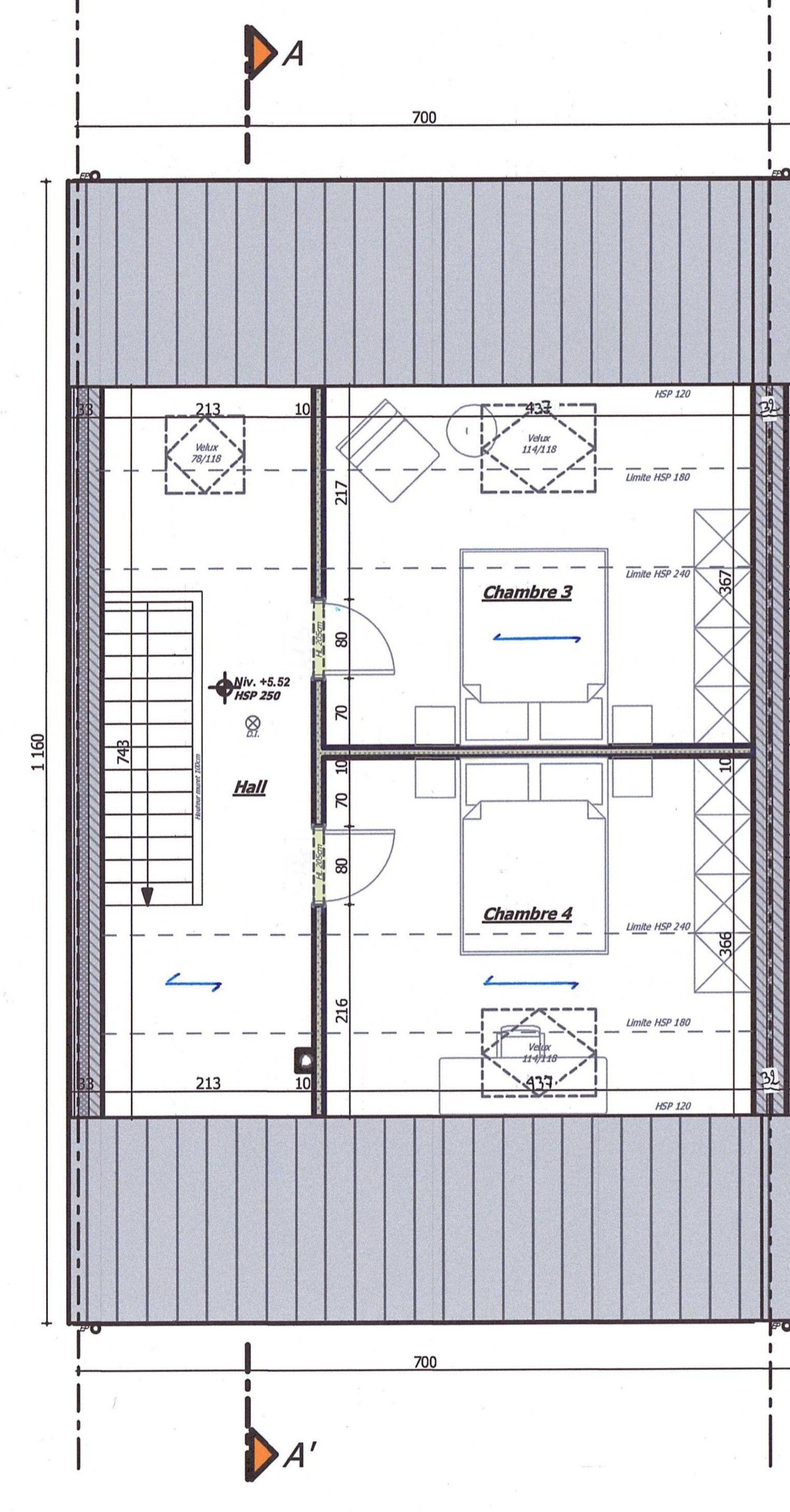
Au 2ème étage :
• 1 hall de nuit
• 2 chambres

Confort et performance énergétique
• PEB A, excellente isolation
• Chauffage central au gaz de ville
• Panneaux photovoltaïques

Idéalement située, cette maison se trouve à moins de 500 m d’un arrêt de bus et à 5 minutes de la gare, offrant une excellente accessibilité aux transports en commun. Le cinéma de Jambes, des activités de loisirs et une salle de sport sont accessibles en 5 minutes. Les écoles primaire et secondaire se situent à moins de 5 minutes, tandis que le centre de Namur est accessible en 10 minutes. Toutes les commodités (commerces, services, grandes surfaces) sont à moins de 6 minutes. La proximité immédiate des axes N42, N4 et E411 facilite également les déplacements quotidiens.

Infos du terrain

Faire offre à partir de 525 000 € HF*
Prix du terrain 125 000 € HF*
Frais de l'infrastructure 14 100 € HTVA
Prix de la construction 385 000 € HTVA
Disponibilité A l'acte
Adresse Rue de Francquen
Région JAMBES (NAMUR)
Province Namur
Superficie du terrain 296 m²
PEB A
Contactez Marie-Céline au 061/58.89.24
* Hors frais et hors TVA

Informations techniques

Type Prêt à construire
Façades 3 façades
Isolation des murs 10 cm de polyuréthane.
Isolation du sol 10 cm de polyuréthane.
Isolation toiture 20cm de laine minérale.
Superficie 214 m²
Orientation S
Type de chauffage Chauffage central gaz y compris pour la production d'eau chaude sanitaire.
Type de châssis Châssis en PVC, double vitrage super isolant.
Garantie Le bâtiment est garanti 10 ans.
Installation éléctrique L'installation électrique à un certificat de conformité valable 25 ans.

Composition du bien

Hall d'entrée Oui
Séjour Oui
Cuisine Non
Salle à manger Non
Bureau Oui
Buanderie Oui
WC 2 WC
Hall de nuit 2 halls
Nombre de chambres 4 chambres
Salles de bain Oui
Salle de douche Oui
Garage Non
Parking 2 places
Jardin Oui
Terrasse Oui

Discutons de votre projet

Vous avez une (ou plusieurs) question(s), vous souhaitez des renseignements complémentaires ou parler de votre futur projet ?
Nous sommes à votre écoute, sans engagement !

Fixer un rendez-vous

Maisons Baijot

Chez Maisons Baijot, nous aimons penser que nous ne construisons pas que des maisons clé sur porte. Nous bâtissons des lieux de vie, de ceux où les souvenirs se créent et se transmettent, où les moments se vivent et se partagent. Des maisons où des enfants grandissent, où des couples vieillissent, où l’on se dispute, où l’on se réconcilie, des maisons où l’on fête des anniversaires, des naissances, des mariages, des diplômes, des départs à la retraite…

 

Pour concrétiser votre projet de construction, nous vous offrons un large choix d’idées de plans pour trouver le style de maison qui conviendra parfaitement à vos envies et à votre budget. Toutes ces options sont bien entendu souples et personnalisables pour réaliser la construction d’une maison qui vous ressemble.

 

Bienvenue dans l’Univers Maisons Baijot.