THIBESSART 3

150
3
1
Faire offre à partir de
365 000 € HF*
Prix global
* Hors frais et hors TVA
Gros œuvre fermé
0 €

Descriptif

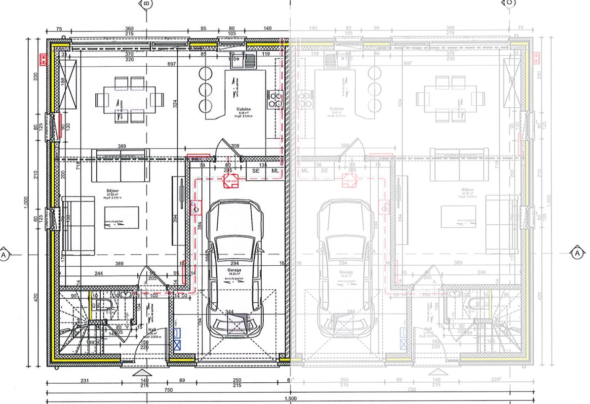
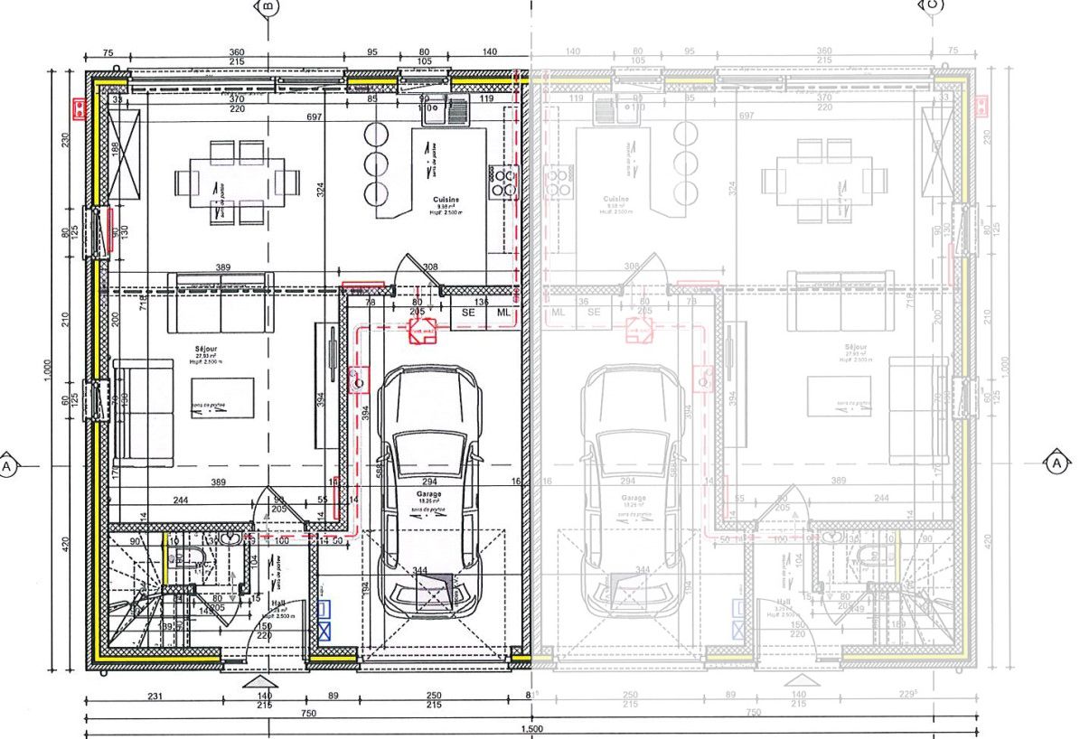
Dans un environnement calme et verdoyant, cette maison neuve est située à Thibessart, dans la commune de Léglise. Elle bénéficie d’une atmosphère paisible et d’une bonne desserte via les axes routiers et transports en commun à proximité.Cette habitation 3 façades développe une surface habitable de +/- 150 m² sur un terrain de +/- 5,67 ares. La terrasse est orientée à l’est, et un garage de +/- 18 m² complète l’ensemble.

L’intérieur se compose d’un séjour lumineux de +/- 27 m², d’une cuisine de +/- 10 m² à aménager, et à l’étage, un hall de nuit dessert trois chambres de +/- 15 m², +/- 15 m² et +/- 11 m², ainsi qu’une salle de bain de +/- 8 m² équipée d’une douche.

Le chauffage est assuré par une chaudière au gaz. L’installation de 6 panneaux photovoltaïques contribue à l’efficacité énergétique du bâtiment, classé PEB A.

Infos du terrain

Faire offre à partir de 365 000 € HF*
Disponibilité A l'acte
Adresse Rue de la Mande-Brat
Région THIBESSART (LEGLISE)
Province Luxembourg
Superficie du terrain 575 m²
Contactez Georges au 0487641789
* Hors frais et hors TVA

Informations techniques

Type Prêt à construire
Façades 2 façades
Isolation des murs 10 cm de polyuréthane.
Isolation du sol 12 cm de polyuréthane.
Isolation toiture 22cm de laine minérale.
Superficie 150 m²
Orientation E
Type de chauffage Chauffage central gaz y compris pour la production d'eau chaude sanitaire.
Garantie Le bâtiment est garanti 10 ans.
Installation éléctrique L'installation électrique à un certificat de conformité valable 25 ans.

Composition du bien

Hall d'entrée Non
Séjour Oui
Cuisine Oui
Salle à manger Oui
WC 2 WC
Hall de nuit Non
Nombre de chambres 3 chambres
Salles de bain Oui
Garage Oui
Parking 2 places
Jardin Oui
Terrasse Oui

Discutons de votre projet

Vous avez une (ou plusieurs) question(s), vous souhaitez des renseignements complémentaires ou parler de votre futur projet ?
Nous sommes à votre écoute, sans engagement !

Fixer un rendez-vous

Maisons Baijot

Chez Maisons Baijot, nous aimons penser que nous ne construisons pas que des maisons clé sur porte. Nous bâtissons des lieux de vie, de ceux où les souvenirs se créent et se transmettent, où les moments se vivent et se partagent. Des maisons où des enfants grandissent, où des couples vieillissent, où l’on se dispute, où l’on se réconcilie, des maisons où l’on fête des anniversaires, des naissances, des mariages, des diplômes, des départs à la retraite…

 

Pour concrétiser votre projet de construction, nous vous offrons un large choix d’idées de plans pour trouver le style de maison qui conviendra parfaitement à vos envies et à votre budget. Toutes ces options sont bien entendu souples et personnalisables pour réaliser la construction d’une maison qui vous ressemble.

 

Bienvenue dans l’Univers Maisons Baijot.