THIBESSART 5

168
3
1
Faire offre à partir de
365 000 € HF*
Prix global
* Hors frais et hors TVA
Gros œuvre fermé
0 €

Descriptif

!! Profitez de la TVA réduite à 6% sur ce bien !!
Située dans un cadre paisible et verdoyant, cette maison neuve se trouve au cœur du village de Thibessart, dans la commune de Léglise. L’environnement est résidentiel et familial, avec un accès rapide aux axes principaux.

Les commodités sont accessibles à proximité : arrêts de bus à moins de 10 minutes, gare la plus proche à 12 km, écoles fondamentales et crèche à Léglise à environ 8 minutes en voiture, pharmacie et médecin généraliste à 6 minutes, supermarché et commerces divers dans un rayon de 10 km, boulangerie et banque à Léglise, salle de sport à Neufchâteau à 15 minutes.

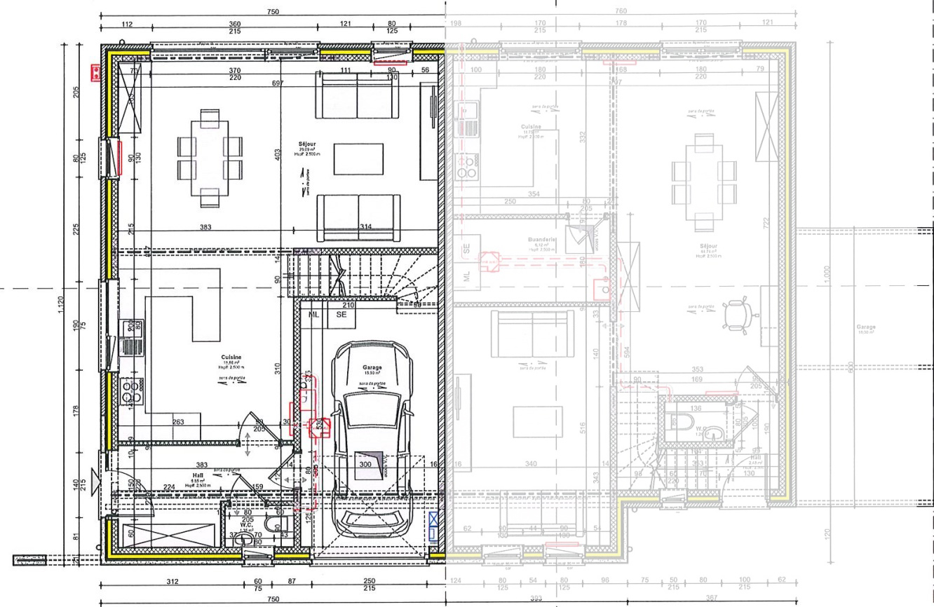
La maison, orientée à l’est, développe une surface habitable de +/-168 m² sur un terrain de +/-5,01 ares et présente trois façades. Elle dispose d’un garage de +/-15 m² et d’une terrasse.

L’agencement intérieur comprend un séjour lumineux de +/-28 m², une cuisine de +/-15 m² (non équipée), trois chambres de +/-15 m², +/-12 m² et +/-12 m², ainsi qu’une salle de bain de +/-7 m² équipée d’une douche et d’une baignoire.

Côté technique, le chauffage est assuré au gaz, six panneaux photovoltaïques sont installés et le PEB est classé A.

Infos du terrain

Faire offre à partir de 365 000 € HF*
Disponibilité A l'acte
Adresse Rue de la Mande-Brat
Région THIBESSART (LEGLISE)
Province Luxembourg
Superficie du terrain 505 m²
Contactez Georges au 0487641789
* Hors frais et hors TVA

Informations techniques

Type Prêt à construire
Façades 3 façades
Isolation des murs 10 cm de polyuréthane.
Isolation du sol 12 cm de polyuréthane.
Isolation toiture 22cm de laine minérale.
Superficie 168 m²
Orientation E
Type de chauffage Chauffage central gaz y compris pour la production d'eau chaude sanitaire.
Type de châssis Châssis en PVC, double vitrage super isolant.
Garantie Le bâtiment est garanti 10 ans.
Installation éléctrique L'installation électrique à un certificat de conformité valable 25 ans.

Composition du bien

Hall d'entrée Oui
Séjour Non
Cuisine Oui
Salle à manger Oui
WC 2 WC
Hall de nuit Non
Nombre de chambres 3 chambres
Salles de bain Oui
Garage Oui
Jardin Oui
Terrasse Oui

Discutons de votre projet

Vous avez une (ou plusieurs) question(s), vous souhaitez des renseignements complémentaires ou parler de votre futur projet ?
Nous sommes à votre écoute, sans engagement !

Fixer un rendez-vous

Maisons Baijot

Chez Maisons Baijot, nous aimons penser que nous ne construisons pas que des maisons clé sur porte. Nous bâtissons des lieux de vie, de ceux où les souvenirs se créent et se transmettent, où les moments se vivent et se partagent. Des maisons où des enfants grandissent, où des couples vieillissent, où l’on se dispute, où l’on se réconcilie, des maisons où l’on fête des anniversaires, des naissances, des mariages, des diplômes, des départs à la retraite…

 

Pour concrétiser votre projet de construction, nous vous offrons un large choix d’idées de plans pour trouver le style de maison qui conviendra parfaitement à vos envies et à votre budget. Toutes ces options sont bien entendu souples et personnalisables pour réaliser la construction d’une maison qui vous ressemble.

 

Bienvenue dans l’Univers Maisons Baijot.