THIBESSART 7

154
3
1
Faire offre à partir de
399 000 € HF*
Prix global
* Hors frais et hors TVA
Gros œuvre fermé
0 €

Descriptif


!! Profitez de la TVA réduite à 6% sur ce bien !!
Thibessart, Léglise
Située dans un environnement rural préservé, cette maison neuve se trouve à Thibessart, sur la commune de Léglise. Le quartier est calme, propice à une vie de famille, et bien desservi par les routes principales menant vers Neufchâteau et Arlon.
Les commodités sont accessibles dans un rayon maîtrisé : arrêt de bus à 700 mètres, gare de Marbehan à 11 kilomètres, accès autoroute E411 à 10 minutes. École fondamentale et crèche à 5 minutes, médecin généraliste et pharmacie à 6 minutes, supermarché à 8 minutes. Boulangerie, banque et salle de sport à Léglise à 5 kilomètres.
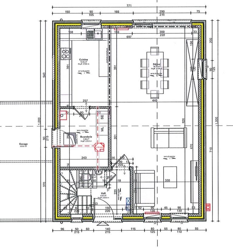
La maison, d’une surface habitable de +/-154 m², est construite sur un terrain de +/-7,18 ares. Elle se développe en quatre façades et dispose d’une terrasse orientée à l’est. Un carport complète l’ensemble.
À l’intérieur, le séjour offre un volume de +/-38 m². La cuisine, ouverte et non équipée, s’intègre harmonieusement à l’espace de vie. À l’étage, trois chambres de +/-16 m², +/-13 m² et +/-12 m² sont desservies par un hall de nuit, ainsi qu’une salle de bain de +/-8 m² avec douche et baignoire.
Le bien est équipé d’un chauffage au gaz, de six panneaux photovoltaïques et présente un certificat PEB de classe A.

Infos du terrain

Faire offre à partir de 399 000 € HF*
Disponibilité A l'acte
Adresse Rue de la Mande-Brat
Région THIBESSART (LEGLISE)
Province Luxembourg
Superficie du terrain 674 m²
Contactez Georges au 0487641789
* Hors frais et hors TVA

Informations techniques

Type Prêt à construire
Façades 3 façades
Isolation des murs 10 cm de polyuréthane.
Isolation du sol 12 cm de polyuréthane.
Isolation toiture 22cm de laine minérale.
Superficie 154 m²
Orientation E
Type de chauffage Chauffage central gaz y compris pour la production d'eau chaude sanitaire.
Type de châssis Châssis en PVC, double vitrage super isolant.
Garantie Le bâtiment est garanti 10 ans.
Installation éléctrique L'installation électrique à un certificat de conformité valable 25 ans.

Composition du bien

Hall d'entrée Non
Séjour Oui
Cuisine Oui
Salle à manger Non
WC 2 WC
Hall de nuit Non
Nombre de chambres 3 chambres
Salles de bain Oui
Garage Non
Carport Oui
Jardin Oui
Terrasse Oui

Discutons de votre projet

Vous avez une (ou plusieurs) question(s), vous souhaitez des renseignements complémentaires ou parler de votre futur projet ?
Nous sommes à votre écoute, sans engagement !

Fixer un rendez-vous

Maisons Baijot

Chez Maisons Baijot, nous aimons penser que nous ne construisons pas que des maisons clé sur porte. Nous bâtissons des lieux de vie, de ceux où les souvenirs se créent et se transmettent, où les moments se vivent et se partagent. Des maisons où des enfants grandissent, où des couples vieillissent, où l’on se dispute, où l’on se réconcilie, des maisons où l’on fête des anniversaires, des naissances, des mariages, des diplômes, des départs à la retraite…

 

Pour concrétiser votre projet de construction, nous vous offrons un large choix d’idées de plans pour trouver le style de maison qui conviendra parfaitement à vos envies et à votre budget. Toutes ces options sont bien entendu souples et personnalisables pour réaliser la construction d’une maison qui vous ressemble.

 

Bienvenue dans l’Univers Maisons Baijot.