VIRTON (SAINT-MARD 1)

145
3
1
Faire offre à partir de
355 500 € HF*
Prix global
* Hors frais et hors TVA
Gros œuvre fermé
0 €

Descriptif

C’est à Saint-Mard, dans la commune de Virton, proche des frontières française et luxembourgeoise, que nous vous proposons ce beau projet prêt à construire.

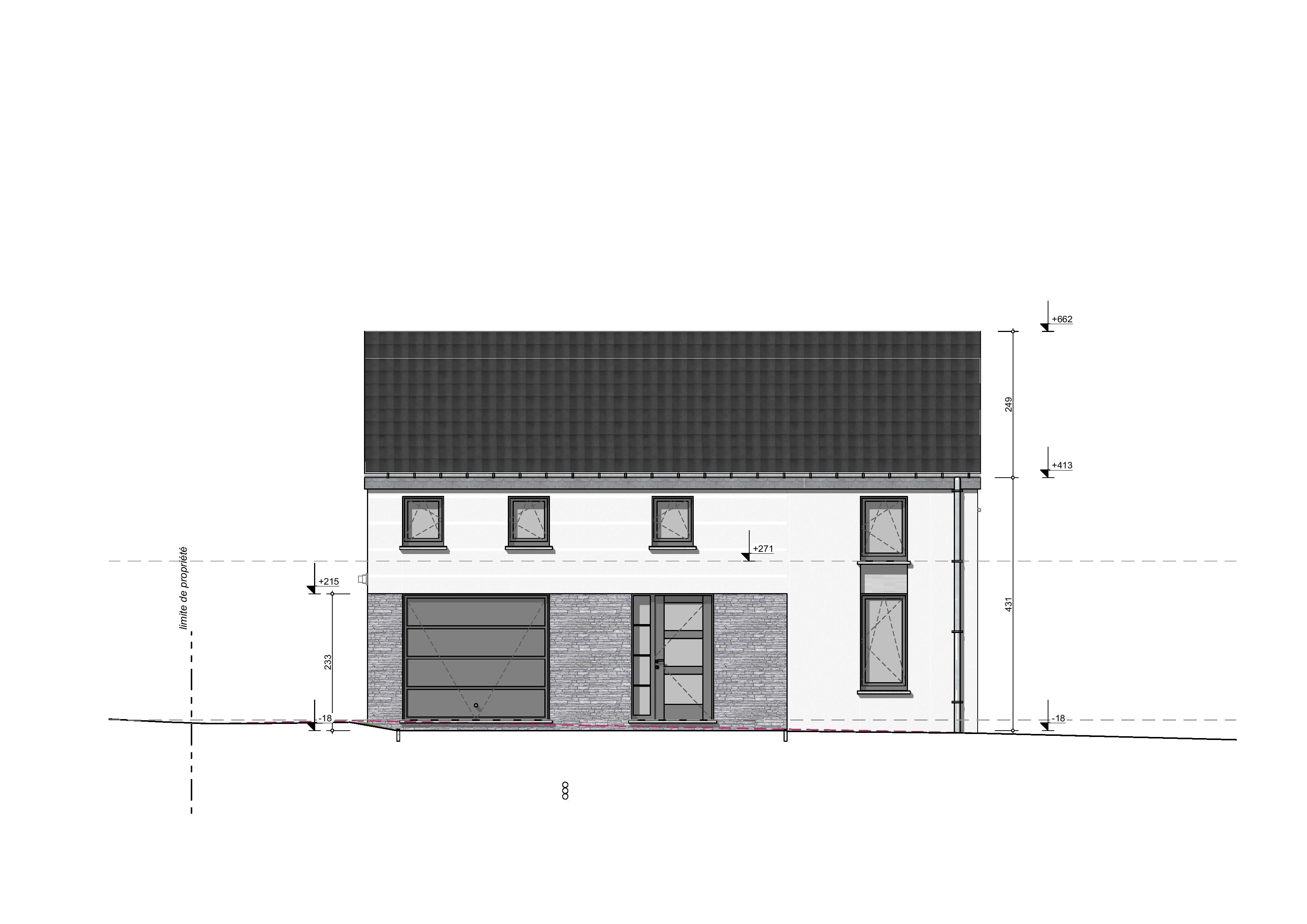
Cette maison se compose au rez-de-chaussée d’un hall d’entrée, d’un WC séparé, d’un séjour avec espace cuisine ouvert et d’un garage avec coin buanderie.
A l’étage, vous trouverez un lumineux hall de nuit donnant accès à 3 belles chambres dont une avec espace dressing et une salle de douche (douche 140/90, meuble vasque, WC).

Profitez de son magnifique terrain de 24 ares.

Prix hors frais : 355 500€
La TVA et les frais de notaire sont estimés à 70 000€

Ce qui sera compris : le terrain et la maison (le gros-oeuvre, les châssis, la toiture, le plafonnage, le carrelage RDC, les portes intérieures et l'escalier, la salle d’eau et wc, l'électricité, l'installation de panneaux photovoltaïques et le chauffage) et une garantie de 10 ans.

Ce projet vous intéresse ? Contactez-nous vite au 061/22.81.93 ou j.cluentius@maisonsbaijot.com

Infos du terrain

Faire offre à partir de 355 500 € HF*
Adresse Rue de Banière
Région SAINT-MARD (VIRTON)
Province Luxembourg
Superficie du terrain 2444 m²
Contactez Jimmy au 0483/01.06.15
* Hors frais et hors TVA

Informations techniques

Type Prêt à construire
Façades 4 façades
Isolation des murs 10 cm de polyuréthane.
Isolation du sol 10 cm de polyuréthane.
Isolation toiture 22cm de laine minérale.
Superficie 145 m²
Orientation S
Type de chauffage Chauffage central gaz y compris pour la production d'eau chaude sanitaire.
Type de châssis Châssis en PVC, double vitrage super isolant, porte de garage sectionnelle isolée.
Garantie Le bâtiment est garanti 10 ans.
Installation éléctrique L'installation électrique à un certificat de conformité valable 25 ans.

Composition du bien

Hall d'entrée Oui
Séjour Oui
Cuisine Oui
Salle à manger Oui
WC 2 WC
Hall de nuit Oui
Nombre de chambres 3 chambres
Dressing Oui
Salle de douche Oui
Garage Oui
Jardin Oui

Discutons de votre projet

Vous avez une (ou plusieurs) question(s), vous souhaitez des renseignements complémentaires ou parler de votre futur projet ?
Nous sommes à votre écoute, sans engagement !

Fixer un rendez-vous

Maisons Baijot

Chez Maisons Baijot, nous aimons penser que nous ne construisons pas que des maisons clé sur porte. Nous bâtissons des lieux de vie, de ceux où les souvenirs se créent et se transmettent, où les moments se vivent et se partagent. Des maisons où des enfants grandissent, où des couples vieillissent, où l’on se dispute, où l’on se réconcilie, des maisons où l’on fête des anniversaires, des naissances, des mariages, des diplômes, des départs à la retraite…

 

Pour concrétiser votre projet de construction, nous vous offrons un large choix d’idées de plans pour trouver le style de maison qui conviendra parfaitement à vos envies et à votre budget. Toutes ces options sont bien entendu souples et personnalisables pour réaliser la construction d’une maison qui vous ressemble.

 

Bienvenue dans l’Univers Maisons Baijot.