DAUSSOULX 1

157
3
2
Faire offre à partir de
404 000 € HF*
Prix global
* Hors frais et hors TVA

Descriptif

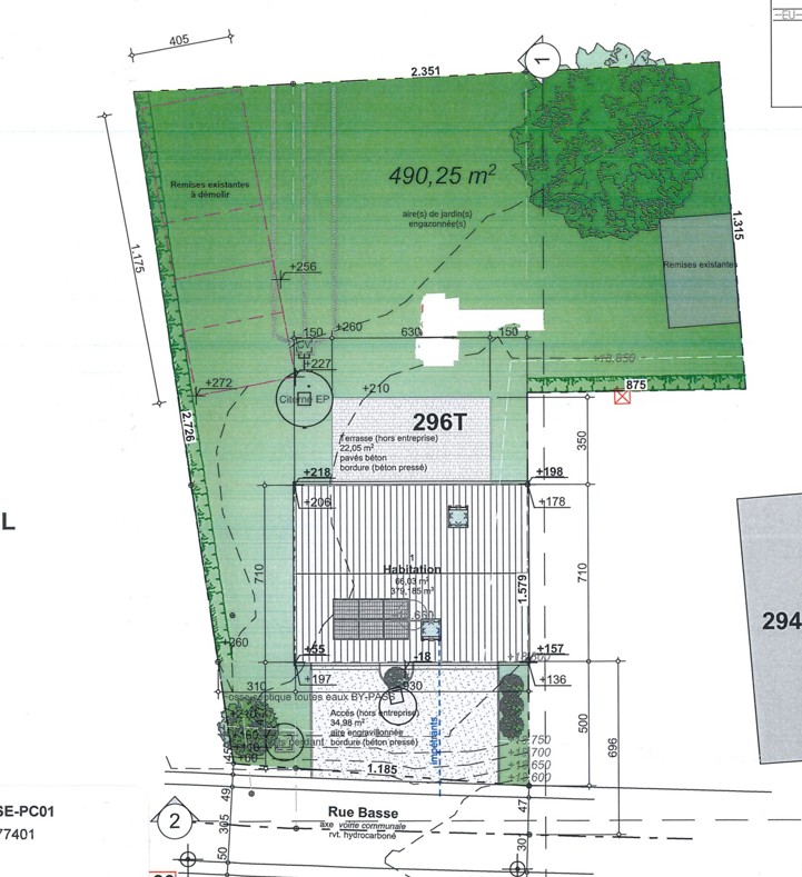
Située à Daussoulx, cette maison 4 façades bénéficie d’un cadre de vie calme et verdoyant, idéal pour les amateurs de tranquillité. Implantée dans un quartier résidentiel paisible, elle offre un environnement propice à la détente tout en restant proche des commerces, écoles et services de proximité. Érigée sur un terrain d’environ 4 ares, elle représente un lieu de vie harmonieux, alliant confort, nature et praticité au quotidien.

Cette maison se compose :

Au rez-de-chaussée :
• Garage
• Buanderie
• Cave
• Hall

Au premier étage :
• Hall d’entrée avec WC indépendant
• Séjour lumineux ouvert sur la cuisine
• Cuisine
• 1 salle de douche
• 1 chambre
• Jardin
• Terrasse de 15m²

Au deuxième étage :
• Pallier avec possibilité de mettre un bureau 
• 2 chambres
• 1 salle de bain avec baignoire, WC et lavabo
• Grenier

Confort et performance énergétique
• PEB A, excellente isolation
• Chauffage central pompe à chaleur
• Panneaux photovoltaïques

Située à Daussoulx, cette maison bénéficie d’un cadre de vie agréable dans un environnement calme, tout en restant proche des commodités du quotidien. Le village de Vedrin est accessible en seulement 4 minutes, tandis que le centre de Namur se rejoint en environ 15 minutes. Son emplacement est idéal pour les déplacements : les autoroutes E42 et E411 se trouvent à proximité, facilitant l’accès rapide aux villes et aux principaux axes routiers. Un arrêt de bus est situé à seulement 270 mètres, une école se trouve à 5 minutes et un magasin alimentaire est accessible à environ 2 km, offrant ainsi un cadre de vie pratique et bien desservi.

Prix et disponibilités

Faire offre à partir de 404 000 € HF*
Disponibilité A l'acte
Adresse Rue Basse 123 b
Région DAUSSOULX (NAMUR)
Province Namur
Superficie du terrain 0 m²
Année de construction 2026
PEB A
Contactez Yolaine au 0470103603
* Hors frais et hors TVA

Informations techniques

Type de bien Maison
Façades 4 façades
Superficie 157 m²
Orientation S
Type de chauffage Chauffage central gaz y compris pour la production d'eau chaude sanitaire.
Type de châssis Châssis en PVC, double vitrage super isolant, porte de garage sectionnelle isolée.
Isolation des murs 10 cm de polyuréthane.
Isolation du sol 10 cm de polyuréthane.
Isolation toiture 20cm de laine minérale.
Garantie Le bâtiment est garanti 10 ans.
Installation éléctrique L'installation électrique à un certificat de conformité valable 25 ans.

Composition du bien

Hall d'entrée Oui
Séjour Oui
Cuisine Non
Salle à manger Non
Buanderie Oui
Hall de nuit Oui
Chambres 3 chambres
Salles de bain Oui
Salle de douche Oui
Cave Oui
Garage Oui
Parking 2 places
Jardin Oui
Terrasse Oui
Cuisine équipée 1 cuisine équipée
Mezzanine Non
Véranda Non
Local à poubelle Non

Discutons de votre projet

Vous avez une (ou plusieurs) question(s), vous souhaitez des renseignements complémentaires ou parler de votre futur projet ?
Nous sommes à votre écoute, sans engagement !

Fixer un rendez-vous

Maisons Baijot

Chez Maisons Baijot, nous aimons penser que nous ne construisons pas que des maisons clé sur porte. Nous bâtissons des lieux de vie, de ceux où les souvenirs se créent et se transmettent, où les moments se vivent et se partagent. Des maisons où des enfants grandissent, où des couples vieillissent, où l’on se dispute, où l’on se réconcilie, des maisons où l’on fête des anniversaires, des naissances, des mariages, des diplômes, des départs à la retraite…

 

Pour concrétiser votre projet de construction, nous vous offrons un large choix d’idées de plans pour trouver le style de maison qui conviendra parfaitement à vos envies et à votre budget. Toutes ces options sont bien entendu souples et personnalisables pour réaliser la construction d’une maison qui vous ressemble.

 

Bienvenue dans l’Univers Maisons Baijot.