PERUWELZ 1

150
3
1
Faire offre à partir de
269 000 € HF*
Prix global
* Hors frais et hors TVA

Descriptif

Promo Batibouw uniquement du 02/02/2026 jusqu'au 22/02/2026 !

Ancien prix : 279.000 €
Nouveau prix : 269.000 €

Située dans un quartier résidentiel calme, cette maison neuve bénéficie d’un cadre agréable et d’une bonne accessibilité. La gare est à 9 minutes à pied, plusieurs lignes de bus desservent les environs, et les axes routiers sont facilement accessibles.

Les commodités se trouvent à proximité immédiate : école fondamentale et crèche à moins de 5 minutes, supermarché, pharmacie, médecin, boulangerie, banque et salle de sport à moins de 2 km.

Le bien, orienté Est côté terrasse, développe une surface habitable de +/- 150 m² sur un terrain de +/- 4,71 ares.
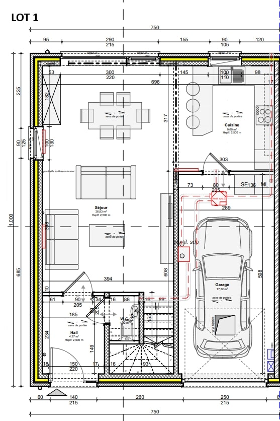
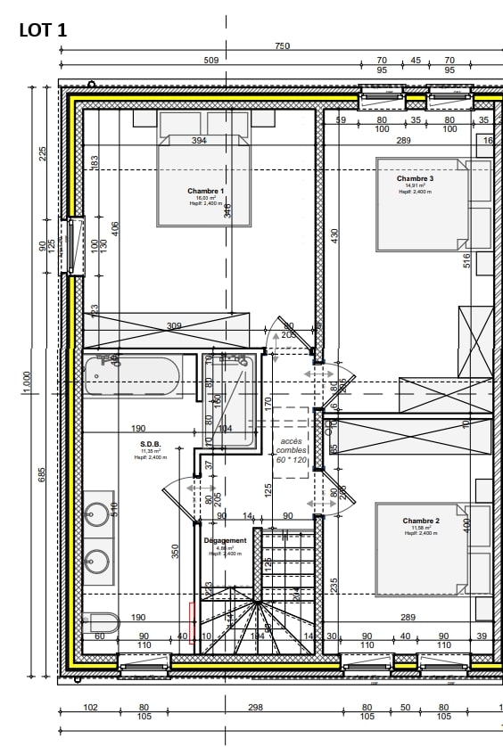
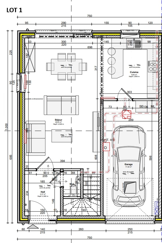
Il s’agit d’une maison 3 façades avec garage/buanderie 1 voiture de +/- 17,5 m², terrasse de +/- 14 m² et grenier de +/- 30 m².

Le rez-de-chaussée comprend un hall d’entrée avec WC, un séjour +/- 26 m² ouvert sur une cuisine de +/- 10 m².

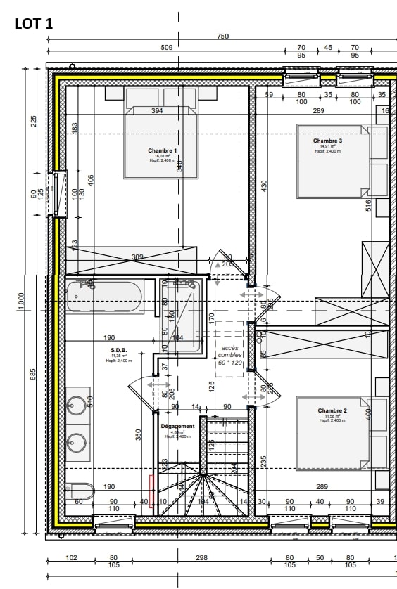
À l’étage, le hall de nuit dessert 3 chambres de +/- 16 m², +/- 15 m² et +/- 11,5 m², ainsi qu’une salle de bain de +/- 11,5 m².

Le système de chauffage est assuré au gaz. L’installation comprend 6 panneaux photovoltaïques. Le bien présente une performance énergétique de niveau A, garantissant un confort optimal et une gestion énergétique efficiente.

Prix et disponibilités

Faire offre à partir de 269 000 € HF*
Disponibilité à l'acte
Adresse Rue Victor Cretteur
Région PERUWELZ
Province Hainaut
Superficie du terrain 471 m²
Année de construction 2026
PEB A
Contactez Quentin au 0486241841
* Hors frais et hors TVA

Informations techniques

Type de bien Maison
Façades 3 façades
Superficie 150 m²
Superficie du terrain 471 m²
Orientation E
Type de chauffage Chauffage central gaz y compris pour la production d'eau chaude sanitaire.
Type de châssis Châssis en PVC, double vitrage super isolant, porte de garage sectionnelle isolée.
Isolation des murs 10 cm de polyuréthane.
Isolation du sol 10 cm de polyuréthane.
Isolation toiture 22cm de laine minérale.
Garantie Le bâtiment est garanti 10 ans.
Installation éléctrique L'installation électrique à un certificat de conformité valable 25 ans.

Composition du bien

Hall d'entrée Oui
Séjour Oui
Cuisine Non
Salle à manger Oui
WC 2 WC
Hall de nuit Oui
Chambres 3 chambres
Salles de bain Oui
Grenier Oui
Garage Non
Parking 2 places
Jardin Oui
Terrasse Oui
Cuisine équipée 1 cuisine équipée
Mezzanine Non
Garage avec buanderie Oui
Véranda Non
Local à poubelle Non

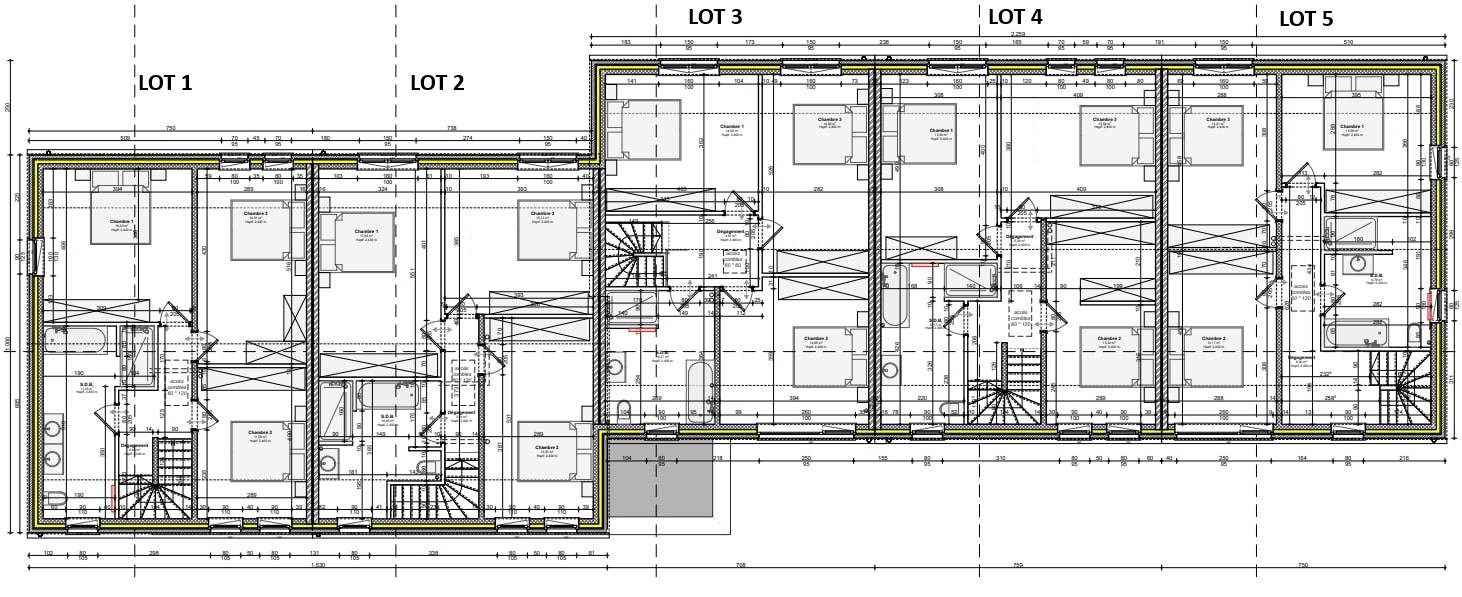
Lotissement de PERUWELZ

Découvrez le lotissement

Discutons de votre projet

Vous avez une (ou plusieurs) question(s), vous souhaitez des renseignements complémentaires ou parler de votre futur projet ?
Nous sommes à votre écoute, sans engagement !

Fixer un rendez-vous

Maisons Baijot

Chez Maisons Baijot, nous aimons penser que nous ne construisons pas que des maisons clé sur porte. Nous bâtissons des lieux de vie, de ceux où les souvenirs se créent et se transmettent, où les moments se vivent et se partagent. Des maisons où des enfants grandissent, où des couples vieillissent, où l’on se dispute, où l’on se réconcilie, des maisons où l’on fête des anniversaires, des naissances, des mariages, des diplômes, des départs à la retraite…

 

Pour concrétiser votre projet de construction, nous vous offrons un large choix d’idées de plans pour trouver le style de maison qui conviendra parfaitement à vos envies et à votre budget. Toutes ces options sont bien entendu souples et personnalisables pour réaliser la construction d’une maison qui vous ressemble.

 

Bienvenue dans l’Univers Maisons Baijot.