HAUT-FAYS 2

162
4
2
Faire offre à partir de
255 000 € HF*
Prix global
* Hors frais et hors TVA

Descriptif

Promo Batibouw uniquement du 02/02/2026 jusqu'au 22/02/2026 !

Ancien prix : 265.000 €
Nouveau prix : 255.000 €

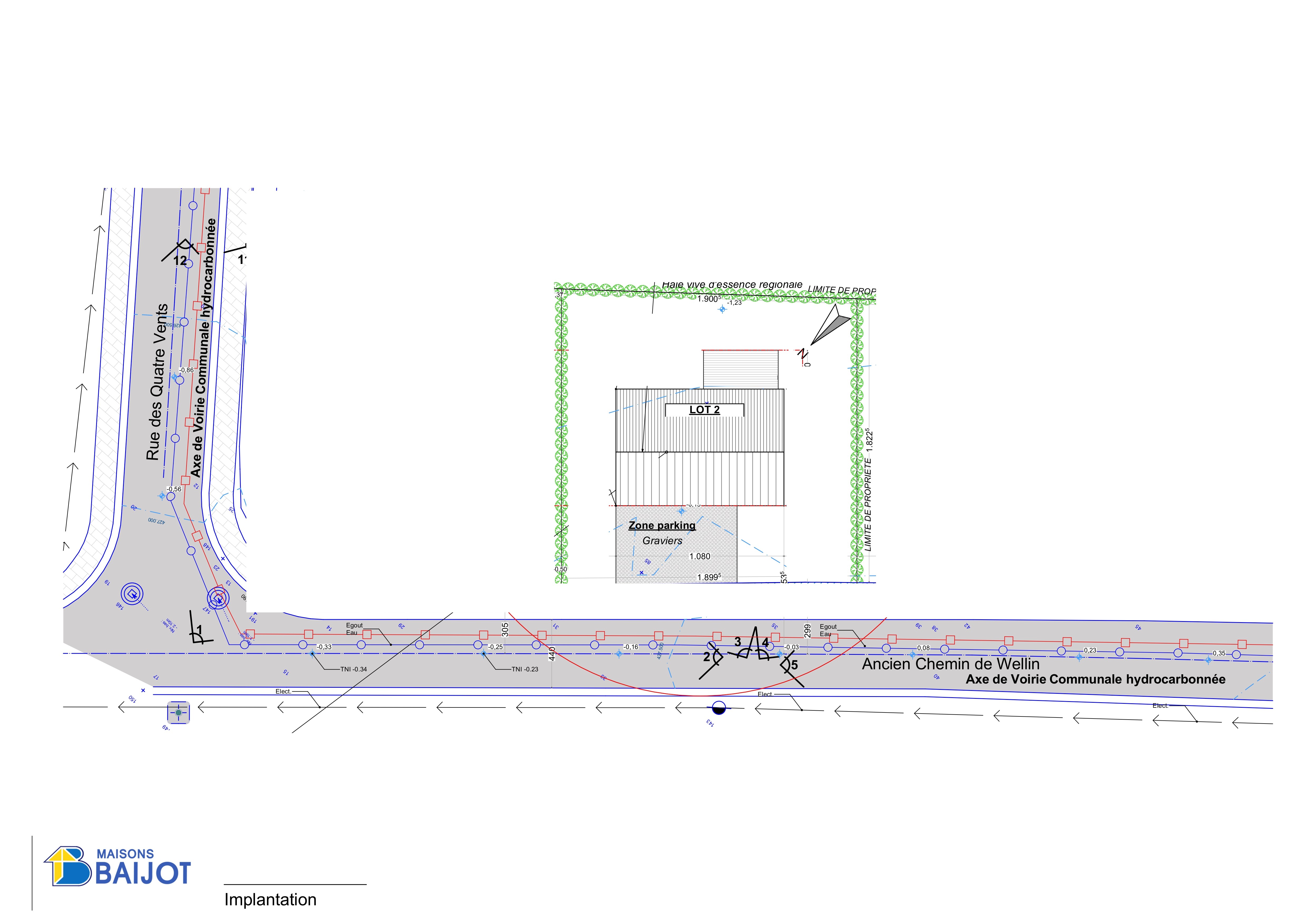
Cette maison neuve est implantée dans un environnement résidentiel calme, au sein du village de Haut-Fays, commune de Daverdisse. L’ambiance y est paisible, avec une desserte locale facilitée par des voiries bien entretenues.

Les arrêts de bus se situent à quelques minutes à pied. Les axes routiers principaux sont accessibles en 10 minutes, offrant des liaisons efficaces vers Wellin et Libin. Une école fondamentale et une crèche sont présentes dans le village. Un médecin généraliste et une pharmacie se trouvent à moins de 10 minutes en voiture. Un supermarché, une boulangerie, une banque ainsi qu’une salle de sport sont accessibles en 10 à 15 minutes.

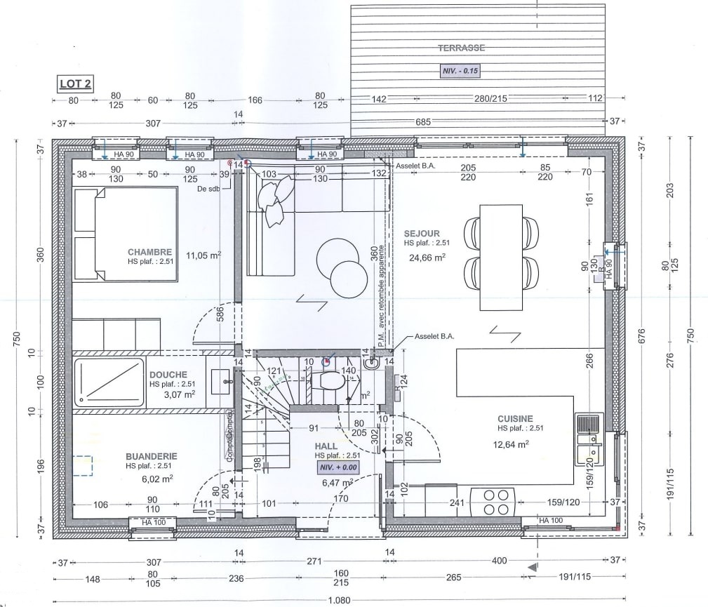
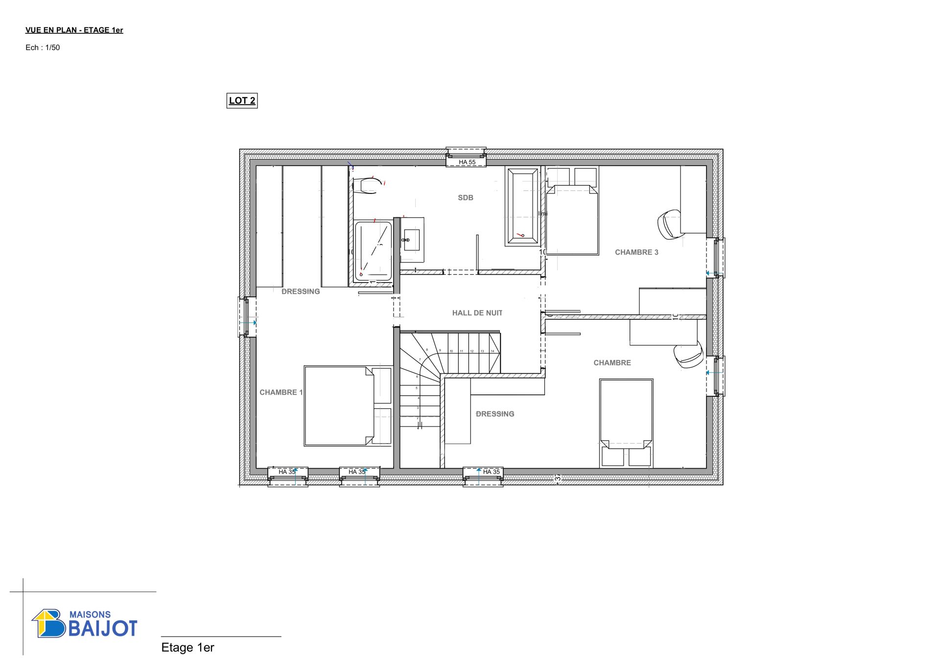
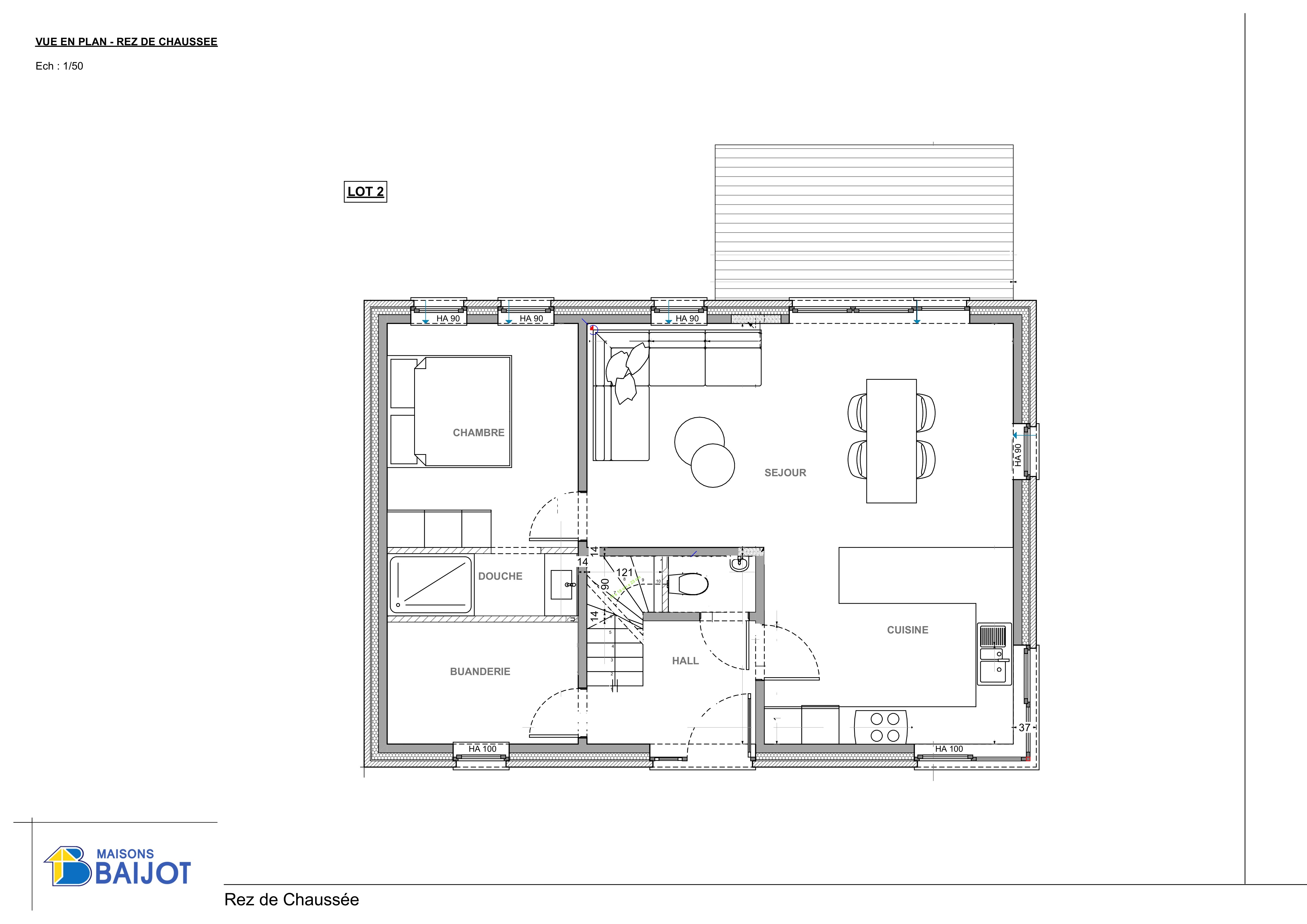
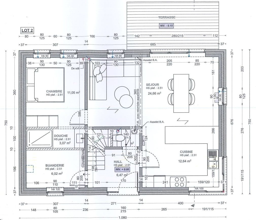
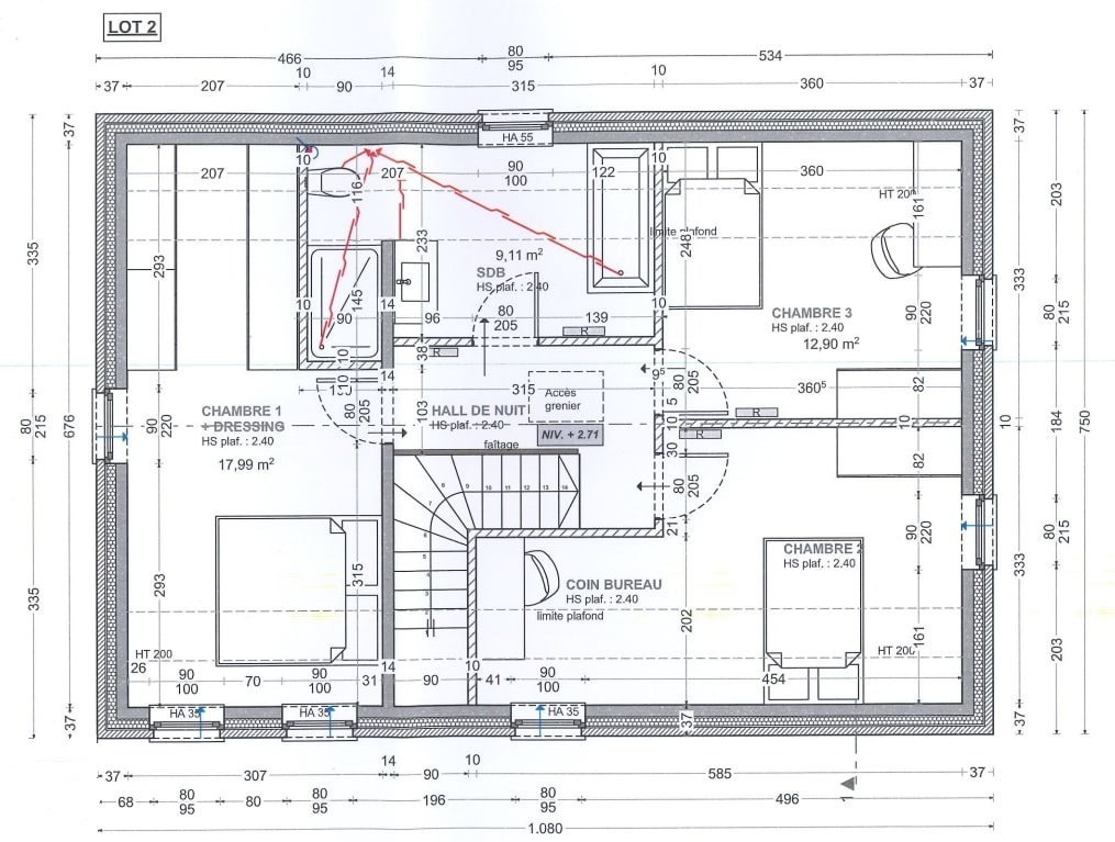
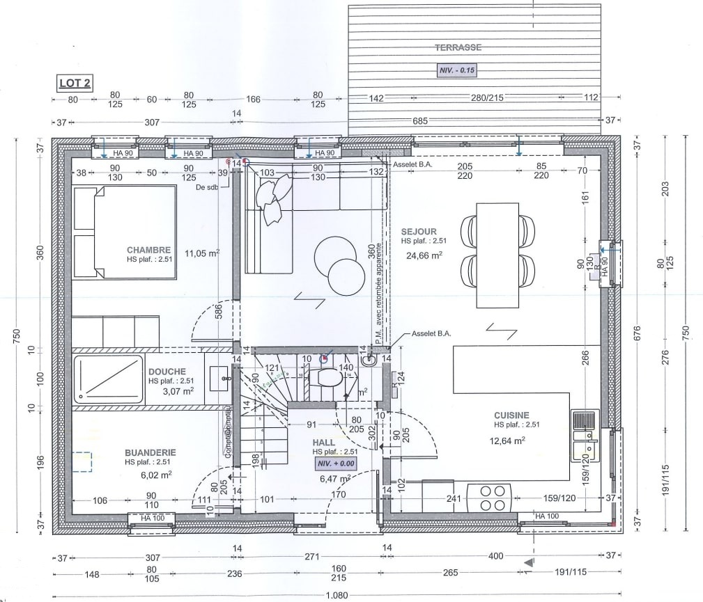
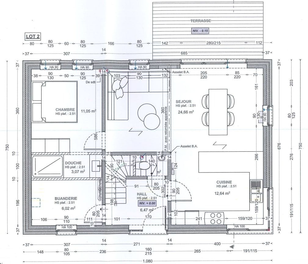
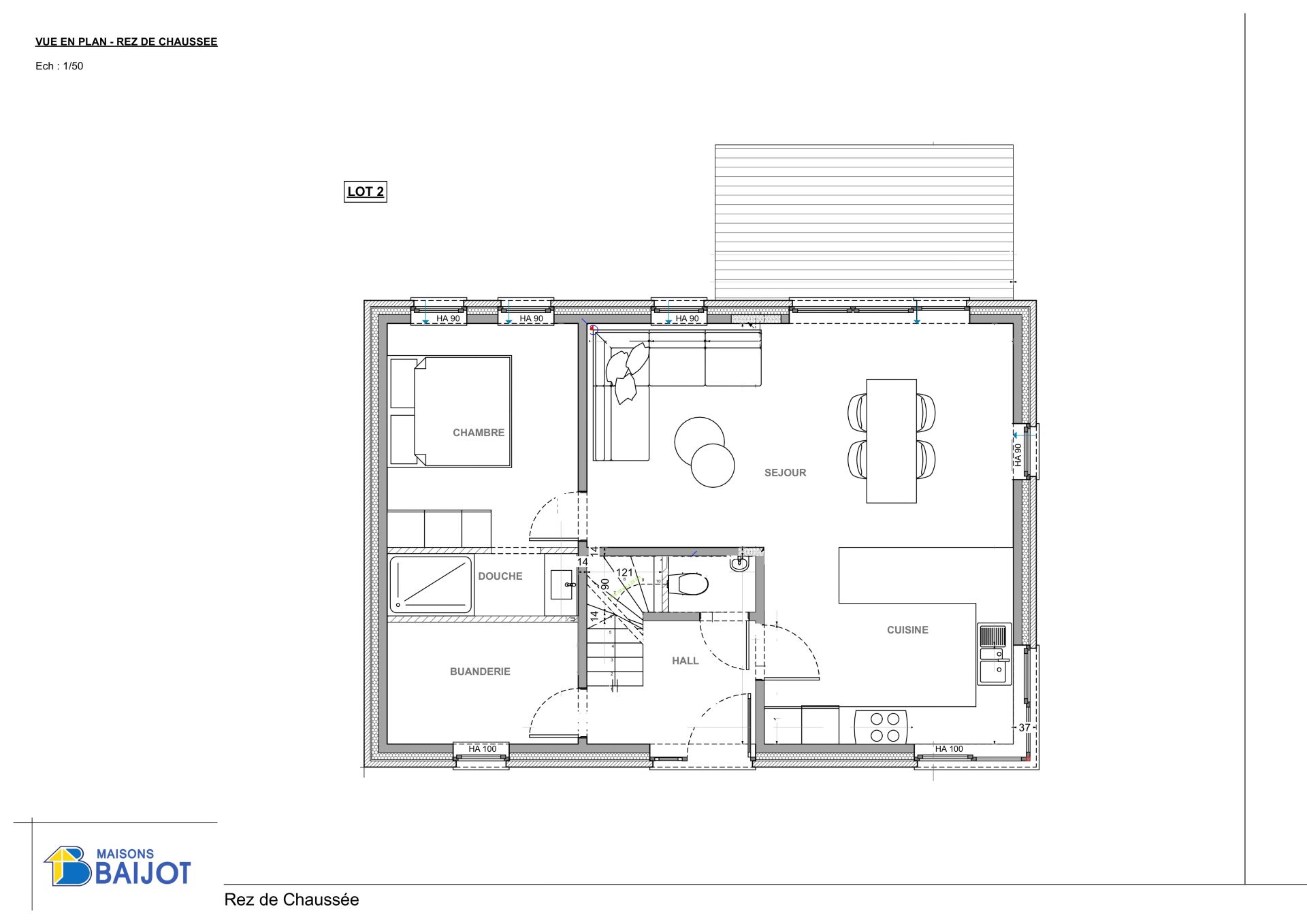
La maison, libre sur 4 façades, développe une surface habitable de +/- 162 m² sur un terrain de +/- 3,44 ares. La terrasse, orientée sud-est, offre une surface de +/- 15 m².

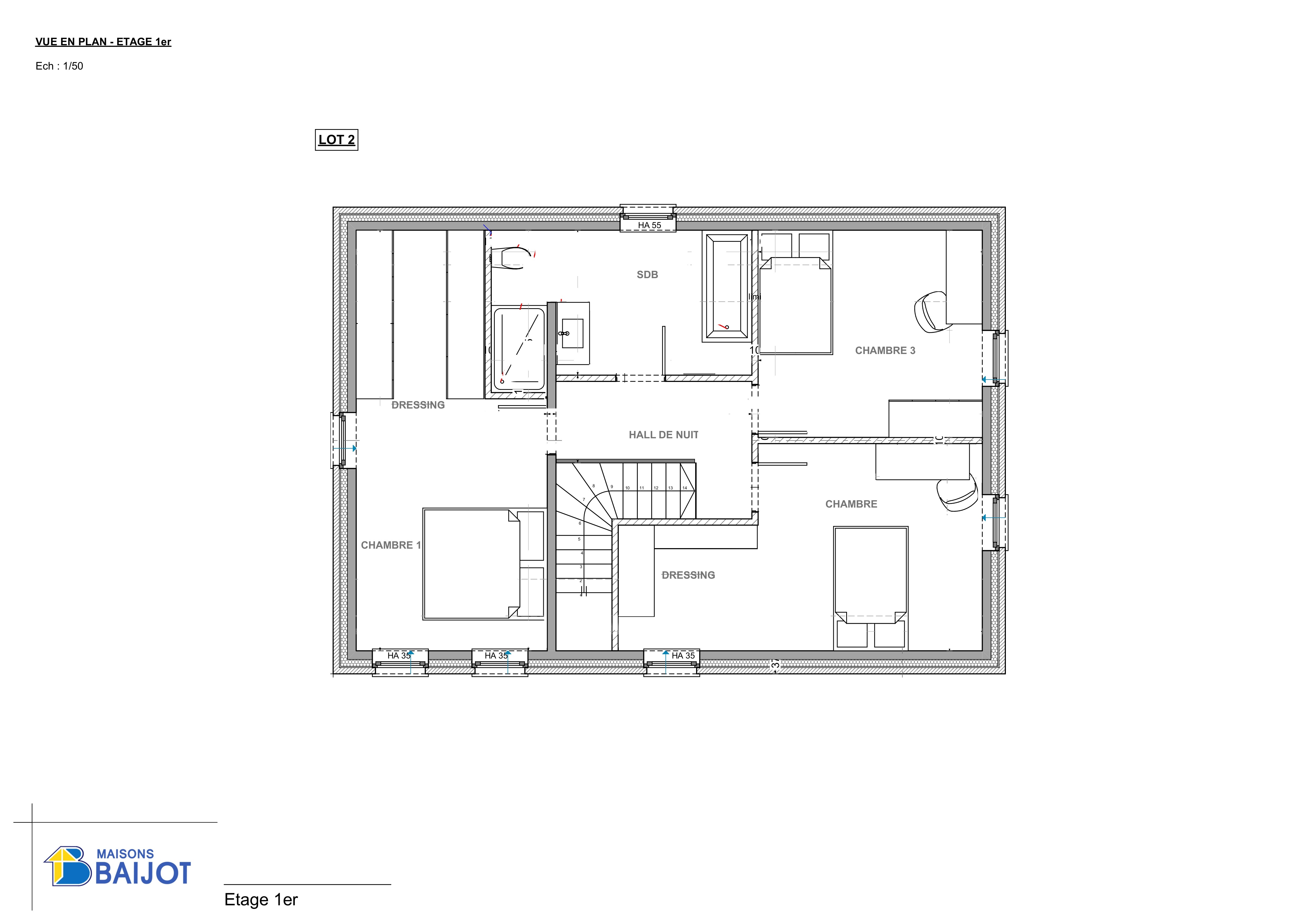
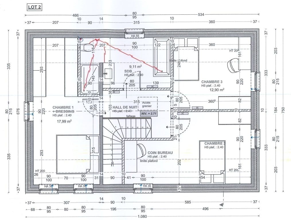
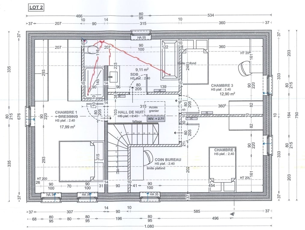
L’intérieur comprend un séjour de +/- 24,5 m², une cuisine de +/- 12,5 m² et une buanderie de +/- 6 m². Le rez-de-chaussée dispose également d’une chambre de +/- 11 m² et d’une salle de douche de +/- 3 m². À l’étage, on trouve une chambre parentale avec dressing de +/- 18 m², deux autres chambres de +/- 16 m² et +/- 13 m², ainsi qu’une salle de bain de +/- 9 m².

Le chauffage est assuré par une installation pompe à chaleur + chauffage sol. La maison dispose panneaux photovoltaïques, garantissant une excellente performance énergétique attestée par un certificat PEB de classe A. Ce bien allie fonctionnalité, confort moderne et efficience énergétique dans un environnement agréable.

Prix et disponibilités

Faire offre à partir de 255 000 € HF*
Disponibilité à l'acte
Adresse ANCIEN CHEMIN de Wellin
Région HAUT-FAYS (DAVERDISSE)
Province Luxembourg
Superficie du terrain 344 m²
Année de construction 2026
PEB A
Contactez Yolaine au 0470103603
* Hors frais et hors TVA

Informations techniques

Type de bien Maison
Façades 4 façades
Superficie 162 m²
Superficie du terrain 344 m²
Orientation SE
Type de chauffage Pompe à chaleur
Type de châssis Châssis en PVC, double vitrage super isolant.
Isolation des murs 10 cm de polyuréthane.
Isolation du sol 10 cm de polyuréthane.
Isolation toiture 22cm de laine minérale.
Garantie Le bâtiment est garanti 10 ans.
Installation éléctrique L'installation électrique à un certificat de conformité valable 25 ans.

Composition du bien

Hall d'entrée Oui
Séjour Oui
Cuisine Non
Salle à manger Oui
WC 2 WC
Buanderie Oui
Dressing Oui
Hall de nuit Oui
Chambres 4 chambres
Salles de bain Oui
Salle de douche Oui
Garage Non
Parking 2 places
Jardin Oui
Terrasse Oui
Cuisine équipée 1 cuisine équipée
Mezzanine Non
Véranda Non
Local à poubelle Non

Lotissement de HAUT-FAYS

Superbe lotissement de 6 lots - PLEIN SUD

Découvrez le lotissement

Discutons de votre projet

Vous avez une (ou plusieurs) question(s), vous souhaitez des renseignements complémentaires ou parler de votre futur projet ?
Nous sommes à votre écoute, sans engagement !

Fixer un rendez-vous

Maisons Baijot

Chez Maisons Baijot, nous aimons penser que nous ne construisons pas que des maisons clé sur porte. Nous bâtissons des lieux de vie, de ceux où les souvenirs se créent et se transmettent, où les moments se vivent et se partagent. Des maisons où des enfants grandissent, où des couples vieillissent, où l’on se dispute, où l’on se réconcilie, des maisons où l’on fête des anniversaires, des naissances, des mariages, des diplômes, des départs à la retraite…

 

Pour concrétiser votre projet de construction, nous vous offrons un large choix d’idées de plans pour trouver le style de maison qui conviendra parfaitement à vos envies et à votre budget. Toutes ces options sont bien entendu souples et personnalisables pour réaliser la construction d’une maison qui vous ressemble.

 

Bienvenue dans l’Univers Maisons Baijot.