BERZEE 2

162
4
1
Faire offre à partir de
340 000 € HF*
Prix global
* Hors frais et hors TVA

Descriptif

Promo Batibouw uniquement du 02/02/2026 jusqu'au 22/02/2026 !

Ancien prix : 355.000 €
Nouveau prix : 340.000 €

Située dans un quartier calme et convivial avec une proximité immédiate aux commodités essentielles, cette habitation offre un cadre de vie pratique et agréable.
La gare de Walcourt se trouve à moins de 10 minutes en voiture. Les axes routiers principaux, tels que la E42, sont accessibles en moins de 15 minutes, facilitant les déplacements vers les villes voisines. Les écoles fondamentales, crèches, ainsi que les cabinets médicaux et pharmacies sont situés à moins de 5 minutes en voiture. Le centre commercial local, avec supermarché, boulangerie, banque et salle de sport, se trouve à environ 3 kilomètres, soit une dizaine de minutes en voiture.

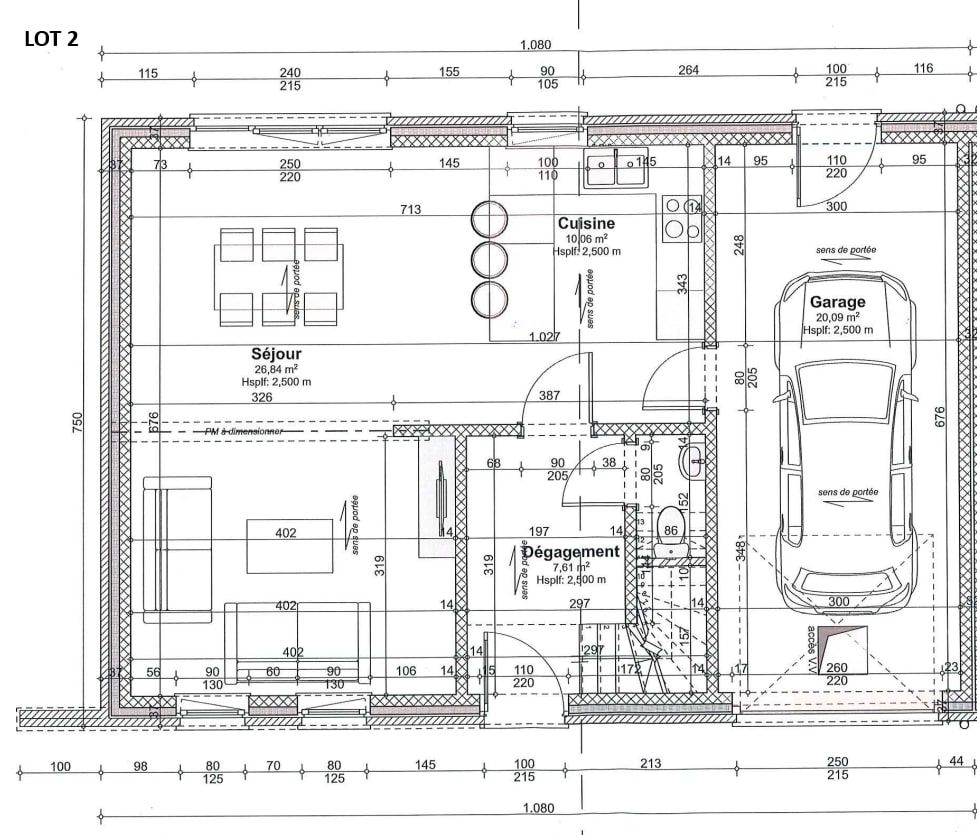
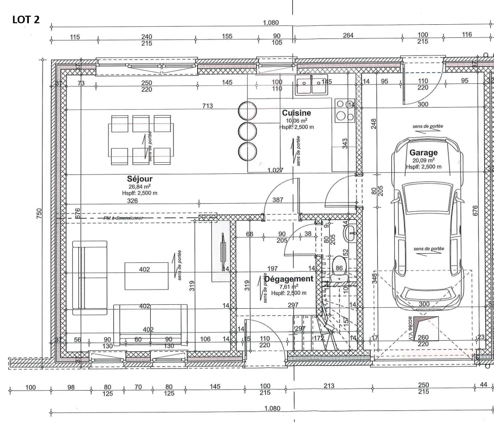
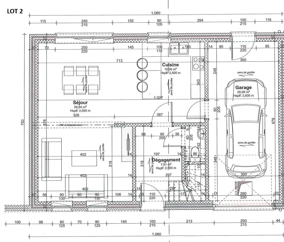
Cette maison, orientée Sud-Est, offrant une surface totale habitable d’environ 162 m², est construite sur un terrain de 7,11 ares. La maison possède 3 façades, avec une terrasse de +/- 14 m².

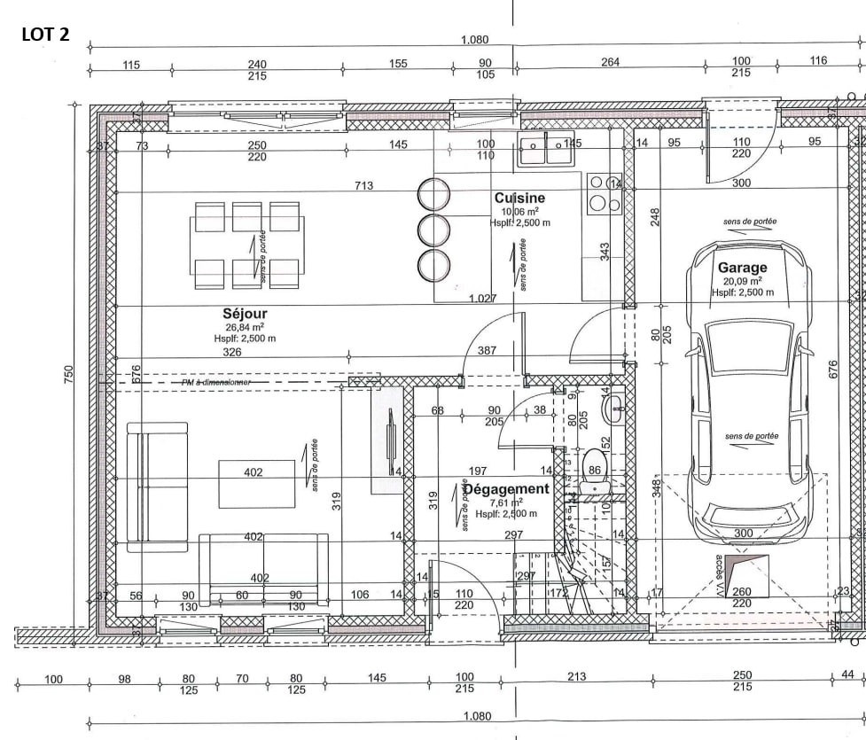
L’intérieur se compose d’un hall d’entrée avec WC, menant à un séjour lumineux de +/- 27 m², ouvert sur une cuisine de +/- 10 m². Un garage/buanderie de 1 voiture de +/- 20 m² complète le rez-de-chaussée.

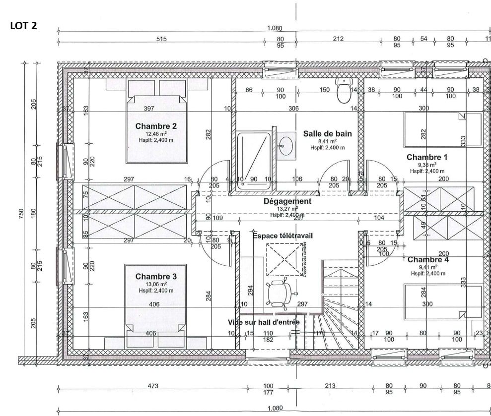
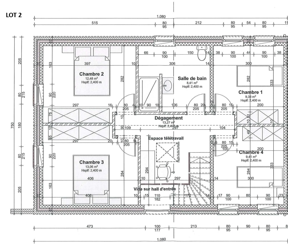
A l’étage, 4 chambres qui font respectivement +/- 13 m², +/- 12 m² et deux de +/- 10 m² ainsi qu'une salle de douche de +/- 8,5 m².

Cette maison est équipée d’une chaudière à condensation au gaz à haut rendement, de 6 panneaux photovoltaïques et offre un PEB A garantissant confort, économies d'énergie et respect de l'environnement assurant un cadre de vie agréable et économe.

Prix et disponibilités

Faire offre à partir de 340 000 € HF*
Disponibilité à l'acte
Adresse Rue Trieux des Sarts
Région BERZEE (WALCOURT)
Province Namur
Superficie du terrain 711 m²
Année de construction 2026
PEB A
Contactez Quentin au 0486241841
* Hors frais et hors TVA

Informations techniques

Type de bien Maison
Façades 3 façades
Superficie 162 m²
Superficie du terrain 711 m²
Orientation SE
Type de chauffage Chauffage central gaz y compris pour la production d'eau chaude sanitaire.
Type de châssis Châssis en PVC, double vitrage super isolant, porte de garage sectionnelle isolée.
Isolation des murs 10 cm de polyuréthane.
Isolation du sol 10 cm de polyuréthane.
Isolation toiture 22cm de laine minérale.
Garantie Le bâtiment est garanti 10 ans.
Installation éléctrique L'installation électrique à un certificat de conformité valable 25 ans.

Composition du bien

Hall d'entrée Oui
Séjour Oui
Cuisine Non
Salle à manger Oui
WC 2 WC
Hall de nuit Oui
Chambres 4 chambres
Salle de douche Oui
Garage Non
Parking 2 places
Jardin Oui
Terrasse Oui
Cuisine équipée 1 cuisine équipée
Mezzanine Non
Garage avec buanderie Oui
Véranda Non
Local à poubelle Non

Lotissement de BERZEE

Découvrez le lotissement

Discutons de votre projet

Vous avez une (ou plusieurs) question(s), vous souhaitez des renseignements complémentaires ou parler de votre futur projet ?
Nous sommes à votre écoute, sans engagement !

Fixer un rendez-vous

Maisons Baijot

Chez Maisons Baijot, nous aimons penser que nous ne construisons pas que des maisons clé sur porte. Nous bâtissons des lieux de vie, de ceux où les souvenirs se créent et se transmettent, où les moments se vivent et se partagent. Des maisons où des enfants grandissent, où des couples vieillissent, où l’on se dispute, où l’on se réconcilie, des maisons où l’on fête des anniversaires, des naissances, des mariages, des diplômes, des départs à la retraite…

 

Pour concrétiser votre projet de construction, nous vous offrons un large choix d’idées de plans pour trouver le style de maison qui conviendra parfaitement à vos envies et à votre budget. Toutes ces options sont bien entendu souples et personnalisables pour réaliser la construction d’une maison qui vous ressemble.

 

Bienvenue dans l’Univers Maisons Baijot.