JUMET 2

144
3
1
Faire offre à partir de
324 000 € HF*
Prix global
* Hors frais et hors TVA

Descriptif

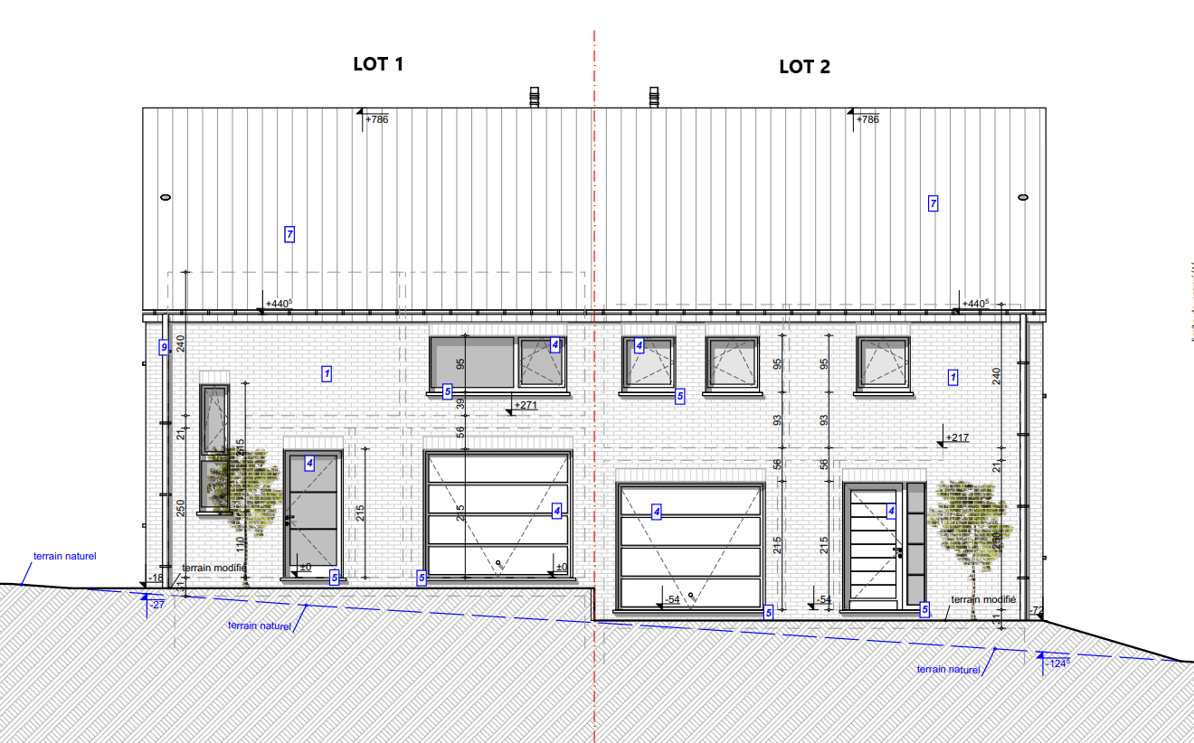
Maison familiale neuve 3 façades à Jumet (Charleroi)

Située à Jumet, cette charmante maison trois façades se trouve dans un quartier résidentiel calme, tout en restant à proximité immédiate des commodités. Implantée sur un terrain de +/- 4,5 ares, elle offre un cadre de vie paisible sans renoncer à la proximité du centre-ville.

Vivez à Jumet, dans un environnement agréable alliant cadre résidentiel et proximité du centre-ville. Le quartier bénéficie d’espaces verts accessibles et de zones de détente propices aux moments en famille. Parcs et sentier de promenade sont facilement accessibles à moins de 20min. À pieds, tout en profitant de la proximité des commerces, écoles et axes routiers. Un lieu idéal pour concilier qualité de vie, tranquillité et quotidien pratique.

Cette maison se compose :

Au rez-de-chaussée :
• Hall d'entrée accueillant avec WC indépendant
• Séjour lumineux ouvert sur la cuisine 
• Garage/ Buanderie
• Carport
• Jardin

À l’étage :
• Hall de nuit
• 1 chambre principale avec dressing
• 2 chambres
• 1 salle de bain complète avec douche, baignoire, WC et lavabo

Confort et performance énergétique
• PEB A, isolation renforcée
• Chaudière à condensation au gaz à haut rendement
• Panneaux photovoltaïques

Idéalement située à Jumet, cette maison bénéficie d’une localisation stratégique alliant tranquillité résidentielle et excellente accessibilité. À moins de 10 minutes du centre de Charleroi et de la gare, elle est très bien desservie par les transports en commun, facilitant les déplacements quotidiens. Sa proximité immédiate des grands axes routiers tels que la E420, la E42 et la N5 permet un accès rapide aux villes voisines et aux principaux pôles d’activité, offrant ainsi un cadre de vie pratique et confortable pour toute la famille.

Offrez-vous un quotidien agréable et confortable dans cette maison familiale 3 façades idéalement située à Jumet.

Prix et disponibilités

Faire offre à partir de 324 000 € HF*
Disponibilité à l'acte
Adresse Rue de l'Etoile
Région JUMET (CHARLEROI)
Province Hainaut
Superficie du terrain 0 m²
Année de construction 2026
PEB A
Contactez Quentin au 0486241841
* Hors frais et hors TVA

Informations techniques

Type de bien Maison
Façades 3 façades
Superficie 144 m²
Orientation S
Type de chauffage Chauffage central gaz y compris pour la production d'eau chaude sanitaire.
Type de châssis Châssis en PVC, double vitrage super isolant, porte de garage sectionnelle isolée.
Isolation des murs 10 cm de polyuréthane.
Isolation du sol 10 cm de polyuréthane.
Isolation toiture 20 cm de laine minérale.
Garantie Le bâtiment est garanti 10 ans.
Installation éléctrique L'installation électrique à un certificat de conformité valable 25 ans.

Composition du bien

Hall d'entrée Oui
Séjour Oui
Cuisine Non
Salle à manger Oui
WC 2 WC
Dressing Oui
Hall de nuit Oui
Chambres 3 chambres
Salles de bain Oui
Garage Non
Parking Oui
Jardin Oui
Terrasse Oui
Cuisine équipée 1 cuisine équipée
Mezzanine Non
Garage avec buanderie Oui
Véranda Non
Local à poubelle Non

Lotissement de JUMET

Découvrez le lotissement

Ces biens font partie de la même promotion

Discutons de votre projet

Vous avez une (ou plusieurs) question(s), vous souhaitez des renseignements complémentaires ou parler de votre futur projet ?
Nous sommes à votre écoute, sans engagement !

Fixer un rendez-vous

Maisons Baijot

Chez Maisons Baijot, nous aimons penser que nous ne construisons pas que des maisons clé sur porte. Nous bâtissons des lieux de vie, de ceux où les souvenirs se créent et se transmettent, où les moments se vivent et se partagent. Des maisons où des enfants grandissent, où des couples vieillissent, où l’on se dispute, où l’on se réconcilie, des maisons où l’on fête des anniversaires, des naissances, des mariages, des diplômes, des départs à la retraite…

 

Pour concrétiser votre projet de construction, nous vous offrons un large choix d’idées de plans pour trouver le style de maison qui conviendra parfaitement à vos envies et à votre budget. Toutes ces options sont bien entendu souples et personnalisables pour réaliser la construction d’une maison qui vous ressemble.

 

Bienvenue dans l’Univers Maisons Baijot.