ORMEIGNIES 2

153
3
1
Faire offre à partir de
351 000 € HF*
Prix global
* Hors frais et hors TVA

Descriptif

Dans un quartier résidentiel calme d’Ormeignies, cette maison neuve s’intègre dans un environnement équilibré, à proximité immédiate de la ville d’Ath. Le cadre est résidentiel, peu passant, et apprécié pour sa tranquillité.

L’arrêt de bus le plus proche se trouve à 100 m. La gare d’Ath est accessible en 10 minutes en voiture. Les axes routiers principaux, dont l’E429, sont situés à moins de 10 minutes. L’école fondamentale du village est à courte distance. Les crèches, cabinets médicaux et pharmacies se trouvent à Ath, également à 10 minutes. Le supermarché local est situé à 2 minutes. On retrouve boulangerie, banque et salle de sport dans un rayon de 10 minutes.

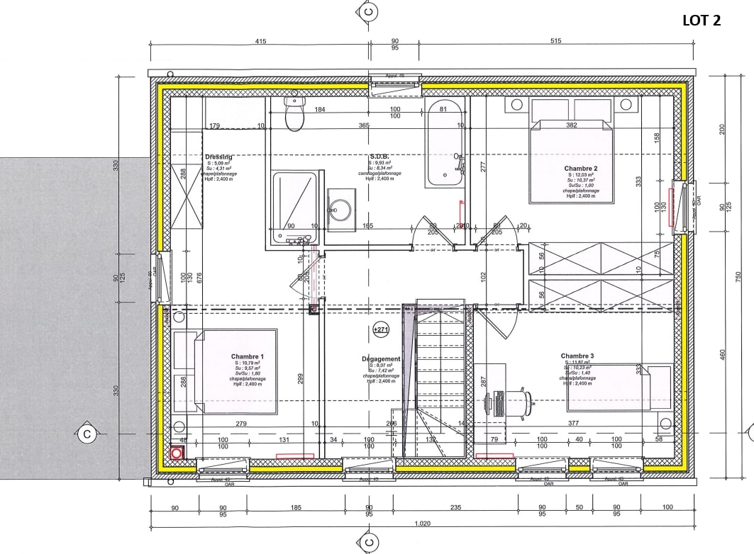
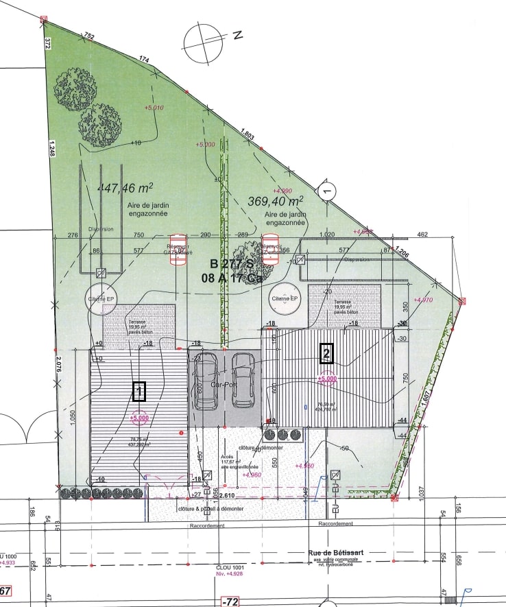
La maison, construite sur un terrain de 3,69 ares, offre une surface habitable de +/-153 m². Elle est libre sur les 4 façades. La terrasse de +/-14 m² est orientée à l’ouest. Le bien comprend un carport de +/-15 m².

L’agencement intérieur se compose au rez-de-chaussée d’un hall d’entrée, d’un séjour de +/-34,5 m², d’une cuisine de +/-9 m², d’une buanderie de +/-9,5 m² et d’un WC séparé. À l’étage, on retrouve 1 chambre parentale de +/-16 m² avec dressing, 2 chambres de +/-12 m², une salle de bain de +/-10 m² ainsi qu’un hall de nuit.

Cette maison est équipée d’une chaudière à condensation au gaz à haut rendement, de 6 panneaux photovoltaïques et offre un PEB A garantissant confort, économies d'énergie et respect de l'environnement assurant un cadre de vie agréable et économe

Prix et disponibilités

Faire offre à partir de 351 000 € HF*
Disponibilité à l'acte
Adresse Rue de Bétissart
Région ORMEIGNIES (ATH)
Province Hainaut
Superficie du terrain 370 m²
Année de construction 2026
PEB A
Contactez Quentin au 0486241841
* Hors frais et hors TVA

Informations techniques

Type de bien Maison
Façades 4 façades
Superficie 153 m²
Superficie du terrain 370 m²
Type de chauffage Chauffage central gaz y compris pour la production d'eau chaude sanitaire.
Type de châssis Châssis en PVC, double vitrage super isolant.
Isolation des murs 10 cm de polyuréthane.
Isolation du sol 10 cm de polyuréthane.
Isolation toiture 20 cm de laine minérale.
Garantie Le bâtiment est garanti 10 ans.
Installation éléctrique L'installation électrique à un certificat de conformité valable 25 ans.

Composition du bien

Hall d'entrée Oui
Séjour Oui
Cuisine Non
Salle à manger Oui
WC 2 WC
Buanderie Oui
Dressing Oui
Hall de nuit Oui
Chambres 3 chambres
Salles de bain Oui
Garage Non
Carport Oui
Parking 2 places
Jardin Oui
Terrasse Oui
Cuisine équipée 1 cuisine équipée
Mezzanine Non
Véranda Non
Local à poubelle Non

Lotissement de ORMEIGNIES

Découvrez le lotissement

Ces biens font partie de la même promotion

Discutons de votre projet

Vous avez une (ou plusieurs) question(s), vous souhaitez des renseignements complémentaires ou parler de votre futur projet ?
Nous sommes à votre écoute, sans engagement !

Fixer un rendez-vous

Maisons Baijot

Chez Maisons Baijot, nous aimons penser que nous ne construisons pas que des maisons clé sur porte. Nous bâtissons des lieux de vie, de ceux où les souvenirs se créent et se transmettent, où les moments se vivent et se partagent. Des maisons où des enfants grandissent, où des couples vieillissent, où l’on se dispute, où l’on se réconcilie, des maisons où l’on fête des anniversaires, des naissances, des mariages, des diplômes, des départs à la retraite…

 

Pour concrétiser votre projet de construction, nous vous offrons un large choix d’idées de plans pour trouver le style de maison qui conviendra parfaitement à vos envies et à votre budget. Toutes ces options sont bien entendu souples et personnalisables pour réaliser la construction d’une maison qui vous ressemble.

 

Bienvenue dans l’Univers Maisons Baijot.