LIGNE 2

163
4
2
Faire offre à partir de
339 000 € HF*
Prix global
* Hors frais et hors TVA

Descriptif

Promo Batibouw uniquement du 02/02/2026 jusqu'au 22/02/2026 !

Ancien prix : 349.000 €
Nouveau prix : 339.000 €

Implantée dans un quartier résidentiel tranquille de la commune d’Ath, cette maison neuve bénéficie d’un cadre de vie aéré, à proximité directe de la campagne et d’un réseau routier fluide. L’environnement est calme, familial et bien relié aux communes voisines.

Un arrêt de bus est situé à 500 m, la gare d’Ath est accessible en 12 minutes. Les grands axes routiers, dont la N56, se rejoignent en 6 minutes. Une école fondamentale se trouve à 600 m, une crèche à 4 minutes. Médecin généraliste et pharmacie dans un rayon de 2 km. Commerces, boulangerie, banque et salle de sport à moins de 10 minutes en voiture.

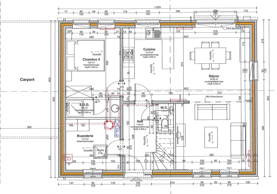
La maison développe une surface habitable de +/- 158 m² sur un terrain de +/- 14,90 ares. Elle présente 4 façades, une terrasse orientée Nord-Ouest de +/- 14 m² et un carport de +/- 15 m².

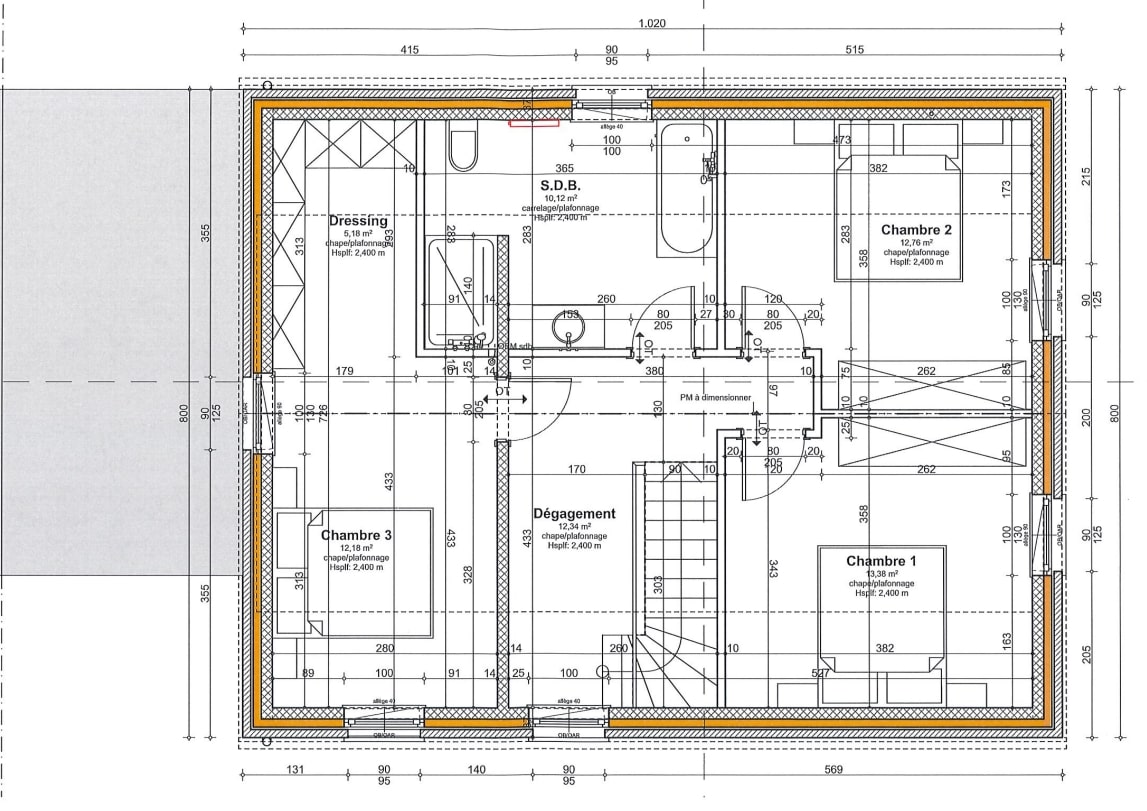
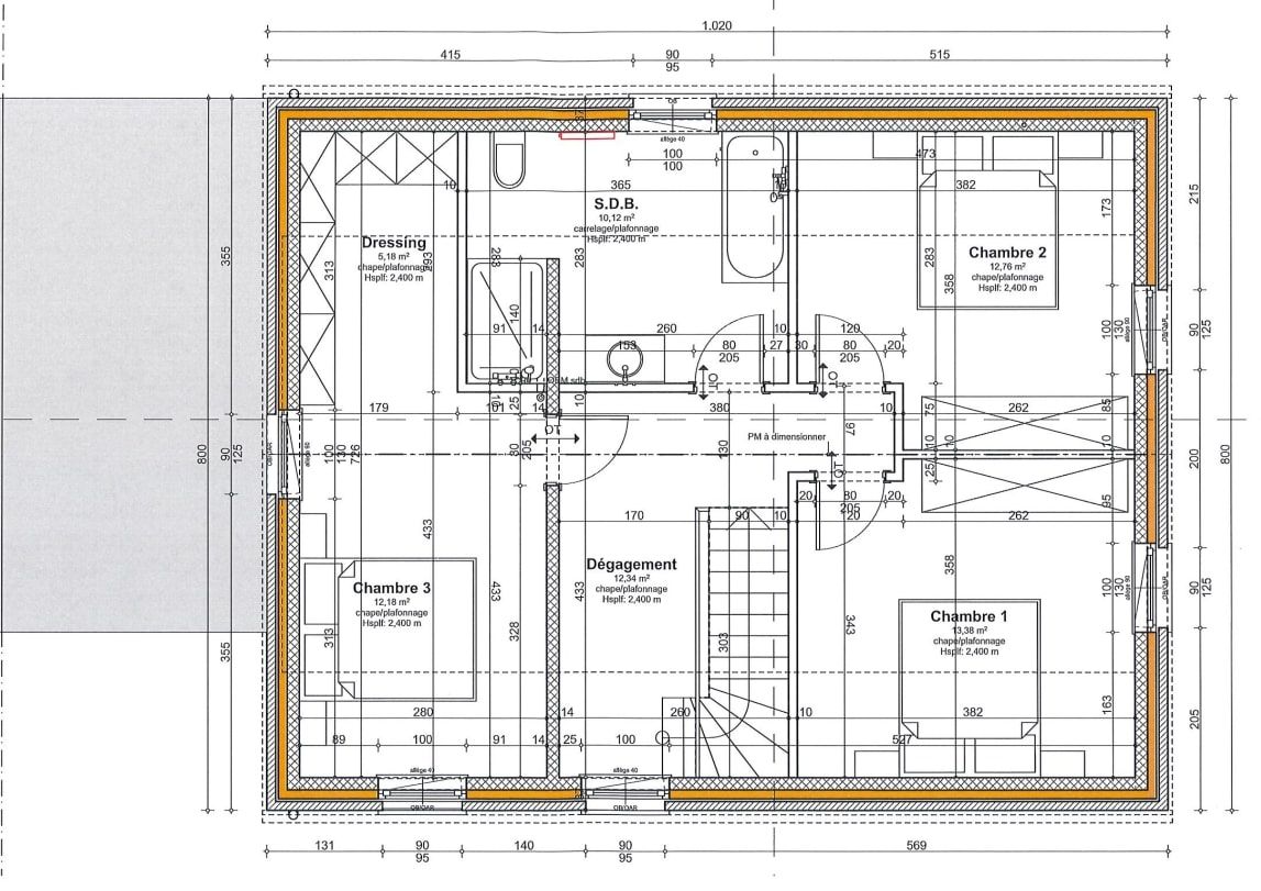
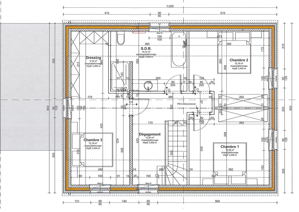
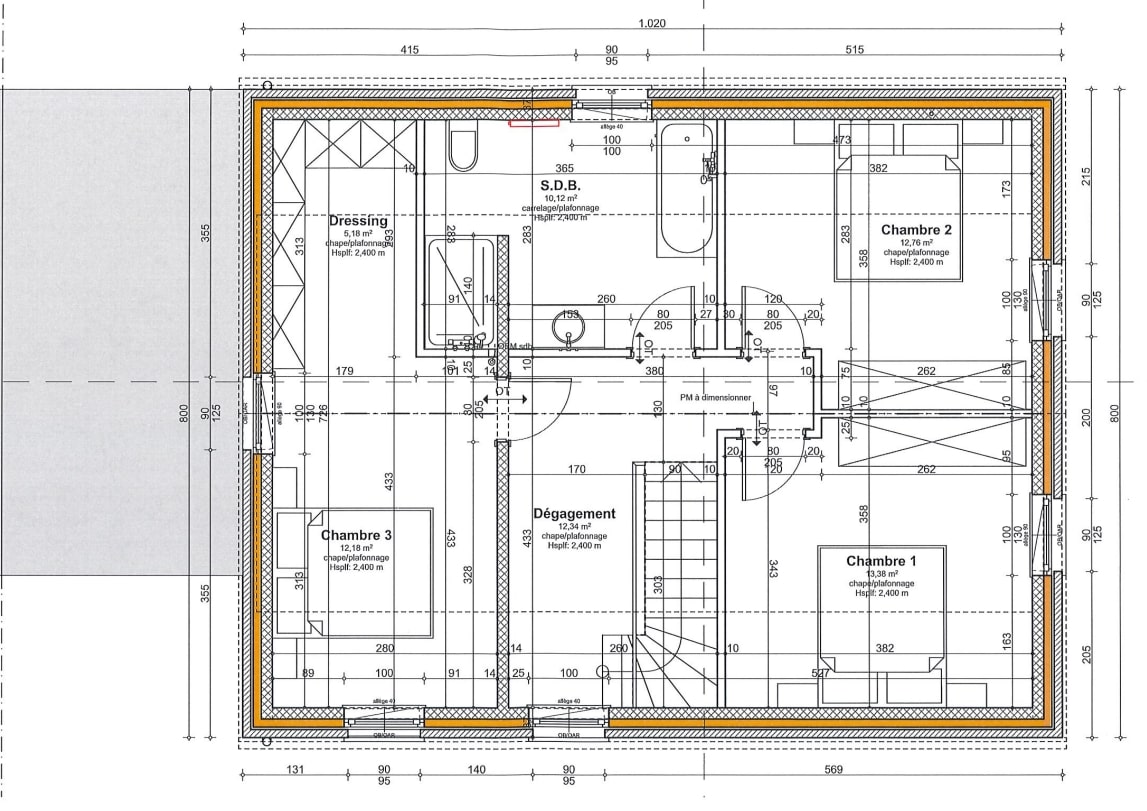
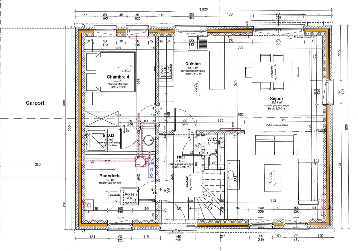
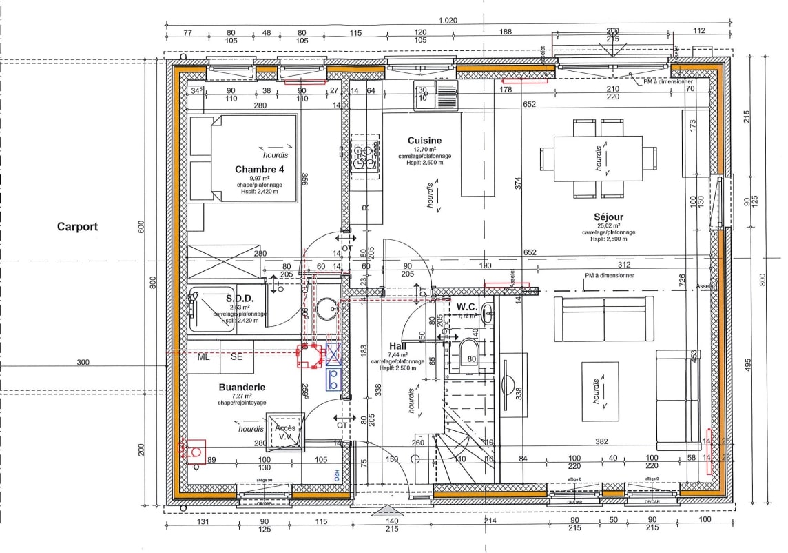
Le rez-de-chaussée comprend un séjour de +/- 25 m², une cuisine ouverte de +/- 12,5 m², une buanderie de +/- 7 m², une chambre de +/- 10 m², une salle de douche de +/- 2,5 m² et un WC. À l’étage, le hall de nuit dessert une chambre parentale avec dressing de +/- 17,5 m², deux chambres de +/- 13,5 m² et +/- 12,75 m², ainsi qu’une salle de bain de +/- 10 m².

Le bien est équipé d’un chauffage au gaz, de six panneaux photovoltaïques et présente un certificat PEB de classe A.

Prix et disponibilités

Faire offre à partir de 339 000 € HF*
Disponibilité à l'acte
Adresse Rue de Foucaumont
Région LIGNE (ATH)
Province Hainaut
Superficie du terrain 702 m²
Année de construction 2026
PEB A
Contactez Quentin au 0486241841
* Hors frais et hors TVA

Informations techniques

Type de bien Maison
Façades 4 façades
Superficie 163 m²
Superficie du terrain 702 m²
Type de chauffage Chauffage central gaz y compris pour la production d'eau chaude sanitaire.
Type de châssis Châssis en PVC, double vitrage super isolant.
Isolation des murs 10 cm de polyuréthane.
Isolation du sol 10 cm de polyuréthane.
Isolation toiture 22cm de laine minérale.
Garantie Le bâtiment est garanti 10 ans.
Installation éléctrique L'installation électrique à un certificat de conformité valable 25 ans.

Composition du bien

Hall d'entrée Oui
Séjour Oui
Cuisine Non
Salle à manger Oui
WC 2 WC
Buanderie Oui
Dressing Oui
Hall de nuit Oui
Chambres 4 chambres
Salles de bain Oui
Salle de douche Oui
Garage Non
Carport Oui
Parking 2 places
Jardin Oui
Terrasse Oui
Cuisine équipée 1 cuisine équipée
Mezzanine Non
Véranda Non
Local à poubelle Non

Lotissement de LIGNE

Découvrez le lotissement

Ces biens font partie de la même promotion

Discutons de votre projet

Vous avez une (ou plusieurs) question(s), vous souhaitez des renseignements complémentaires ou parler de votre futur projet ?
Nous sommes à votre écoute, sans engagement !

Fixer un rendez-vous

Maisons Baijot

Chez Maisons Baijot, nous aimons penser que nous ne construisons pas que des maisons clé sur porte. Nous bâtissons des lieux de vie, de ceux où les souvenirs se créent et se transmettent, où les moments se vivent et se partagent. Des maisons où des enfants grandissent, où des couples vieillissent, où l’on se dispute, où l’on se réconcilie, des maisons où l’on fête des anniversaires, des naissances, des mariages, des diplômes, des départs à la retraite…

 

Pour concrétiser votre projet de construction, nous vous offrons un large choix d’idées de plans pour trouver le style de maison qui conviendra parfaitement à vos envies et à votre budget. Toutes ces options sont bien entendu souples et personnalisables pour réaliser la construction d’une maison qui vous ressemble.

 

Bienvenue dans l’Univers Maisons Baijot.