JEMEPPE-SUR-SAMBRE 2

154
3
1
Faire offre à partir de
281 000 € HF*
Prix global
* Hors frais et hors TVA

Descriptif

Située au sein d’un quartier résidentiel calme, cette maison neuve bénéficie d’un environnement paisible, à proximité immédiate des principaux points d’intérêt de la commune. L’ambiance y est familiale, avec un voisinage homogène et une circulation modérée, offrant un cadre de vie adapté aux besoins quotidiens tout en restant aisément accessible.

Les commodités sont accessibles en quelques minutes. L’arrêt de bus le plus proche se trouve à 500 mètres, tandis que la gare de Jemeppe est joignable en 3 min en voiture. L’accès aux grands axes routiers, notamment la N90 et l’E42, s’effectue en moins de 10 minutes. Une école fondamentale est située à 700 mètres, une crèche à 4 min. La pharmacie la plus proche est à 1,2 km, et un cabinet médical est accessible en moins de 5 minutes. Un supermarché se trouve à 1,5 km, ainsi qu’une boulangerie à 1 km. Une agence bancaire et une salle de sport sont situées dans un rayon de 2 km. Plusieurs espaces verts communaux sont également rapidement accessibles.

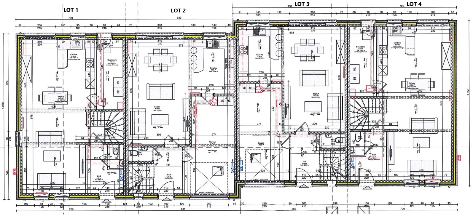
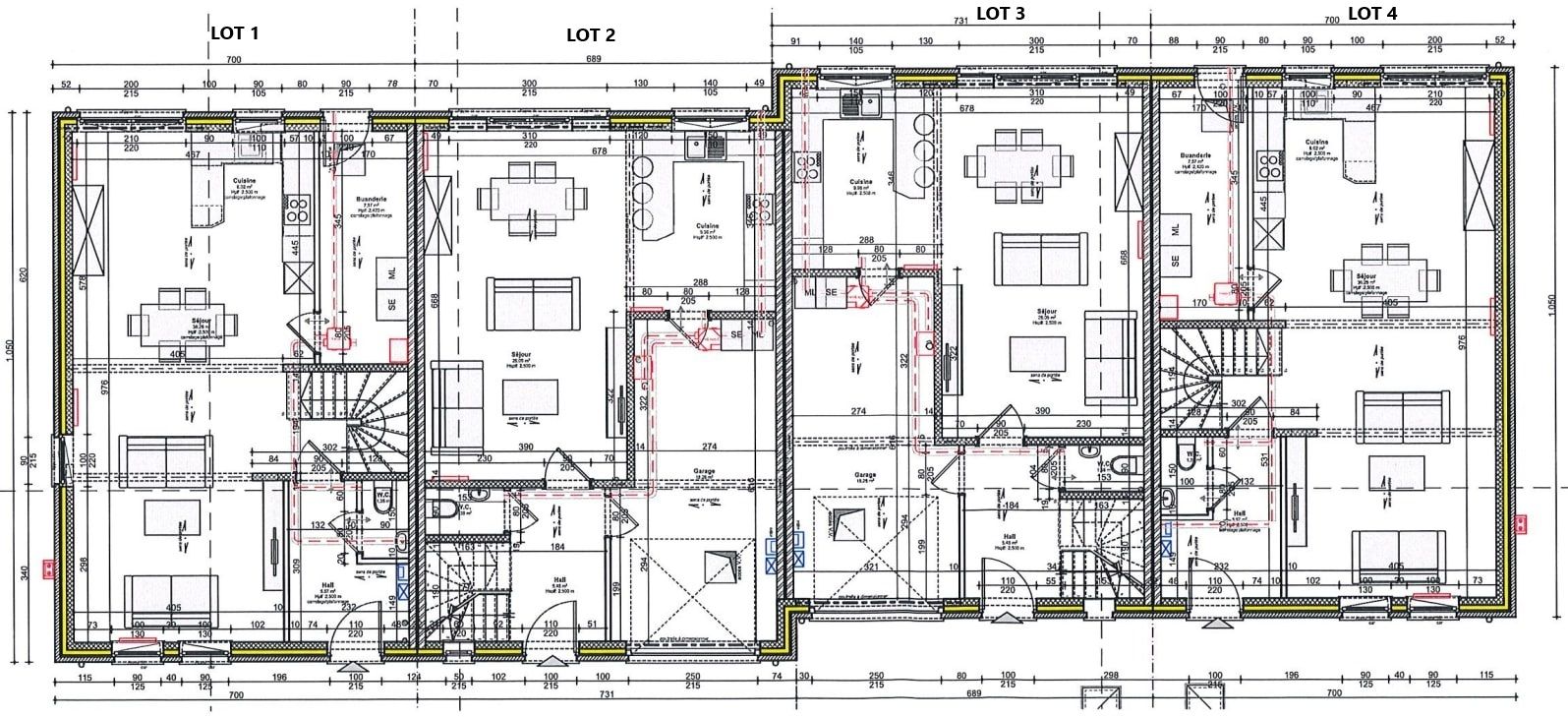
Le bien proposé est une construction neuve 2 façades, développant une surface habitable de +/- 154 m² sur une parcelle de 3,52 ares. La terrasse sur grenaille de +/- 15 m² orientée Est offre une belle luminosité matinale.

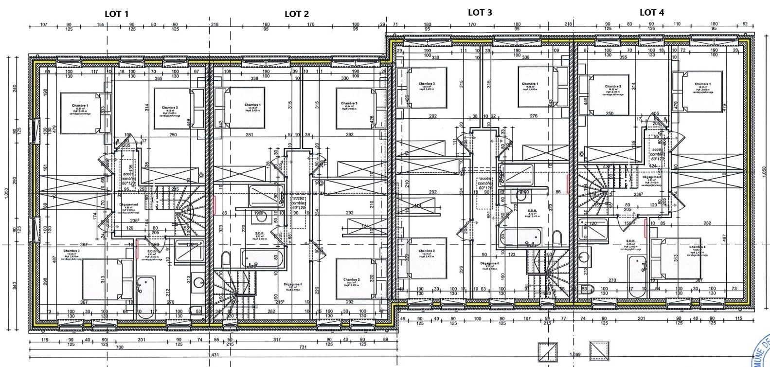
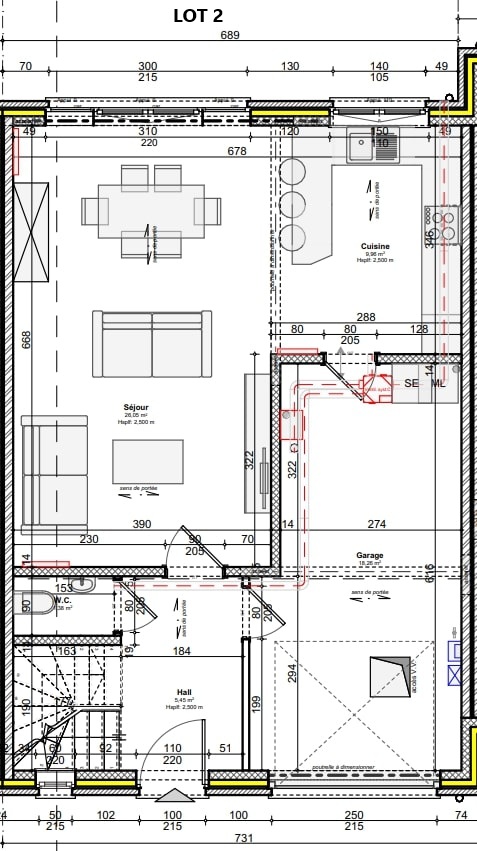
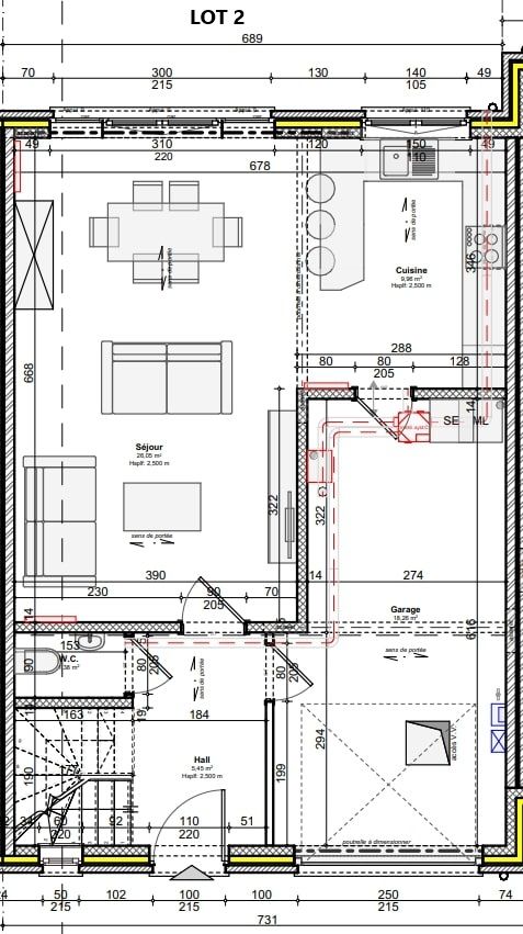
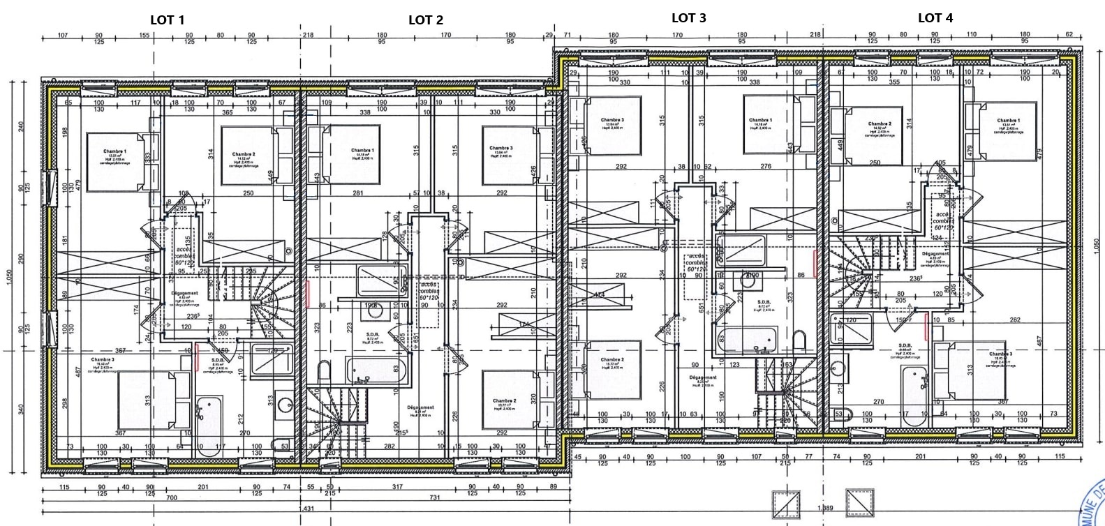
Le rez-de-chaussée est composé d'un hall d'entrée avec WC séparé, d'un séjour de +/- 26 m² avec une cuisine attenante de +/- 10 m². Ainsi qu'un garage/buanderie 1 voiture de +/- 18,5 m².

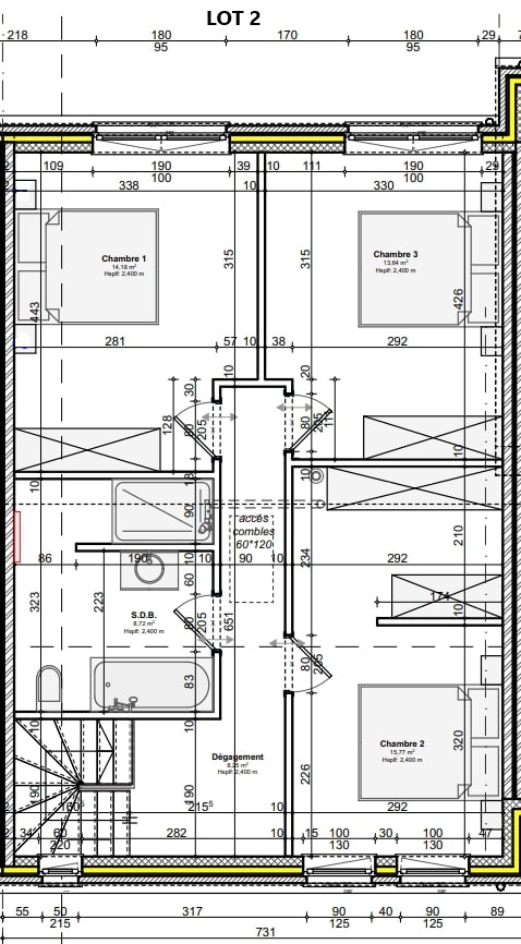
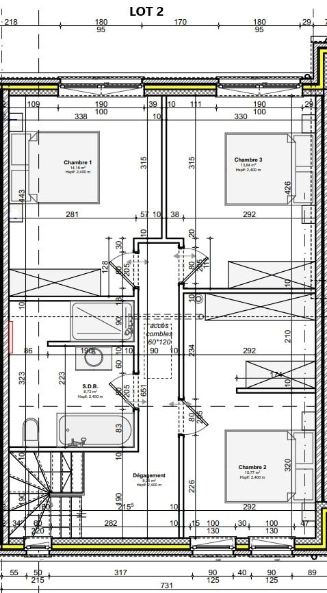
À l’étage, le hall de nuit dessert 3 chambres de +/- 16 m², 14 m² et 13,5 m² ainsi qu’une salle de bain de +/- 8,5 m². De plus, un grenier de +/- 30 m² est accessible via un escalier escamotable.

La maison est équipée d’un système de chauffage au gaz, complété par l’installation de 6 panneaux photovoltaïques. Le bâtiment répond aux standards énergétiques actuels avec un PEB de catégorie A.

Prix et disponibilités

Faire offre à partir de 281 000 € HF*
Disponibilité à l'acte
Adresse Rue François Hittelet
Région JEMEPPE-SUR-SAMBRE
Province Namur
Superficie du terrain 352 m²
Année de construction 2026
PEB A
Contactez Quentin au 0486241841
* Hors frais et hors TVA

Informations techniques

Type de bien Maison
Façades 2 façades
Superficie 154 m²
Superficie du terrain 352 m²
Orientation E
Type de chauffage Chauffage central gaz y compris pour la production d'eau chaude sanitaire.
Type de châssis Châssis en PVC, double vitrage super isolant, porte de garage sectionnelle isolée.
Isolation des murs 10 cm de polyuréthane.
Isolation du sol 10 cm de polyuréthane.
Isolation toiture 20 cm de laine minérale.
Garantie Le bâtiment est garanti 10 ans.
Installation éléctrique L'installation électrique à un certificat de conformité valable 25 ans.

Composition du bien

Hall d'entrée Oui
Séjour Oui
Cuisine Non
Salle à manger Oui
WC 2 WC
Dressing Oui
Hall de nuit Oui
Chambres 3 chambres
Salles de bain Oui
Grenier Oui
Garage Non
Parking Oui
Jardin Oui
Terrasse Oui
Cuisine équipée 1 cuisine équipée
Mezzanine Non
Garage avec buanderie Oui
Véranda Non
Local à poubelle Non

Lotissement de JEMEPPE-SUR-SAMBRE

Découvrez le lotissement

Discutons de votre projet

Vous avez une (ou plusieurs) question(s), vous souhaitez des renseignements complémentaires ou parler de votre futur projet ?
Nous sommes à votre écoute, sans engagement !

Fixer un rendez-vous

Maisons Baijot

Chez Maisons Baijot, nous aimons penser que nous ne construisons pas que des maisons clé sur porte. Nous bâtissons des lieux de vie, de ceux où les souvenirs se créent et se transmettent, où les moments se vivent et se partagent. Des maisons où des enfants grandissent, où des couples vieillissent, où l’on se dispute, où l’on se réconcilie, des maisons où l’on fête des anniversaires, des naissances, des mariages, des diplômes, des départs à la retraite…

 

Pour concrétiser votre projet de construction, nous vous offrons un large choix d’idées de plans pour trouver le style de maison qui conviendra parfaitement à vos envies et à votre budget. Toutes ces options sont bien entendu souples et personnalisables pour réaliser la construction d’une maison qui vous ressemble.

 

Bienvenue dans l’Univers Maisons Baijot.