CORDES 4

165
3
1
Faire offre à partir de
350 000 € HF*
Prix global
* Hors frais et hors TVA

Descriptif

Promo Batibouw uniquement du 02/02/2026 jusqu'au 22/02/2026 !

Ancien prix : 360.000 €
Nouveau prix : 350.000 €

Située dans un quartier résidentiel calme et verdoyant, cette maison neuve bénéficie d’un cadre agréable tout en étant proche des principaux accès routiers.

La gare de Leuze-en-Hainaut se rejoint en +/- 14 minutes en voiture. Les lignes de bus desservent le centre de Frasnes à +/- 6 minutes. Les accès à la N60 et à l’E429 sont atteignables en +/- 10 minutes. Une école se trouve à +/- 2 km, une crèche à +/- 7 minutes. Le cabinet médical le plus proche est à +/- 5 minutes, avec une pharmacie à +/- 2,5 km. Le supermarché de Frasnes se situe à +/- 8 minutes. Une boulangerie, une agence bancaire ainsi qu’une salle de sport se trouvent dans un rayon de +/- 6 minutes.

Implantée sur un terrain de +/- 7,98 ares, cette maison de 4 façades a une surface habitable de +/- 165 m². Elle bénéficie d’une orientation sud-ouest, avec une terrasse de +/- 14 m².

Au rez-de-chaussée, un hall d’entrée avec WC, menant à un séjour de +/- 27 m² ouvert sur une cuisine de +/- 15 m². Une buanderie de +/- 6 m². Un bureau de +/- 9 m². Le carport de +/- 18,5 m² complète le tout.

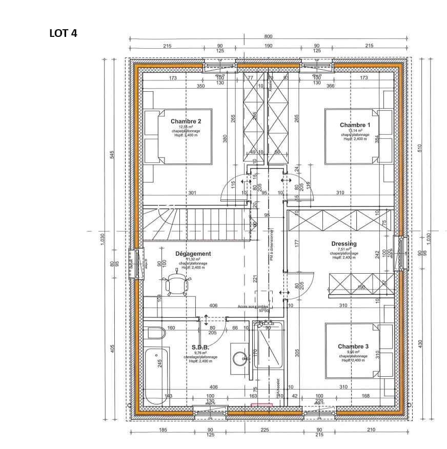
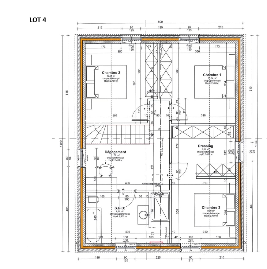
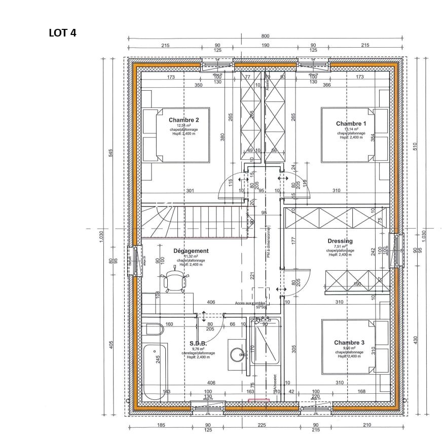
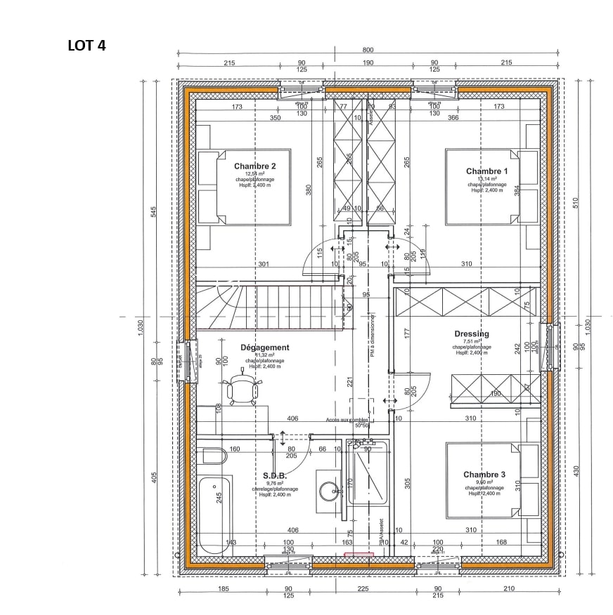
À l’étage, le hall de nuit distribue une chambre parentale avec dressing de +/- 17 m², 2 chambres de +/- 13 m² et +/- 12,5 m², ainsi qu’une salle de bain de +/- 10 m².

Le bien est équipé d’un chauffage central au gaz et de 6 panneaux photovoltaïques. Le niveau de la PEB est classé A. L’ensemble répond aux standards actuels en matière d’efficacité énergétique et de confort thermique.

Prix et disponibilités

Faire offre à partir de 350 000 € HF*
Disponibilité à l'acte
Adresse Rue de Forest
Région CORDES (FRASNES-LEZ-ANVAING)
Province Hainaut
Superficie du terrain 796 m²
Année de construction 2026
PEB A
Contactez Quentin au 0486241841
* Hors frais et hors TVA

Informations techniques

Type de bien Maison
Façades 4 façades
Superficie 165 m²
Superficie du terrain 796 m²
Type de chauffage Chauffage central gaz y compris pour la production d'eau chaude sanitaire.
Type de châssis Châssis en PVC, double vitrage super isolant.
Isolation des murs 10 cm de polyuréthane.
Isolation du sol 10 cm de polyuréthane.
Isolation toiture 22cm de laine minérale.
Garantie Le bâtiment est garanti 10 ans.
Installation éléctrique L'installation électrique à un certificat de conformité valable 25 ans.

Composition du bien

Hall d'entrée Oui
Séjour Oui
Cuisine Non
Salle à manger Oui
Bureau Oui
WC 2 WC
Buanderie Oui
Dressing Oui
Hall de nuit Oui
Chambres 3 chambres
Salles de bain Oui
Garage Non
Parking 3 places
Jardin Oui
Terrasse Oui
Cuisine équipée 1 cuisine équipée
Mezzanine Non
Véranda Non
Local à poubelle Non

Lotissement de CORDES

Découvrez le lotissement

Discutons de votre projet

Vous avez une (ou plusieurs) question(s), vous souhaitez des renseignements complémentaires ou parler de votre futur projet ?
Nous sommes à votre écoute, sans engagement !

Fixer un rendez-vous

Maisons Baijot

Chez Maisons Baijot, nous aimons penser que nous ne construisons pas que des maisons clé sur porte. Nous bâtissons des lieux de vie, de ceux où les souvenirs se créent et se transmettent, où les moments se vivent et se partagent. Des maisons où des enfants grandissent, où des couples vieillissent, où l’on se dispute, où l’on se réconcilie, des maisons où l’on fête des anniversaires, des naissances, des mariages, des diplômes, des départs à la retraite…

 

Pour concrétiser votre projet de construction, nous vous offrons un large choix d’idées de plans pour trouver le style de maison qui conviendra parfaitement à vos envies et à votre budget. Toutes ces options sont bien entendu souples et personnalisables pour réaliser la construction d’une maison qui vous ressemble.

 

Bienvenue dans l’Univers Maisons Baijot.