PONT-A-CELLES 2

130
3
1
Faire offre à partir de
289 000 € HF*
Prix global
* Hors frais et hors TVA

Descriptif

Promo Batibouw uniquement du 02/02/2026 jusqu'au 22/02/2026 !

Ancien prix : 299.000 €
Nouveau prix : 289.000 €

Nous vous proposons cette maison 3 façades située à Pont-à-Celles. Implantée sur un terrain de 1 ares 57, cette propriété bénéficie d'une orientation sud-ouest et ouest.

Côté commodités, il y a tout ce qu’il faut à 7 minutes comme supermarché, pharmacie, librairie, banques, restaurants, médecin, kiné,...

Pour ce qui est des déplacements, plusieurs possibilités s’offrent à vous, car cette habitation est à seulement 10 minutes de la gare de Luttre et aussi toute proche de divers accès autoroutiers comme la E42 Mons/Namur/Liège (6 min), la E19 vers Bruxelles (12 min) et aussi les N586/E420 vers Nivelles (10 min).

Les écoles, Notre-Dame de Celle, l’Athénée Royale ainsi que l’Espace Formations-Promotion Sociale de la Province de Hainaut sont quant à elles à 9 minutes avec leur ligne de bus à proximité.

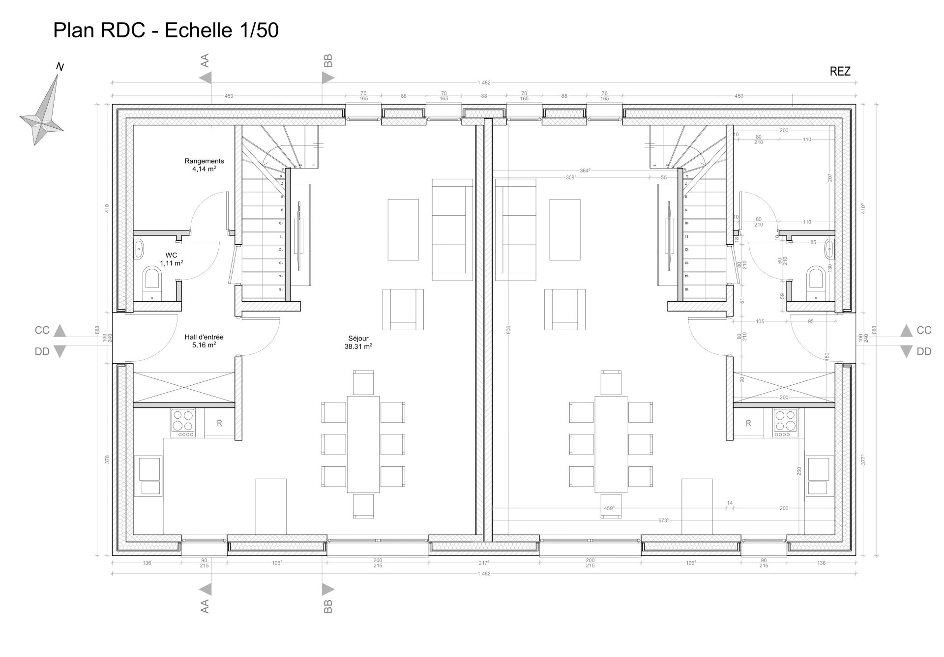
La maison se compose au rez-de-chaussée d’un hall d’entrée, d’un WC, un séjour ouvert sur cuisine équipée de +/- 38,5 m² et d’une buanderie de +/- 4,5 m².
Terrasse sur grenaille de +/- 12 m² et 1 place de parking.

A l’étage, hall de nuit, 1 chambre parentale de +/- 14 m², 2 chambres de +/- 11,5 et 12,5 m², salle de bain de +/- 8 m² ainsi qu’un grenier de +/- 25 m² accessible par un escalier escamotable.

Cette maison est équipée d’une chaudière à condensation au gaz à haut rendement, de 6 panneaux photovoltaïques et offre un PEB A garantissant confort, économies d'énergie et respect de l'environnement assurant un cadre de vie agréable et économe.

Prix et disponibilités

Faire offre à partir de 289 000 € HF*
Disponibilité A l'acte
Adresse Rue Launoy/Rue Saint-Antoine
Région PONT-A-CELLES
Province Hainaut
Superficie du terrain 157 m²
Année de construction 2024
PEB A
Contactez Quentin au 0486241841
* Hors frais et hors TVA

Informations techniques

Type de bien Maison
Façades 3 façades
Superficie 130 m²
Superficie du terrain 157 m²
Type de chauffage Chauffage central gaz y compris pour la production d'eau chaude sanitaire.
Type de châssis Châssis en PVC, double vitrage super isolant.
Isolation des murs 10 cm de polyuréthane.
Isolation du sol 10 cm de polyuréthane.
Isolation toiture 20 cm de laine minérale.
Garantie Le bâtiment est garanti 10 ans.
Installation éléctrique L'installation électrique à un certificat de conformité valable 25 ans.

Composition du bien

Hall d'entrée Oui
Séjour Oui
Cuisine Non
Salle à manger Oui
WC 2 WC
Buanderie Oui
Hall de nuit Oui
Chambres 3 chambres
Salles de bain Oui
Grenier Oui
Garage Non
Parking Oui
Jardin Oui
Terrasse Oui
Cuisine équipée 1 cuisine équipée
Mezzanine Non
Véranda Non
Local à poubelle Non

Discutons de votre projet

Vous avez une (ou plusieurs) question(s), vous souhaitez des renseignements complémentaires ou parler de votre futur projet ?
Nous sommes à votre écoute, sans engagement !

Fixer un rendez-vous

Maisons Baijot

Chez Maisons Baijot, nous aimons penser que nous ne construisons pas que des maisons clé sur porte. Nous bâtissons des lieux de vie, de ceux où les souvenirs se créent et se transmettent, où les moments se vivent et se partagent. Des maisons où des enfants grandissent, où des couples vieillissent, où l’on se dispute, où l’on se réconcilie, des maisons où l’on fête des anniversaires, des naissances, des mariages, des diplômes, des départs à la retraite…

 

Pour concrétiser votre projet de construction, nous vous offrons un large choix d’idées de plans pour trouver le style de maison qui conviendra parfaitement à vos envies et à votre budget. Toutes ces options sont bien entendu souples et personnalisables pour réaliser la construction d’une maison qui vous ressemble.

 

Bienvenue dans l’Univers Maisons Baijot.