HAUT-FAYS 3

158
4
2
Faire offre à partir de
255 000 € HF*
Prix global
* Hors frais et hors TVA

Descriptif

Promo Batibouw -10.000€

Ancien prix : 265.000 €
Nouveau prix : 255.000 €

Située dans un quartier résidentiel calme, cette maison neuve offre un cadre de vie paisible, facilement accessible par les routes principales à moins de 10 minutes en voiture. Les transports en commun se trouvent à environ 1,5 km, facilitant les déplacements vers les communes voisines. Les écoles fondamentales et la crèche sont accessibles en moins de 10 minutes, tout comme les services médicaux et les pharmacies. Les commerces, supermarché, boulangerie et banque sont à moins de 2 km. Une salle de sport et plusieurs espaces verts complètent les commodités locales.

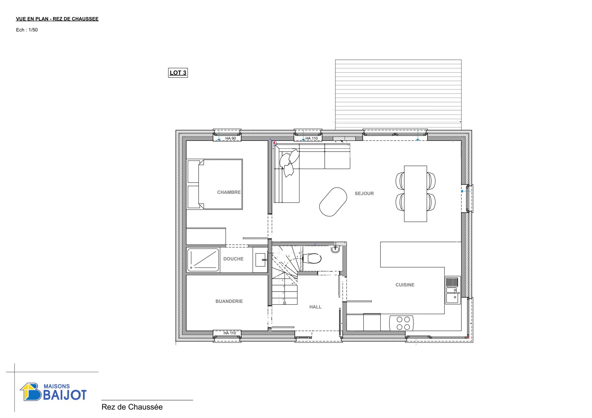
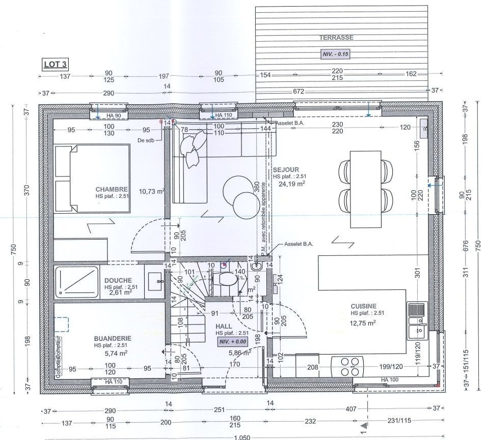
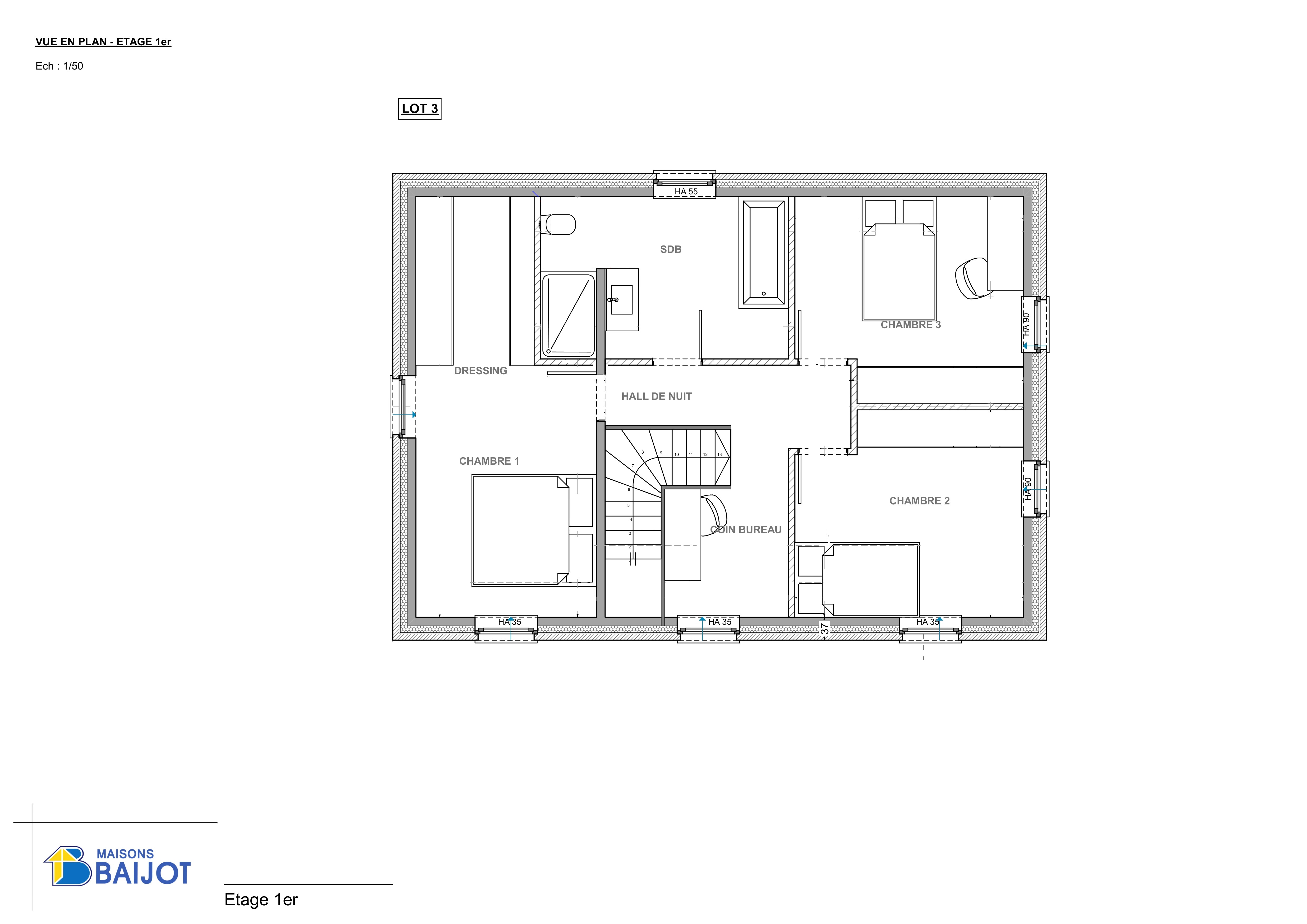
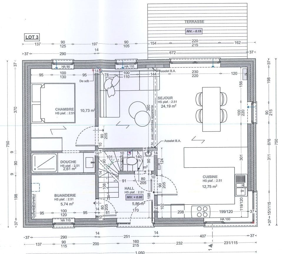
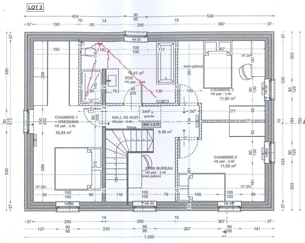
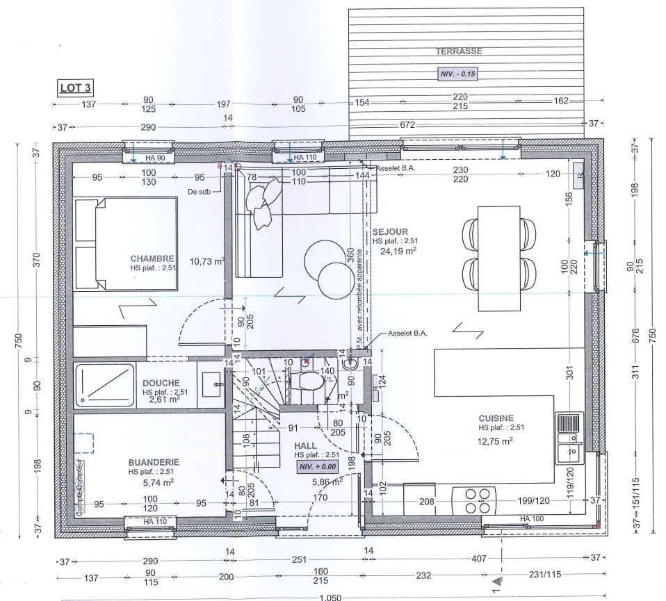
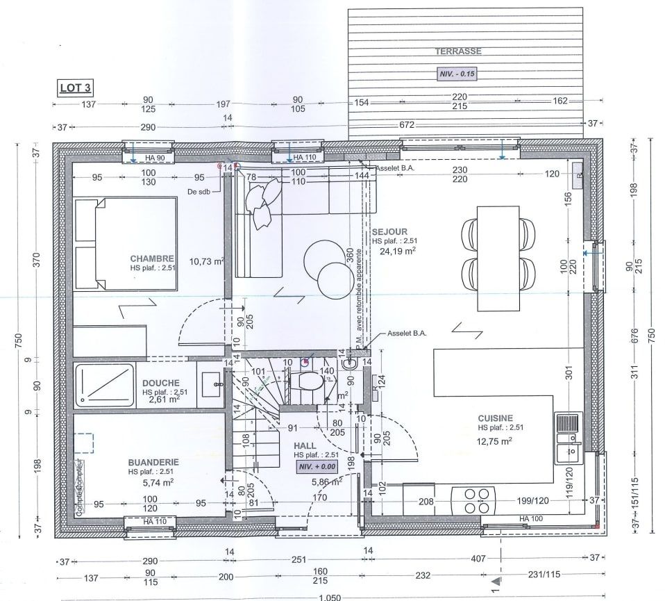
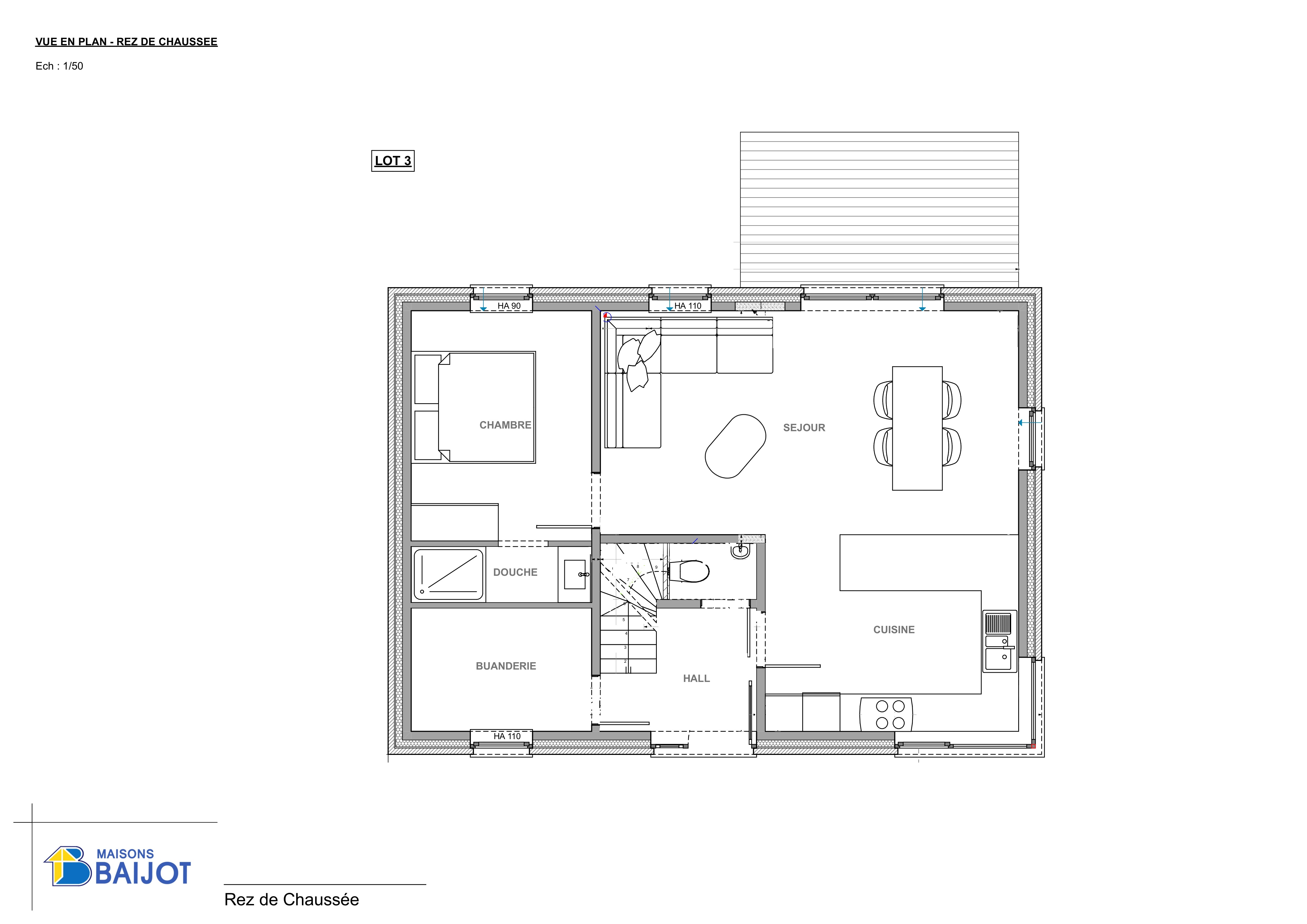
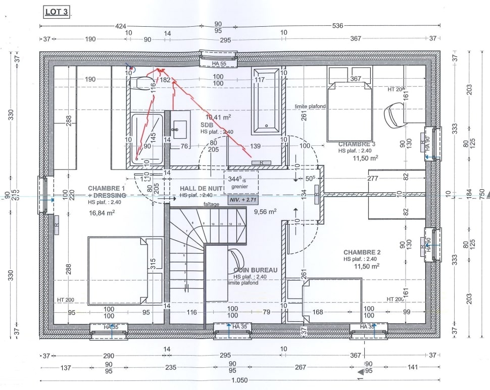
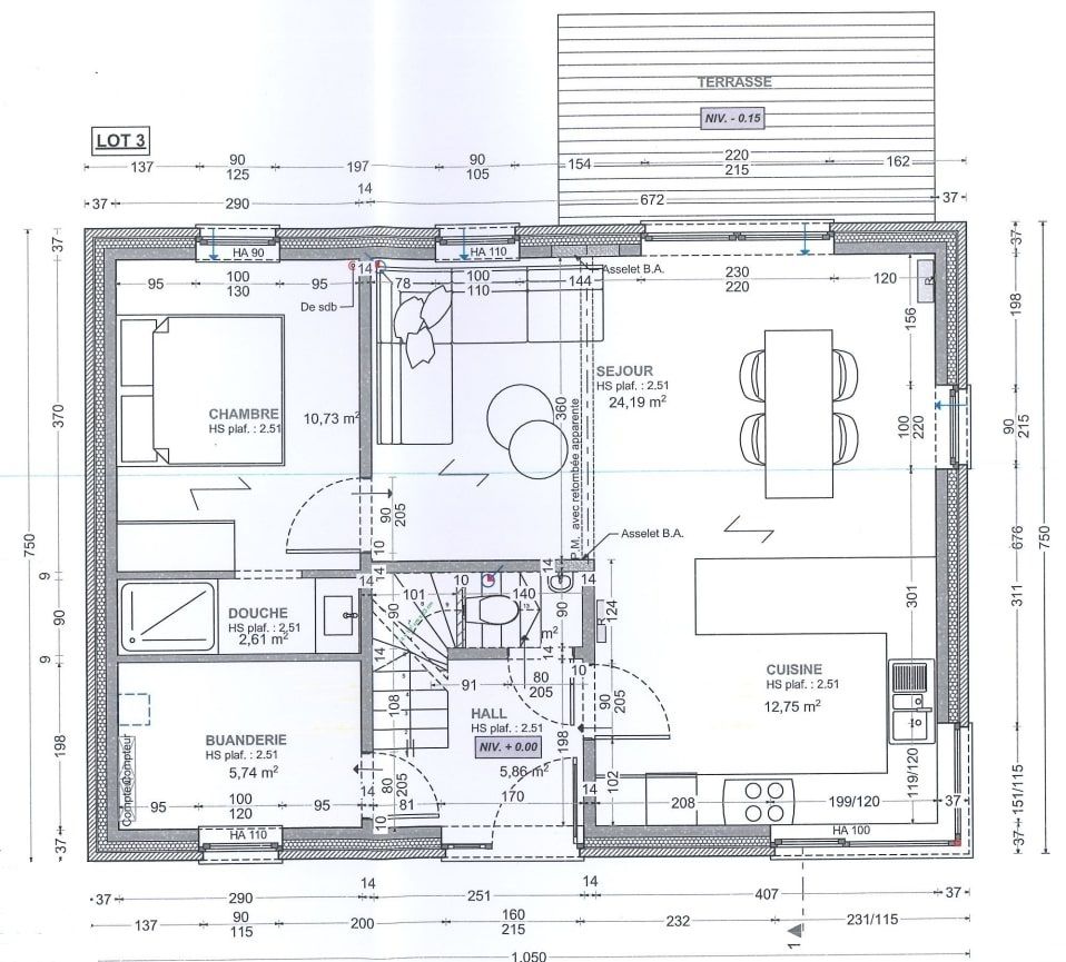
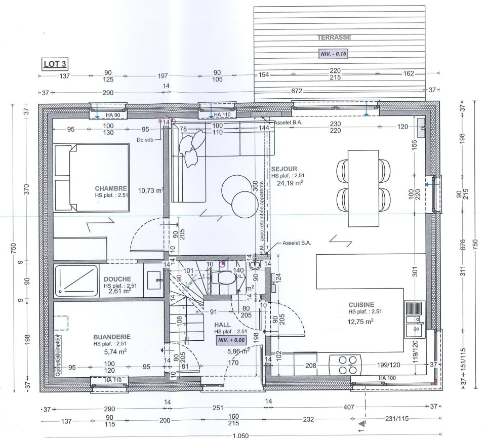
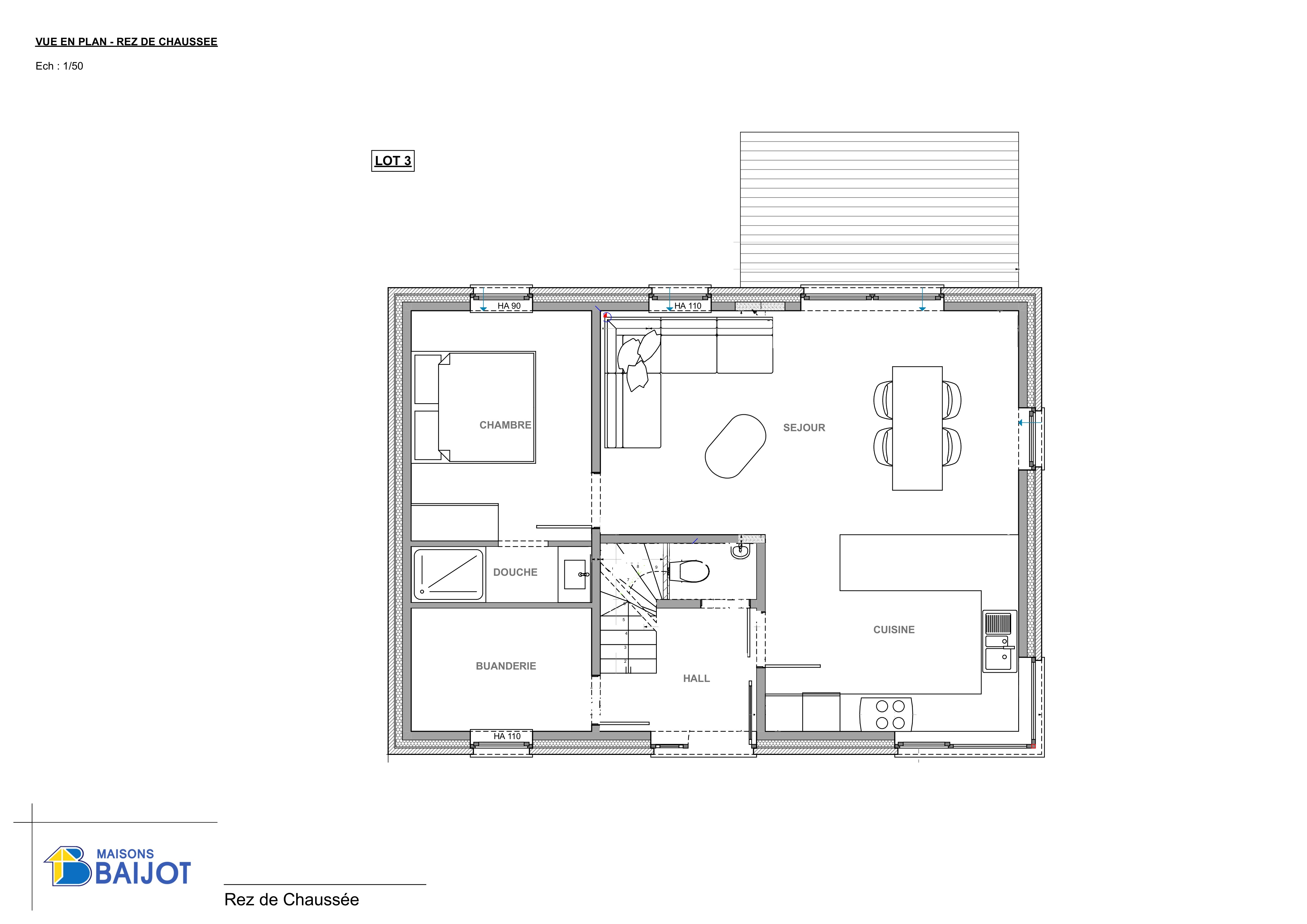
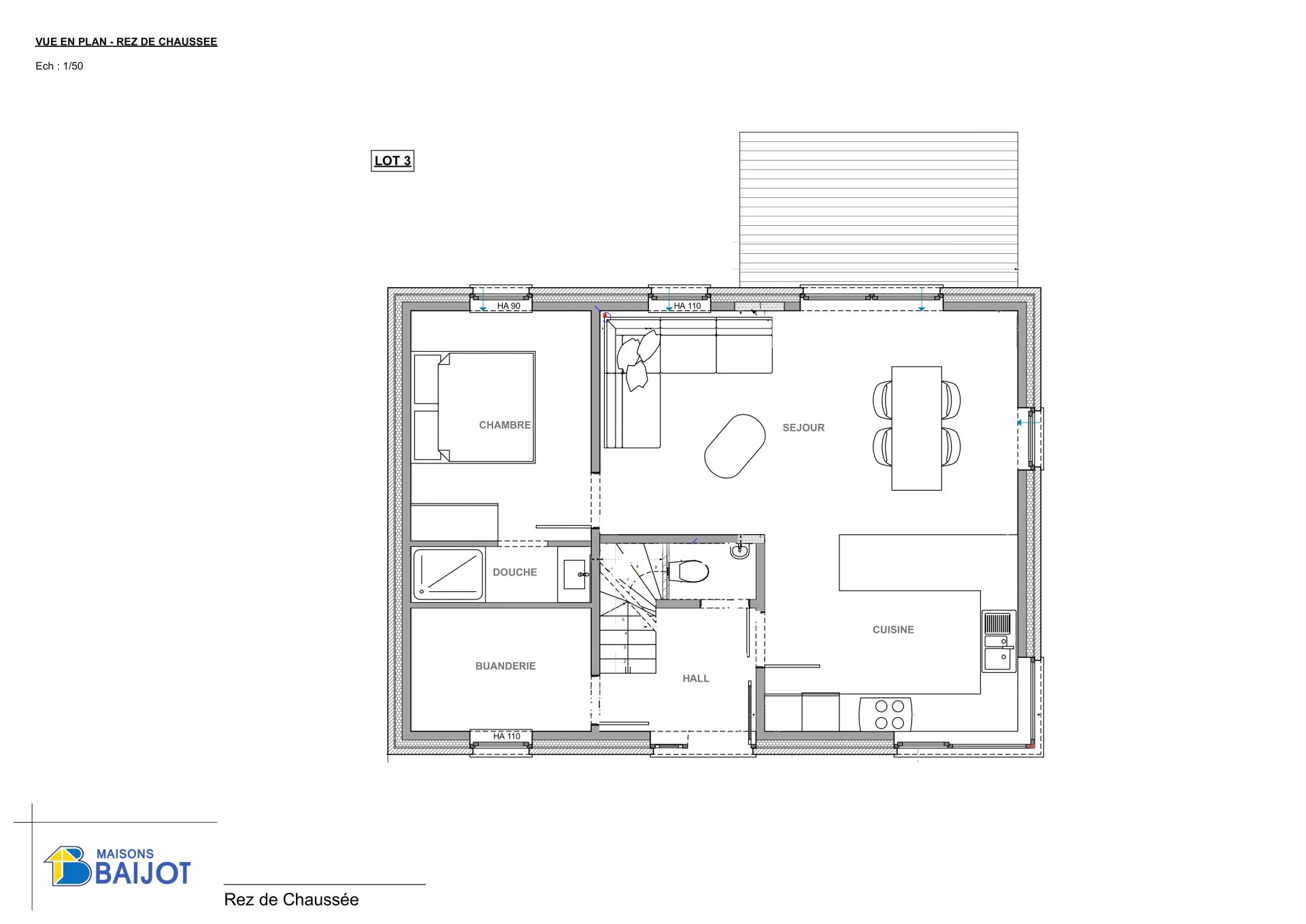
Ce bien de type habitation individuelle, orienté sud-est, dispose d’une surface habitable d’environ +/-158 m² sur un terrain de +/-3,35 ares. La maison se développe sur 4 façades, avec une terrasse de +/-15 m² exposée au sud-est.

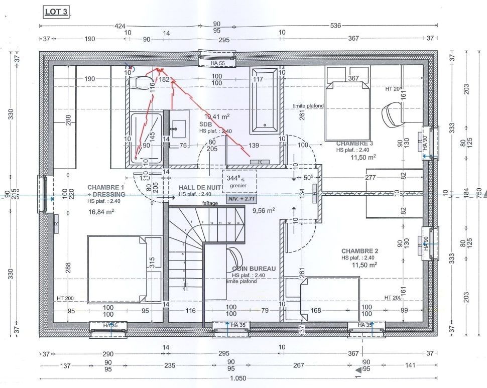
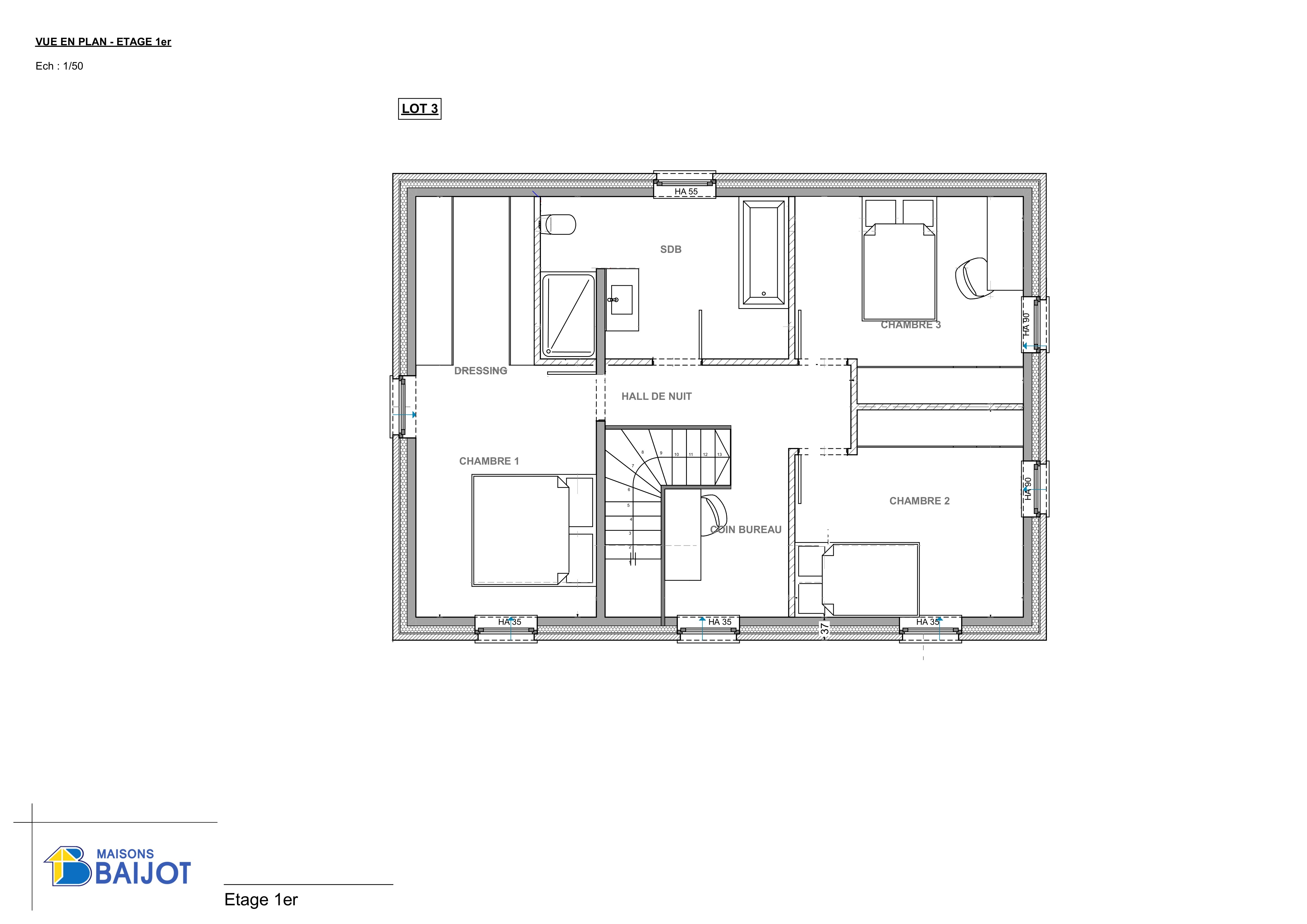
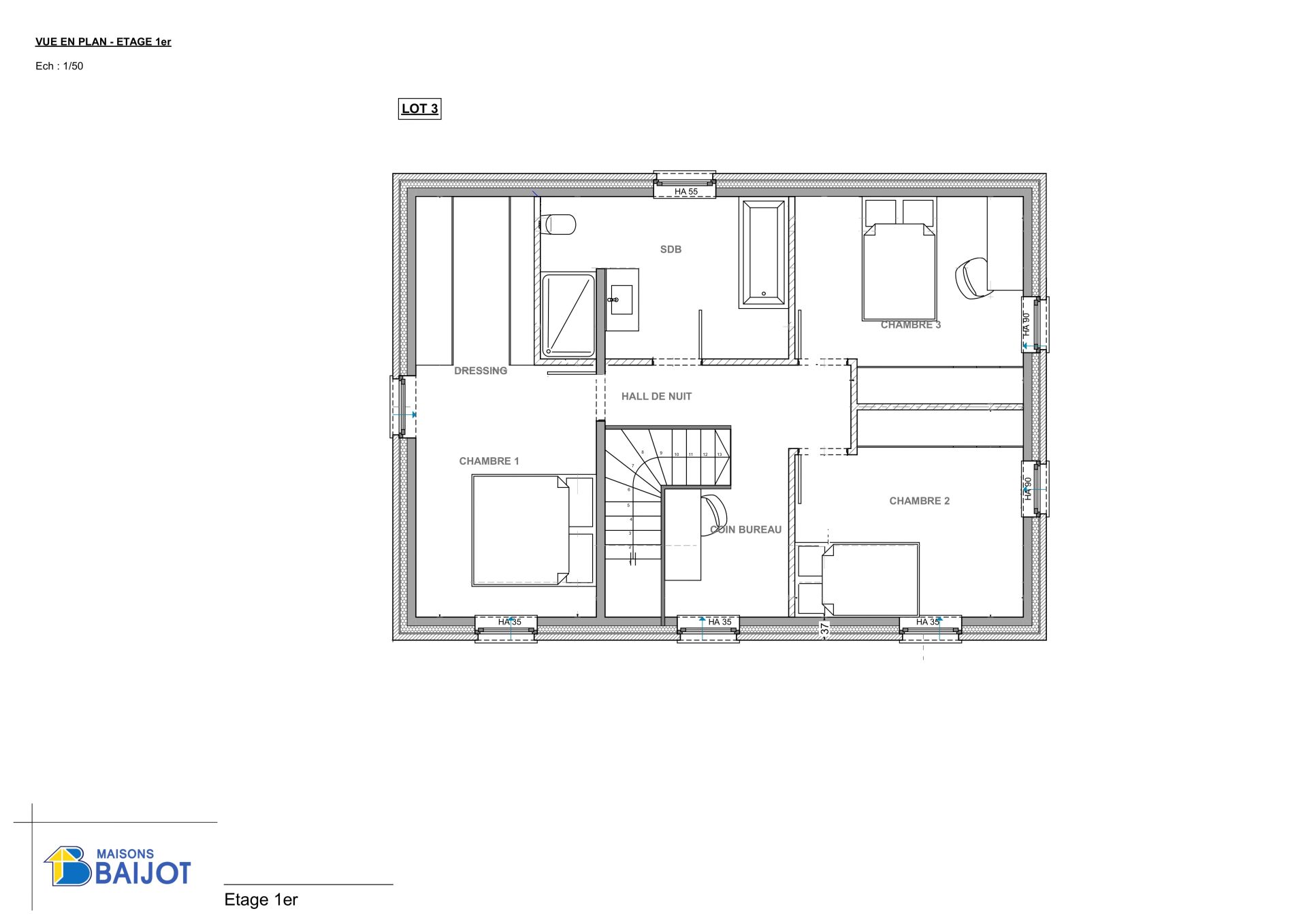
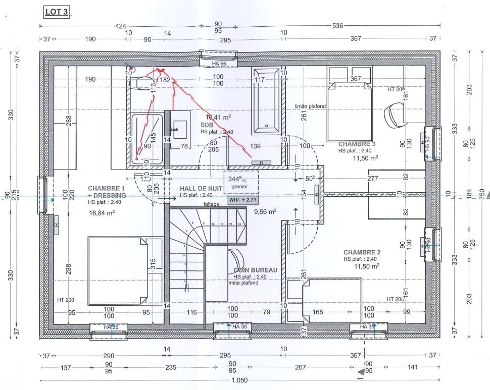
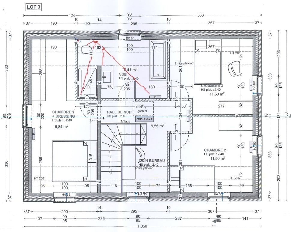
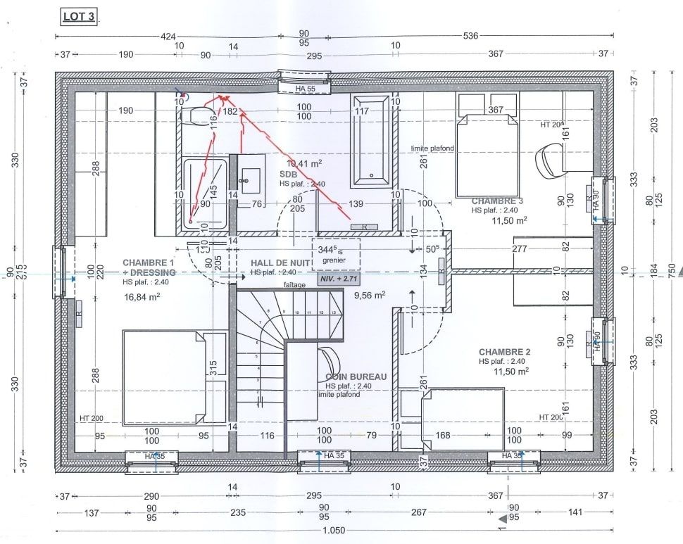
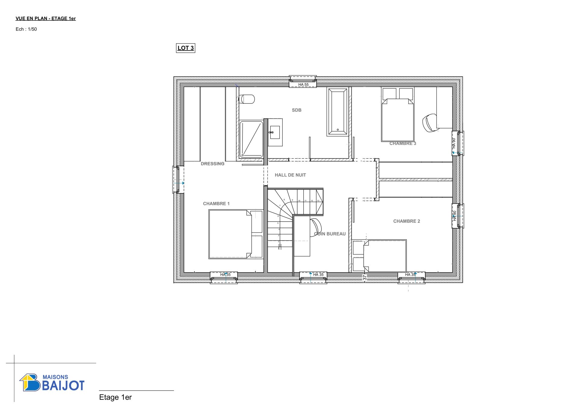
L’intérieur comprend un séjour lumineux de +/-24 m², une cuisine de +/-13 m² et une buanderie de +/-6 m². 4 chambres sont réparties sur deux niveaux, dont une chambre au rez-de-chaussée de +/-11 m², une chambre parentale avec dressing de +/-18 m², deux autres chambres de +/-16 et +/-13 m². La salle de bain principale fait +/-9 m², accompagnée d’une salle de douche de +/-3 m² au rez-de-chaussée.

Le chauffage est assuré par une installation pompe à chaleur + chauffage sol. La maison dispose panneaux photovoltaïques, garantissant une excellente performance énergétique attestée par un certificat PEB de classe A. Ce bien allie fonctionnalité, confort moderne et efficience énergétique dans un environnement agréable.

Prix et disponibilités

Faire offre à partir de 255 000 € HF*
Disponibilité à l'acte
Adresse ANCIEN CHEMIN de Wellin
Région HAUT-FAYS (DAVERDISSE)
Province Luxembourg
Superficie du terrain 335 m²
Année de construction 2026
PEB A
Contactez Yolaine au 0470103603
* Hors frais et hors TVA

Informations techniques

Type de bien Maison
Façades 4 façades
Superficie 158 m²
Superficie du terrain 335 m²
Orientation SE
Type de chauffage Pompe à chaleur
Type de châssis Châssis en PVC, double vitrage super isolant.
Isolation des murs 10 cm de polyuréthane.
Isolation du sol 10 cm de polyuréthane.
Isolation toiture 22cm de laine minérale.
Garantie Le bâtiment est garanti 10 ans.
Installation éléctrique L'installation électrique à un certificat de conformité valable 25 ans.

Composition du bien

Hall d'entrée Oui
Séjour Oui
Cuisine Non
Salle à manger Oui
WC 2 WC
Buanderie Oui
Dressing Oui
Hall de nuit Oui
Chambres 4 chambres
Salles de bain Oui
Salle de douche Oui
Garage Non
Parking 2 places
Jardin Oui
Terrasse Oui
Cuisine équipée 1 cuisine équipée
Mezzanine Non
Véranda Non
Local à poubelle Non

Lotissement de HAUT-FAYS

Superbe lotissement de 6 lots - PLEIN SUD

Découvrez le lotissement

Discutons de votre projet

Vous avez une (ou plusieurs) question(s), vous souhaitez des renseignements complémentaires ou parler de votre futur projet ?
Nous sommes à votre écoute, sans engagement !

Fixer un rendez-vous

Maisons Baijot

Chez Maisons Baijot, nous aimons penser que nous ne construisons pas que des maisons clé sur porte. Nous bâtissons des lieux de vie, de ceux où les souvenirs se créent et se transmettent, où les moments se vivent et se partagent. Des maisons où des enfants grandissent, où des couples vieillissent, où l’on se dispute, où l’on se réconcilie, des maisons où l’on fête des anniversaires, des naissances, des mariages, des diplômes, des départs à la retraite…

 

Pour concrétiser votre projet de construction, nous vous offrons un large choix d’idées de plans pour trouver le style de maison qui conviendra parfaitement à vos envies et à votre budget. Toutes ces options sont bien entendu souples et personnalisables pour réaliser la construction d’une maison qui vous ressemble.

 

Bienvenue dans l’Univers Maisons Baijot.