MONS-LEZ-LIEGE 04

150
4
2
Prix H.F. clé sur porte
329 000 € HF*
Prix global
* Hors frais et hors TVA

Descriptif

Profitez d'une réduction de 10.000 euros avec nos conditions salon ! *

C’est à Flémalle, dans le village de Mons-lez-Liège, que nous vous proposons cette belle maison prête à vivre en cours de construction.
Ce bien se situe à proximité de Flémalle et non loin de Liège, proche des commerces et facilités (magasins, écoles, etc), ainsi que de la gare de Jemeppe-sur-Meuse (3km) donnant un accès facile à Liège et Bruxelles, d’arrêts de bus (<10 min. à pied) et à deux pas des N90/N63 et E40.
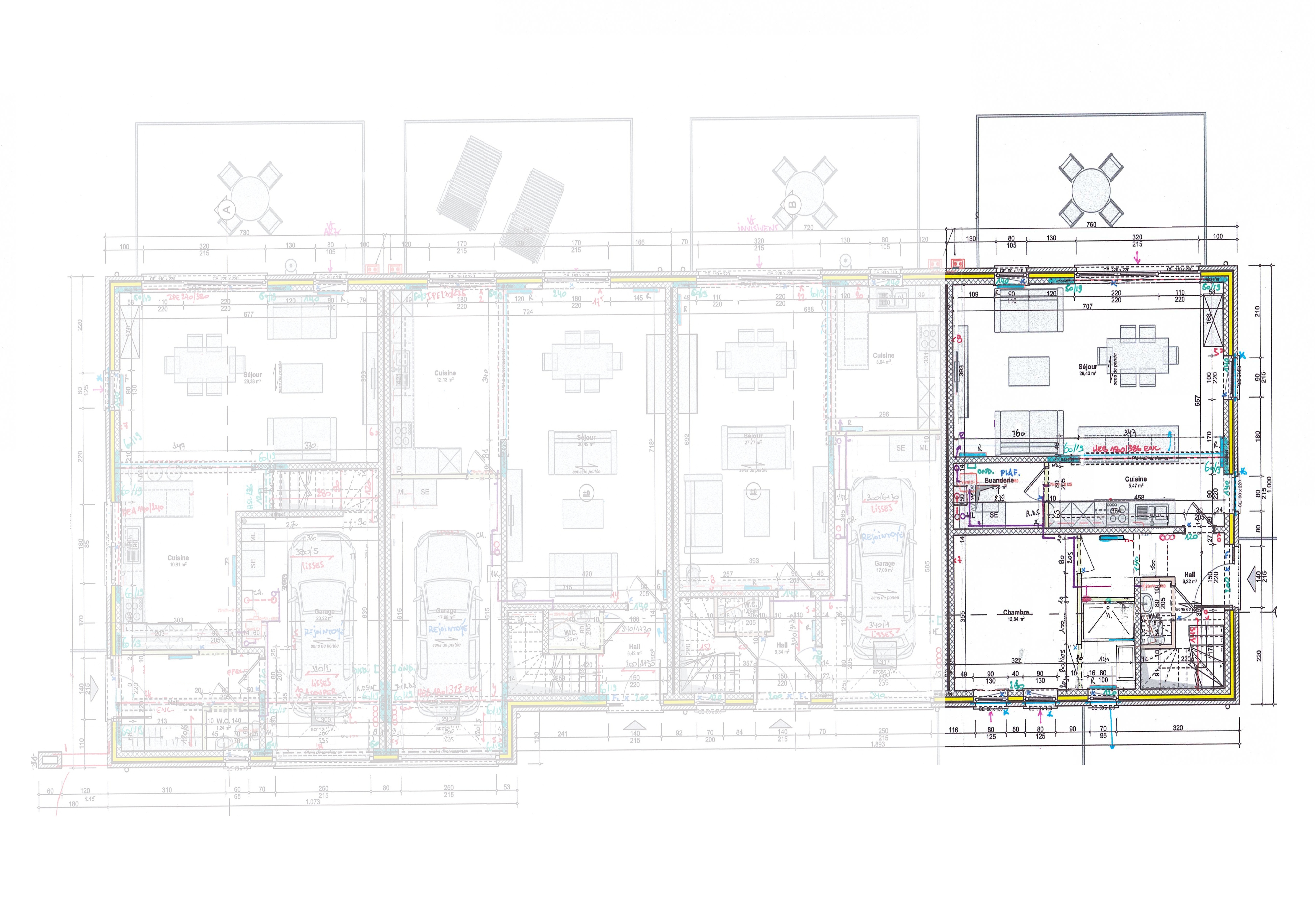
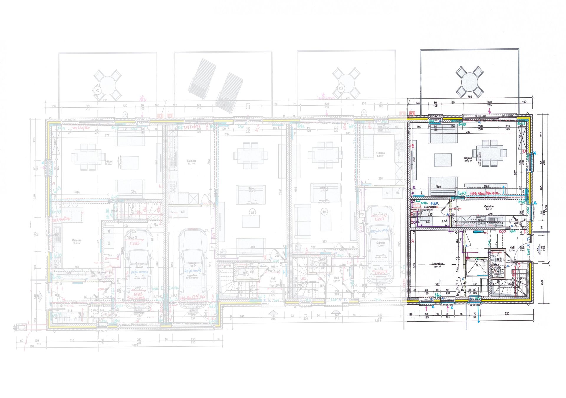
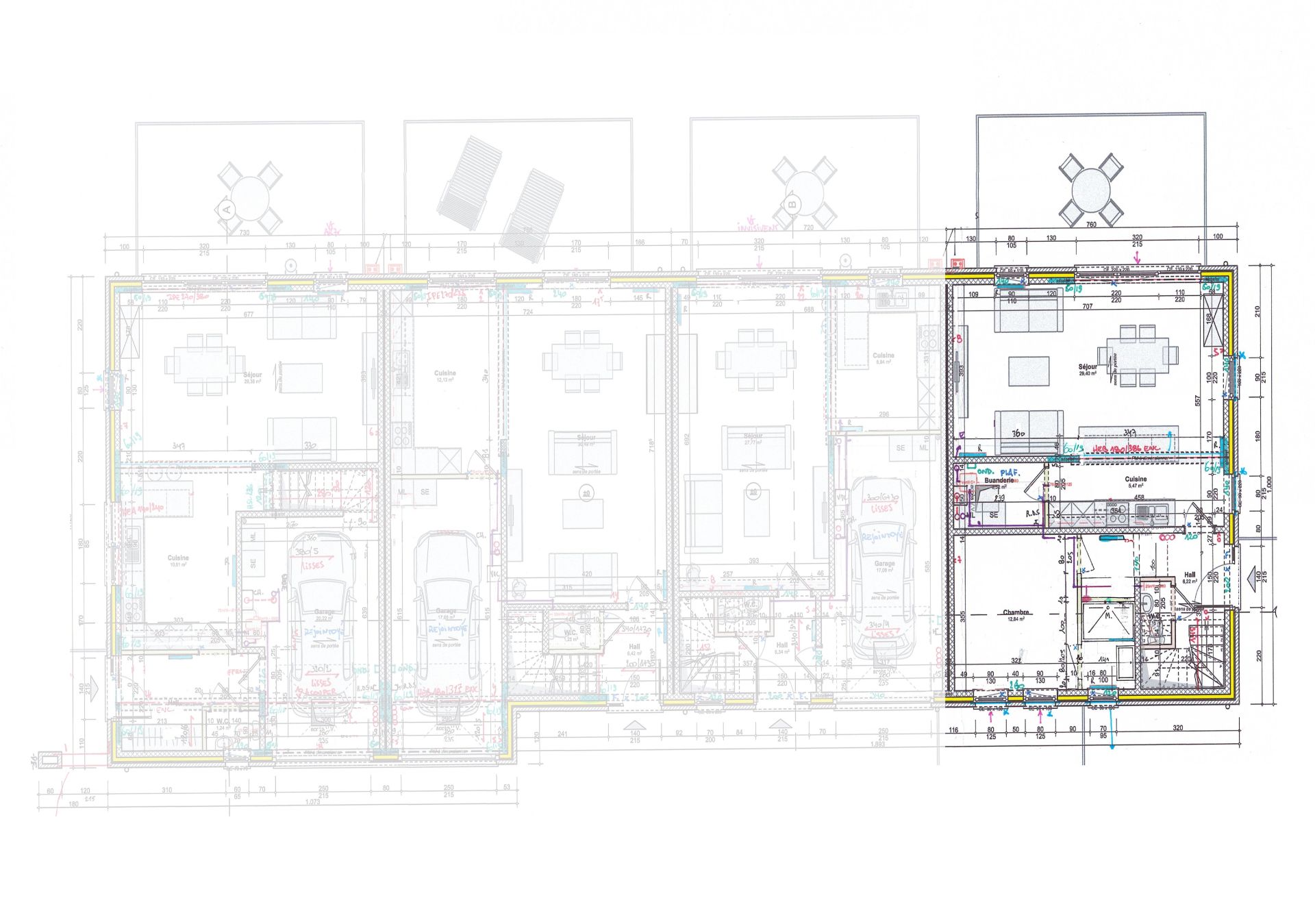
Cette maison 3 façades d’environ 150m² est implantée sur un terrain d’à peu près 4 ares 24.
Elle se compose au rez-de-chaussée d’un hall d’entrée, d’un WC séparé, d’un lumineux et spacieux séjour avec espace cuisine ouvert, d’une suite avec chambre et salle de douche privative et d’une buanderie.
A l’étage, vous trouverez un hall de nuit donnant accès à 3 belles chambres dont une avec dressing et une salle de bain (douche, baignoire, meuble vasque, WC). Vous profitez également d’un grenier, idéal pour le stockage/rangement.
Profitez d’un bien neuf avec isolation poussée, d’une chaudière au gaz Vaillant, de 6 panneaux photovoltaïques et qui offre un PEB A garantissant confort, économies d’énergie et respect de l’environnement assurant un cadre de vie agréable et économe.

* Valable jusqu'au 22/02/2026

Prix et disponibilités

Prix H.F. clé sur porte 329 000 € HF*
Disponibilité A la livraison
Adresse Rue Jean Barthélémy / Rue Chéry
Région MONS-LEZ-LIEGE (FLEMALLE)
Province Liège
Superficie du terrain 424 m²
Année de construction 2025
PEB A
Contactez Sofia au 0484937976
* Hors frais et hors TVA

Informations techniques

Type de bien Maison
Façades 3 façades
Superficie 150 m²
Superficie du terrain 424 m²
Orientation SE
Type de chauffage Chauffage central gaz y compris pour la production d'eau chaude sanitaire.
Type de châssis Châssis en PVC, double vitrage super isolant.
Isolation des murs 10 cm de polyuréthane.
Isolation du sol 10 cm de polyuréthane.
Isolation toiture 22cm de laine minérale.
Garantie Le bâtiment est garanti 10 ans.
Installation éléctrique L'installation électrique à un certificat de conformité valable 25 ans.

Composition du bien

Hall d'entrée Oui
Séjour Oui
Cuisine Oui
Salle à manger Oui
WC 2 WC
Buanderie Oui
Dressing Oui
Hall de nuit Oui
Chambres 4 chambres
Salles de bain Oui
Salle de douche Oui
Grenier Oui
Garage Non
Parking 2 places
Jardin Oui
Terrasse Oui
Cuisine équipée Pas de cuisine équipée
Mezzanine Non
Véranda Non
Local à poubelle Non

Lotissement de MONS-LEZ-LIEGE

Découvrez le lotissement

Discutons de votre projet

Vous avez une (ou plusieurs) question(s), vous souhaitez des renseignements complémentaires ou parler de votre futur projet ?
Nous sommes à votre écoute, sans engagement !

Fixer un rendez-vous

Maisons Baijot

Chez Maisons Baijot, nous aimons penser que nous ne construisons pas que des maisons clé sur porte. Nous bâtissons des lieux de vie, de ceux où les souvenirs se créent et se transmettent, où les moments se vivent et se partagent. Des maisons où des enfants grandissent, où des couples vieillissent, où l’on se dispute, où l’on se réconcilie, des maisons où l’on fête des anniversaires, des naissances, des mariages, des diplômes, des départs à la retraite…

 

Pour concrétiser votre projet de construction, nous vous offrons un large choix d’idées de plans pour trouver le style de maison qui conviendra parfaitement à vos envies et à votre budget. Toutes ces options sont bien entendu souples et personnalisables pour réaliser la construction d’une maison qui vous ressemble.

 

Bienvenue dans l’Univers Maisons Baijot.