CIERGNON 01

3
1
Faire offre à partir de
309 000 € HF*
Prix global
* Hors frais et hors TVA

Descriptif

Profitez d'une réduction de 10.000 euros avec nos conditions salon ! *

Le projet Herock propose un ensemble de maisons contemporaines, idéalement situées dans un quartier résidentiel calme et orienté plein sud. Chaque habitation a été pensée pour offrir confort, fonctionnalité et qualité de vie, avec de beaux volumes, des finitions soignées, un haut niveau de performance énergétique et des équipements durables : micro-station, citerne d’eau de pluie de 10 000L, panneaux photovoltaïques et terrains privatifs.
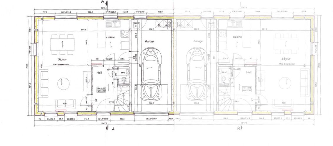
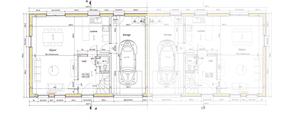
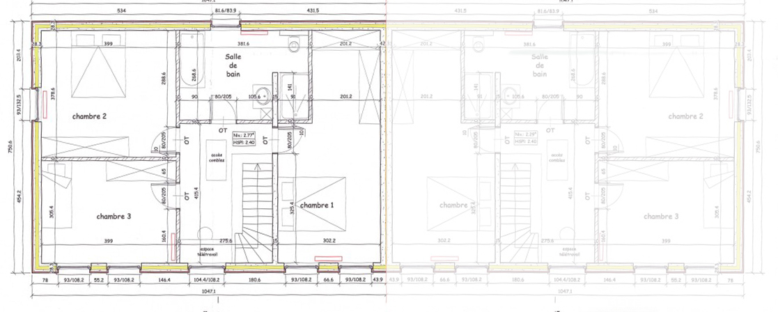
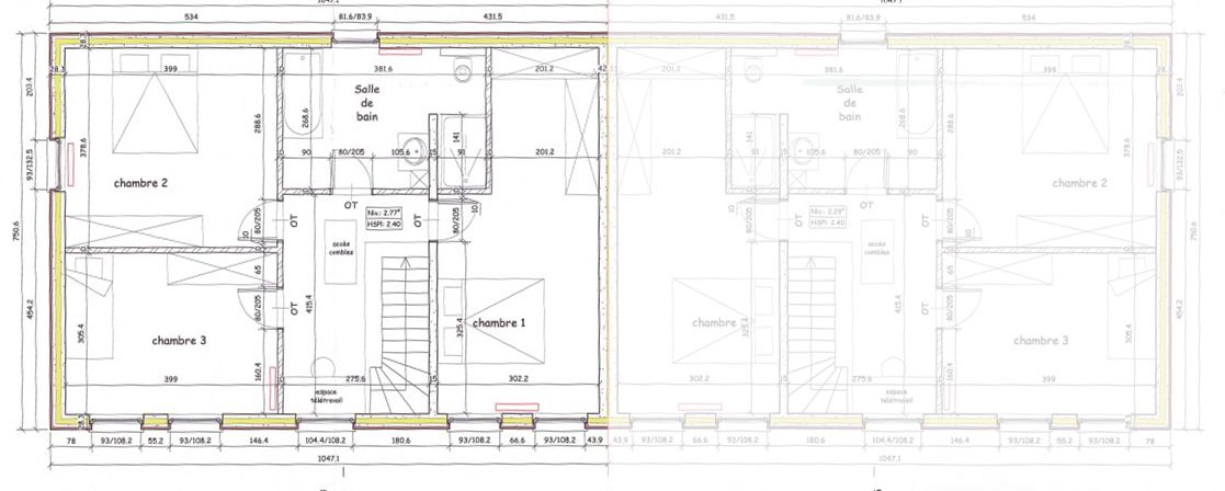
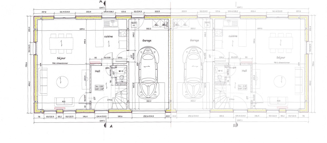
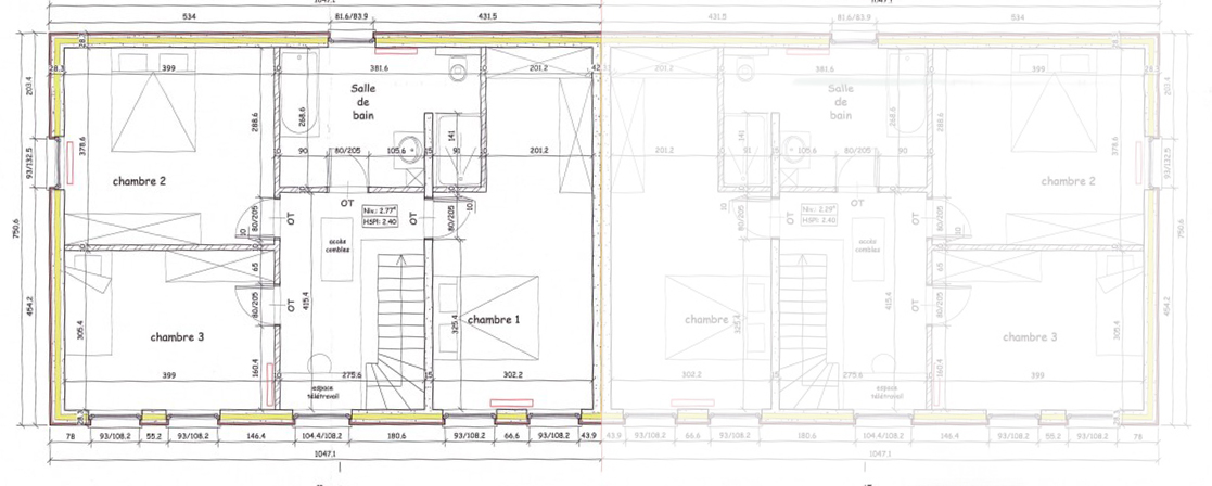
Le Lot 1 est une maison trois façades de 154 m², implantée sur un terrain de 479 m². Elle offre un séjour lumineux de 27 m², une cuisine de 9 m², trois chambres confortables (15, 16 et 11 m²), ainsi qu’une salle de bain équipée d’une douche et d’une baignoire. Elle dispose également d’un garage de 20 m², d’une micro-station d’épuration, d’une citerne d’eau de pluie et de panneaux photovoltaïques.
PEB A – performance énergétique optimale.

* Valable jusqu'au 22/02/2026

Prix et disponibilités

Faire offre à partir de 309 000 € HF*
Disponibilité A l'acte
Adresse Herock
Région CIERGNON (HOUYET)
Province Namur
Superficie du terrain 515 m²
Année de construction 2025
PEB A
Contactez Marie-Céline au 061/58.89.24
* Hors frais et hors TVA

Informations techniques

Type de bien Maison
Façades 3 façades
Superficie du terrain 515 m²
Orientation S
Type de chauffage Chauffage central gaz y compris pour la production d'eau chaude sanitaire.
Type de châssis Châssis en PVC, double vitrage super isolant, porte de garage sectionnelle isolée.
Isolation des murs 10 cm de polyuréthane.
Isolation du sol 12 cm de polyuréthane.
Isolation toiture 22cm de laine minérale.
Garantie Le bâtiment est garanti 10 ans.
Installation éléctrique L'installation électrique à un certificat de conformité valable 25 ans.

Composition du bien

Hall d'entrée Oui
Séjour Oui
Cuisine Non
Salle à manger Non
WC 2 WC
Hall de nuit Oui
Chambres 3 chambres
Salles de bain Oui
Garage Non
Parking Oui
Jardin Oui
Terrasse Oui
Cuisine équipée Pas de cuisine équipée
Mezzanine Non
Garage avec buanderie Oui
Véranda Non
Local à poubelle Non

Lotissement de CIERGNON

Découvrez le lotissement

Discutons de votre projet

Vous avez une (ou plusieurs) question(s), vous souhaitez des renseignements complémentaires ou parler de votre futur projet ?
Nous sommes à votre écoute, sans engagement !

Fixer un rendez-vous

Maisons Baijot

Chez Maisons Baijot, nous aimons penser que nous ne construisons pas que des maisons clé sur porte. Nous bâtissons des lieux de vie, de ceux où les souvenirs se créent et se transmettent, où les moments se vivent et se partagent. Des maisons où des enfants grandissent, où des couples vieillissent, où l’on se dispute, où l’on se réconcilie, des maisons où l’on fête des anniversaires, des naissances, des mariages, des diplômes, des départs à la retraite…

 

Pour concrétiser votre projet de construction, nous vous offrons un large choix d’idées de plans pour trouver le style de maison qui conviendra parfaitement à vos envies et à votre budget. Toutes ces options sont bien entendu souples et personnalisables pour réaliser la construction d’une maison qui vous ressemble.

 

Bienvenue dans l’Univers Maisons Baijot.