AMBERLOUP 3

157
3
1
Prix H.F. clé sur porte
347 000 € HF*
Prix global
* Hors frais et hors TVA

Descriptif

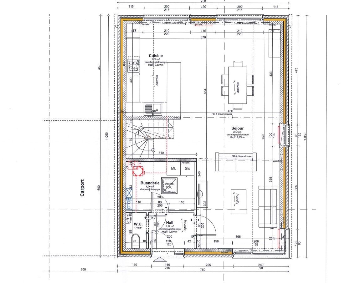
Dans un environnement calme et verdoyant, cette maison neuve est située au cœur du village d’Amberloup, dans la commune de Sainte-Ode. L’ambiance résidentielle, en lisière de campagne, conviendra à ceux qui recherchent un cadre naturel, tout en restant à proximité des centres de services régionaux. La gare de Libramont est accessible en +/- 12 minutes. Les axes N848 et E411 permettent une desserte fluide vers Bastogne et Saint-Hubert. Une école fondamentale se trouve à +/- 1,5 km, la crèche la plus proche à +/- 5 minutes. Pharmacie et médecin généraliste sont situés dans un rayon de +/- 3 km. Supermarché, boulangerie, banque et salle de sport sont accessibles en +/- 10 minutes en voiture. Édifiée sur une parcelle de +/- 112.35 ares, cette maison trois façades développe une surface habitable de +/- 157 m². Elle dispose d’une orientation plein sud à l’arrière, d’une terrasse et d’un carport. Le rez-de-chaussée comprend un hall d’entrée, un séjour de +/- 39 m², une cuisine non équipée de +/- 9 m², une buanderie de +/- 6 m² et un WC. À l’étage, le hall de nuit distribue une chambre parentale de +/- 18 m², deux chambres de +/- 12 m² chacune et une salle de bain avec douche et baignoire.

Prix et disponibilités

Prix H.F. clé sur porte 347 000 € HF*
Disponibilité A l'acte
Adresse Route de la Barrière
Région AMBERLOUP (SAINTE-ODE)
Province Luxembourg
Superficie du terrain 822 m²
Année de construction 2025
PEB A
Contactez Georges au 0487641789
* Hors frais et hors TVA

Informations techniques

Type de bien Maison
Façades 4 façades
Superficie 157 m²
Superficie du terrain 822 m²
Orientation S
Type de chauffage Chauffage central gaz y compris pour la production d'eau chaude sanitaire.
Type de châssis Châssis en PVC, double vitrage super isolant.
Isolation des murs 10 cm de polyuréthane.
Isolation du sol 12 cm de polyuréthane.
Isolation toiture 22cm de laine minérale.
Garantie Le bâtiment est garanti 10 ans.
Installation éléctrique L'installation électrique à un certificat de conformité valable 25 ans.

Composition du bien

Hall d'entrée Non
Séjour Oui
Cuisine Non
Salle à manger Non
WC 2 WC
Hall de nuit Oui
Chambres 3 chambres
Salles de bain Oui
Garage Non
Carport Oui
Parking Oui
Jardin Oui
Terrasse Oui
Cuisine équipée Pas de cuisine équipée
Mezzanine Non
Véranda Non
Local à poubelle Non

Lotissement de AMBERLOUP

Découvrez le lotissement

Ces biens font partie de la même promotion

Discutons de votre projet

Vous avez une (ou plusieurs) question(s), vous souhaitez des renseignements complémentaires ou parler de votre futur projet ?
Nous sommes à votre écoute, sans engagement !

Fixer un rendez-vous

Maisons Baijot

Chez Maisons Baijot, nous aimons penser que nous ne construisons pas que des maisons clé sur porte. Nous bâtissons des lieux de vie, de ceux où les souvenirs se créent et se transmettent, où les moments se vivent et se partagent. Des maisons où des enfants grandissent, où des couples vieillissent, où l’on se dispute, où l’on se réconcilie, des maisons où l’on fête des anniversaires, des naissances, des mariages, des diplômes, des départs à la retraite…

 

Pour concrétiser votre projet de construction, nous vous offrons un large choix d’idées de plans pour trouver le style de maison qui conviendra parfaitement à vos envies et à votre budget. Toutes ces options sont bien entendu souples et personnalisables pour réaliser la construction d’une maison qui vous ressemble.

 

Bienvenue dans l’Univers Maisons Baijot.