AYE 1

166
3
1
Prix H.F. clé sur porte
325 000 € HF*
Prix global
* Hors frais et hors TVA

Descriptif

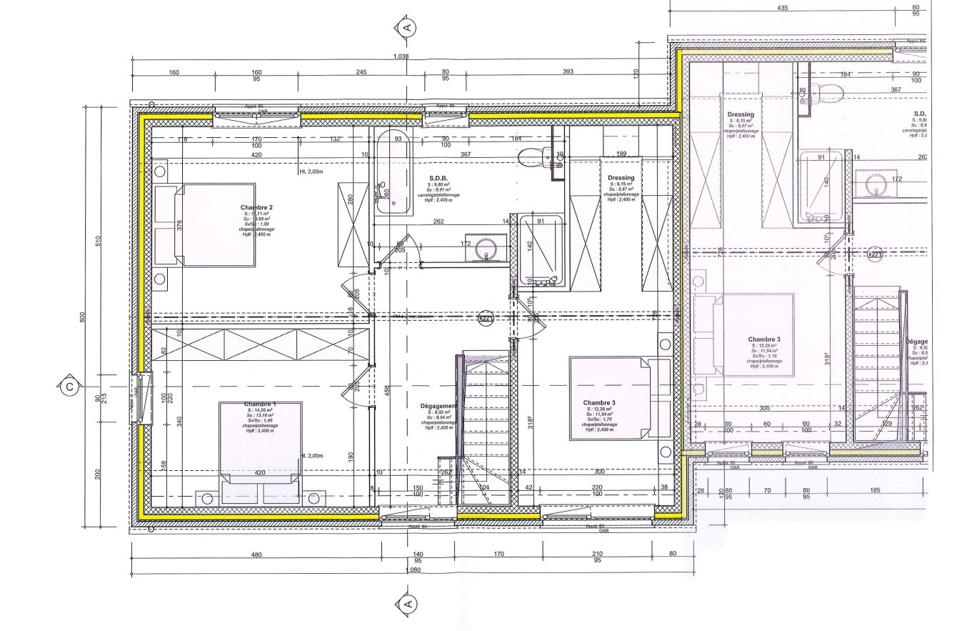
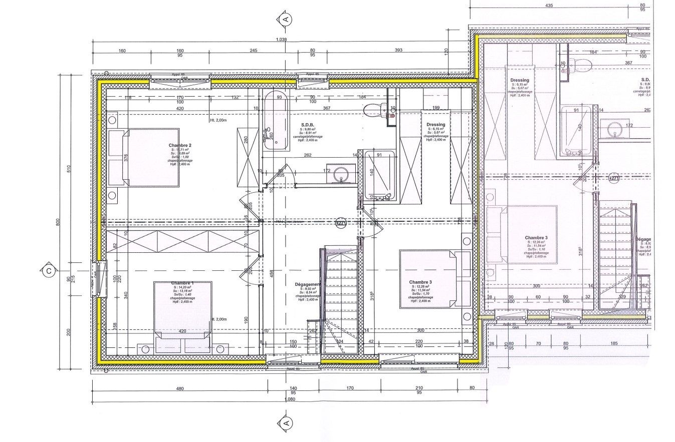
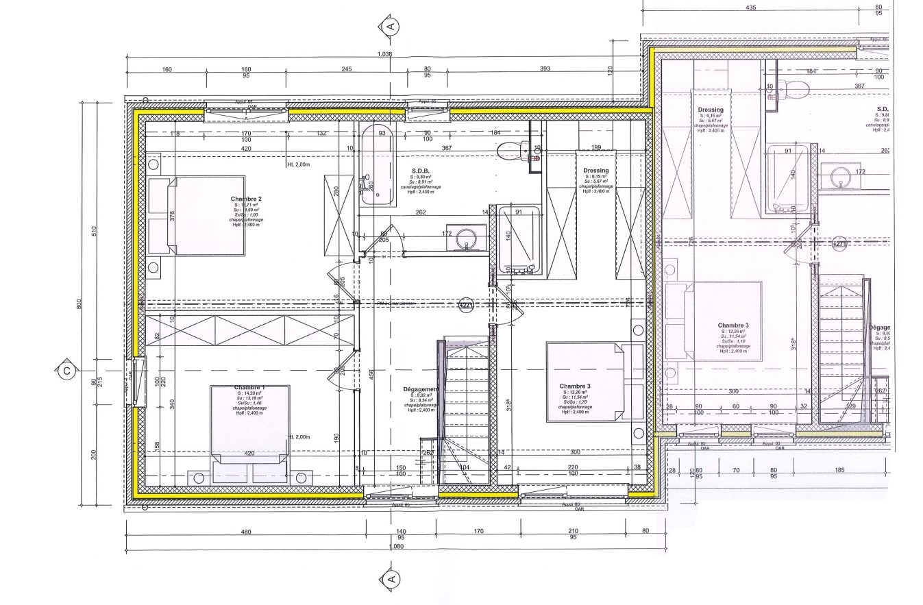
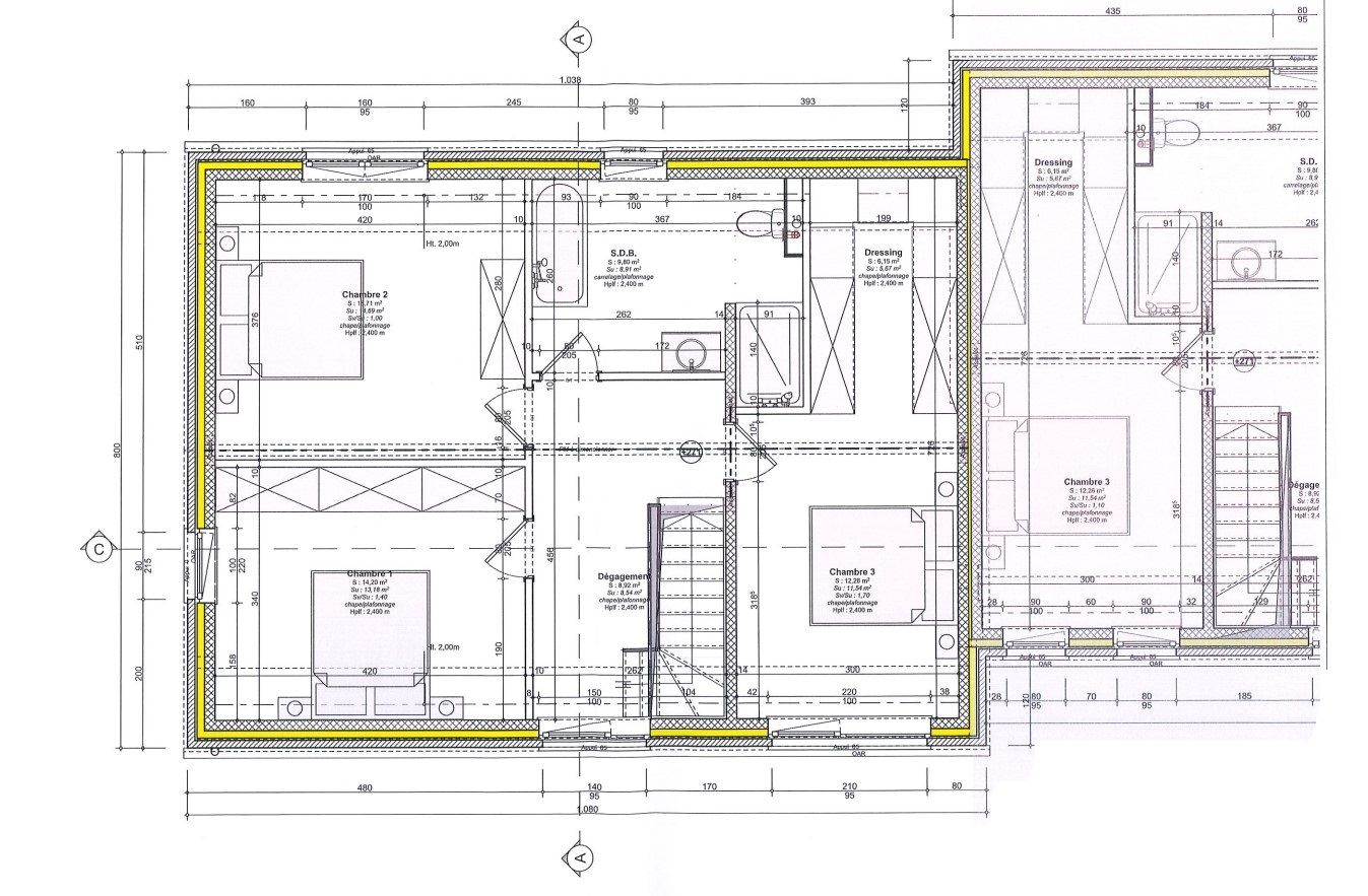
Située dans un environnement résidentiel calme à Aye, cette maison neuve se trouve au cœur d’un quartier à l’atmosphère familiale et paisible, bénéficiant d’une bonne intégration dans le tissu local. L’ambiance est sereine, propice à une vie quotidienne confortable, à proximité immédiate de la ville de Marche-en-Famenne. L’arrêt de bus le plus proche se situe à +/- 450 mètres, et la gare de Marche-en-Famenne est accessible en +/- 7 minutes en voiture. L’accès à la N4 s’effectue en +/- 5 minutes, facilitant les déplacements vers Namur ou Luxembourg. Une école fondamentale se trouve à +/- 800 mètres, tandis qu’une crèche est disponible à moins de 5 minutes. Une pharmacie se situe à +/- 2 minutes, et un médecin généraliste est accessible à +/- 1 km. Un supermarché est présent à moins de 5 minutes de route. Les commerces de proximité, boulangerie, banque et salle de sport sont situés dans un rayon de +/- 1 à 3 km. Ce bien trois façades développe une surface habitable de +/- 166 m² sur un terrain de +/- 6,08 ares. La maison dispose d’un garage intégré de +/- 21 m² avec espace buanderie. La terrasse, orientée à l’ouest, permet de profiter d’un bon ensoleillement en fin de journée. Le rez-de-chaussée comprend un hall d’entrée avec WC invités, un séjour lumineux de +/- 29 m², ainsi qu’une cuisine ouverte de +/- 11 m². À l’étage, le hall de nuit dessert une chambre parentale avec dressing de +/- 18 m², une seconde chambre de +/- 15 m², une troisième chambre de +/- 14 m², ainsi qu’une salle de bain complète de +/- 9 m² équipée d’une baignoire et d’une douche. La maison est équipée d’un chauffage central au gaz et de 6 panneaux photovoltaïques. Le niveau de performance énergétique est classé A, garantissant un confort thermique et une consommation maîtrisée.

Prix et disponibilités

Prix H.F. clé sur porte 325 000 € HF*
Disponibilité A l'acte
Adresse Rue des Jolis Bois
Région AYE (MARCHE-EN-FAMENNE)
Province Luxembourg
Superficie du terrain 0 m²
Année de construction 2025
PEB A
Contactez Florence au 0484937976
* Hors frais et hors TVA

Informations techniques

Type de bien Maison
Façades 3 façades
Superficie 166 m²
Orientation S
Type de chauffage Chauffage central gaz y compris pour la production d'eau chaude sanitaire.
Type de châssis Châssis en PVC, double vitrage super isolant, porte de garage sectionnelle isolée.
Isolation des murs 10 cm de polyuréthane.
Isolation du sol 12 cm de polyuréthane.
Isolation toiture 22cm de laine minérale.
Garantie Le bâtiment est garanti 10 ans.
Installation éléctrique L'installation électrique à un certificat de conformité valable 25 ans.

Composition du bien

Hall d'entrée Oui
Séjour Oui
Cuisine Non
Salle à manger Non
WC 2 WC
Hall de nuit Oui
Chambres 3 chambres
Salles de bain Oui
Garage Non
Parking Oui
Jardin Oui
Terrasse Oui
Cuisine équipée Pas de cuisine équipée
Mezzanine Non
Garage avec buanderie Oui
Véranda Non
Local à poubelle Non

Lotissement de AYE

Découvrez le lotissement

Ces biens font partie de la même promotion

Discutons de votre projet

Vous avez une (ou plusieurs) question(s), vous souhaitez des renseignements complémentaires ou parler de votre futur projet ?
Nous sommes à votre écoute, sans engagement !

Fixer un rendez-vous

Maisons Baijot

Chez Maisons Baijot, nous aimons penser que nous ne construisons pas que des maisons clé sur porte. Nous bâtissons des lieux de vie, de ceux où les souvenirs se créent et se transmettent, où les moments se vivent et se partagent. Des maisons où des enfants grandissent, où des couples vieillissent, où l’on se dispute, où l’on se réconcilie, des maisons où l’on fête des anniversaires, des naissances, des mariages, des diplômes, des départs à la retraite…

 

Pour concrétiser votre projet de construction, nous vous offrons un large choix d’idées de plans pour trouver le style de maison qui conviendra parfaitement à vos envies et à votre budget. Toutes ces options sont bien entendu souples et personnalisables pour réaliser la construction d’une maison qui vous ressemble.

 

Bienvenue dans l’Univers Maisons Baijot.