RESTEIGNE 2

172
3
1
Faire offre à partir de
315 000 € HF*
Prix global
* Hors frais et hors TVA

Descriptif

Action Salon exceptionnelle valable jusqu'au 22/02
Profitez d’une remise de 10.000 €
315.000 € au lieu de 325.000 € HTVA

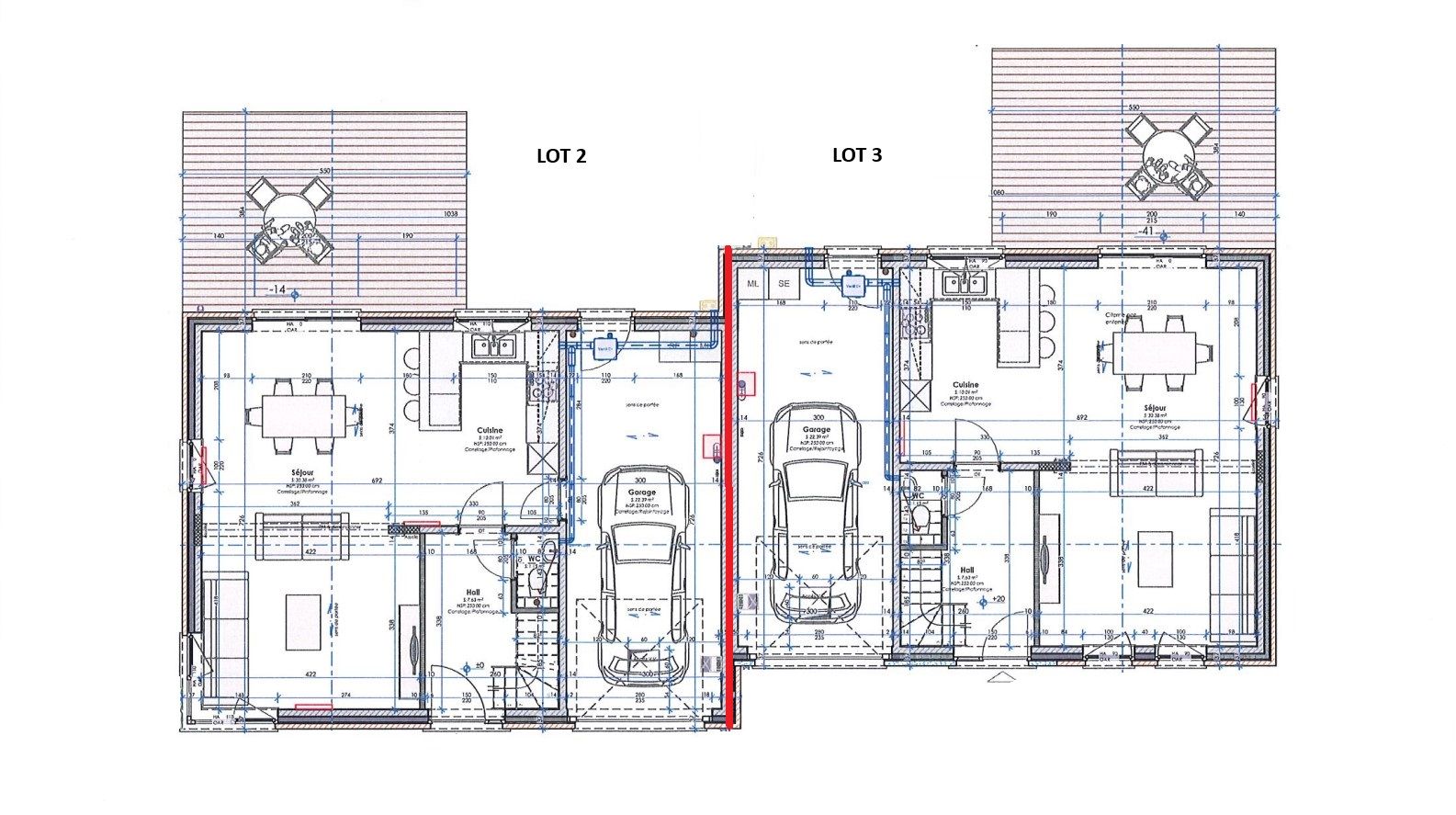
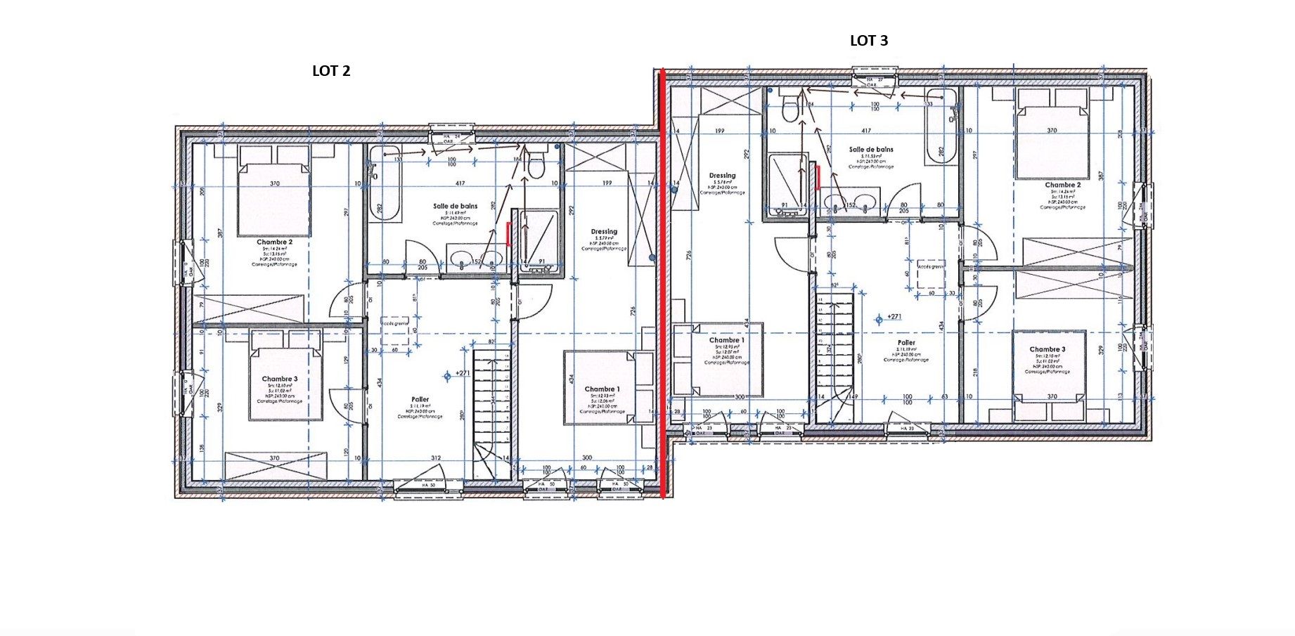
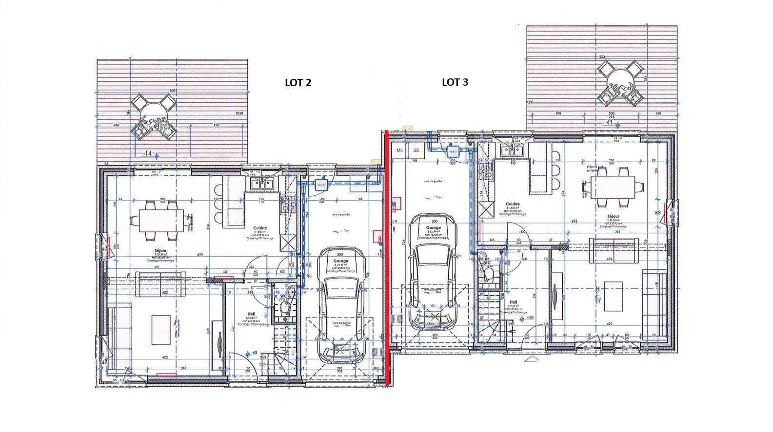
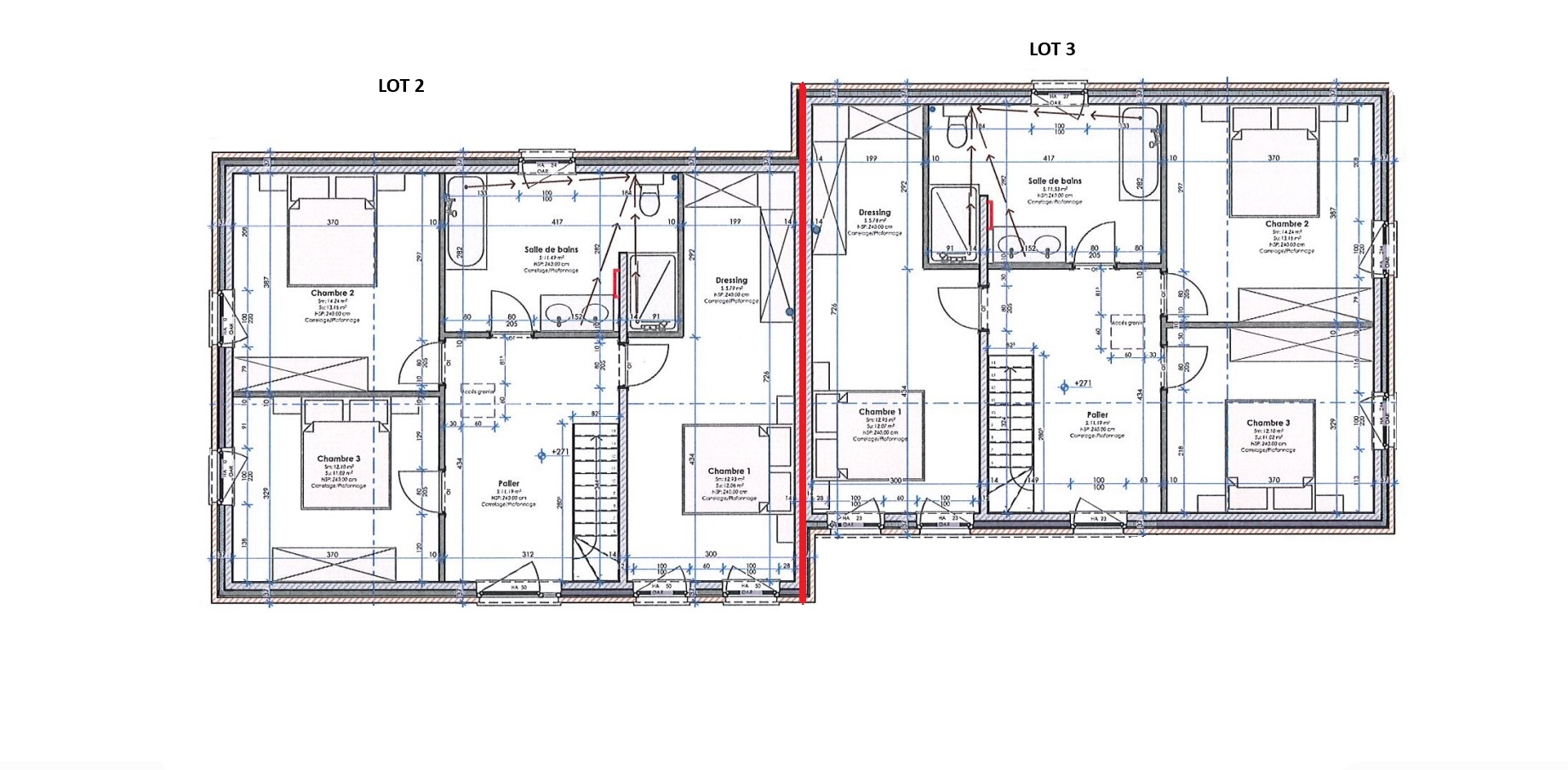
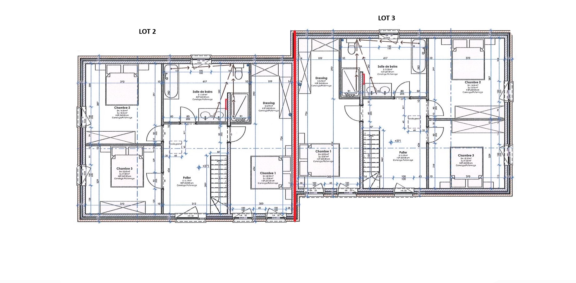
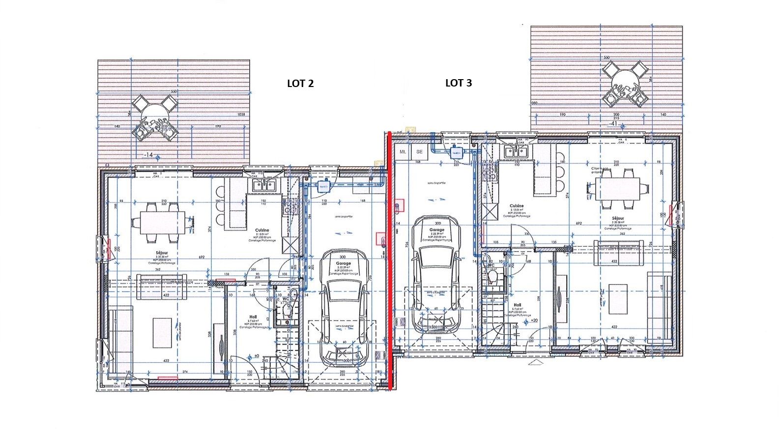
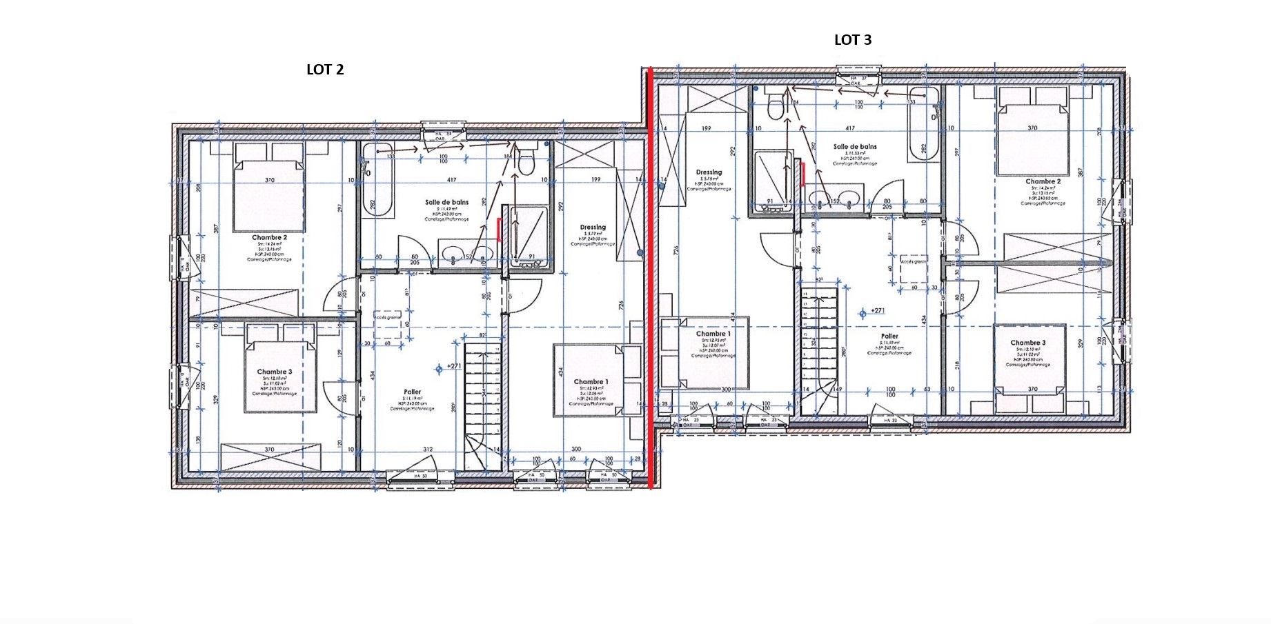
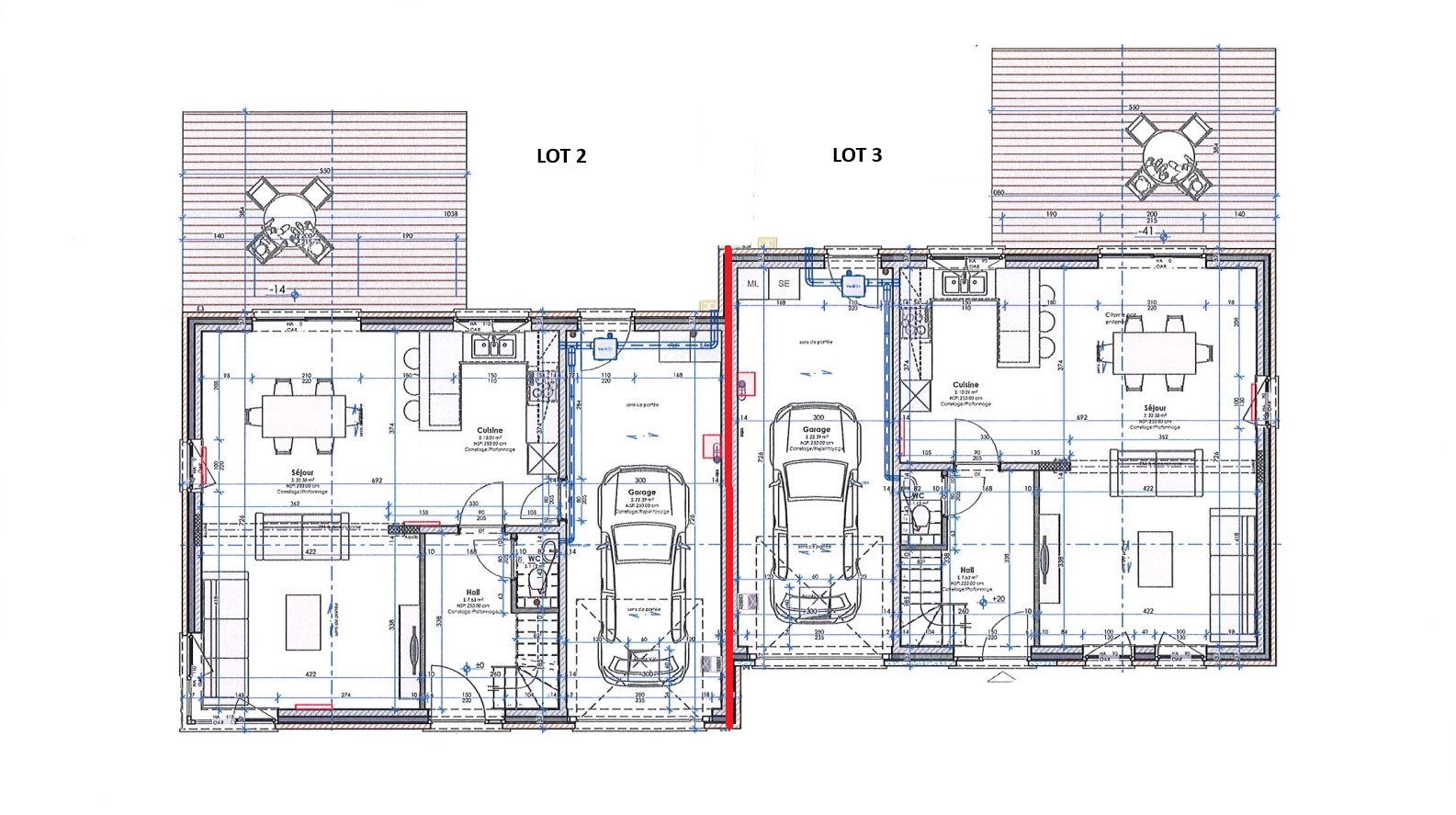
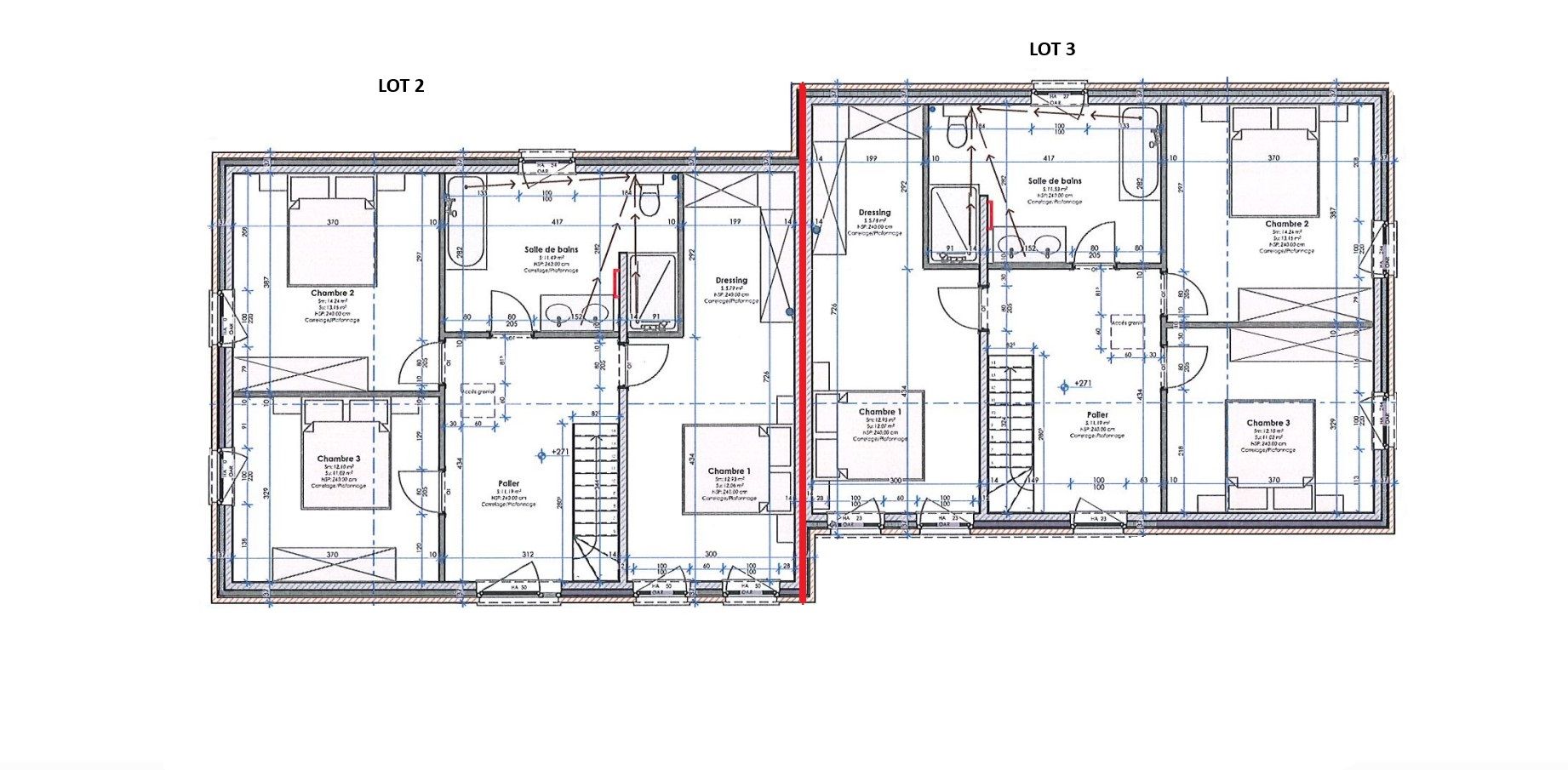
Située à Resteigne, rue du Couvent, cette maison 3 façades offre un cadre de vie agréable dans un environnement calme et verdoyant. Le rez-de-chaussée se compose d’un hall d’entrée, d’un WC séparé, d’un séjour lumineux d’environ 30 m², d’une cuisine de près de 8 m² et d’un garage d’environ 20 m². À l’étage, un hall de nuit de 11 m² dessert trois chambres de +/- 14, 12 et 17 m² ainsi qu’une spacieuse salle de bain de 11 m² équipée d’une baignoire et d’une douche. L’extérieur dispose d’un jardin de 920 m², offrant un espace idéal pour les moments de détente en plein air. Cette propriété, alliant confort et fonctionnalité, constitue une opportunité intéressante pour toute personne à la recherche d’une habitation familiale dans un quartier paisible de Resteigne.

Prix et disponibilités

Faire offre à partir de 315 000 € HF*
Disponibilité A l'acte
Adresse Rue du Couvent
Région RESTEIGNE (TELLIN)
Province Luxembourg
Superficie du terrain 0 m²
Année de construction 2025
PEB A
Contactez Yolaine au 0470103603
* Hors frais et hors TVA

Informations techniques

Type de bien Maison
Façades 4 façades
Superficie 172 m²
Orientation S
Type de chauffage Chauffage central gaz y compris pour la production d'eau chaude sanitaire.
Type de châssis Châssis en PVC, double vitrage super isolant, porte de garage sectionnelle isolée.
Isolation des murs 10 cm de polyuréthane.
Isolation du sol 12 cm de polyuréthane.
Isolation toiture 22cm de laine minérale.
Garantie Le bâtiment est garanti 10 ans.
Installation éléctrique L'installation électrique à un certificat de conformité valable 25 ans.

Composition du bien

Hall d'entrée Oui
Séjour Oui
Cuisine Non
Salle à manger Non
WC 2 WC
Hall de nuit Oui
Chambres 3 chambres
Salles de bain Oui
Garage Non
Parking 2 places
Jardin Oui
Terrasse Oui
Cuisine équipée Pas de cuisine équipée
Mezzanine Non
Garage avec buanderie Oui
Véranda Non
Local à poubelle Non

Lotissement de RESTEIGNE

Découvrez le lotissement

Discutons de votre projet

Vous avez une (ou plusieurs) question(s), vous souhaitez des renseignements complémentaires ou parler de votre futur projet ?
Nous sommes à votre écoute, sans engagement !

Fixer un rendez-vous

Maisons Baijot

Chez Maisons Baijot, nous aimons penser que nous ne construisons pas que des maisons clé sur porte. Nous bâtissons des lieux de vie, de ceux où les souvenirs se créent et se transmettent, où les moments se vivent et se partagent. Des maisons où des enfants grandissent, où des couples vieillissent, où l’on se dispute, où l’on se réconcilie, des maisons où l’on fête des anniversaires, des naissances, des mariages, des diplômes, des départs à la retraite…

 

Pour concrétiser votre projet de construction, nous vous offrons un large choix d’idées de plans pour trouver le style de maison qui conviendra parfaitement à vos envies et à votre budget. Toutes ces options sont bien entendu souples et personnalisables pour réaliser la construction d’une maison qui vous ressemble.

 

Bienvenue dans l’Univers Maisons Baijot.