WINENNE 6

176
3
1
Faire offre à partir de
329 000 € HF*
Prix global
* Hors frais et hors TVA

Descriptif

Action Salon exceptionnelle valable jusqu'au 22/02
Profitez d’une remise de 10.000 €.
329.000 € au lieu de 339.000 € HTVA


Située dans un quartier résidentiel calme et aéré de Winenne, cette maison neuve bénéficie d’un environnement paisible, à proximité directe de la nature, tout en étant facilement accessible depuis le centre de Beauraing. L’ambiance est familiale, avec peu de circulation et une implantation favorable pour les trajets quotidiens.

La gare de Beauraing se trouve à +/- 9 minutes en voiture, et un arrêt de bus est accessible à +/- 450 mètres. Les axes routiers N95 et N40 sont atteignables en moins de 10 minutes. Une école fondamentale est située à +/- 600 mètres, et une crèche à moins de 5 minutes en voiture. Une pharmacie et un cabinet de médecine générale sont à environ 3 kilomètres. Le supermarché le plus proche se trouve à 7 minutes. Boulangerie, banque et salle de sport sont accessibles dans un rayon de 4 à 6 kilomètres.

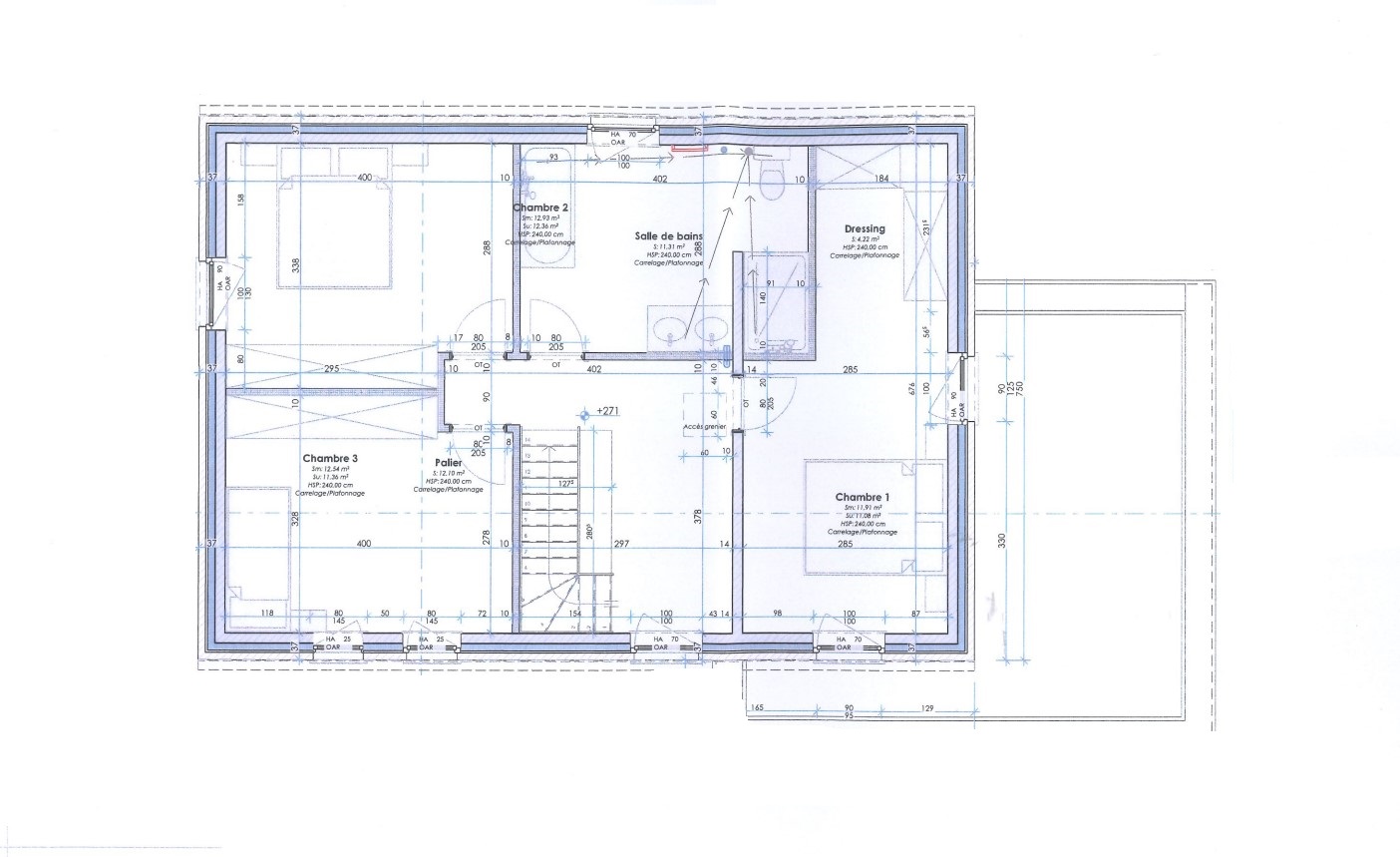
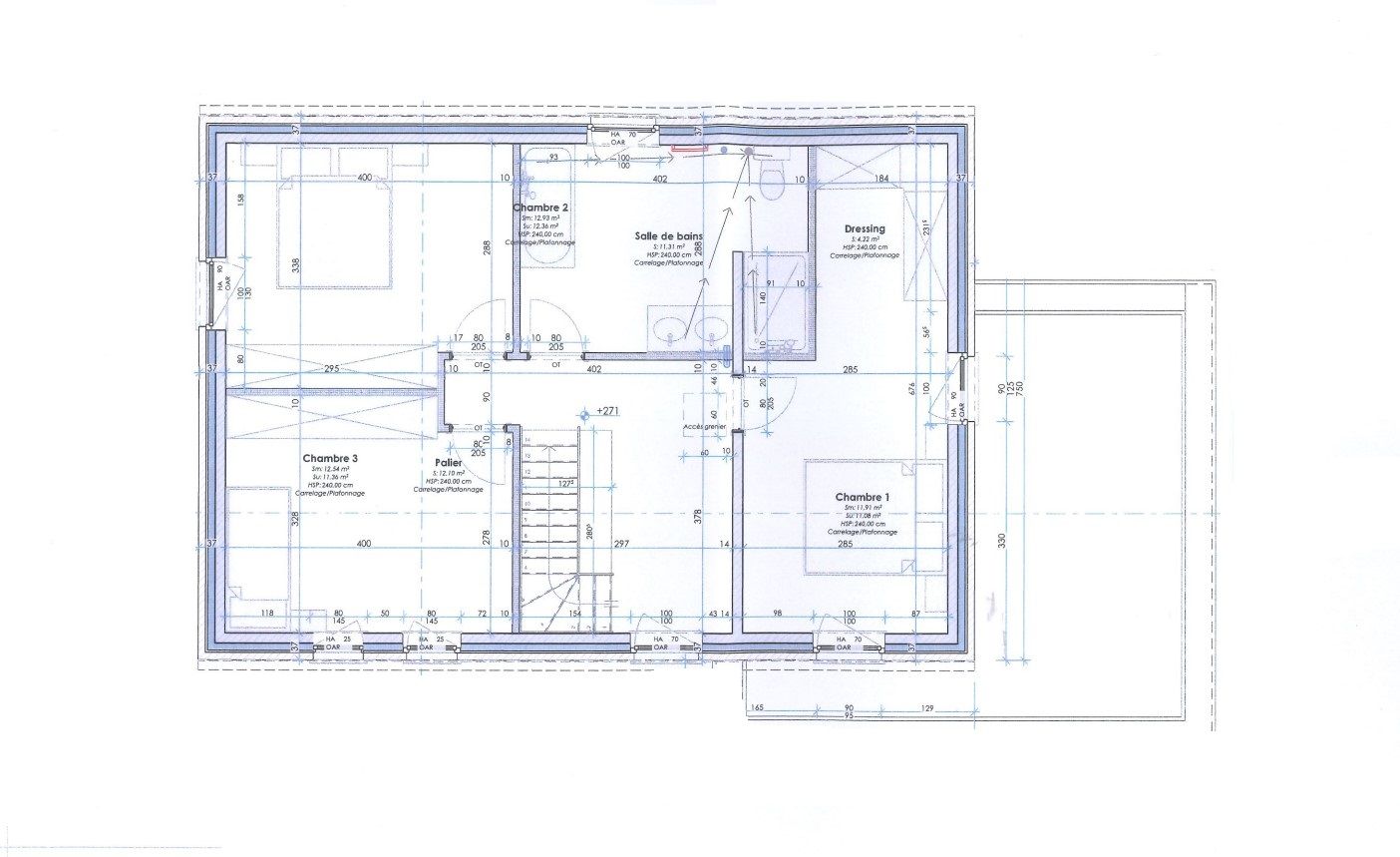
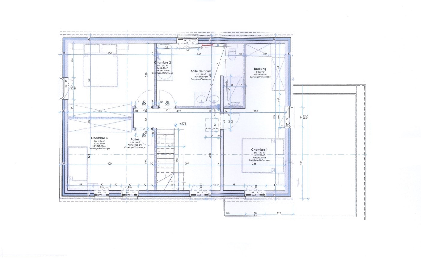
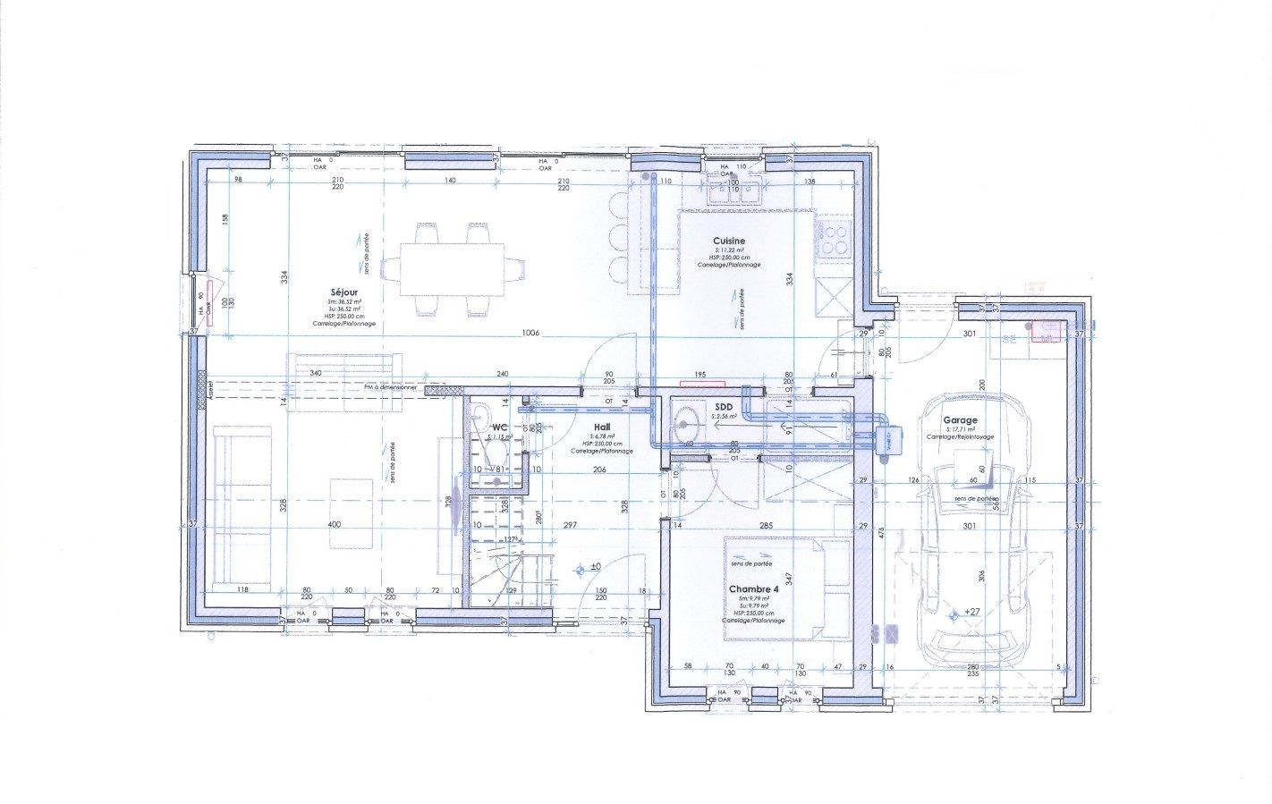
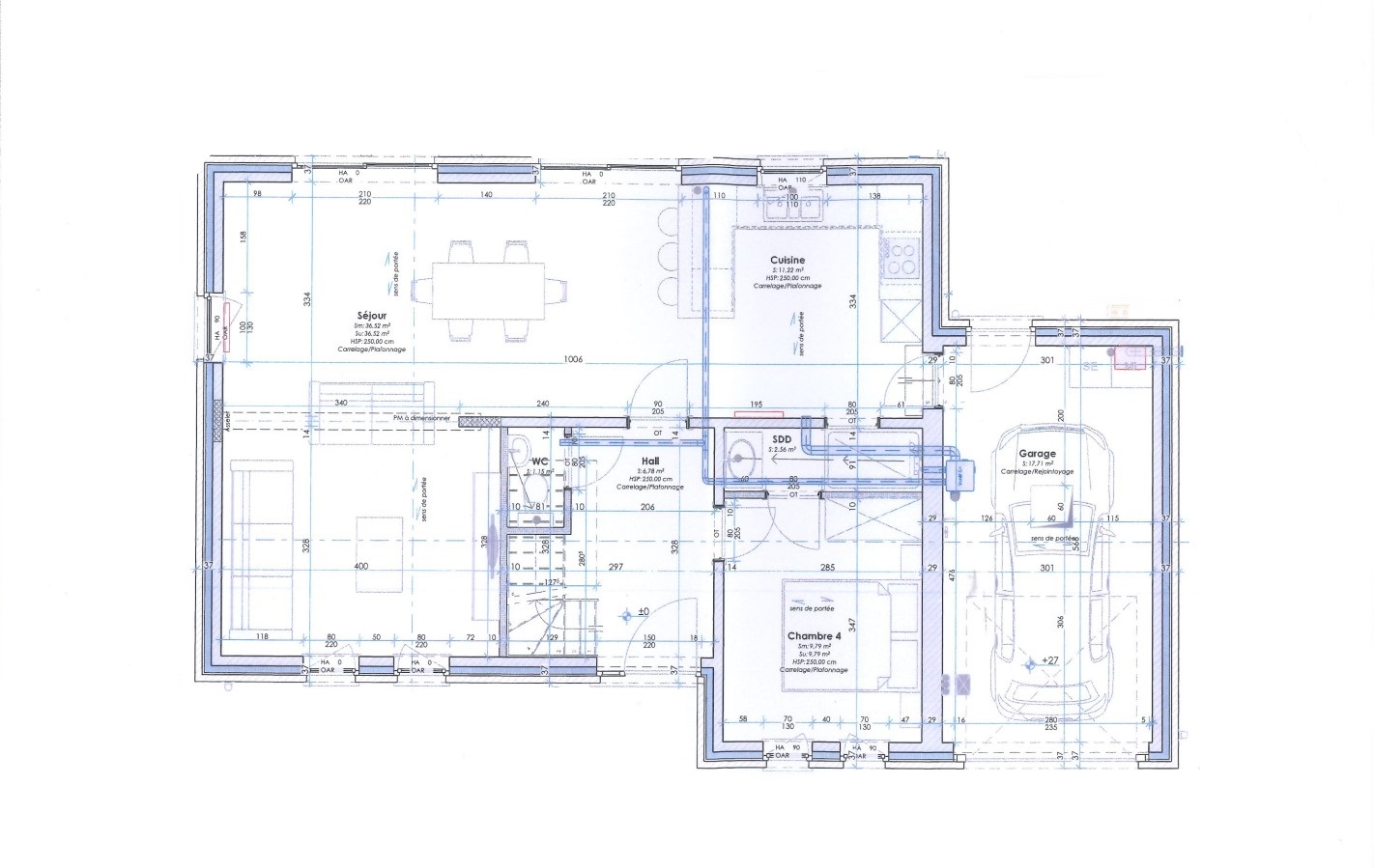
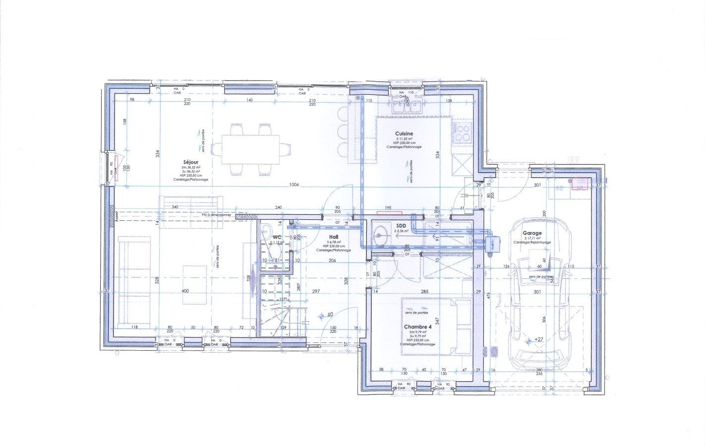
La maison, quatre façades, est implantée sur un terrain de +/- 5,97 ares. Elle développe une surface habitable de +/- 176 m², avec terrasse orientée sud-est et un garage intégré de +/- 17 m².

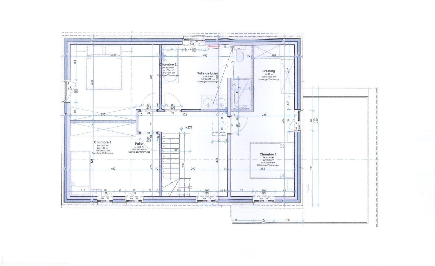
Le rez-de-chaussée se compose d’un hall d’entrée avec WC séparé, d’un séjour lumineux de +/- 36 m², et d’une cuisine semi-ouverte de +/- 11 m². Une chambre de +/- 9 m² complète ce niveau, idéale pour un espace invité ou bureau. À l’étage, le hall de nuit dessert une chambre parentale avec dressing de +/- 17 m², deux chambres de +/- 12 m² chacune, ainsi qu’une salle de bain de +/- 11 m² comprenant baignoire, douche et double vasque.

La maison est équipée d’un système de chauffage au gaz et de 6 panneaux photovoltaïques. Le certificat PEB affiche une performance de niveau A.

Prix et disponibilités

Faire offre à partir de 329 000 € HF*
Disponibilité A l'acte
Adresse Allée du Stade/Quartier de la Brasseri
Région WINENNE (BEAURAING)
Province Namur
Superficie du terrain 597 m²
Année de construction 2025
PEB A
Contactez Marie-Céline au 061/58.89.24
* Hors frais et hors TVA

Informations techniques

Type de bien Maison
Façades 4 façades
Superficie 176 m²
Superficie du terrain 597 m²
Orientation SE
Type de chauffage Chauffage central gaz y compris pour la production d'eau chaude sanitaire.
Type de châssis Châssis en PVC, double vitrage super isolant, porte de garage sectionnelle isolée.
Isolation des murs 10 cm de polyuréthane.
Isolation du sol 12 cm de polyuréthane.
Isolation toiture 22cm de laine minérale.
Garantie Le bâtiment est garanti 10 ans.
Installation éléctrique L'installation électrique à un certificat de conformité valable 25 ans.

Composition du bien

Hall d'entrée Oui
Séjour Oui
Cuisine Non
Salle à manger Non
WC 2 WC
Hall de nuit Oui
Chambres 3 chambres
Salles de bain Oui
Garage Non
Parking 2 places
Jardin Oui
Terrasse Oui
Cuisine équipée Pas de cuisine équipée
Mezzanine Non
Garage avec buanderie Oui
Véranda Non
Local à poubelle Non

Lotissement de WINENNE

Superbe lotissement de 8 lots - PLEIN SUD

Découvrez le lotissement

Discutons de votre projet

Vous avez une (ou plusieurs) question(s), vous souhaitez des renseignements complémentaires ou parler de votre futur projet ?
Nous sommes à votre écoute, sans engagement !

Fixer un rendez-vous

Maisons Baijot

Chez Maisons Baijot, nous aimons penser que nous ne construisons pas que des maisons clé sur porte. Nous bâtissons des lieux de vie, de ceux où les souvenirs se créent et se transmettent, où les moments se vivent et se partagent. Des maisons où des enfants grandissent, où des couples vieillissent, où l’on se dispute, où l’on se réconcilie, des maisons où l’on fête des anniversaires, des naissances, des mariages, des diplômes, des départs à la retraite…

 

Pour concrétiser votre projet de construction, nous vous offrons un large choix d’idées de plans pour trouver le style de maison qui conviendra parfaitement à vos envies et à votre budget. Toutes ces options sont bien entendu souples et personnalisables pour réaliser la construction d’une maison qui vous ressemble.

 

Bienvenue dans l’Univers Maisons Baijot.