AYE ESPINTHE 3

181
3
1
Faire offre à partir de
379 000 € HF*
Prix global
* Hors frais et hors TVA

Descriptif

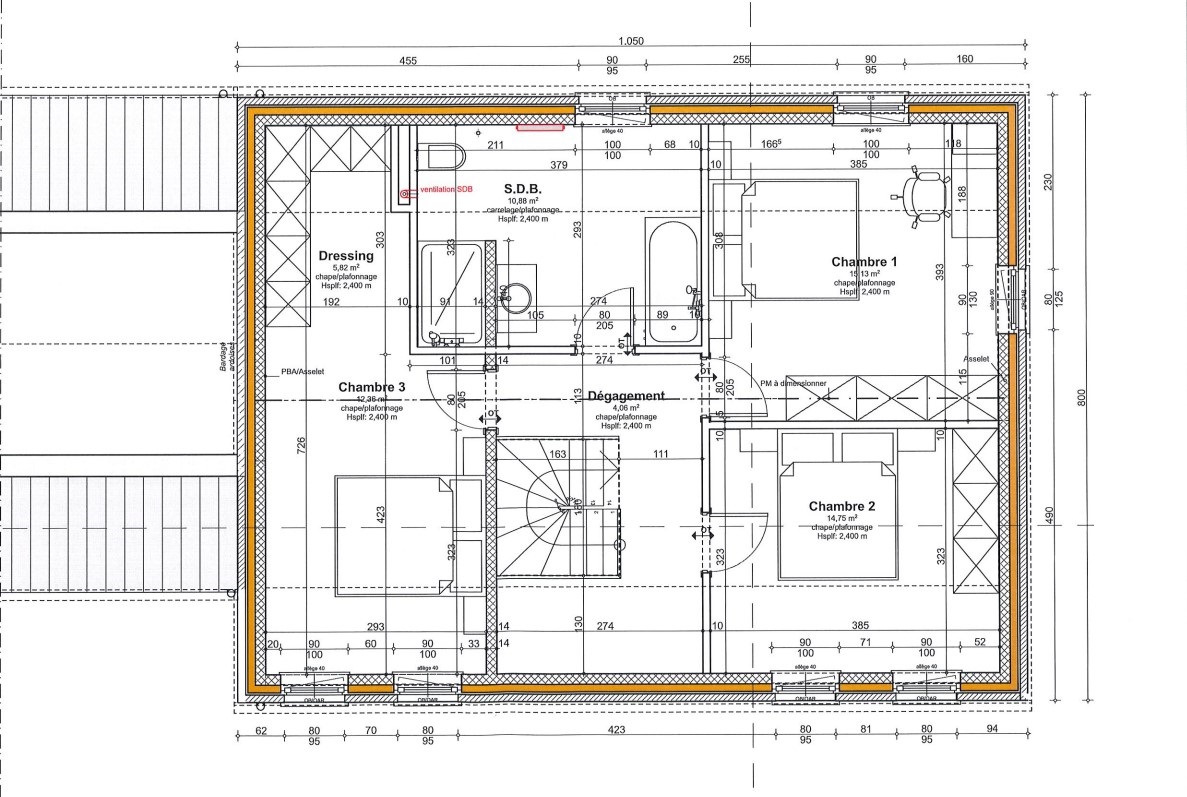
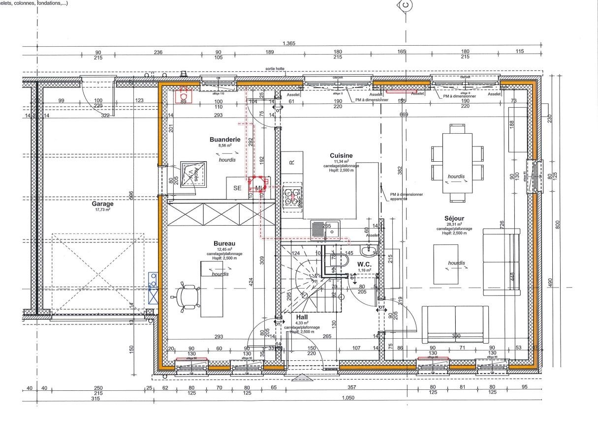
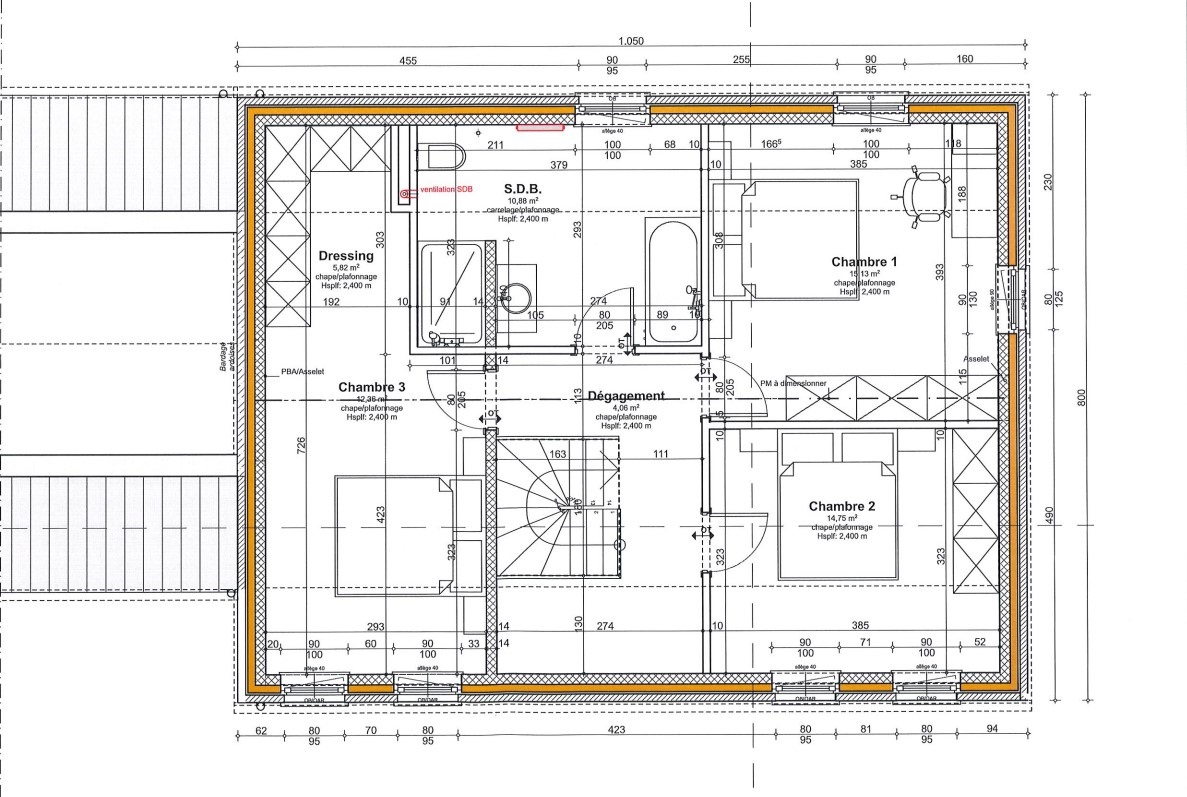
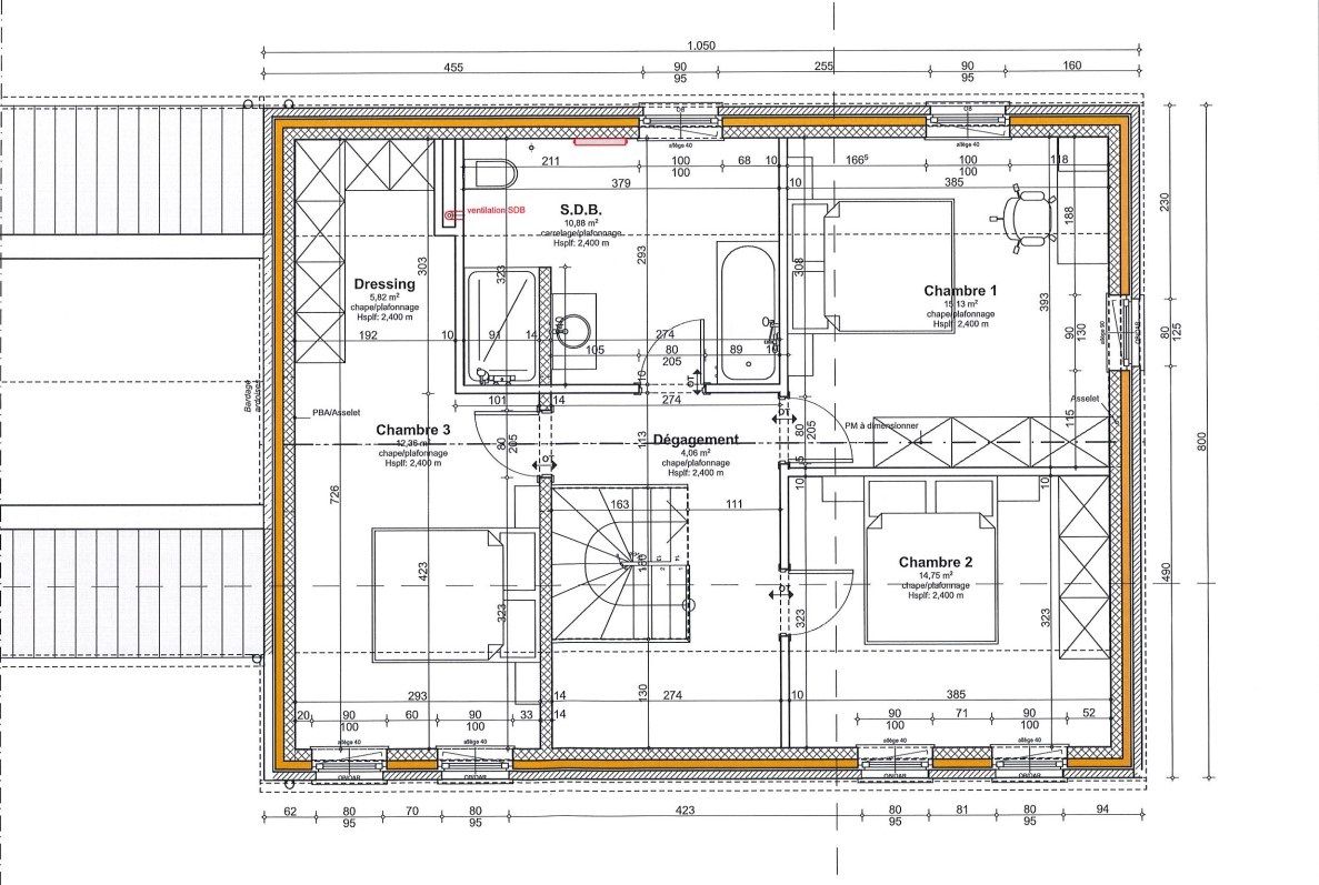
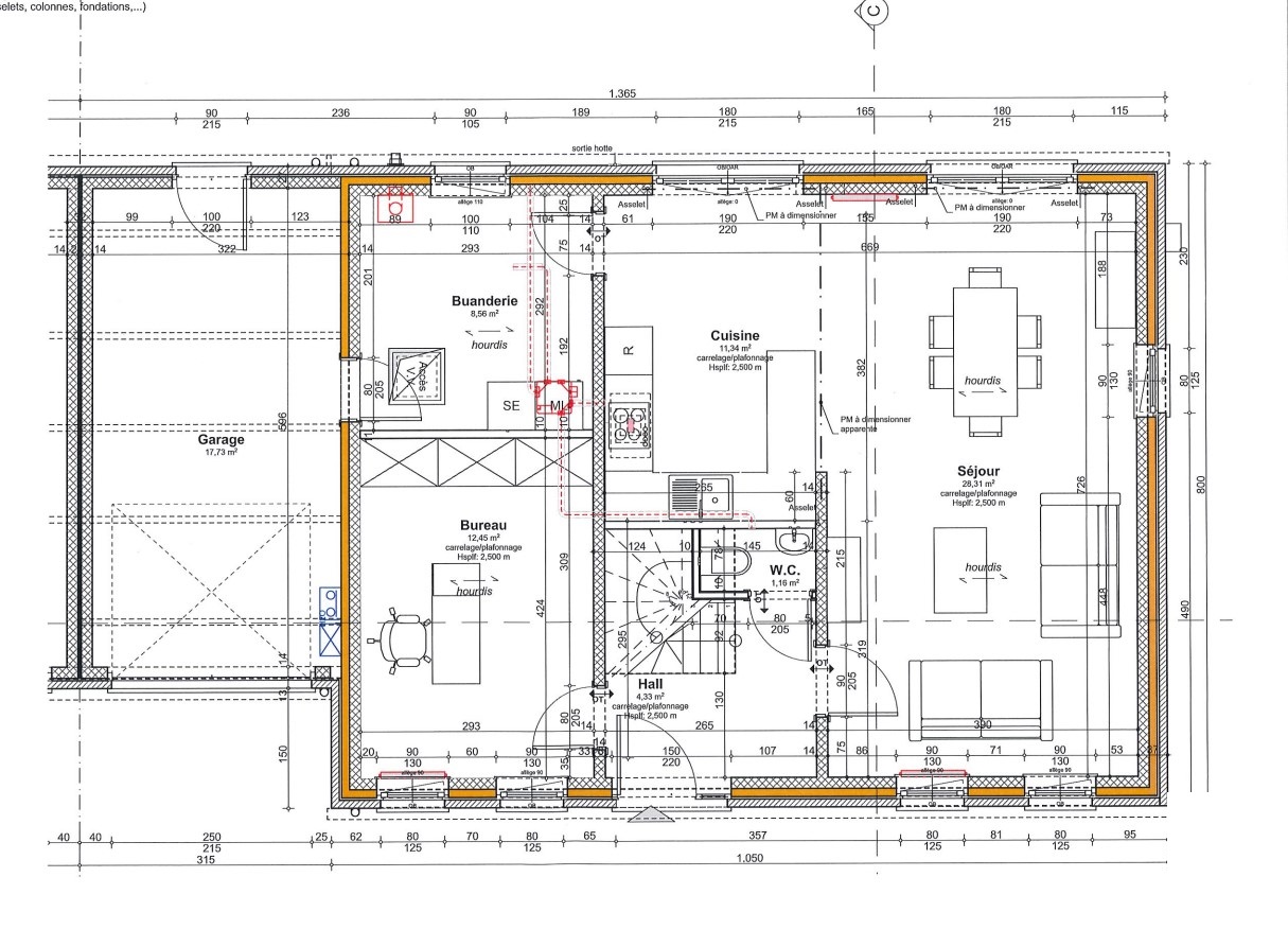
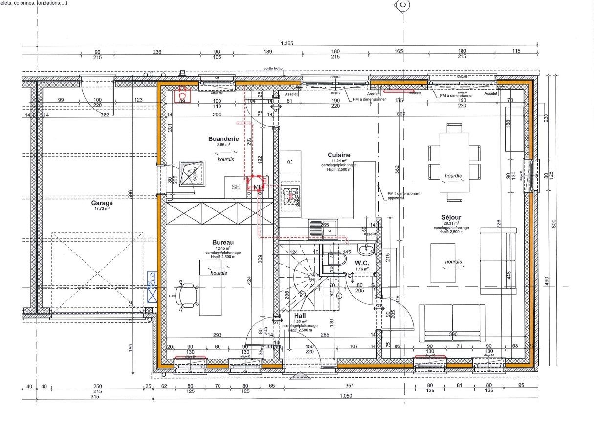
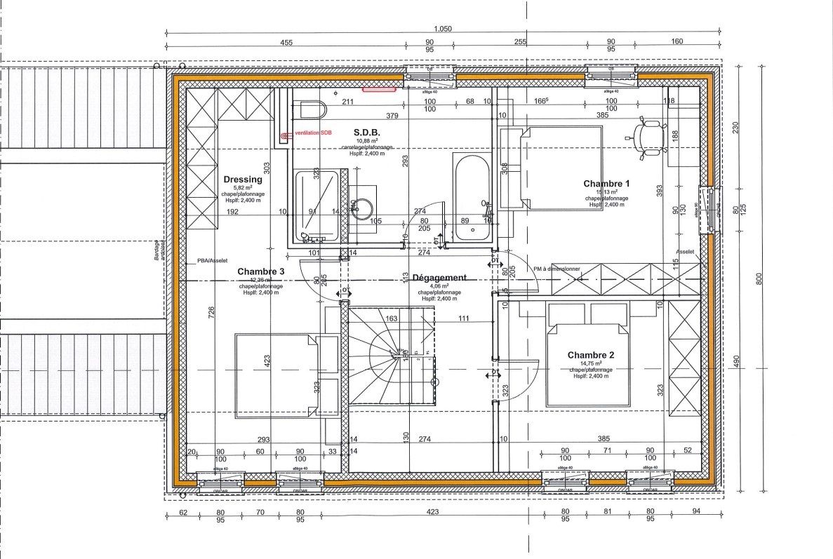
Cette maison neuve est implantée dans un quartier résidentiel calme d’Aye, à quelques minutes du centre de Marche-en-Famenne. L’environnement est composé principalement de constructions récentes, dans une ambiance sobre et ordonnée, à proximité des principaux axes de desserte régionaux. La gare de Marche-en-Famenne se trouve à +/- 8 minutes en voiture. L’accès à la N4 est direct, à moins de 5 minutes. Plusieurs établissements scolaires sont accessibles dans un rayon de +/- 3 km, tout comme une crèche. Un médecin généraliste et une pharmacie sont situés à +/- 2,5 km. Un supermarché, une boulangerie, une banque et une salle de sport sont tous situés entre 5 et 10 minutes de la propriété. Le bien est une maison quatre façades, développée sur un terrain de +/- 9,62 ares. Elle dispose d’une terrasse orientée plein sud et d’un garage intégré de +/- 18 m². Sa surface habitable totale est de +/- 181 m², répartie sur deux niveaux. Le rez-de-chaussée comprend un hall d’entrée avec WC, un séjour lumineux de +/- 28 m², une cuisine non équipée de +/- 11 m², une buanderie de +/- 9 m² et un bureau de +/- 11 m². À l’étage, le hall de nuit dessert une chambre parentale avec dressing de +/- 17 m², deux autres chambres de +/- 13 m² chacune, ainsi qu’une salle de bain de +/- 11 m² équipée d’une baignoire et d’une douche. Le chauffage est assuré par une installation au gaz. La maison est équipée de 6 panneaux photovoltaïques et bénéficie d’un PEB de catégorie A

Prix et disponibilités

Faire offre à partir de 379 000 € HF*
Disponibilité A l'acte
Adresse Rue Espinthe
Région AYE (MARCHE-EN-FAMENNE)
Province Luxembourg
Superficie du terrain 940 m²
Année de construction 2025
PEB A
Contactez Florence au 0484937976
* Hors frais et hors TVA

Informations techniques

Type de bien Maison
Façades 3 façades
Superficie 181 m²
Superficie du terrain 940 m²
Orientation S
Type de chauffage Chauffage central gaz y compris pour la production d'eau chaude sanitaire.
Type de châssis Châssis en PVC, double vitrage super isolant, porte de garage sectionnelle isolée.
Isolation des murs 10 cm de polyuréthane.
Isolation du sol 12 cm de polyuréthane.
Isolation toiture 22cm de laine minérale.
Garantie Le bâtiment est garanti 10 ans.
Installation éléctrique L'installation électrique à un certificat de conformité valable 25 ans.

Composition du bien

Hall d'entrée Non
Séjour Oui
Cuisine Non
Salle à manger Non
WC 2 WC
Buanderie Oui
Hall de nuit Oui
Chambres 3 chambres
Salles de bain Oui
Garage Oui
Parking 2 places
Jardin Oui
Terrasse Oui
Cuisine équipée Pas de cuisine équipée
Mezzanine Non
Véranda Non
Local à poubelle Non

Lotissement de AYE

Découvrez le lotissement

Ces biens font partie de la même promotion

Discutons de votre projet

Vous avez une (ou plusieurs) question(s), vous souhaitez des renseignements complémentaires ou parler de votre futur projet ?
Nous sommes à votre écoute, sans engagement !

Fixer un rendez-vous

Maisons Baijot

Chez Maisons Baijot, nous aimons penser que nous ne construisons pas que des maisons clé sur porte. Nous bâtissons des lieux de vie, de ceux où les souvenirs se créent et se transmettent, où les moments se vivent et se partagent. Des maisons où des enfants grandissent, où des couples vieillissent, où l’on se dispute, où l’on se réconcilie, des maisons où l’on fête des anniversaires, des naissances, des mariages, des diplômes, des départs à la retraite…

 

Pour concrétiser votre projet de construction, nous vous offrons un large choix d’idées de plans pour trouver le style de maison qui conviendra parfaitement à vos envies et à votre budget. Toutes ces options sont bien entendu souples et personnalisables pour réaliser la construction d’une maison qui vous ressemble.

 

Bienvenue dans l’Univers Maisons Baijot.