THIMEON 1

118
3
1
Faire offre à partir de
309 000 € HF*
Prix global
* Hors frais et hors TVA

Descriptif

Promo Batibouw uniquement du 02/02/2026 jusqu'au 22/02/2026 !

Ancien prix : 319.000 €
Nouveau prix : 309.000 €

C’est à Thiméon (Commune de Pont-à-Celles), situé à 5 minutes de Gosselies où toutes les commodités se trouvent (gare, écoles, supermarchés, restaurants, pharmacie, médecins,…) et avec son centre commercial City-Nord. A 5 minutes de la E42, il faut 25 minutes pour se rendre à La Louvière, 20 minutes à Nivelles et 15 minutes à Charleroi.

Sympathique maison 3 façades de +/- 118 m², implantée sur un terrain de 5,50 ares, cette propriété est orientée Nord/Nord-Ouest

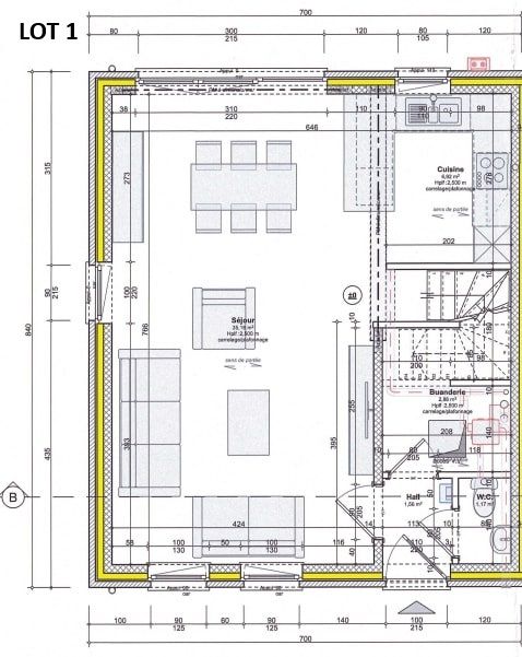
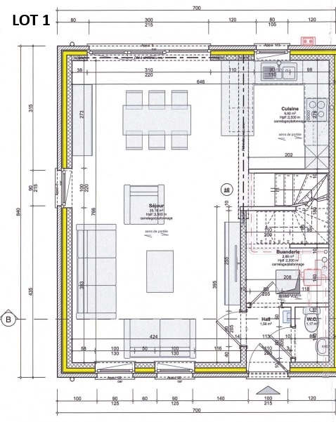
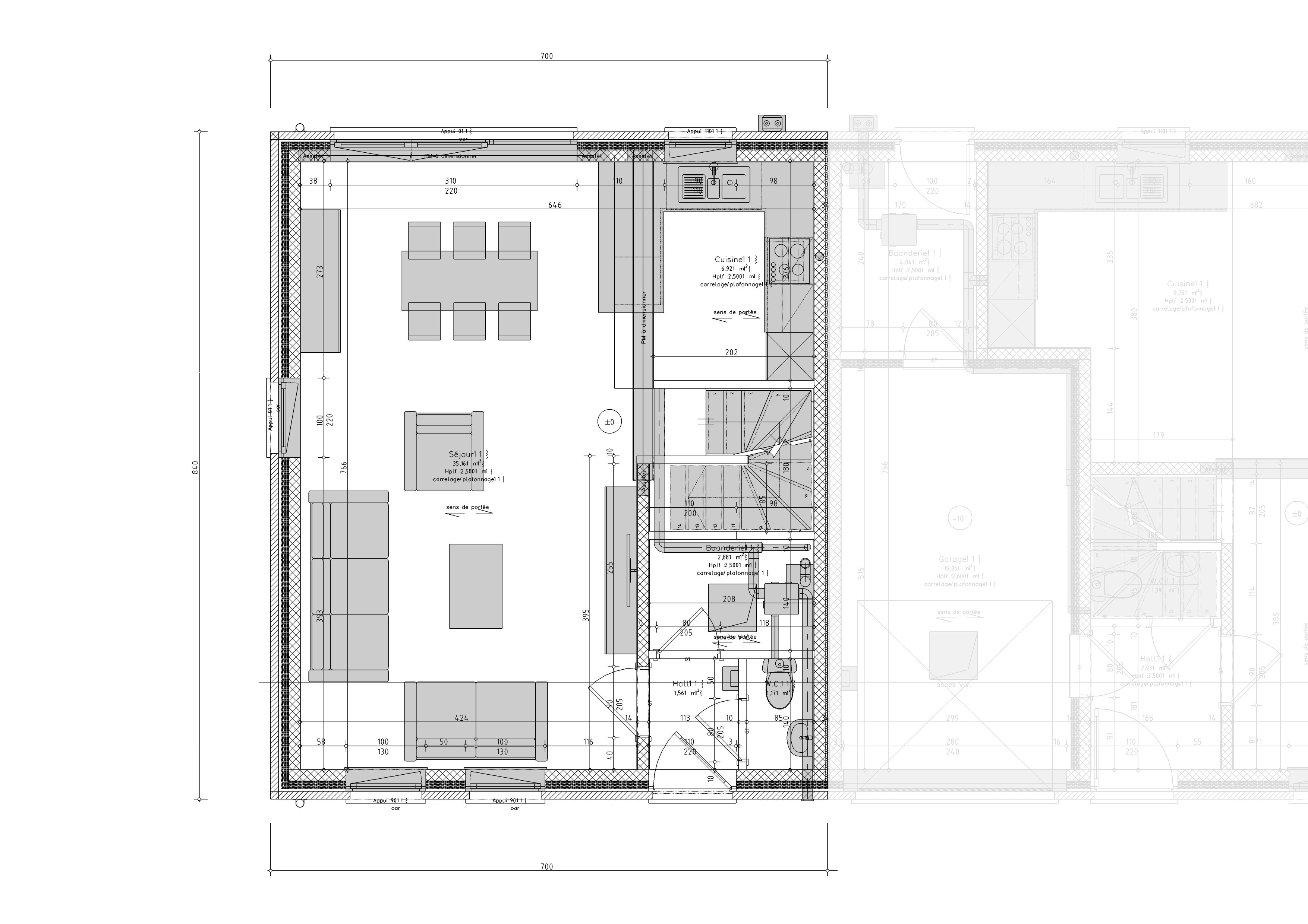
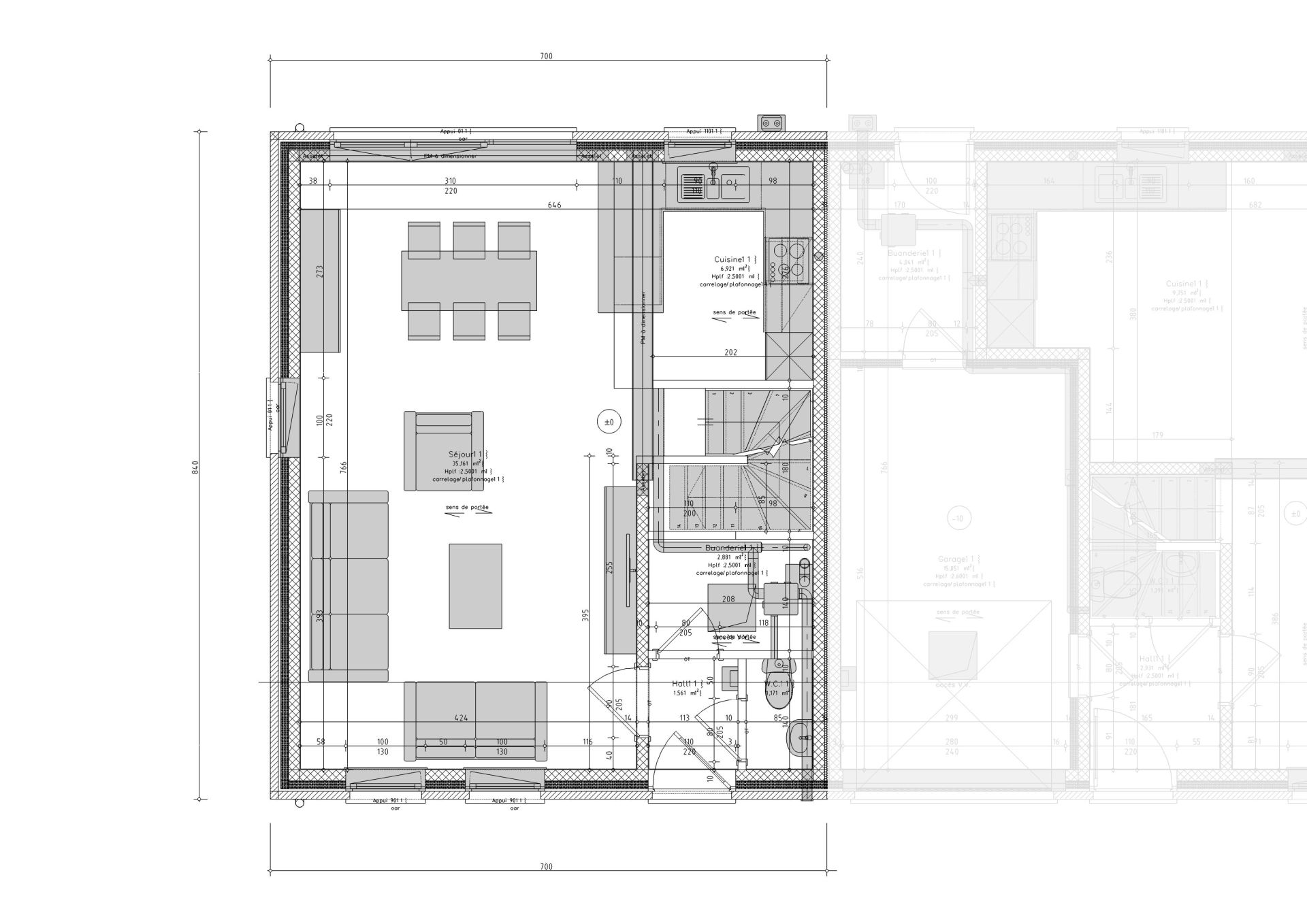
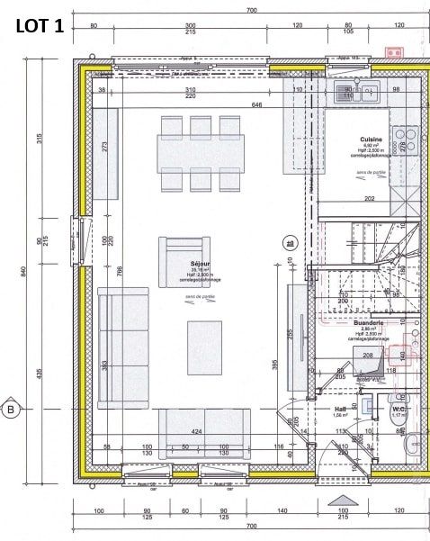
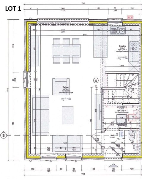
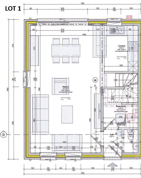
Au rez-de-chaussée vous trouverez un hall d’entrée, un WC invité et un séjour de +/- 35 m² ouvert sur un espace cuisine de +/- 7 m² et une buanderie de +/- 3 m².
Terrasse sur grenaille de +/- 14 m².

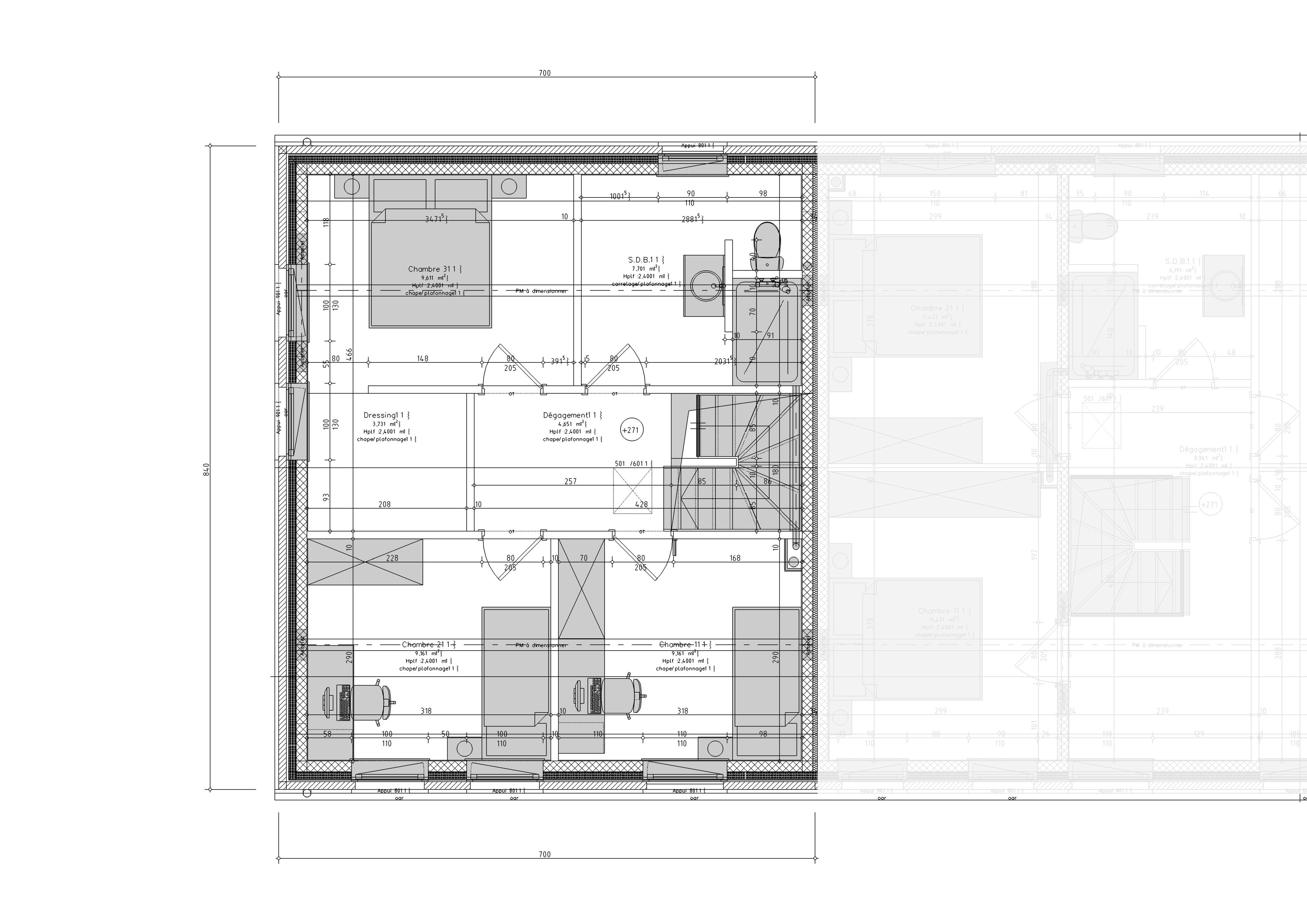
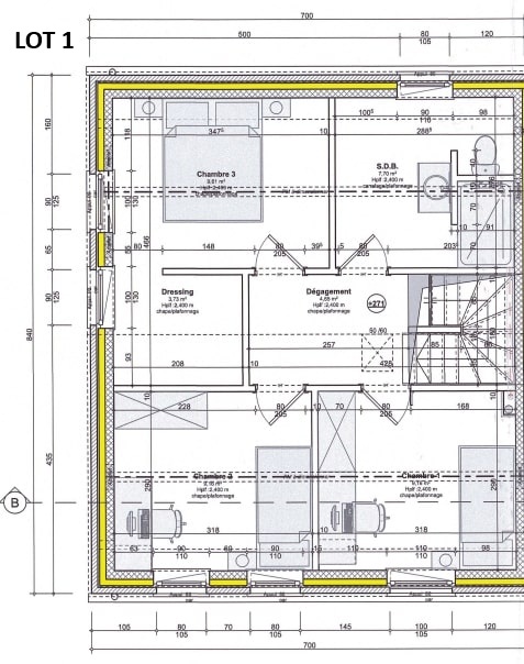
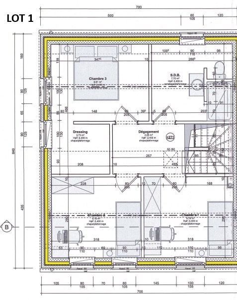
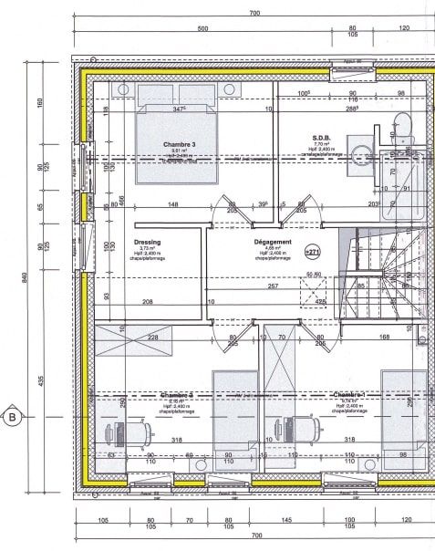
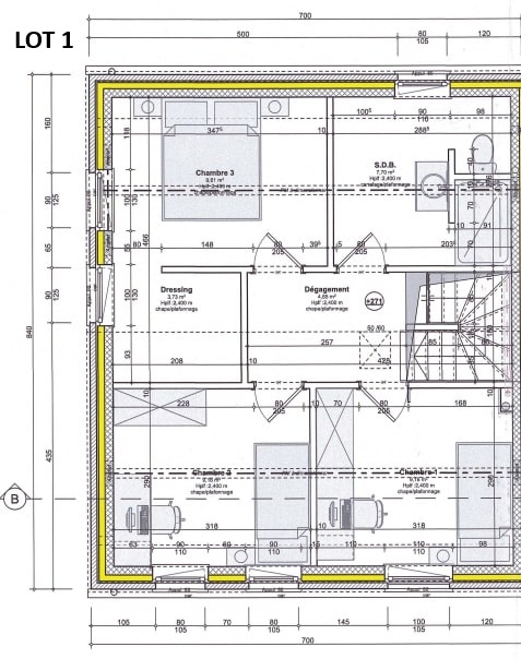
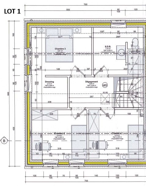
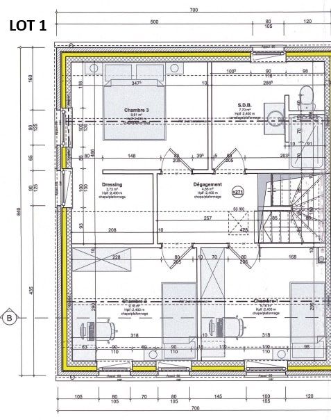
A l’étage, un hall de nuit qui dessert 1 chambre parentale avec dressing de +/- 13,5 m², 2 chambres de +/- 9 m², ainsi qu’une salle de douche de +/- 8 m².
De plus, un grenier de +/- 30 m² avec accès via un escalier escamotable.

Cette maison est équipée d’une chaudière à condensation au gaz à haut rendement, de 6 panneaux photovoltaïques et offre un PEB A garantissant confort, économies d'énergie et respect de l'environnement assurant un cadre de vie agréable et économe.

Prix et disponibilités

Faire offre à partir de 309 000 € HF*
Disponibilité à l'acte
Adresse Rue d'Azebois
Région THIMEON (PONT-A-CELLES)
Province Hainaut
Superficie du terrain 550 m²
Année de construction 2026
PEB A
Contactez Quentin au 0486241841
* Hors frais et hors TVA

Informations techniques

Type de bien Maison
Façades 3 façades
Superficie 118 m²
Superficie du terrain 550 m²
Orientation N
Type de chauffage Chauffage central gaz y compris pour la production d'eau chaude sanitaire.
Type de châssis Châssis en PVC, double vitrage super isolant.
Isolation des murs 10 cm de polyuréthane.
Isolation du sol 10 cm de polyuréthane.
Isolation toiture 22cm de laine minérale.
Garantie Le bâtiment est garanti 10 ans.
Installation éléctrique L'installation électrique à un certificat de conformité valable 25 ans.

Composition du bien

Hall d'entrée Oui
Séjour Oui
Salle à manger Oui
WC 2 WC
Buanderie Oui
Dressing Oui
Hall de nuit Oui
Chambres 3 chambres
Salle de douche Oui
Grenier Oui
Garage Non
Parking 2 places
Jardin Oui
Terrasse Oui
Cuisine équipée 1 cuisine équipée
Mezzanine Non
Véranda Non
Local à poubelle Non

Lotissement de THIMEON

Découvrez le lotissement

Discutons de votre projet

Vous avez une (ou plusieurs) question(s), vous souhaitez des renseignements complémentaires ou parler de votre futur projet ?
Nous sommes à votre écoute, sans engagement !

Fixer un rendez-vous

Maisons Baijot

Chez Maisons Baijot, nous aimons penser que nous ne construisons pas que des maisons clé sur porte. Nous bâtissons des lieux de vie, de ceux où les souvenirs se créent et se transmettent, où les moments se vivent et se partagent. Des maisons où des enfants grandissent, où des couples vieillissent, où l’on se dispute, où l’on se réconcilie, des maisons où l’on fête des anniversaires, des naissances, des mariages, des diplômes, des départs à la retraite…

 

Pour concrétiser votre projet de construction, nous vous offrons un large choix d’idées de plans pour trouver le style de maison qui conviendra parfaitement à vos envies et à votre budget. Toutes ces options sont bien entendu souples et personnalisables pour réaliser la construction d’une maison qui vous ressemble.

 

Bienvenue dans l’Univers Maisons Baijot.