VENCIMONT PEURETS 3

238
3
1
Faire offre à partir de
299 000 € HF*
Prix global
* Hors frais et hors TVA

Descriptif

Maison 4 façades – 3 chambres – Cadre naturel à Vencimont (Gedinne)

Située dans le village de Vencimont, au sein de la commune de Gedinne, cette maison offre un environnement verdoyant au cœur de l’Ardenne namuroise.
Entouré de forêts et de sentiers, le village séduira les amateurs de nature, de randonnées et de tranquillité, tout en bénéficiant d’un accès aisé vers Beauraing, Bouillon et Dinant.

Situation :
• Environnement calme et verdoyant
• Proximité des écoles, commerces et services des communes voisines
• Accès rapide vers Beauraing, Bouillon et Dinant
• Cadre idéal pour les amoureux de nature et de tranquillité

Caractéristiques générales :
• Maison 4 façades
• Terrain de ± 5 ares 45
• Terrasse
• Garage avec espace buanderie
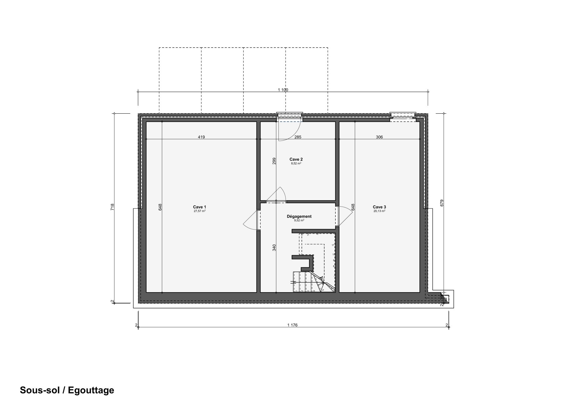
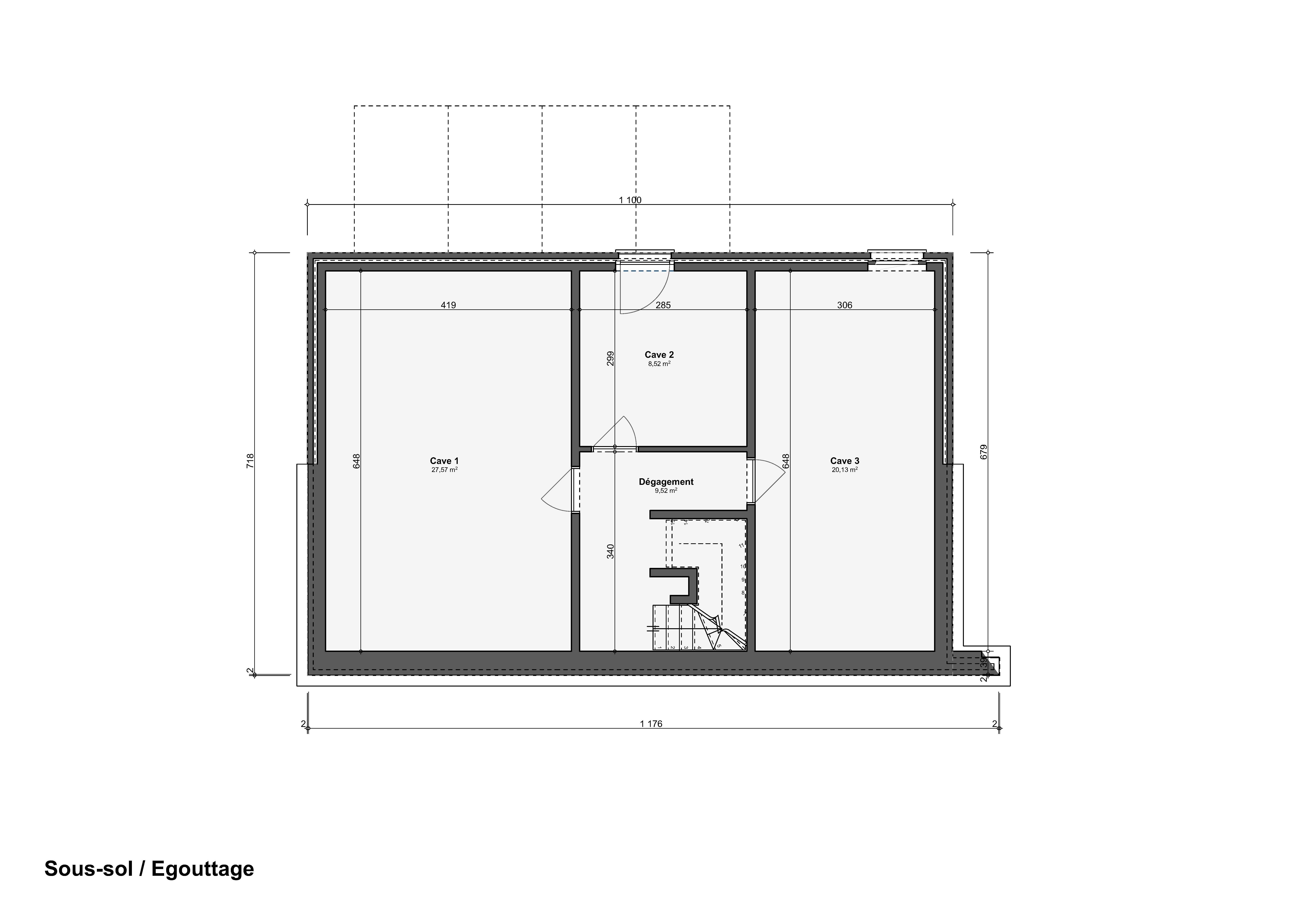
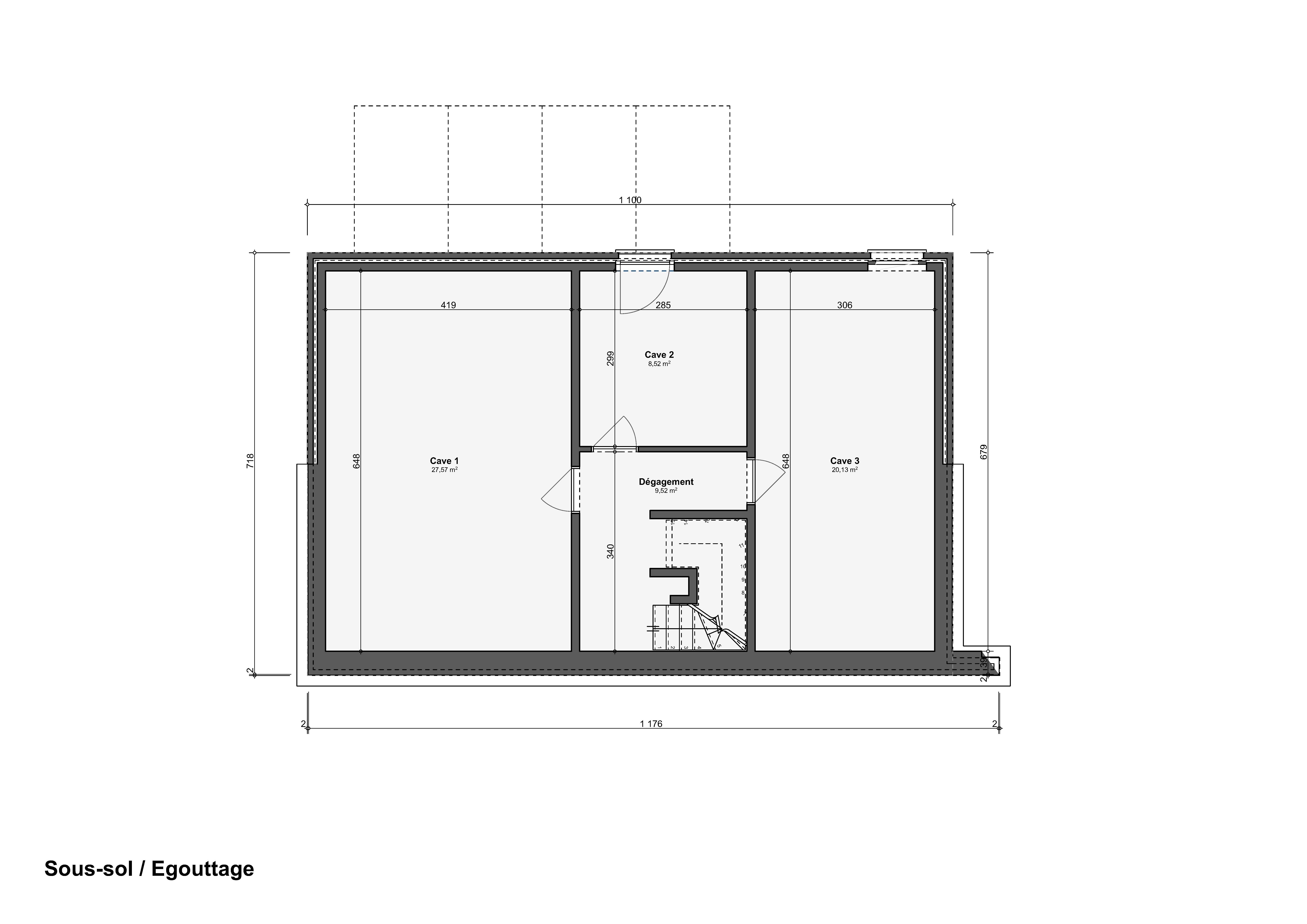
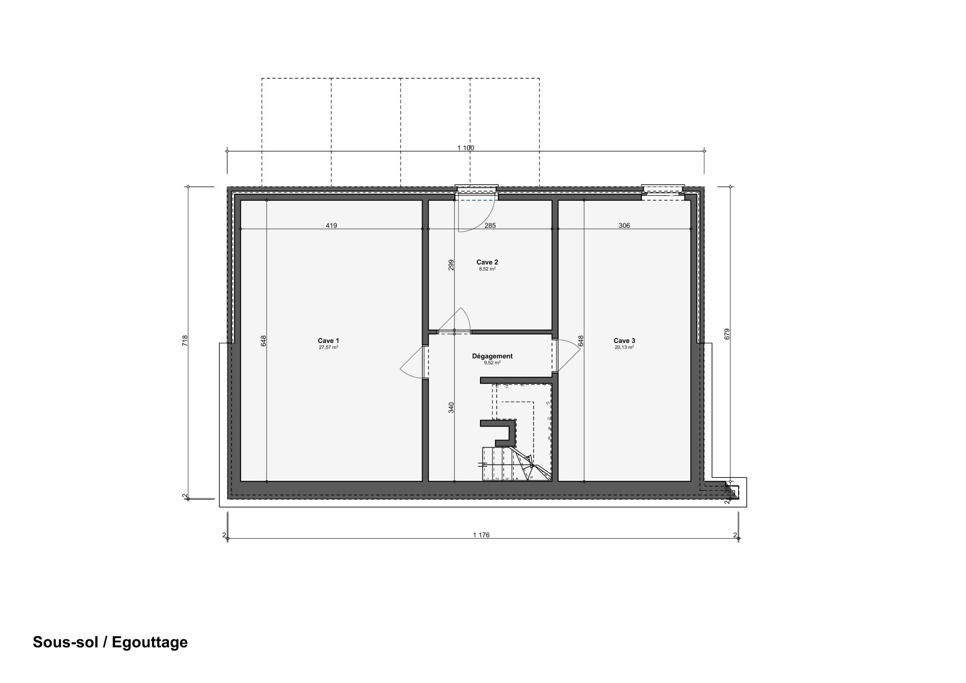
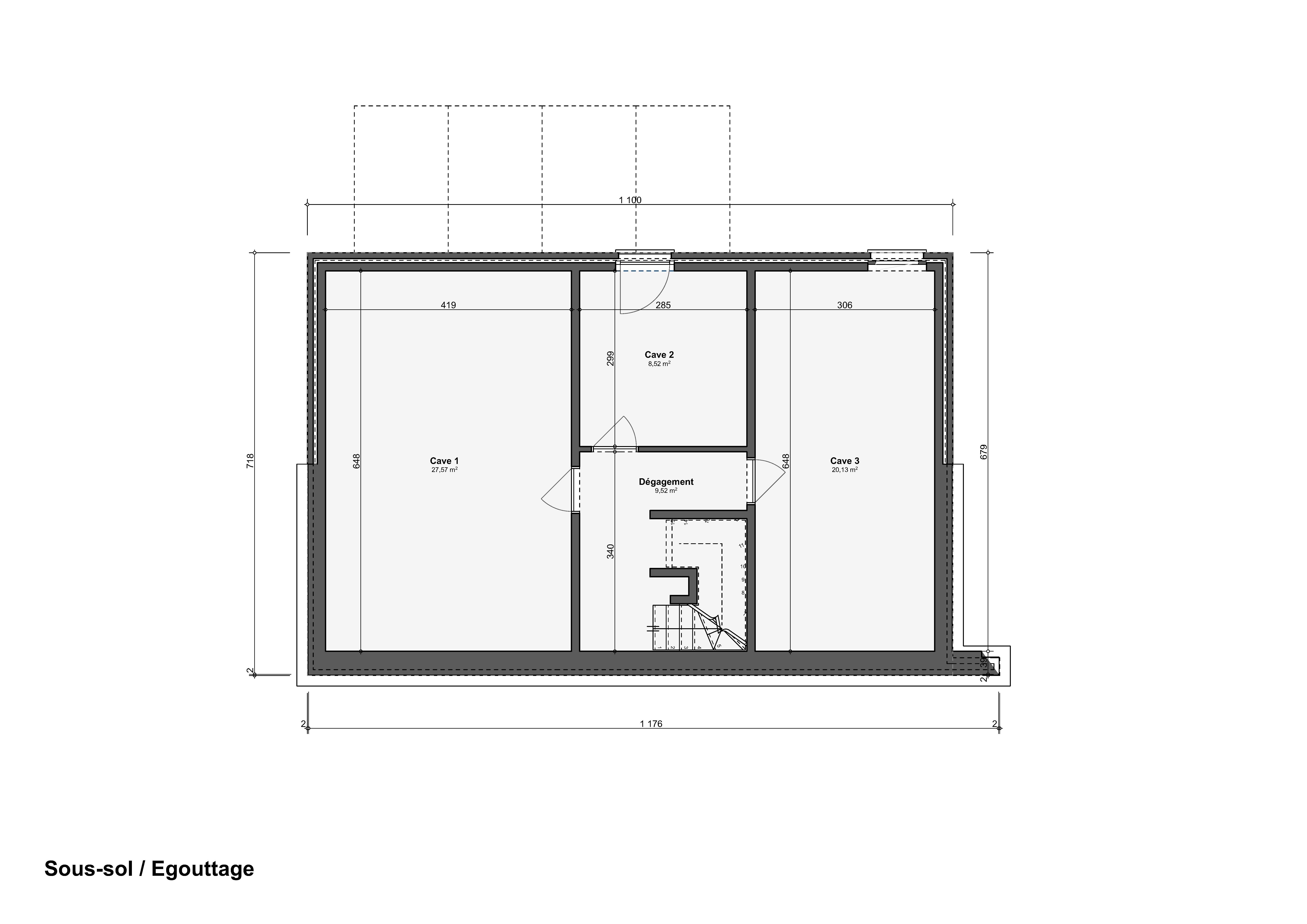
• Sous-sol avec caves spacieuses

Composition :
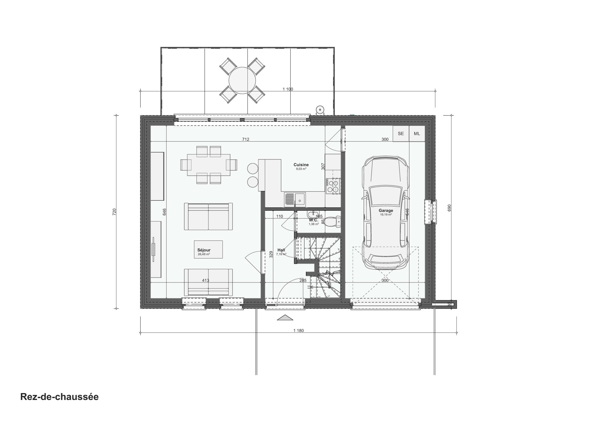
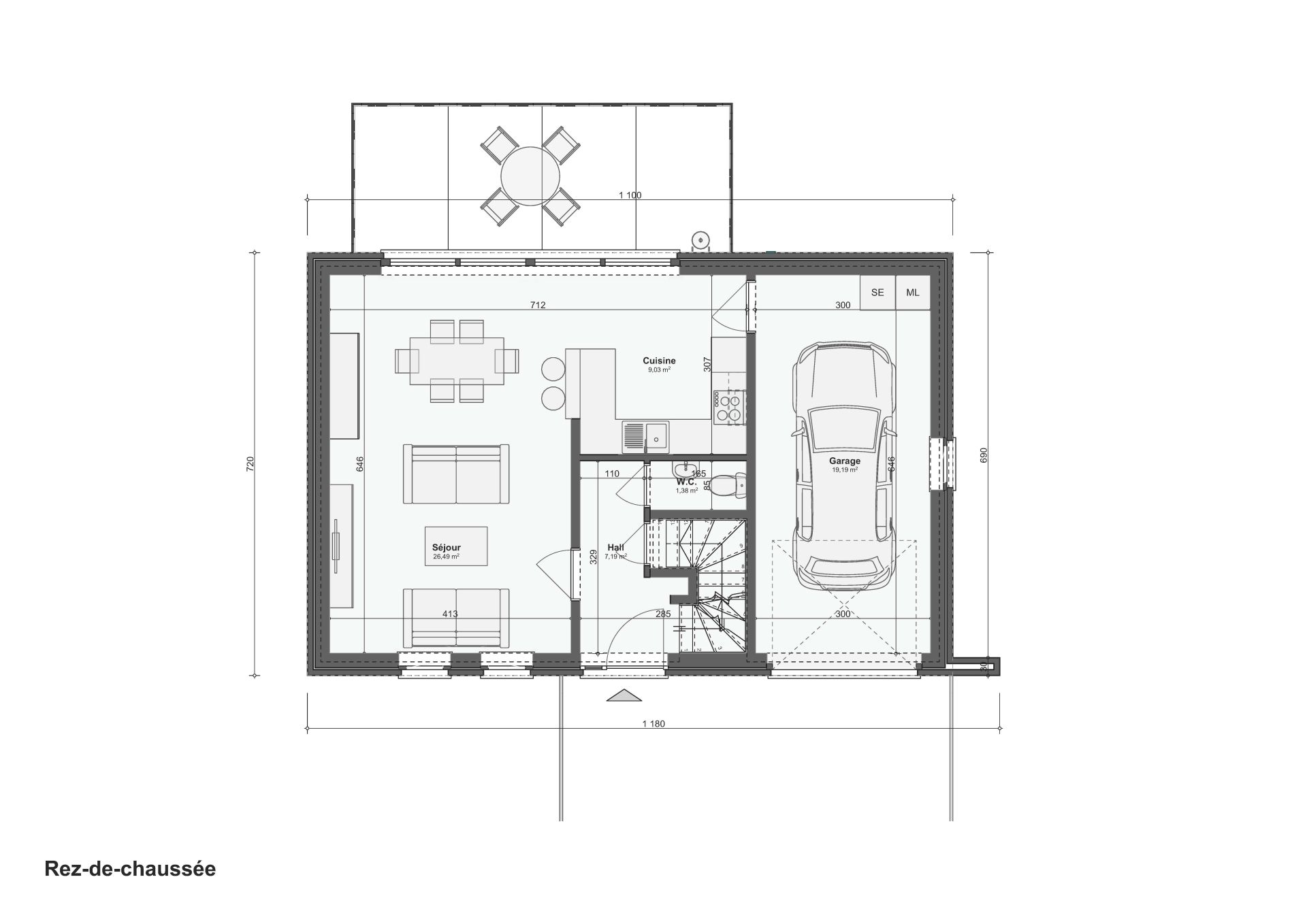
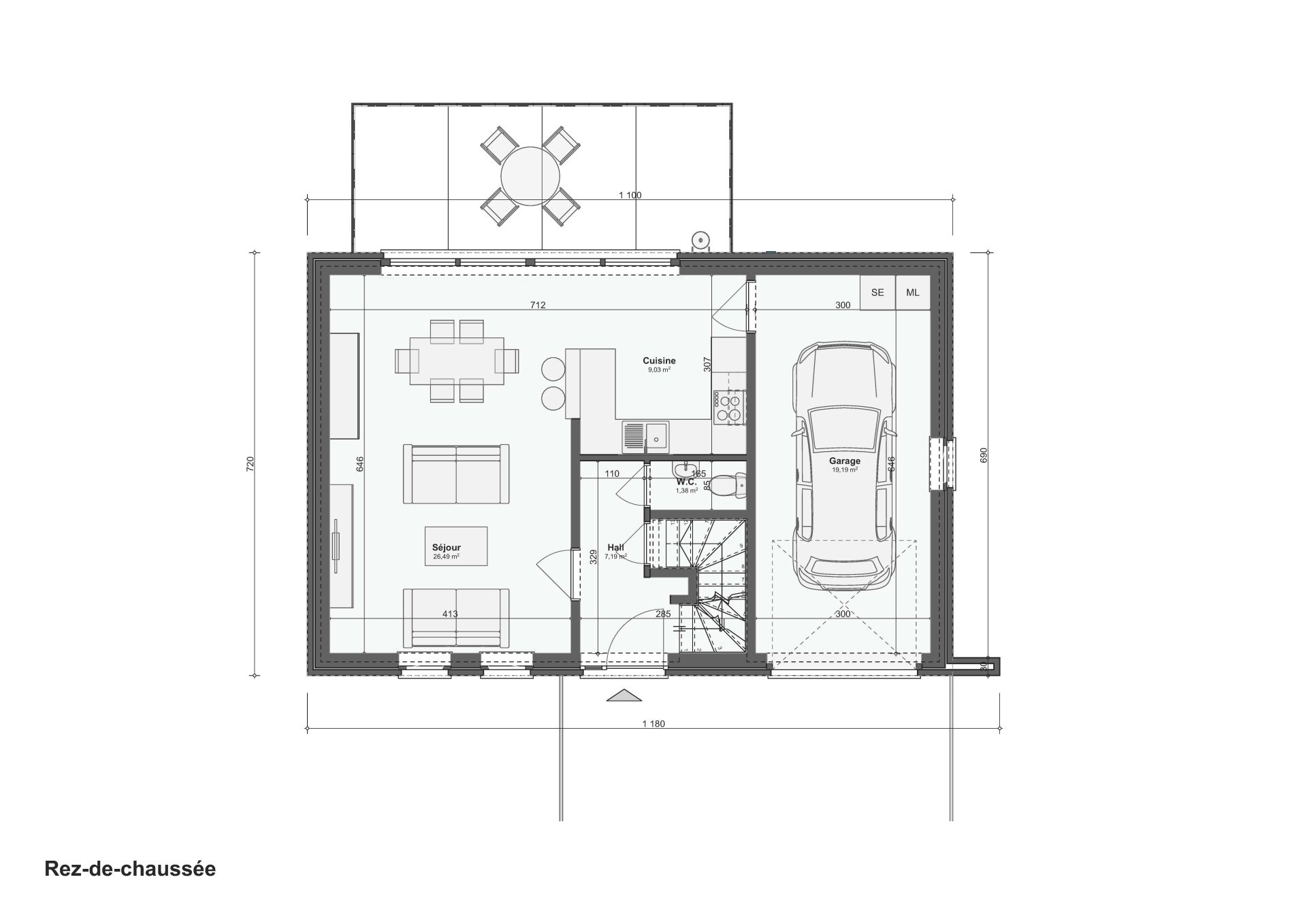
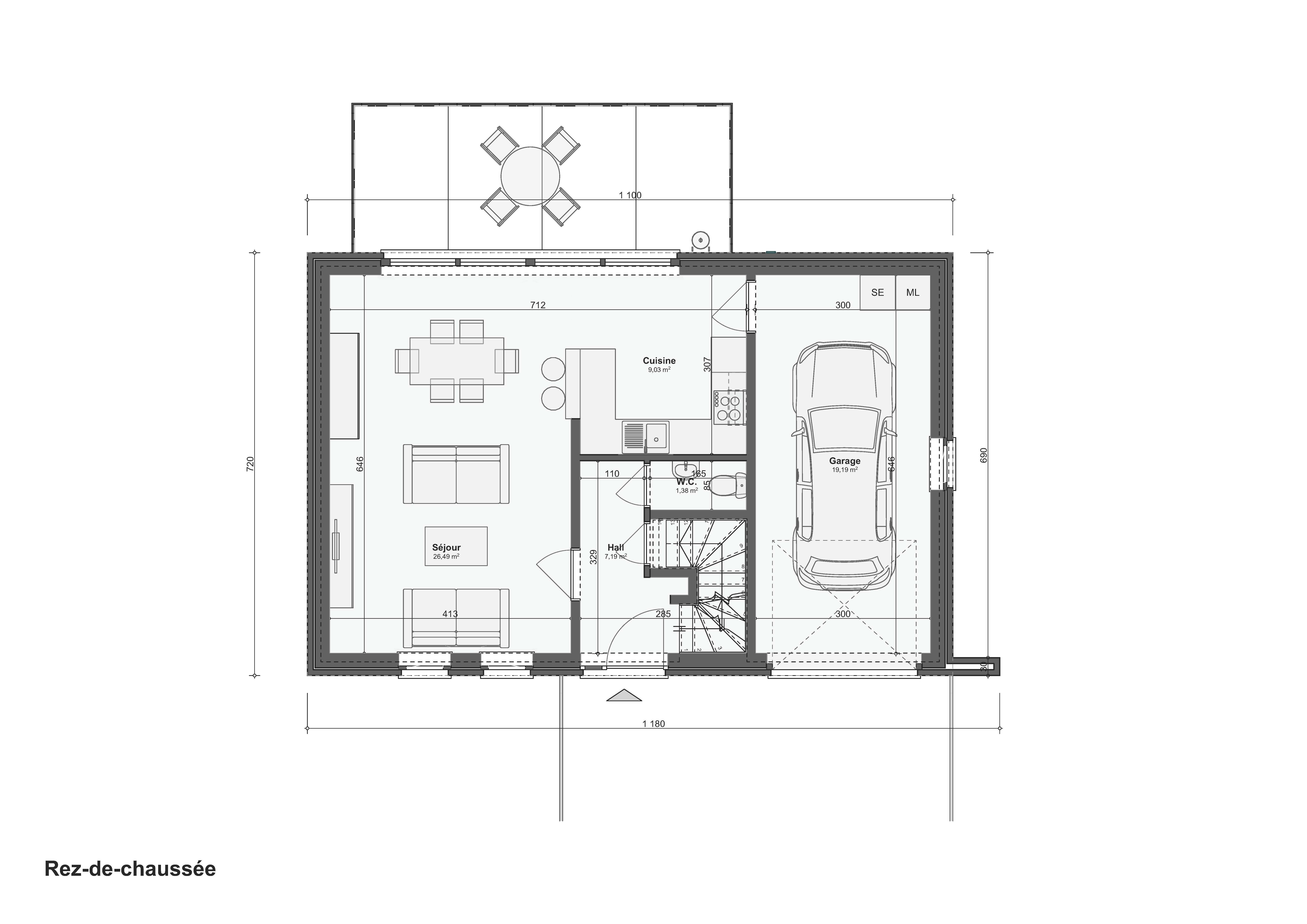
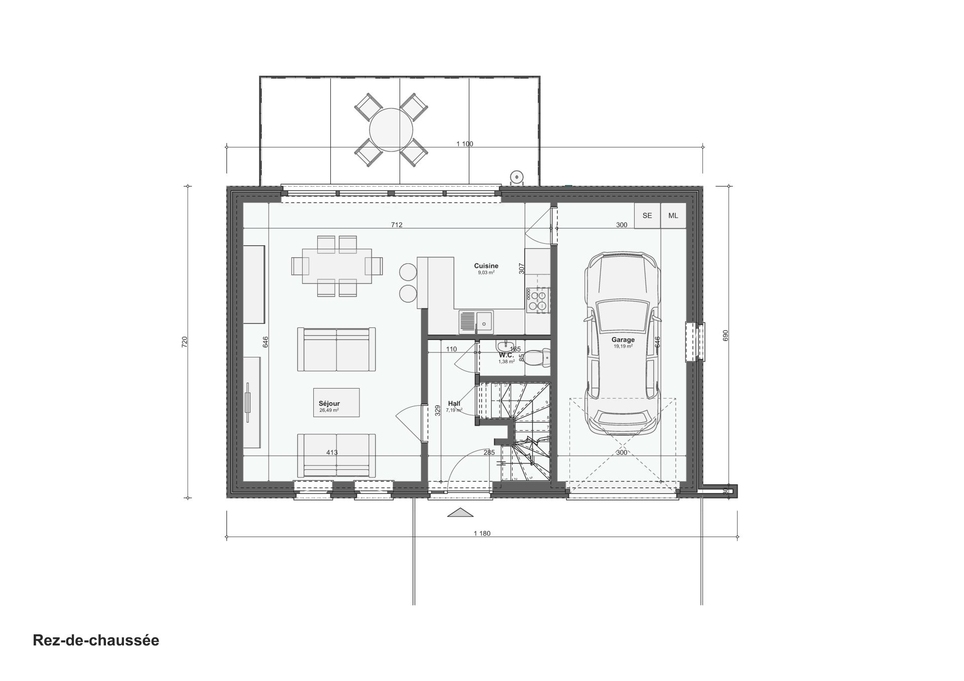
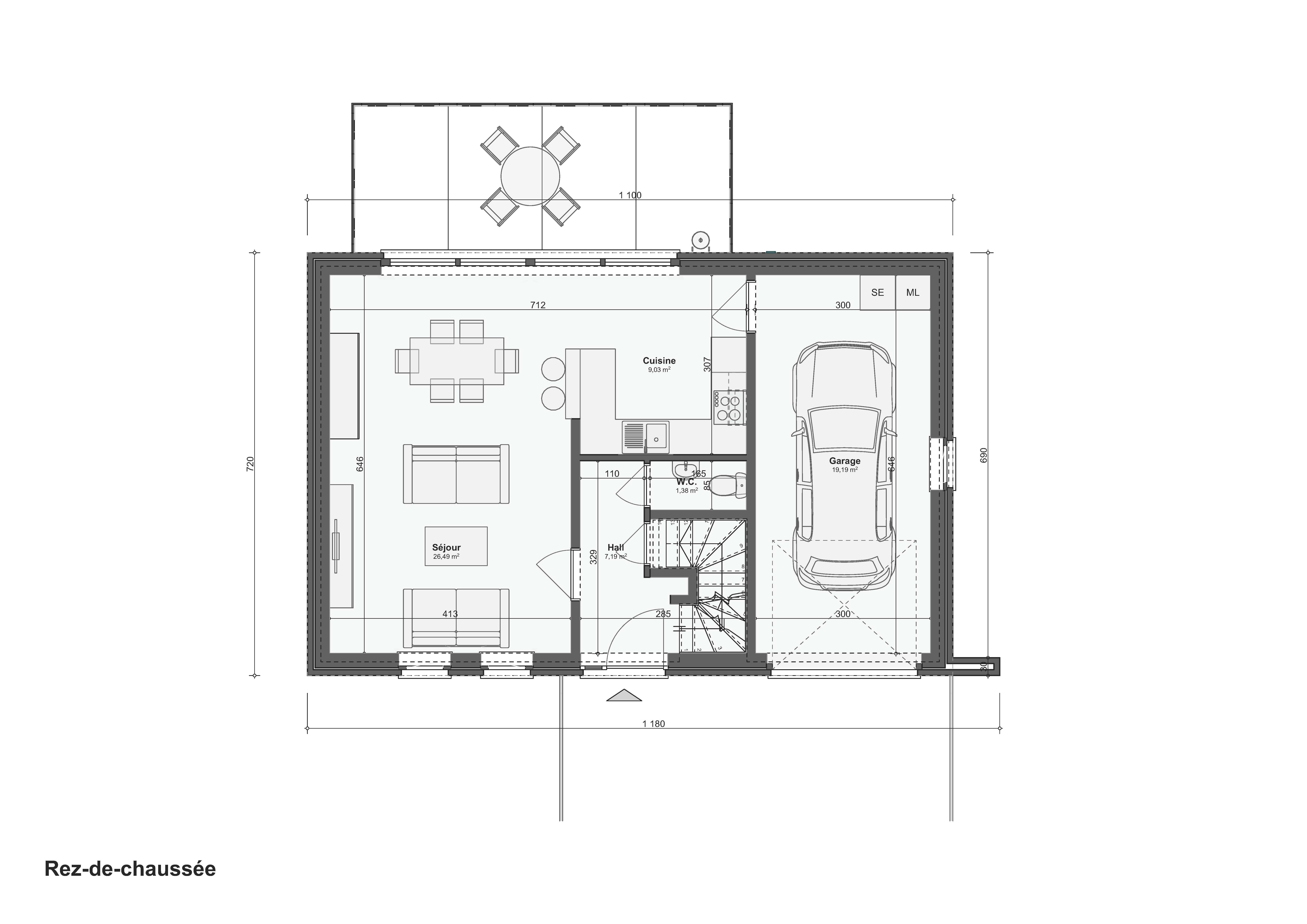
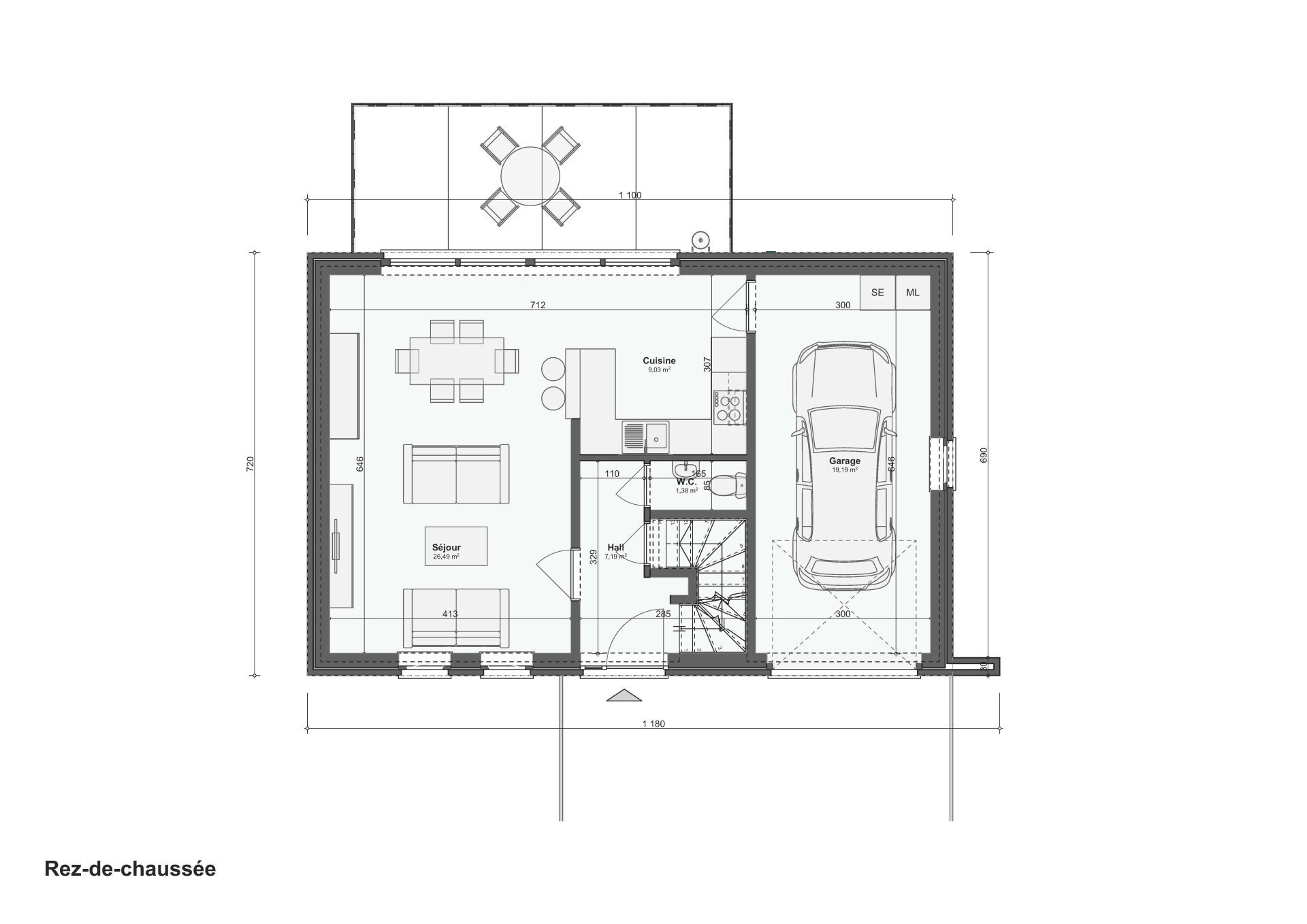
• Rez-de-chaussée :
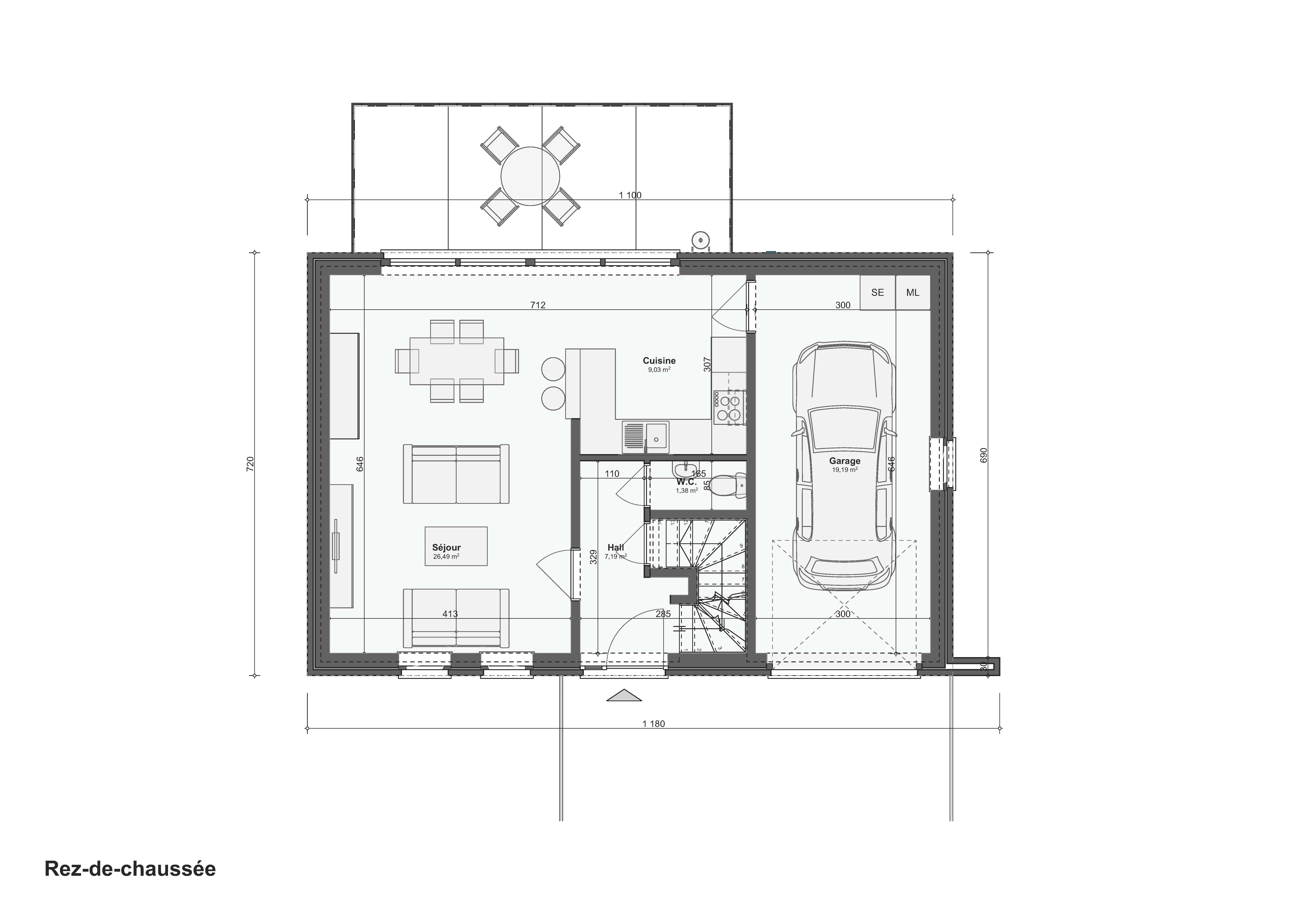
o Hall d’entrée
o WC séparé
o Séjour lumineux ouvert sur la cuisine équipée
o Garage/buanderie une voiture
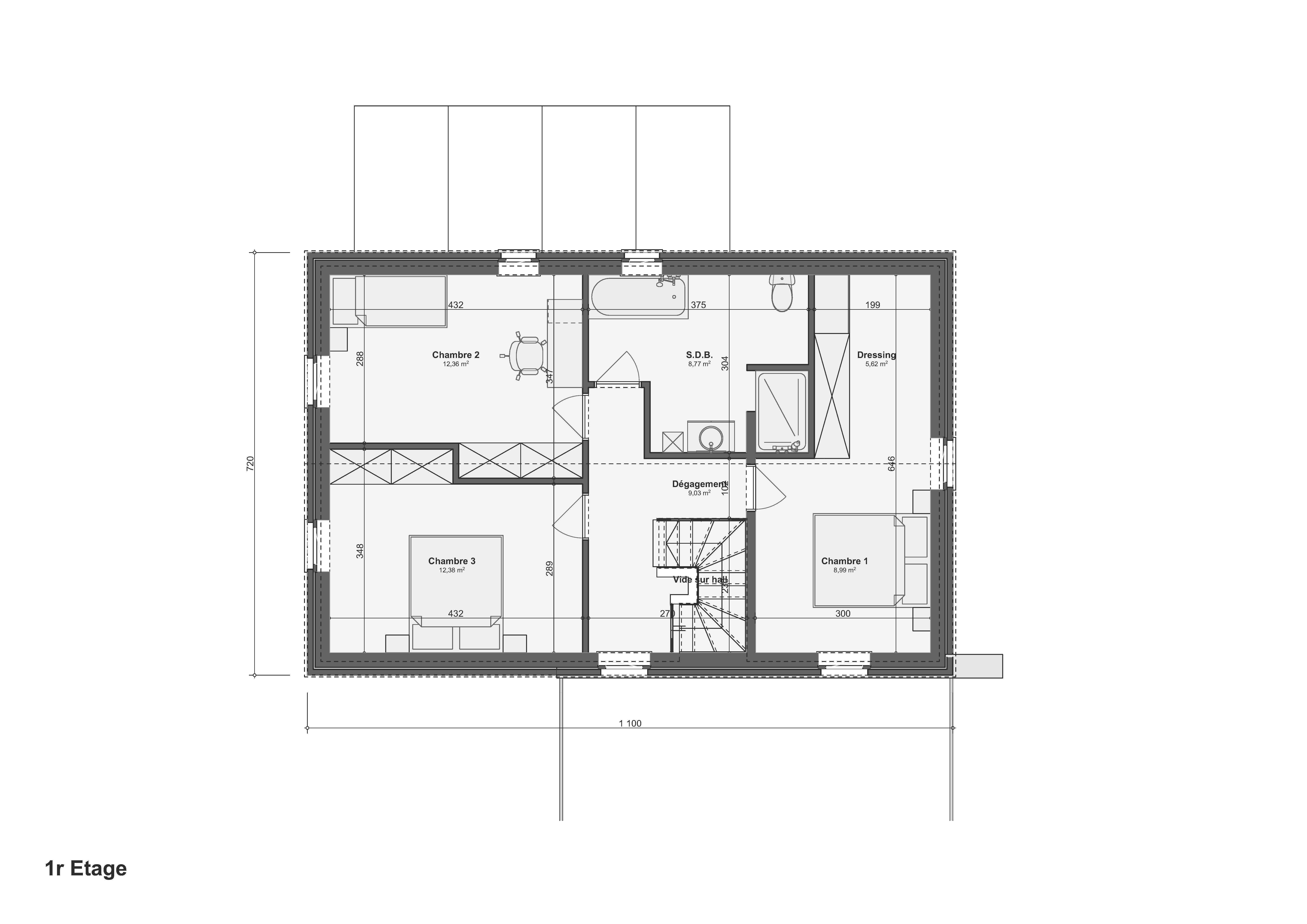
• Étage :
o Hall de nuit
o Chambre parentale avec espace dressing
o 2 chambres supplémentaires
o Salle de bain
• Sous-sol :
o Caves offrant de nombreux espaces de rangement

Techniques et confort :
• Chaudière gaz à condensation haut rendement
• 6 panneaux photovoltaïques
• Bonne isolation
• Confort moderne et économies d’énergie

Pour plus d’informations ou pour organiser une visite, contactez-nous au 0489 76 87 85.

Prix et disponibilités

Faire offre à partir de 299 000 € HF*
Disponibilité A l'acte
Adresse rue les Peurets
Région VENCIMONT (GEDINNE)
Province Namur
Superficie du terrain 545 m²
Année de construction 2024
PEB A
Contactez Aurélien au 0489768785
* Hors frais et hors TVA

Informations techniques

Type de bien Maison
Façades 4 façades
Superficie 238 m²
Superficie du terrain 545 m²
Orientation S
Type de chauffage Chauffage central gaz y compris pour la production d'eau chaude sanitaire.
Type de châssis Châssis en PVC, double vitrage super isolant, porte de garage sectionnelle isolée.
Isolation des murs 10 cm de polyuréthane.
Isolation du sol 10 cm de polyuréthane.
Isolation toiture 20cm de laine minérale.
Garantie Le bâtiment est garanti 10 ans.
Installation éléctrique L'installation électrique à un certificat de conformité valable 25 ans.

Composition du bien

Hall d'entrée Oui
Séjour Oui
Cuisine Oui
Salle à manger Non
WC 2 WC
Hall de nuit Oui
Chambres 3 chambres
Salles de bain Oui
Cave 3 caves
Garage Non
Parking 2 places
Jardin Oui
Terrasse Oui
Cuisine équipée Pas de cuisine équipée
Mezzanine Non
Garage avec buanderie Oui
Véranda Non
Local à poubelle Non

Discutons de votre projet

Vous avez une (ou plusieurs) question(s), vous souhaitez des renseignements complémentaires ou parler de votre futur projet ?
Nous sommes à votre écoute, sans engagement !

Fixer un rendez-vous

Maisons Baijot

Chez Maisons Baijot, nous aimons penser que nous ne construisons pas que des maisons clé sur porte. Nous bâtissons des lieux de vie, de ceux où les souvenirs se créent et se transmettent, où les moments se vivent et se partagent. Des maisons où des enfants grandissent, où des couples vieillissent, où l’on se dispute, où l’on se réconcilie, des maisons où l’on fête des anniversaires, des naissances, des mariages, des diplômes, des départs à la retraite…

 

Pour concrétiser votre projet de construction, nous vous offrons un large choix d’idées de plans pour trouver le style de maison qui conviendra parfaitement à vos envies et à votre budget. Toutes ces options sont bien entendu souples et personnalisables pour réaliser la construction d’une maison qui vous ressemble.

 

Bienvenue dans l’Univers Maisons Baijot.