MONS-LEZ-LIEGE 14

160
3
1
Faire offre à partir de
295 000 € HF*
Prix global
* Hors frais et hors TVA

Descriptif

Profitez d'une réduction de 10.000 euros avec nos conditions salon ! *

Maison familiale neuve 2 façades à  Mons-lez-Liège (Flémalle)


Située à Mons-lez-Liège, dans la commune de Flémalle, que nous vous proposons cette belle maison prête à vivre en cours de construction.  Cette maison est implantée sur un terrain d’à peu près 2 ares.

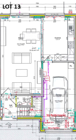
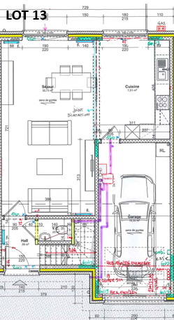
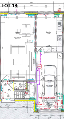
Cette maison se compose :

Au rez-de-chaussée :
• Hall d’entrée avec WC indépendant
• Séjour lumineux ouvert sur la cuisine
• Cuisine
• Garage avec buanderie
• Jardin
• Terrasse

À l'étage :
• Pallier
• 2 chambres avec dressing
• 1 chambre
• 1 salle de bain avec bain, douche, WC et lavabo

Confort et performance énergétique
• PEB A, excellente isolation
• Chauffage central au gaz
• Panneaux photovoltaïques

Ce bien se situe à proximité de Flémalle et non loin de Liège, proche des commerces et facilités (magasins, écoles, etc), ainsi que de la gare de Jemeppe-sur-Meuse (3km) donnant un accès facile à Liège et Bruxelles, d’arrêts de bus (<10 min. à pied) et à deux pas des N90/N63 et E40.


Offrez-vous un cadre de vie paisible et moderne dans cette maison familiale neuve 3 façades à Mons-Lez-Liège (Flémalle)

* Valable jusqu'au 22/02/2026

Prix et disponibilités

Faire offre à partir de 295 000 € HF*
Disponibilité à l'acte
Adresse Rue Jean Barthélémy / Rue Chéry
Région MONS-LEZ-LIEGE (FLEMALLE)
Province Liège
Superficie du terrain 300 m²
Année de construction 2025
PEB A
Contactez Sofia au 0484937976
* Hors frais et hors TVA

Informations techniques

Type de bien Maison
Façades 2 façades
Superficie 160 m²
Superficie du terrain 300 m²
Orientation N
Type de chauffage Chauffage central gaz y compris pour la production d'eau chaude sanitaire.
Type de châssis Châssis en PVC, double vitrage super isolant, porte de garage sectionnelle isolée.
Isolation des murs 10 cm de polyuréthane.
Isolation du sol 10 cm de polyuréthane.
Isolation toiture 22cm de laine minérale.
Garantie Le bâtiment est garanti 10 ans.
Installation éléctrique L'installation électrique à un certificat de conformité valable 25 ans.

Composition du bien

Hall d'entrée Oui
Séjour Oui
Cuisine Non
Salle à manger Oui
WC 2 WC
Dressing Oui
Hall de nuit Oui
Chambres 3 chambres
Salles de bain Oui
Grenier Oui
Garage Non
Parking Oui
Jardin Oui
Terrasse Oui
Cuisine équipée 1 cuisine équipée
Mezzanine Non
Garage avec buanderie Oui
Véranda Non
Local à poubelle Non

Lotissement de MONS-LEZ-LIEGE

Découvrez le lotissement

Discutons de votre projet

Vous avez une (ou plusieurs) question(s), vous souhaitez des renseignements complémentaires ou parler de votre futur projet ?
Nous sommes à votre écoute, sans engagement !

Fixer un rendez-vous

Maisons Baijot

Chez Maisons Baijot, nous aimons penser que nous ne construisons pas que des maisons clé sur porte. Nous bâtissons des lieux de vie, de ceux où les souvenirs se créent et se transmettent, où les moments se vivent et se partagent. Des maisons où des enfants grandissent, où des couples vieillissent, où l’on se dispute, où l’on se réconcilie, des maisons où l’on fête des anniversaires, des naissances, des mariages, des diplômes, des départs à la retraite…

 

Pour concrétiser votre projet de construction, nous vous offrons un large choix d’idées de plans pour trouver le style de maison qui conviendra parfaitement à vos envies et à votre budget. Toutes ces options sont bien entendu souples et personnalisables pour réaliser la construction d’une maison qui vous ressemble.

 

Bienvenue dans l’Univers Maisons Baijot.