VENCIMONT NEVRAUDURE 1

162
3
1
Prix H.F. clé sur porte
295 000 € HF*
Prix global
* Hors frais et hors TVA

Descriptif

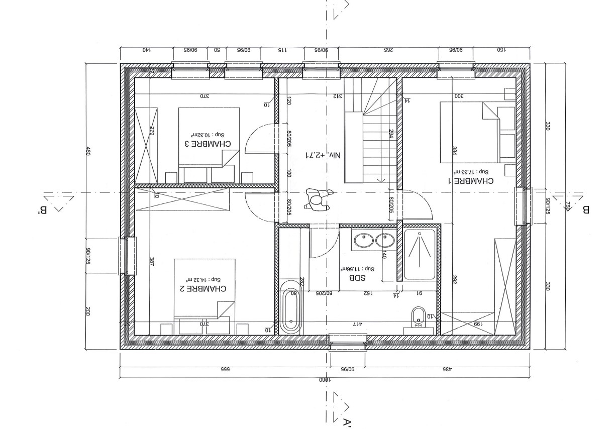
Cette maison quatre façades est située à Vencimont, dans un environnement forestier calme et préservé. Elle est exclusivement destinée à un usage en seconde résidence ou à une activité de gîte, la domiciliation n’y étant pas autorisée. Le cadre naturel, propice à la détente, s’inscrit dans une région touristique appréciée pour ses promenades et son relief boisé. La gare de Gedinne se trouve à +/- 12 minutes en voiture. Les axes N95 et N89 permettent de rejoindre Beauraing ou Dinant en moins de 25 minutes.  Le bien développe une surface habitable de +/- 162 m² sur un terrain de +/- 12,65 ares. Il comprend une terrasse orientée au sud et un garage de +/- 20 m² avec espace buanderie. Il s’agit d’une construction neuve, soignée et lumineuse, implantée dans un cadre rural non urbanisé. L’intérieur se compose, au rez-de-chaussée, d’un hall d’entrée, d’un séjour de +/- 27 m², d’une cuisine ouverte de +/- 10 m² et du garage. L’étage comprend une chambre parentale de +/- 17 m², deux chambres de +/- 14 m² et +/- 10 m², ainsi qu’une salle de bain de +/- 11 m² équipée d’une baignoire et d’une douche. Le chauffage est assuré au gaz. Le bien est équipé de 6 panneaux photovoltaïques. Le PEB est classé A.

Prix et disponibilités

Prix H.F. clé sur porte 295 000 € HF*
Disponibilité A l'acte
Adresse Rue Nevraudure
Région VENCIMONT (GEDINNE)
Province Namur
Superficie du terrain 1265 m²
Année de construction 2025
PEB A
Contactez Florence au 0484937976
* Hors frais et hors TVA

Informations techniques

Type de bien Maison
Façades 4 façades
Superficie 162 m²
Superficie du terrain 1265 m²
Orientation S
Type de chauffage Chauffage central gaz y compris pour la production d'eau chaude sanitaire.
Type de châssis Châssis en PVC, double vitrage super isolant, porte de garage sectionnelle isolée.
Isolation des murs 10 cm de polyuréthane.
Isolation du sol 12 cm de polyuréthane.
Isolation toiture 22cm de laine minérale.
Garantie Le bâtiment est garanti 10 ans.
Installation éléctrique L'installation électrique à un certificat de conformité valable 25 ans.

Composition du bien

Hall d'entrée Oui
Séjour Oui
Cuisine Non
Salle à manger Non
WC 2 WC
Hall de nuit Oui
Chambres 3 chambres
Salles de bain Oui
Garage Non
Parking Oui
Jardin Oui
Terrasse Oui
Cuisine équipée Pas de cuisine équipée
Mezzanine Non
Garage avec buanderie Oui
Véranda Non
Local à poubelle Non

Discutons de votre projet

Vous avez une (ou plusieurs) question(s), vous souhaitez des renseignements complémentaires ou parler de votre futur projet ?
Nous sommes à votre écoute, sans engagement !

Fixer un rendez-vous

Maisons Baijot

Chez Maisons Baijot, nous aimons penser que nous ne construisons pas que des maisons clé sur porte. Nous bâtissons des lieux de vie, de ceux où les souvenirs se créent et se transmettent, où les moments se vivent et se partagent. Des maisons où des enfants grandissent, où des couples vieillissent, où l’on se dispute, où l’on se réconcilie, des maisons où l’on fête des anniversaires, des naissances, des mariages, des diplômes, des départs à la retraite…

 

Pour concrétiser votre projet de construction, nous vous offrons un large choix d’idées de plans pour trouver le style de maison qui conviendra parfaitement à vos envies et à votre budget. Toutes ces options sont bien entendu souples et personnalisables pour réaliser la construction d’une maison qui vous ressemble.

 

Bienvenue dans l’Univers Maisons Baijot.