SIRAULT 2

153
3
1
Faire offre à partir de
319 000 € HF*
Prix global
* Hors frais et hors TVA

Descriptif

Située dans un quartier résidentiel paisible à Sirault, cette maison neuve bénéficie d’un cadre rural agréable, au sein de la commune de Saint-Ghislain. L’ambiance est calme, avec un environnement peu densément bâti, propice à une vie familiale sereine.

Les commodités du quotidien sont facilement accessibles. L’arrêt de bus le plus proche se trouve à ± 260 m et la gare à 10 minutes en voiture, reliant aisément les communes voisines. Les axes routiers sont rapidement accessibles, facilitant les déplacements vers Mons et Saint-Ghislain. Les écoles fondamentales et une crèche se situent à moins de 10 minutes en voiture. Une pharmacie et un cabinet médical sont implantés à proximité. Un supermarché, une boulangerie, ainsi que d’autres services de proximité banque, salle de sport sont également disponibles dans un rayon restreint.

Le bien développe une surface habitable de ± 153 m² sur un terrain de ± 5,82 ares. Il s’agit d’une construction à 3 façades avec une terrasse d’une superficie de ± 14 m² orientée à Est.

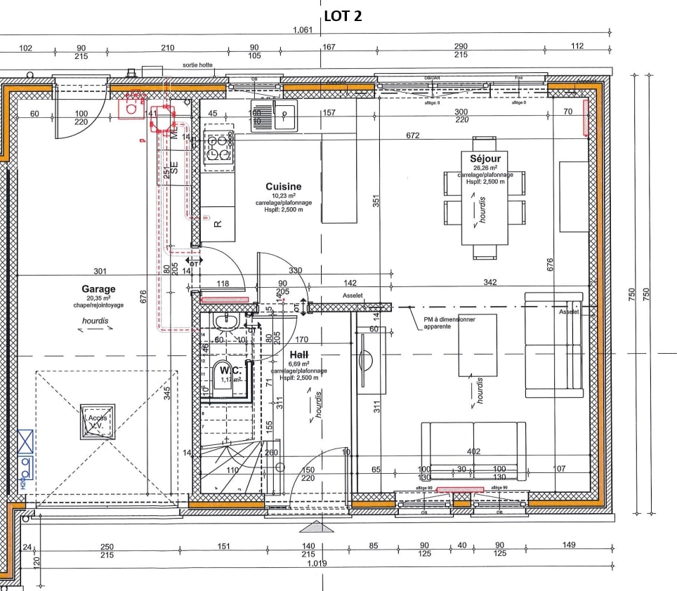
Le rez-de-chaussée comprend un hall d’entrée avec un WC, un séjour lumineux de ± 26 m², une cuisine ouverte de ± 10 m², ainsi qu'un garage/buanderie de 1 voiture de  ± 20,5 m².

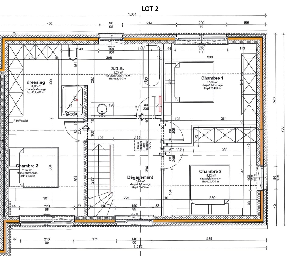
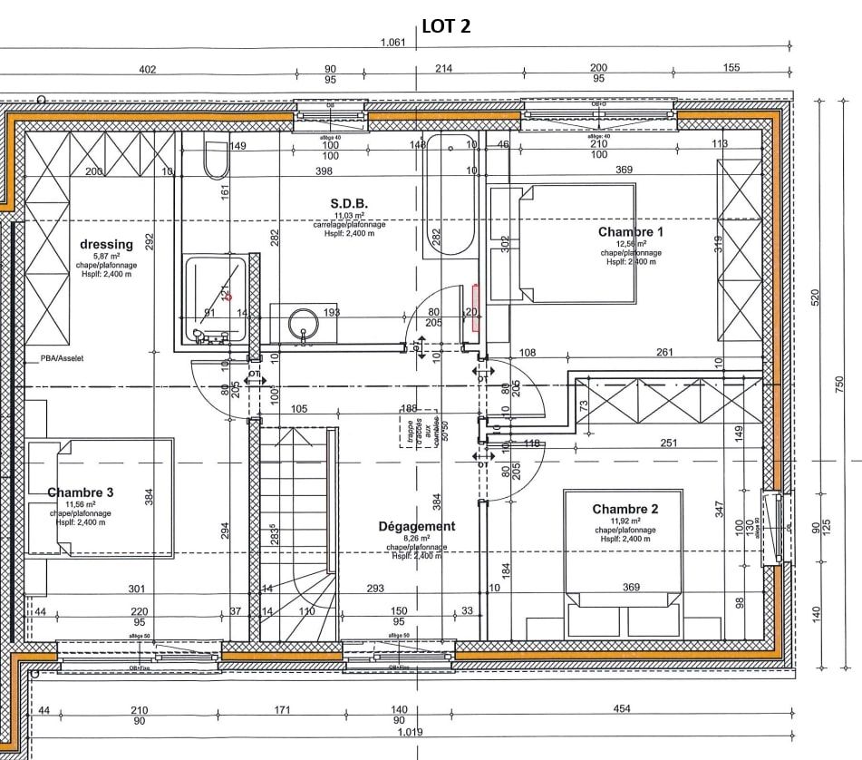
À l’étage, le hall de nuit distribue 1 chambre parental avec dressing de ± 17 m² et 2 chambres ± 13 m² et ± 12 m², une salle de bain de ± 11 m².

Le chauffage est assuré au gaz. Le bien est équipé de ± 6 panneaux photovoltaïques. Le certificat de performance énergétique est classé A.

Prix et disponibilités

Faire offre à partir de 319 000 € HF*
Disponibilité à l'acte
Adresse Rue de Chièvres
Région SIRAULT (SAINT-GHISLAIN)
Province Hainaut
Superficie du terrain 686 m²
Année de construction 2026
PEB A
Contactez Quentin au 0486241841
* Hors frais et hors TVA

Informations techniques

Type de bien Maison
Façades 3 façades
Superficie 153 m²
Superficie du terrain 686 m²
Orientation NE
Type de chauffage Chauffage central gaz y compris pour la production d'eau chaude sanitaire.
Type de châssis Châssis en PVC, double vitrage super isolant, porte de garage sectionnelle isolée.
Isolation des murs 10 cm de polyuréthane.
Isolation du sol 10 cm de polyuréthane.
Isolation toiture 22cm de laine minérale.
Garantie Le bâtiment est garanti 10 ans.
Installation éléctrique L'installation électrique à un certificat de conformité valable 25 ans.

Composition du bien

Hall d'entrée Oui
Séjour Oui
Cuisine Non
Salle à manger Oui
WC 2 WC
Dressing Oui
Hall de nuit Oui
Chambres 3 chambres
Salles de bain Oui
Garage Non
Parking 2 places
Jardin Oui
Terrasse Oui
Cuisine équipée 1 cuisine équipée
Mezzanine Non
Garage avec buanderie Oui
Véranda Non
Local à poubelle Non

Lotissement de SIRAULT

Découvrez le lotissement

Ces biens font partie de la même promotion

Discutons de votre projet

Vous avez une (ou plusieurs) question(s), vous souhaitez des renseignements complémentaires ou parler de votre futur projet ?
Nous sommes à votre écoute, sans engagement !

Fixer un rendez-vous

Maisons Baijot

Chez Maisons Baijot, nous aimons penser que nous ne construisons pas que des maisons clé sur porte. Nous bâtissons des lieux de vie, de ceux où les souvenirs se créent et se transmettent, où les moments se vivent et se partagent. Des maisons où des enfants grandissent, où des couples vieillissent, où l’on se dispute, où l’on se réconcilie, des maisons où l’on fête des anniversaires, des naissances, des mariages, des diplômes, des départs à la retraite…

 

Pour concrétiser votre projet de construction, nous vous offrons un large choix d’idées de plans pour trouver le style de maison qui conviendra parfaitement à vos envies et à votre budget. Toutes ces options sont bien entendu souples et personnalisables pour réaliser la construction d’une maison qui vous ressemble.

 

Bienvenue dans l’Univers Maisons Baijot.