LIGNE 1

158
3
1
Prix H.F. clé sur porte
349 000 € HF*
Prix global
* Hors frais et hors TVA

Descriptif

Dans un environnement résidentiel verdoyant de la commune d’Ath, cette maison neuve s’implante dans un quartier calme, bien structuré, bénéficiant d’une ambiance familiale et d’une bonne desserte locale. La proximité des villages environnants assure un cadre de vie équilibré, entre nature et accessibilité.

Un arrêt de bus se situe à 500 m, la gare d’Ath est accessible en 12 minutes en voiture. Les axes routiers principaux, dont la N56, se rejoignent en 6 minutes. École fondamentale à 3 minutes à pied, crèche à 5 minutes en voiture. Médecins et pharmacie dans un rayon de 2 km. Le centre d’Ath, avec ses commerces, banques, boulangeries et infrastructures sportives, est à moins de 10 minutes.

Le bien développe une surface habitable de +/- 158 m² sur un terrain de +/- 14,90 ares. Il s’agit d’une maison 4 façades, avec terrasse orientée Nord-Ouest et carport de +/- 15 m².

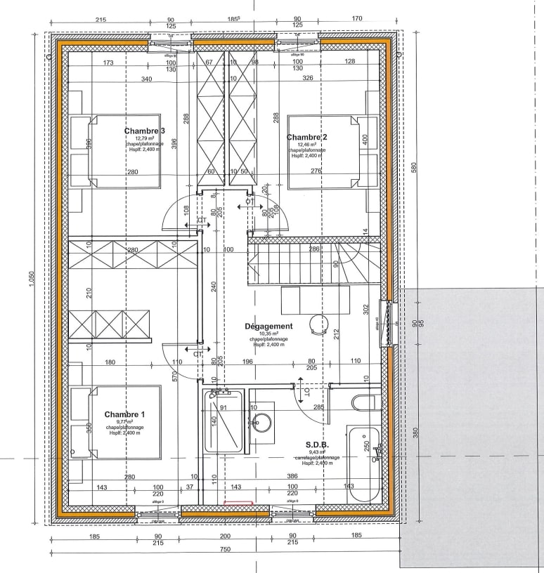
L’intérieur se compose, au rez-de-chaussée, d’un séjour de +/- 27 m², d’une cuisine ouverte de +/- 14 m², d’un bureau de +/- 8,5 m², d’une buanderie de +/- 5,5 m² et d’un WC. À l’étage, le hall de nuit distribue 3 chambres de +/- 16 m², 13 m² et 12,5 m², ainsi qu’une salle de bain de +/- 9,5 m² avec baignoire, douche et second WC.

Le bien est équipé d’un chauffage au gaz, de six panneaux photovoltaïques et présente un certificat PEB de classe A.

Prix et disponibilités

Prix H.F. clé sur porte 349 000 € HF*
Disponibilité à l'acte
Adresse Rue de Foucaumont
Région LIGNE (ATH)
Province Hainaut
Superficie du terrain 1332 m²
Année de construction 2025
PEB A
Contactez Quentin au 0486241841
* Hors frais et hors TVA

Informations techniques

Type de bien Maison
Façades 4 façades
Superficie 158 m²
Superficie du terrain 1332 m²
Type de chauffage Chauffage central gaz y compris pour la production d'eau chaude sanitaire.
Type de châssis Châssis en PVC, double vitrage super isolant.
Isolation des murs 10 cm de polyuréthane.
Isolation du sol 10 cm de polyuréthane.
Isolation toiture 22cm de laine minérale.
Garantie Le bâtiment est garanti 10 ans.
Installation éléctrique L'installation électrique à un certificat de conformité valable 25 ans.

Composition du bien

Hall d'entrée Oui
Séjour Oui
Cuisine Non
Salle à manger Oui
Bureau Oui
WC 2 WC
Buanderie Oui
Dressing Oui
Hall de nuit Oui
Chambres 3 chambres
Salles de bain Oui
Garage Non
Carport Oui
Parking 3 places
Jardin Oui
Terrasse Oui
Cuisine équipée 1 cuisine équipée
Mezzanine Non
Véranda Non
Local à poubelle Non

Lotissement de LIGNE

Découvrez le lotissement

Ces biens font partie de la même promotion

Discutons de votre projet

Vous avez une (ou plusieurs) question(s), vous souhaitez des renseignements complémentaires ou parler de votre futur projet ?
Nous sommes à votre écoute, sans engagement !

Fixer un rendez-vous

Maisons Baijot

Chez Maisons Baijot, nous aimons penser que nous ne construisons pas que des maisons clé sur porte. Nous bâtissons des lieux de vie, de ceux où les souvenirs se créent et se transmettent, où les moments se vivent et se partagent. Des maisons où des enfants grandissent, où des couples vieillissent, où l’on se dispute, où l’on se réconcilie, des maisons où l’on fête des anniversaires, des naissances, des mariages, des diplômes, des départs à la retraite…

 

Pour concrétiser votre projet de construction, nous vous offrons un large choix d’idées de plans pour trouver le style de maison qui conviendra parfaitement à vos envies et à votre budget. Toutes ces options sont bien entendu souples et personnalisables pour réaliser la construction d’une maison qui vous ressemble.

 

Bienvenue dans l’Univers Maisons Baijot.