THIBESSART 8

177
4
1
Prix H.F. clé sur porte
420 000 € HF*
Prix global
* Hors frais et hors TVA

Descriptif

!! Profitez de la TVA réduite à 6% sur ce bien !!
Située au cœur de la campagne ardennaise, Thibessart offre un cadre résidentiel paisible, propice à la détente. Le village est desservi par la ligne de bus 57 du TEC, reliant Marbehan à Léglise, avec un arrêt au centre de Thibessart. La gare de Marbehan, accessible en 15 minutes, permet des correspondances vers Arlon et Luxembourg.
Les commodités essentielles se trouvent à Léglise, à environ 10 minutes en voiture. On y trouve une école fondamentale, une crèche, une pharmacie, un médecin généraliste, un supermarché, une boulangerie, une banque et une salle de sport. L'accès à l'autoroute E411 se fait en 10 minutes, facilitant les déplacements vers les grandes villes.
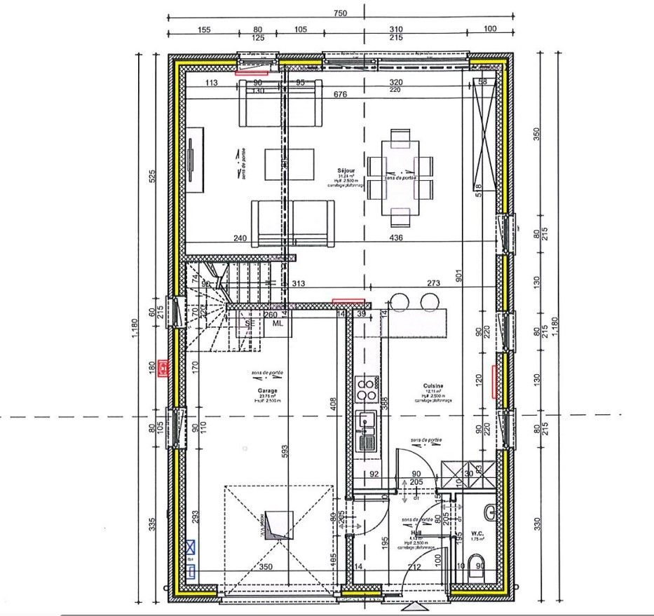
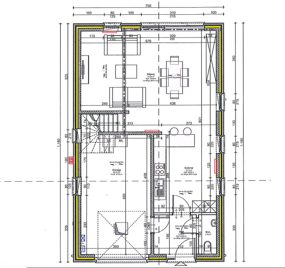
Cette maison neuve de type 4 façades s'élève sur un terrain de +/- 968 m². Orientée à l'est, elle dispose d'une terrasse et d'un carport de +/- 20 m². La surface habitable totale est de +/- 177 m².
Au rez-de-chaussée, le séjour de +/- 31 m² s'ouvre sur la terrasse. La cuisine non équipée de +/- 12 m² est attenante au séjour. À l'étage, la chambre parentale avec dressing mesure +/- 15 m², les trois autres chambres font respectivement +/- 13 m², +/- 12 m² et +/- 12 m². La salle de bain de +/- 7 m² comprend une douche et une baignoire.
Le chauffage est assuré au gaz. Six panneaux photovoltaïques sont installés, contribuant à une performance énergétique de niveau A.

Prix et disponibilités

Prix H.F. clé sur porte 420 000 € HF*
Disponibilité A l'acte
Adresse Rue de la Mande-Brat
Région THIBESSART (LEGLISE)
Province Luxembourg
Superficie du terrain 933 m²
Année de construction 2025
PEB A
Contactez Florence au 0484937976
* Hors frais et hors TVA

Informations techniques

Type de bien Maison
Façades 4 façades
Superficie 177 m²
Superficie du terrain 933 m²
Orientation E
Type de chauffage Chauffage central gaz y compris pour la production d'eau chaude sanitaire.
Type de châssis Châssis en PVC, double vitrage super isolant, porte de garage sectionnelle isolée.
Isolation des murs 10 cm de polyuréthane.
Isolation du sol 12 cm de polyuréthane.
Isolation toiture 22cm de laine minérale.
Garantie Le bâtiment est garanti 10 ans.
Installation éléctrique L'installation électrique à un certificat de conformité valable 25 ans.

Composition du bien

Hall d'entrée Non
Séjour Oui
Cuisine Non
Salle à manger Non
WC 2 WC
Hall de nuit Oui
Chambres 4 chambres
Salles de bain Oui
Garage Non
Parking Oui
Jardin Oui
Terrasse Oui
Cuisine équipée Pas de cuisine équipée
Mezzanine Non
Garage avec buanderie Oui
Véranda Non
Local à poubelle Non

Lotissement de THIBESSART

Découvrez le lotissement

Discutons de votre projet

Vous avez une (ou plusieurs) question(s), vous souhaitez des renseignements complémentaires ou parler de votre futur projet ?
Nous sommes à votre écoute, sans engagement !

Fixer un rendez-vous

Maisons Baijot

Chez Maisons Baijot, nous aimons penser que nous ne construisons pas que des maisons clé sur porte. Nous bâtissons des lieux de vie, de ceux où les souvenirs se créent et se transmettent, où les moments se vivent et se partagent. Des maisons où des enfants grandissent, où des couples vieillissent, où l’on se dispute, où l’on se réconcilie, des maisons où l’on fête des anniversaires, des naissances, des mariages, des diplômes, des départs à la retraite…

 

Pour concrétiser votre projet de construction, nous vous offrons un large choix d’idées de plans pour trouver le style de maison qui conviendra parfaitement à vos envies et à votre budget. Toutes ces options sont bien entendu souples et personnalisables pour réaliser la construction d’une maison qui vous ressemble.

 

Bienvenue dans l’Univers Maisons Baijot.