Faire offre à partir de
359 000 € HF*
Prix global
* Hors frais et hors TVA

Descriptif

Profitez d'une réduction de 10.000 euros avec nos conditions salon ! *

C’est à Wasseiges, dans le village de Meeffe, que nous vous proposons cette belle maison prête à vivre.
Ce bien se situe à proximité de la N80 et E42 Liège/Namur, d’arrêts de bus, des commerces de Wasseiges (5km) et Hannut (10km) et à 30 minutes du centre-ville de Namur.
Cette maison 3 façades d’environ 190m² est implantée sur un terrain d’à peu près 8 ares 34 orienté Sud-Est avec une superbe vue dégagée.
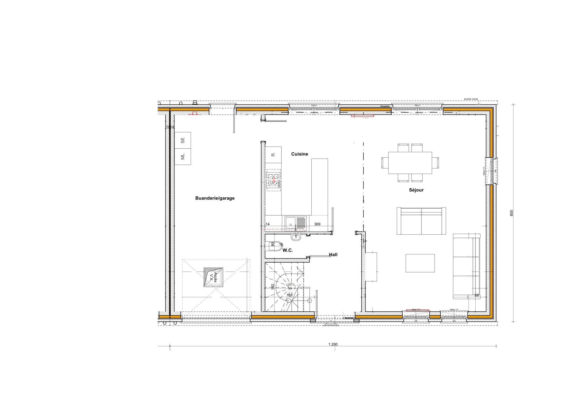
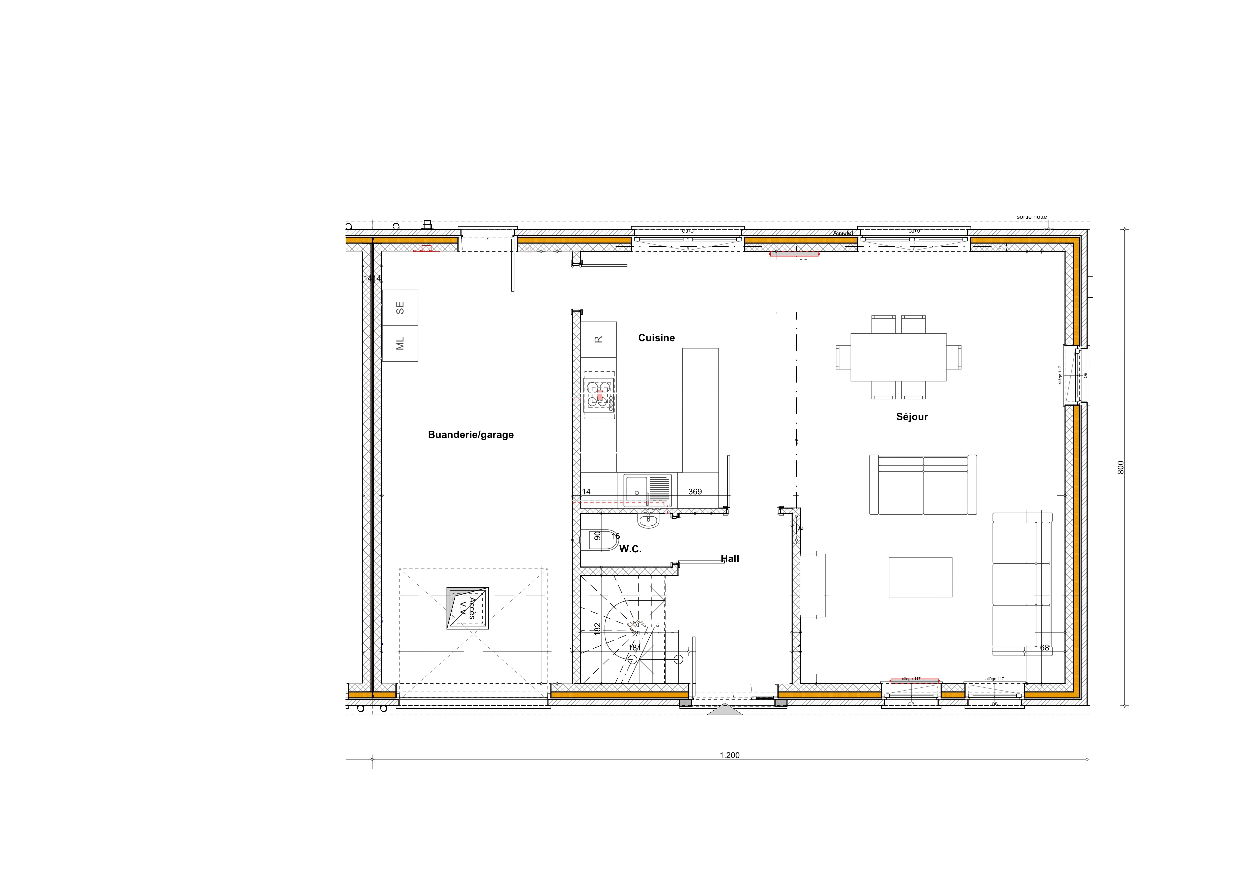
Elle se compose au rez-de-chaussée d’un hall d’entrée, d’un WC séparé, d’un séjour de +/- 32m², d’une cuisine ouverte full équipée de +/- 16m² et d’un garage une voiture de +/- 23m² avec buanderie.
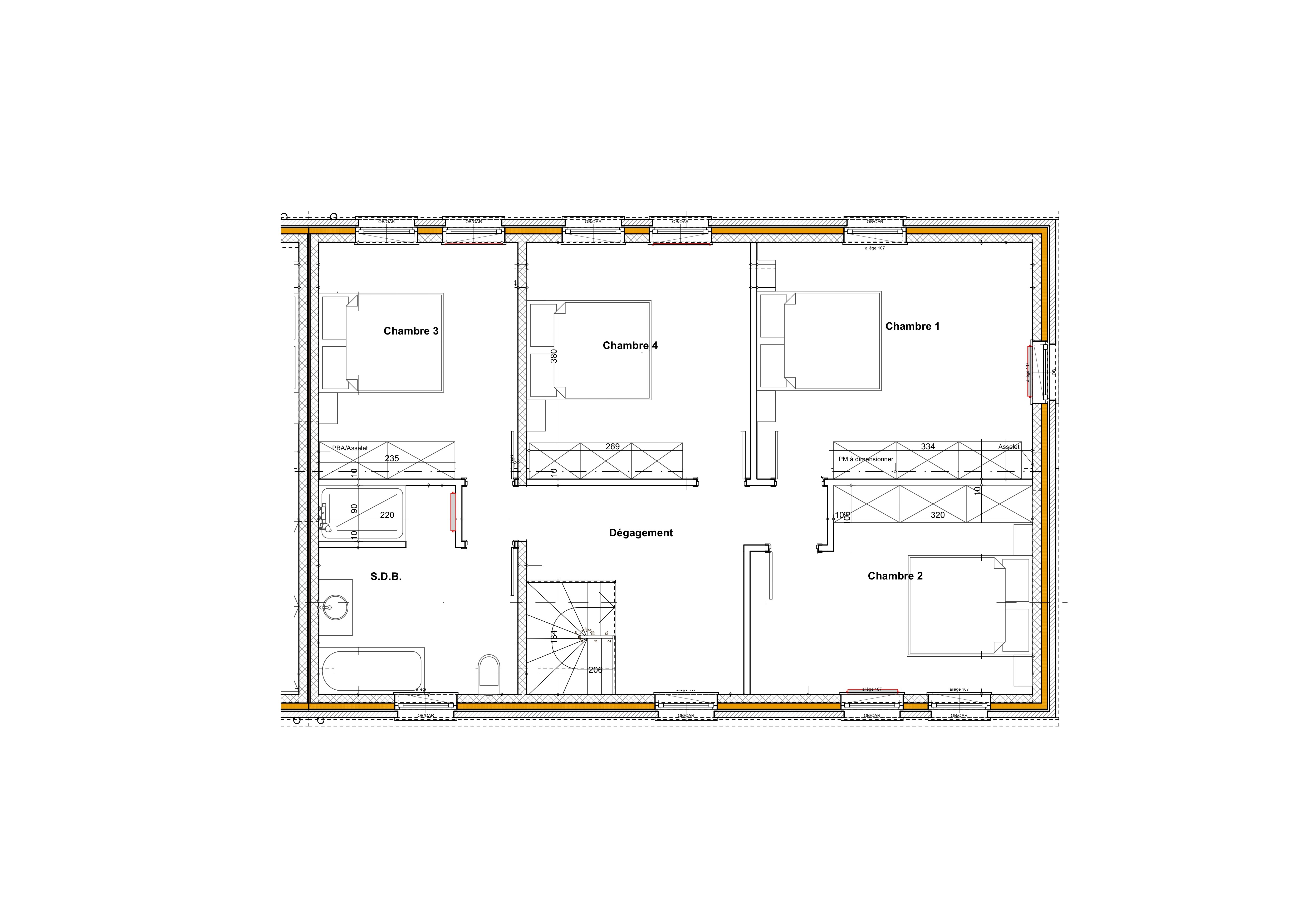
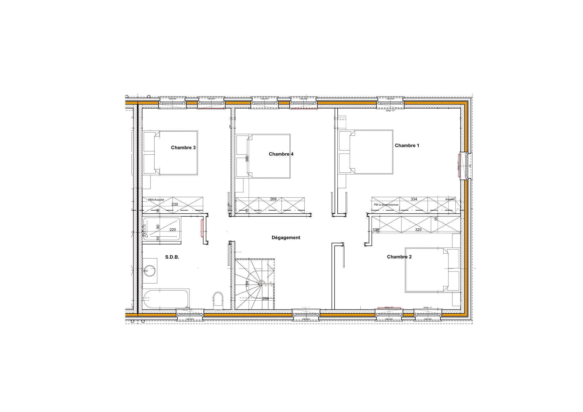
A l’étage, vous trouverez un hall de nuit avec espace bureau de +/- 11m² donnant accès à 4 belles chambres et une salle de bain (baignoire, douche, meuble vasque, WC).
Profitez d’un bien neuf avec isolation poussée, d’une chaudière au gaz Vaillant, de 6 panneaux photovoltaïques et qui offre un PEB A garantissant confort, économies d’énergie et respect de l’environnement assurant un cadre de vie agréable et économe.

* Valable jusqu'au 22/02/2026

Prix et disponibilités

Faire offre à partir de 359 000 € HF*
Disponibilité A l'acte
Adresse Rue de Buay
Région MEEFFE (WASSEIGES)
Province Liège
Superficie du terrain 834 m²
Année de construction 2025
PEB A
Contactez Sofia au 0484937976
* Hors frais et hors TVA

Informations techniques

Type de bien Maison
Façades 3 façades
Superficie 190 m²
Superficie du terrain 834 m²
Orientation E
Type de chauffage Chauffage central gaz y compris pour la production d'eau chaude sanitaire.
Type de châssis Châssis en PVC, double vitrage super isolant, porte de garage sectionnelle isolée.
Isolation des murs 10 cm de polyuréthane.
Isolation du sol 10 cm de polyuréthane.
Isolation toiture 22cm de laine minérale.
Garantie Le bâtiment est garanti 10 ans.
Installation éléctrique L'installation électrique à un certificat de conformité valable 25 ans.

Composition du bien

Hall d'entrée Oui
Séjour Oui
Cuisine Oui
Salle à manger Oui
WC 2 WC
Hall de nuit Oui
Chambres 4 chambres
Salles de bain Oui
Garage Oui
Parking 2 places
Jardin Oui
Terrasse Oui
Cuisine équipée Pas de cuisine équipée
Mezzanine Non
Garage avec buanderie Oui
Véranda Non
Local à poubelle Non

Lotissement de MEEFFE

Magnifique lotissement de 10 lots dans le charmant

Découvrez le lotissement

Discutons de votre projet

Vous avez une (ou plusieurs) question(s), vous souhaitez des renseignements complémentaires ou parler de votre futur projet ?
Nous sommes à votre écoute, sans engagement !

Fixer un rendez-vous

Maisons Baijot

Chez Maisons Baijot, nous aimons penser que nous ne construisons pas que des maisons clé sur porte. Nous bâtissons des lieux de vie, de ceux où les souvenirs se créent et se transmettent, où les moments se vivent et se partagent. Des maisons où des enfants grandissent, où des couples vieillissent, où l’on se dispute, où l’on se réconcilie, des maisons où l’on fête des anniversaires, des naissances, des mariages, des diplômes, des départs à la retraite…

 

Pour concrétiser votre projet de construction, nous vous offrons un large choix d’idées de plans pour trouver le style de maison qui conviendra parfaitement à vos envies et à votre budget. Toutes ces options sont bien entendu souples et personnalisables pour réaliser la construction d’une maison qui vous ressemble.

 

Bienvenue dans l’Univers Maisons Baijot.