SAINT-HUBERT 3

162
3
1
Faire offre à partir de
279 995 € HF*
Prix global
* Hors frais et hors TVA

Descriptif

Action Salon exceptionnelle valable jusqu'au 22/02
Profitez d’une remise de 10.000 €
279.995 € au lieu de 289.995 € HTVA

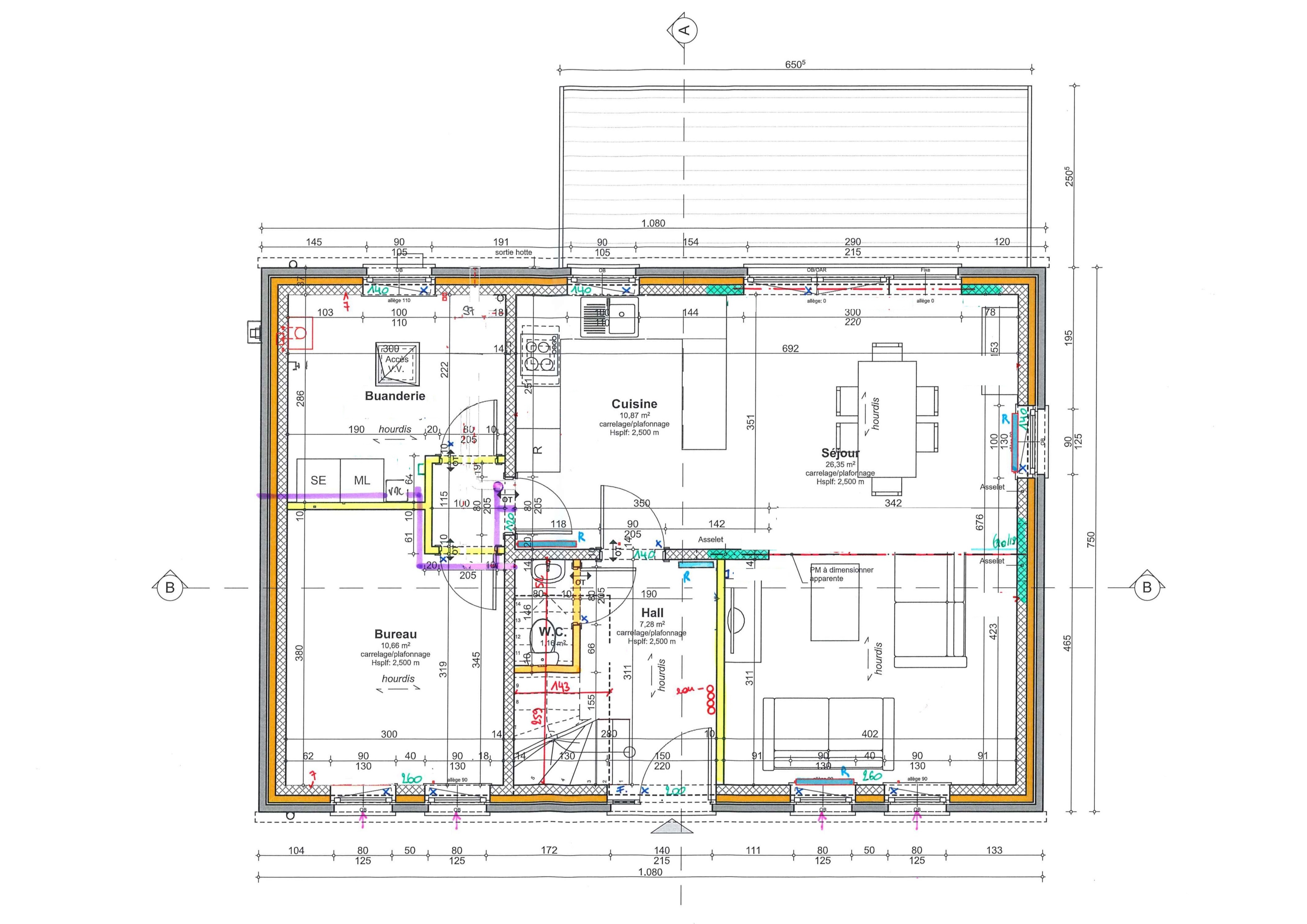
C’est à Saint Hubert, village au cœur des Ardennes belges que nous vous proposons cette superbe maison neuve 4 façades sur un terrain de +/- 13 ares. Ville bien connue pour être entourée de forêts, parcs et réserves naturelle c’est un véritable paradis pour les amoureux de nature. Saint Hubert ne sacrifie pas la commodité au profit de la nature, vous y trouverez toutes les infrastructures nécessaires au quotidien : écoles, commerces de proximité, services médicaux et même des équipements sportifs et culturels. Cette maison implantée sur un terrain de +/- 13 ares et orientée plein sud se compose au rez de chaussée d’un hall d’entrée, d’un WC, d’un séjour ouvert sur une cuisine équipée de +/- 36 m², d’une buanderie de +/- 8m², d’un bureau de 10 m², d’une terrasse en bois de +/- 16 m².
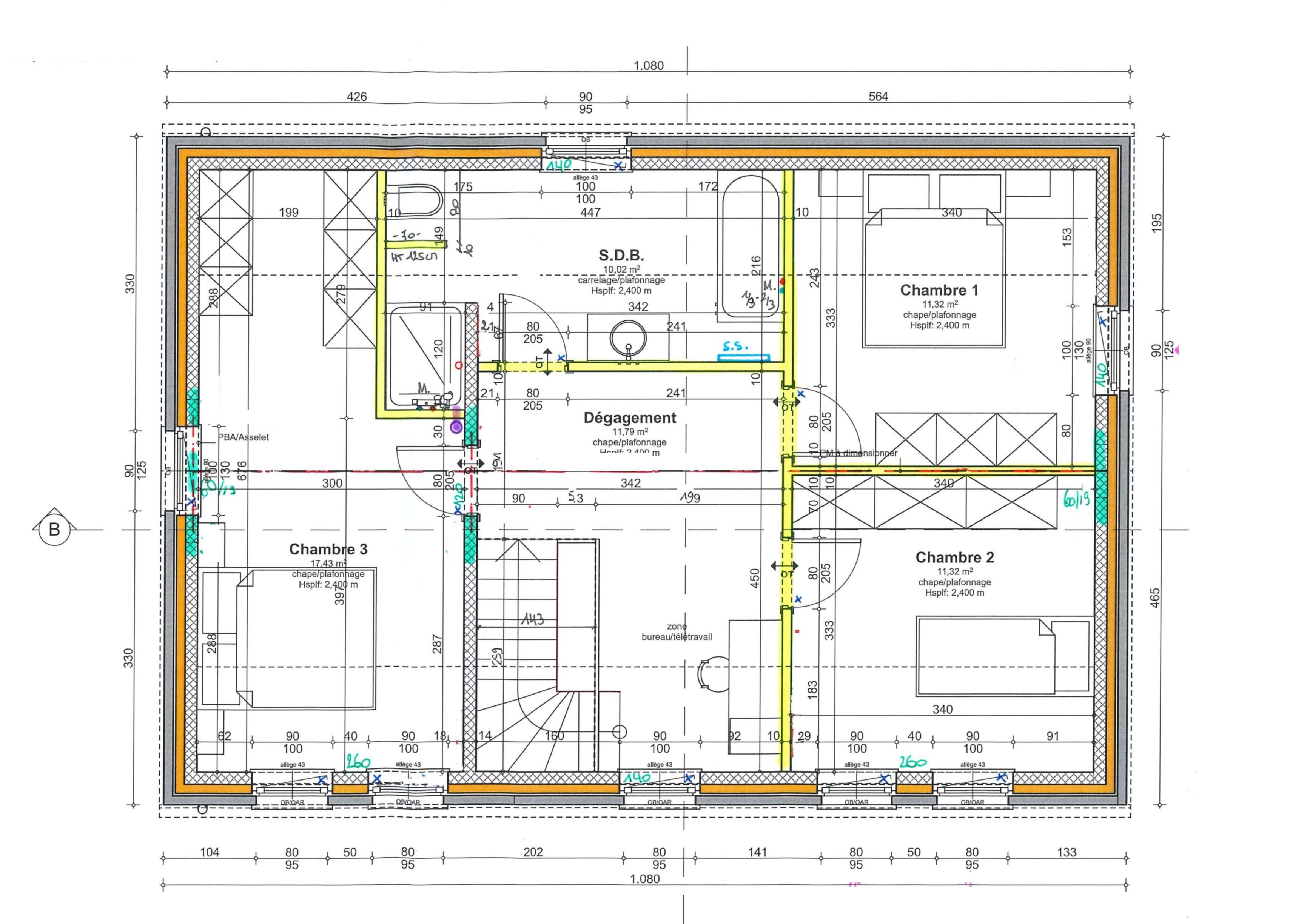
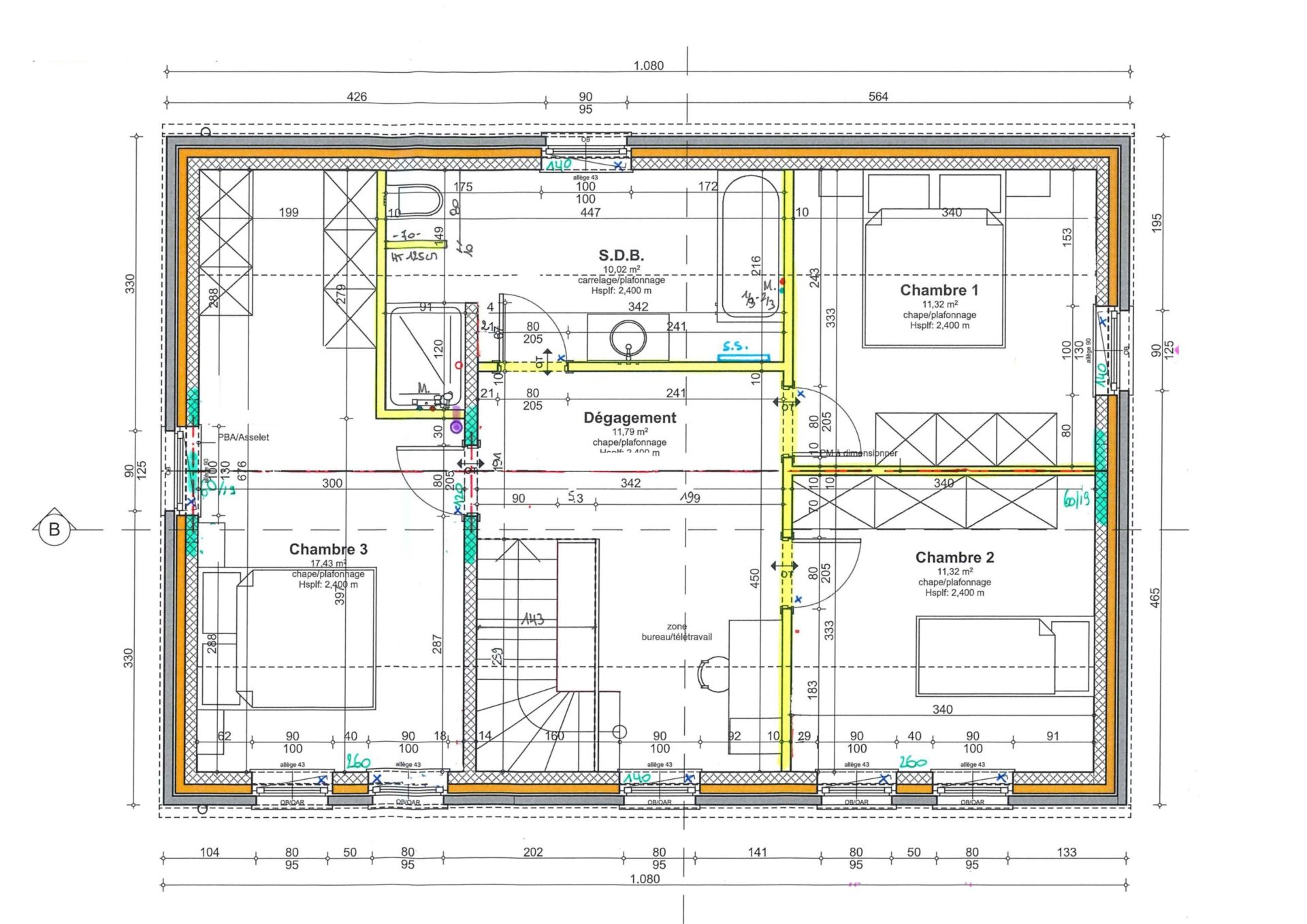
A l’étage vous avez un hall de nuit ( pouvant servir d'espace bureau) donnant sur 1 chambre parentale de +/- 17m², de 2 chambres de +/- 11m² ainsi qu’une salle de bain avec douche, baignoire, meuble lavabo et WC.
Elle est équipée d’une chaudière à condensation au gaz à haut rendement, de 6 panneaux photovoltaïques et offrant un PEB A garantissant confort, économies d’énergie et respect de l’environnement assurant un cadre de vie agréable et économe.

Prix et disponibilités

Faire offre à partir de 279 995 € HF*
Disponibilité A l'acte
Adresse Route de Poix
Région SAINT-HUBERT
Province Luxembourg
Superficie du terrain 743 m²
Année de construction 2025
PEB A
Contactez Georges au 0487641789
* Hors frais et hors TVA

Informations techniques

Type de bien Maison
Façades 4 façades
Superficie 162 m²
Superficie du terrain 743 m²
Orientation S
Type de chauffage Chauffage central gaz y compris pour la production d'eau chaude sanitaire.
Type de châssis Châssis en PVC, double vitrage super isolant.
Isolation des murs 10 cm de polyuréthane.
Isolation du sol 12 cm de polyuréthane.
Isolation toiture 22cm de laine minérale.
Garantie Le bâtiment est garanti 10 ans.
Installation éléctrique L'installation électrique à un certificat de conformité valable 25 ans.

Composition du bien

Hall d'entrée Oui
Séjour Oui
Cuisine Oui
Salle à manger Non
Bureau Oui
WC 2 WC
Buanderie Oui
Hall de nuit Oui
Chambres 3 chambres
Salles de bain Oui
Garage Non
Parking Oui
Jardin Oui
Terrasse Oui
Cuisine équipée Pas de cuisine équipée
Mezzanine Non
Véranda Non
Local à poubelle Non

Lotissement de SAINT-HUBERT

Découvrez le lotissement

Discutons de votre projet

Vous avez une (ou plusieurs) question(s), vous souhaitez des renseignements complémentaires ou parler de votre futur projet ?
Nous sommes à votre écoute, sans engagement !

Fixer un rendez-vous

Maisons Baijot

Chez Maisons Baijot, nous aimons penser que nous ne construisons pas que des maisons clé sur porte. Nous bâtissons des lieux de vie, de ceux où les souvenirs se créent et se transmettent, où les moments se vivent et se partagent. Des maisons où des enfants grandissent, où des couples vieillissent, où l’on se dispute, où l’on se réconcilie, des maisons où l’on fête des anniversaires, des naissances, des mariages, des diplômes, des départs à la retraite…

 

Pour concrétiser votre projet de construction, nous vous offrons un large choix d’idées de plans pour trouver le style de maison qui conviendra parfaitement à vos envies et à votre budget. Toutes ces options sont bien entendu souples et personnalisables pour réaliser la construction d’une maison qui vous ressemble.

 

Bienvenue dans l’Univers Maisons Baijot.